
关于我们
常州豪郡装饰工程有限公司是一家专业从事家居装饰、写字楼、公寓、挑高空间、商业空间别墅设计与施工 的专业性工程公司,借助先进的施工技术,将人力资源有机的结合在一起,真正实现了资源合理调度,确保服务质量、时效性和低成本。
现代
1 3 8 ㎡
景瑞曦城
高级设计师
BOUTBEAUTY
刘文祥

设计理念:因地制宜,因人而异,设计是为每一个人创造一个属于自己的空间。
工作经验:4年以上
擅长风格:简美、现代简约、美式乡村风格、 地中海风格、新中式风格
小区案例:《百馨西苑》《悠活城》《世茂香槟湖》《青建鼎都》《德禾豪景》
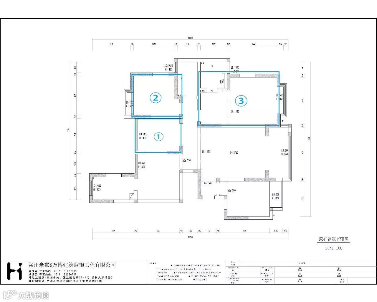
▼原始框架图

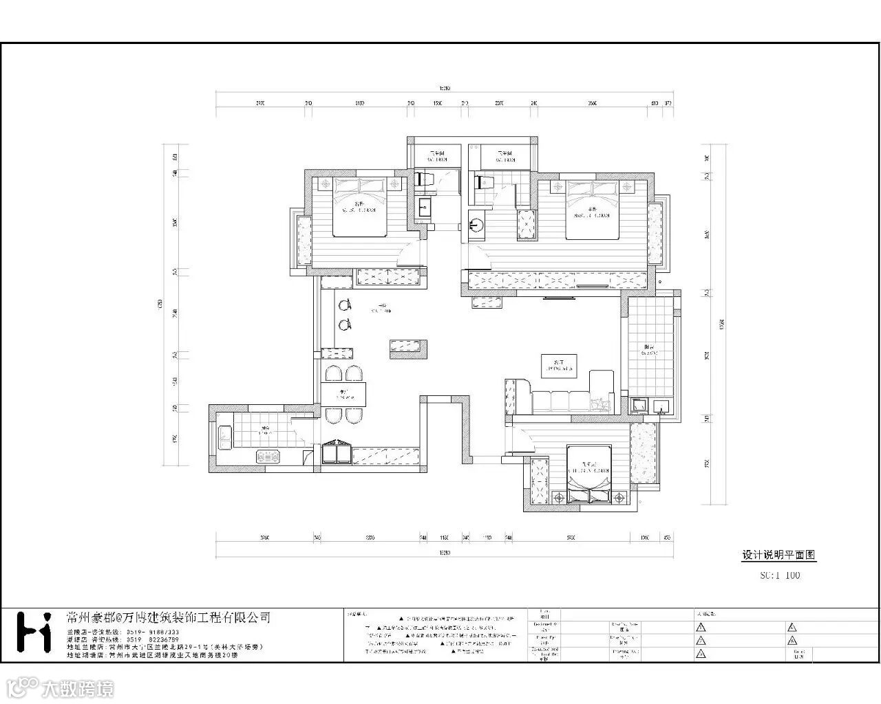
▼平面布置图

①、做开放式书房,巧妙的与其它空间相融合
②、客卧原墙体敲除,做内嵌式橱柜,增加储物空间
③、主卧修改门洞位置,做连排橱柜增加储物空间
内卫做干湿分离,提高生活品质

明亮宽敞的客厅,阳光爬上了一份净白开始与空间对话,干干净净的却充满生气。

同样的精致-酒柜 酒柜以简单的线条而设计,由纯白色组成,设计大胆,时尚。

白色的空间,成排的橱柜电视背景墙令人耳目一新,储物功能强大。

联系我们
兰陵店
▼
常州市天宁区兰陵北路337-1号(美林大浴场旁)
Tel:0519-81887333
新北店
▼
正在装修筹备中,敬请期待!
豪郡装饰

创意美图|设计案例|装修知识|找设计师
豪郡装饰官方网站:www.cnhaojun.com


