
BOUTHAOJUN
关于我们
常州豪郡装饰工程有限公司是一家专业从事家居装饰、写字楼、公寓、挑高空间、商业空间别墅设计与施工 的专业性工程公司,借助先进的施工技术,将人力资源有机的结合在一起,真正实现了资源合理调度,确保服务质量、时效性和低成本。

◀绿都万和城
95㎡
现 代
现 代

自在、随意不羁的生活方式,
没有太多造作的修饰与约束,
不经意中也能成就一种休闲式的浪漫。
DESIGNER 设计主创
设计总监
DESIGN DIRECTOR
钱舒云

设计理念:设计是一种追求品味的生活概念。
工作经验:5年以上
擅长风格:现代简约风格、欧式新古典风格、美式乡村风格、 地中海风格、新中式风格
小区案例:大名城顺御和苑、御城、路劲城、中央花园、保利公园九里、龙湖原山、蔚蓝天地、玉兰广场、莱蒙城、中澳珑郡......
DESIGNCASE 案例分析
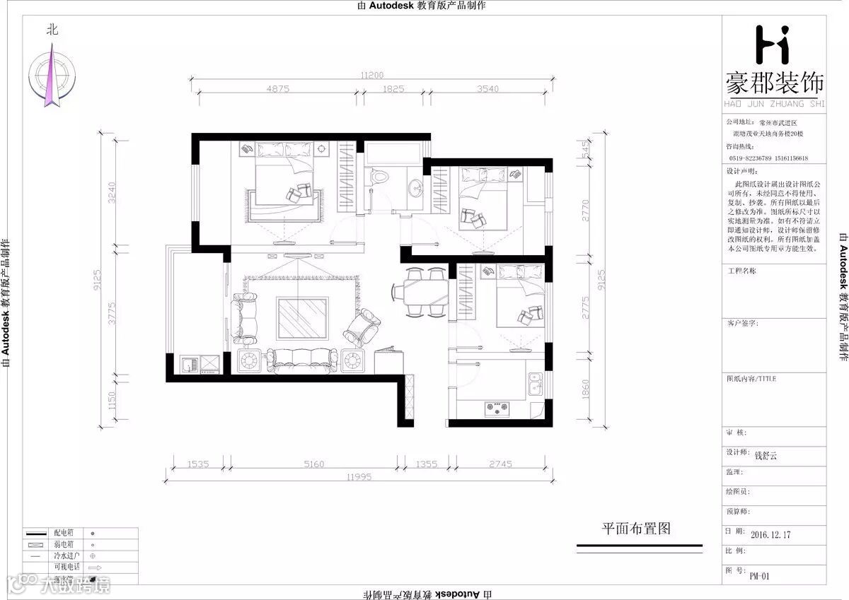
▼【原始框架图】

▼【平面布置图】

案例分析
户型无敲砌墙改造,功能布局清晰。
DESIGN 效 果 图

简约不等于简单,它是经过深思熟虑后经过创新得出的设计和思路的延展,不是简单的“堆砌”和平淡的“摆放”,不像是粗浅理解的“直白”,比如床头背景设计有些简约到只有一个十字挂件,但它却凝结着设计师的独具匠心,既美观又实用。
SHOW TIME

豪郡装饰
王的盛宴——全案设计
2017火爆来袭
全套方案
基础装修
主材代购
让您省时省钱省心!
并且由公司资深专业人员对您的家装
进行全程跟踪
全程监理
让你所花的每一分钱都物超所值!

全案设计
限 10 套:
送衣柜
送新风
送720°全景毕业照
品质整装
限 20 套:
送花洒
送软装设计方案
豪华半包
限 25 套:
送万元主材现金券
大牌主材,豪郡客户特惠供

主材轻松购(装修直省20000元起)
▼

大牌商家,等你来选
详情请到店咨询

给业主细致的服务,
一流的工艺,专业的品质。
一心一意为业主打造高质量高性价比的个性化新房,
让每一栋房子都有独特的设计,
豪郡装饰您值得拥有!
我们的目标是
做家装界最好的设计师,
设计界最好的施工队,
装修界最好的微信小编!
豪郡装饰,您值得拥有!

联系我们
兰陵店
▼
常州市天宁区兰陵北路337-1号(美林大浴场旁)
Tel:0519-81887333
分 店
▼
正在筹备中,敬请期待~

创意美图|设计案例|装修知识|找设计师
豪郡装饰官方网站:www.cnhaojun.com

关注豪郡,有惊喜!
点击下方“阅读原文”即可报名参加哦~

