
BOUTHAOJUN
关于我们
常州豪郡装饰工程有限公司是一家专业从事家居装饰、写字楼、公寓、挑高空间、商业空间别墅设计与施工 的专业性工程公司,借助先进的施工技术,将人力资源有机的结合在一起,真正实现了资源合理调度,确保服务质量、时效性和低成本。

◀大名城
140㎡
欧 式
欧 式

自在、随意不羁的生活方式,
没有太多造作的修饰与约束,
不经意中也能成就一种休闲式的浪漫。
DESIGNER 设计主创
设计总监
DESIGN DIRECTOR
钟磊

设计理念:让灵感自由释放,创造一个心灵渴望的空间。
工作经验:5年以上
擅长风格:简欧风格、东南亚风格、美式风格、现代风格、田园风格、新中式风格、简约混搭、地中海风格
小区案例:金坛美丽华大厦、青建鼎都、上书房、高成天鹅湖、、孟河东庭院、紫金城、玉兰广场、莱蒙城、......
DESIGNCASE 案例分析
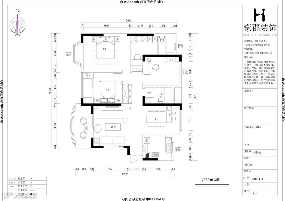
▼【原始框架图】

▼【平面布置图】

案例分析
餐厅阳台原墙拆除,增大餐厅空间;
外卫做干湿分离;
主卧衣帽间原墙拆除新砌,增加衣帽间空间;
次卧原墙拆除新砌,充分利用空间。
DESIGN 效 果 图


简约、质朴的设计风格是众多人群所喜爱的,生活在繁杂多变的世界里已是烦扰不休,而简单、自然的生活空间却能让人身心舒畅,让我们在纷扰的现实生活中找到平衡,缔造出一个令人心弛神往的写意空间。
ps:更多效果,请阅读原文
SHOW TIME

豪郡装饰开展迎春送好礼活动,
让您不费吹灰之力打造完美新家!

活动优惠:
活动前到店咨询,免费领取红包
工程直接费:9.2折
★.活动期间签约客户免费享受7对1微服务(售后管家、客户经理、设计师、项目经理、监理、工程部监理、总经理)全程跟踪服务
★.凡在豪郡装饰签约业主即可获得“质量锤”,施工不满意,砸掉重做
奖品多多,人人都有哦~~

详情请到店咨询

给业主细致的服务,
一流的工艺,专业的品质。
一心一意为业主打造高质量高性价比的个性化新房,
让每一栋房子都有独特的设计,
豪郡装饰您值得拥有!
我们的目标是
做家装界最好的设计师,
设计界最好的施工队,
装修界最好的微信小编!
豪郡装饰,您值得拥有!

主办单位▼
常州豪郡建筑装饰工程有限公司
活动日期▼
2017年2月4日至2017年2月27日
联系我们
兰陵店
▼
常州市天宁区兰陵北路337-1号(美林大浴场旁)
Tel:0519-81887333
分店
▼
正在筹备中,敬请期待~

创意美图|设计案例|装修知识|找设计师
豪郡装饰官方网站:www.cnhaojun.com



