BOUTHAOJUN
关于我们
常州豪郡装饰工程有限公司是一家专业从事家居装饰、写字楼、公寓、挑高空间、商业空间别墅设计与施工 的专业性工程公司,借助先进的施工技术,将人力资源有机的结合在一起,真正实现了资源合理调度,确保服务质量、时效性和低成本。

◀弘建一品
145㎡
现代欧式
现代欧式

欧式有的不只是豪华大气
更多的是惬意和浪漫
通过完美的典线
精益求精的细节处理
带给家人不尽的舒服触感
实际上和谐是欧式风格的最高境界。
DESIGNER 设计主创
设计总监
DESIGN DIRECTOR
钟磊

设计理念:让灵感自由释放,创造一个心灵渴望的空间。
工作经验:5年以上
擅长风格:简欧风格、美式风格、现代简约风格、田园风格、新中式风格、简约混搭、地中海风格、后现代风格、日式风格、新古典风格
小区案例:大名城顺御和苑、御城、路劲城、中央花园、保利公园九里、东渡海派青城、蔚蓝天地、玉兰广场、莱蒙城、中澳珑郡、招商花园城、星河国际、紫金城、青建鼎都、上书房、弘建一品、常发豪庭......
DESIGNCASE 案例分析
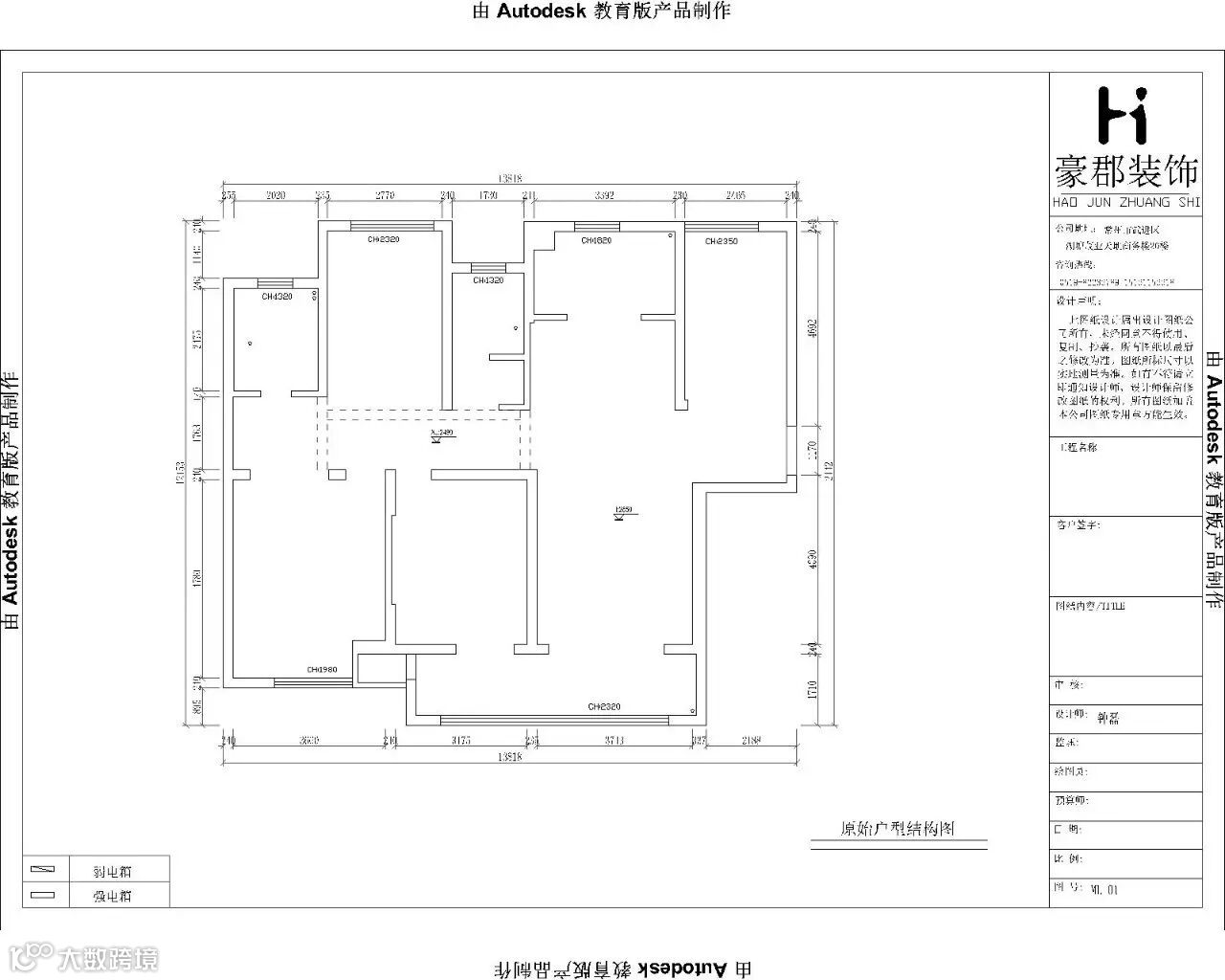
▼【原始框架图】

▼【原始户型结构图】

案例分析
花园阳台砌墙,改做独立会客厅和书房两用;
内卫原墙拆除新砌,改做衣帽间;
外卫做干湿分离;
厨房做推拉门。
DESIGN 效 果 图

简约、质朴的设计风格是众多人群所喜爱的,生活在繁杂多变的世界里已是烦扰不休,而简单、自然的生活空间却能让人身心舒畅,感到宁静和安逸;藉着室内空间的解构和重组,便可以满足我们对悠然自得的生活的向往和追求,让我们在纷扰的现实生活中找到平衡,缔造出一个令人心弛神往的写意空间。
聘
豪郡最强大脑招聘
手绘两名
要求:
20~35岁 性别不限 学历不限 只要技术好,有团队精神
性格和蔼,做事沉稳,有工作经验者优先。
热爱设计和手绘,并有自主专研精神。
必需熟识操作设计软件CAD,要求能独立完成平面布置图,施工图,兼容熟识操作3D-MAX,Photoshop,CorelDRAW,草图大师者优先
有美术功底.能独立完成手绘画作品.需线条流畅。
邀请各位神砸简历到:1394633841@qq.com
致电到:13701501328
豪郡装饰——给业主细致的服务,一流的工艺,专业的品质。
一心一意为业主打造高质量高性价比的个性化新房,
让每一栋房子都有独特的设计,豪郡装饰您值得拥有!
我们的目标是——做家装界最好的设计师,设计界最好的施工队,装修界最好的微信小编!豪郡装饰,您值得拥有!

联系我们
兰陵店
▼
常州市天宁区兰陵北路337-1号(美林大浴场旁)
Tel:0519-81887333
分 店
▼
正在筹备中,敬请期待~

创意美图|设计案例|装修知识|找设计师
豪郡装饰官方网站:www.cnhaojun.com

关注豪郡,有惊喜!

