
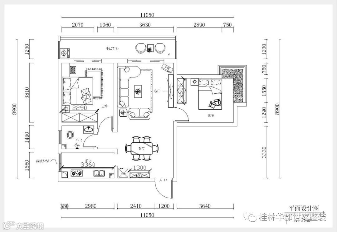
▲平面布局方案

▲客餐厅

▲客餐厅

▲主卧
PS:效果图仅供参考,样板实景体验效果更佳
★往期人气案例精选
【案例看点】 峰誉9栋07户型丨126㎡(套内)丨温馨小北欧
[案例看点] 荣和林溪府10栋02户型丨95㎡丨素色简约(黑白灰)

点击“阅读原文”查看华郡坐标720°全景。
家居idea

▲平面布局方案

▲客餐厅

▲客餐厅

▲主卧
PS:效果图仅供参考,样板实景体验效果更佳
★往期人气案例精选
【案例看点】 峰誉9栋07户型丨126㎡(套内)丨温馨小北欧
[案例看点] 荣和林溪府10栋02户型丨95㎡丨素色简约(黑白灰)

点击“阅读原文”查看华郡坐标720°全景。