对图纸感到困惑的朋友有很多,那么装修图纸怎么看?如何看懂装修图纸呢?下面为困惑的朋友们解答一下装修各种常见图纸介绍以及审核图纸注意事项,希望对大家有所帮助。
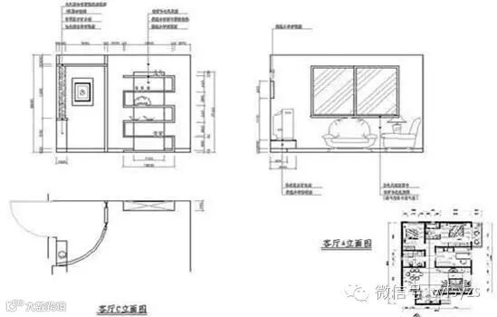
主要图纸也就是装修过程中,主要装修环节的示意图,让户主和施工人员清楚设计者的构想。装修的主要图纸包括原始建筑测量图、平面布局图、天花吊顶布局图等。



天花吊顶布置图是天花吊顶装修项目中最重要的图纸之一。它要求标明天花造型的尺寸定位、灯具位置及详图索引,并应标注天花底面相对于本层地面建筑面层的高度,同时还要注全各房间的名称。

地面材质图,顾名思义是关于地面材质的任何内容的。它标明需要铺设的地面材料种类、地面拼花、材料尺寸及不同材料分界线。

除了主要的图纸,在家居装修过程中,这些图纸也经常看到,下面一起来看看吧。

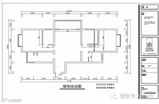
建筑改建平面图是根据设计方案将需要改动结构的墙体在图纸上标明的标识,比较常见的表示方法是在图纸上可以用虚线表示需要拆除的墙体,深色表示改建的墙体。

强弱电布置图是关于居室内部所有强电和弱电的布置的。房间里所有开关的位置,及每个开关所控制的电器、灯源。

给水走向图是关于厨房、卫生间等处的给排水线路的布置图、给水管道的管径尺寸、取水位置及高度、管线排布系统等是该图的重点。在水路施工中要十分注重,要以此图为基础。

审核图纸需要看清比例、尺寸等信息,谨防设计师和施工队钻小空子,让你做个精明的装修人。


有些设计图纸由于设计师没有在准备施工的现场作认真细致的测量,因此导致很多尺寸在设计时有遗漏,尤其是一些关键尺寸如果在设计时没有掌握,有可能在施工时产生设计与施工脱节的情况。

大多数朋友常常关注于装潢公司的报价单,担心上当受骗,一项项地仔细检查,其实在设计图纸上也应该标注出来主要材料的名称以及材料的品牌,这对于今后施工人员依照图纸施工很有利。

在施工图纸中标注必要的制作工艺是为了一方面是便于施工,同时也能起到约束施工人员在施工过程中偷工减料的作用,保证消费者得到一个与合同洽谈相符的工程项目。

