相信各位对踢脚线都不陌生,经常有小伙伴们吐槽设计踢脚线时一不小心就翻车了,其实这种情况除了施工不精湛就是没有选对踢脚线。
那踢脚线到底有哪些类型,不同踢脚线的施工节点图又该怎么画呢?咱们今天就从三个方面一次解决踢脚线难题:
1、根据功能分类;
2、根据材料分类;
3、根据收口工艺分类。
01. 根据功能分类
从功能方面来说,踢脚线有4个作用:
保护墙面;方便卫生;
隐蔽电线、修饰界面偏差;
掩盖伸缩缝。
02. 根据材料分类
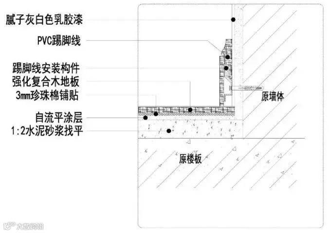
1、强化复合木地板踢脚线
强化复合木地板踢脚线施工节点图△
2、铝合金踢脚线
铝合金踢脚线施工节点图△
3、带照明铝合金踢脚线
带照明铝合金踢脚线施工节点图△
4、嵌入式踢脚线
嵌入式踢脚线施工节点图△
5、石材踢脚线/石塑踢脚线
石塑踢脚线施工节点图△
石材踢脚线施工节点图△
6、实木踢脚线
实木踢脚线施工节点图△
7、不锈钢踢脚线
不锈钢踢脚线施工节点图△
8、嵌入式带铝合金踢脚线
嵌入式带铝合金踢脚线施工节点图△
03. 根据收口工艺分类
而根据以上踢脚线的材料种类,结合做法收口再来分一下类:
1、石材、瓷砖踢脚线常见收口做法
a、“齐平”收口石材、瓷砖踢脚做法;
b、“突出”收口石材、瓷砖踢脚做法。
2、金属踢脚线常见收口做法
a、“突出”收口金属踢脚做法;
b、“嵌入”收口金属踢脚做法
3、木质踢脚线常见收口做法
a、“齐平”收口木质踢脚做法;
b、“突出”收口木质踢脚做法。
4、PVC踢脚线常见收口做法
a、成品PVC踢脚线工艺做法;
成品PVC踢脚线工艺做法△
b、成品橡胶踢脚线工艺做法。
成品橡胶踢脚线工艺做法△


