

一、项目信息
1. 施工单位:曼瑞德舒适集成乐清金茂店。
2. 项目名称:中驰湖滨花园。
3. 项目面积:顶层、跃层商品房,面积约为340㎡。
4. 施工内容:
1) “一源两末端”冷暖系统。
2) 燃气壁挂炉热源和散热器采暖系统。
3) 中央新风系统。
4) 中央吸尘系统。
5) 被动式冷热水循环系统。
6) 智能家居。
二、“舒适家”系统图

项目设计依据、标准:
《采暖通风与空调设计规范》(GB50019-2003)
《公共建筑节能设计标准》(GB5819-2005)
《通风与空调工程施工质量验收规范》(GB50243-2002)
《建筑给排水规范》(GB50015-2003)
《建筑给水排水及采暖工程施工质量验收规范》(GB50242-2002)
《地面辐射供暖技术规程》(JGJ142-2012)
《燃气采暖热水炉》(GB25034-2010)
甲方提供的建筑平面图及甲方要求。
三、“一源两末端”冷暖系统设计施工
(1)“一源两末端”系统概念图

“一源”即为一个冷热源,利用热泵主机夏季供冷水、冬季供热水;“两末端”指辐射盘管和风机盘管并存的末端系统。两者构成一个以辐射供暖供冷为主,风机盘管为辅的兼顾除湿功能的冷暖系统;辐射冷暖的舒适性显著,并具有对流冷暖的响应时间快,利于即开即用、消除湿热的特征。考虑一、二层使用时间不同,每层各用1台10kW主机。采用高效节能的变频压缩机,单向交流220V供电,对于普通家庭来说,不必另外电力增容。
热泵主机由内机、外机两部分组成。外机由变频压缩机、热交换器、风机、控制器组成,内机由氟水交换器、水泵、控制器组成。外机体形小、重量轻,便于外墙面挂装,而且易损部件少,利于维护;内机可隐藏吊装或挂装,根据末端水系统设计选择相应的低能耗静音屏蔽水泵。内、外机不占用任何居室空间,无室外水管,无需考虑防冻措施。
空气源热泵工况:夏季进出水温度为7℃~12℃,冬季进出水温度40℃~45℃,5℃温差。系统设计时应重点考虑风机盘管与辐射两个末端系统的水力平衡、冷热量计算。由于辐射末端的盘管数量多、间距近,与面层空气间距小、运行时间长,而且长期处于相对低的水温运行容易滋生军团菌。因此,末端系统管路选用五层阻氧交联聚乙烯管,规格为PE-XaΦ10*1.2mm。采用50mm和100mm两种排管间距,达到室内温度场均匀。
(2)“一源两末端”系统计算书

1)根据使用功能划分区域,算出各区域面积。
2)先确定空调冷负荷,配置风机盘管;根据面积及采暖负荷确定水地暖间距和路数,做出配置表。
3)确定一级分集水器和二级分集水器的安装位置,一级分水器定位原则:管路要短,离主机近;二级分水器定位原则:隐蔽安装,不影响家居装修风格。
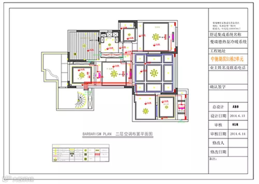
(3)中央空调设计图:


(4)中央空调施工图:

空调施工要在木工开始吊顶前进行,风机盘管安装前,先根据装修吊顶图进行弹线定位,切记盲目吊机。


考虑到设备的管理维护,将所有冷热源设备都集中到设备间,图为二层空调的分水器及管道保温。主机放置屋顶天台上,离分集水器距离近。
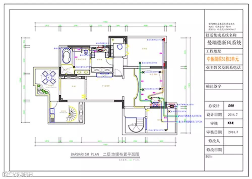
(5)高效水地暖设计:

(6)高效水地暖施工:

施工完成的二级分集水器,红色为供水,蓝色为回水。地暖管穿墙处设置套管,地暖管采用PE-XaΦ10*1.2mm。

安装工人正在进行地暖管铺设作业,采用蘑菇板,施工安装非常方便。

地暖施工完成后,在醒目的位置,贴告示牌,提醒其他工种注意保护地暖管。


地暖管施工完成和地面回填完成,回填厚度2cm。
四、燃气壁挂炉和散热器采暖系统:
壁挂炉热源和散热器末端是最佳“黄金搭档”,两者都具备“大温差小流量”的特性,产品工况完全符合。此种采暖宜选用普通型壁挂炉。散热器系统技术成熟度高,安装快捷、成本低,是南方既有建筑采暖改造最佳的选择。

(1)menred燃气壁挂炉:欧洲原装进口,水路部件采用插栓和卡式连接、一体式点火和检测电极、双阀关闭式燃气阀、德国EBM风机、超大生活热水流量、生活热水预加热功能、人性化信息超丰富显示面板、可加装远程控制面板、户外补偿功能、接口防错插接式设计、电路防水设计等等。
(2)可丽玛散热器:

暖气片+DK=散热器
About DUAL-KHERR
硅氧化物和铝氧化物高温烧结而成,是西班牙CLIMASTAR的杰作。
蓄热和导热技术的完美结合,大大改善了热传导、辐射、对流能力。其独特的结构能加强空气对流和热辐射。
(3)章鱼式布管方式

这种系统是通过集、分水器直接和每个散热器相连,其突出特点是:
A)散热器和集、分水器之间没有其它分支回路和接口。
B)使用小管径的PE-Xa管道,并放入套管中,浇筑在地板中。
C)使用专用接口连接散热器和集、分水器之间的管道,连接更为可靠、施工更容易。
这种系统有很多优点:
A)由于PE-Xa管道的柔软和中间没有接头,使它可以很容易在套管间穿移,或在发生故障的情况下拔出管道。
B)大部分的管道不可见,只有在管道的出口处才可见。

散热器采暖分集水器
五、中央新风系统:
新风设计方案经过多次修改,方案一:卫生间单流向负压型新风机,卧室汉堡阁一体式新风,但是一体式新风不符合中国家庭生活习惯,国外生活习惯窗帘长度到窗台下面一些,新风机可以装在窗台下,而国内窗帘大都是落地式的。方案二:充分利用三层的阁楼空间,做风管机,同时解决空调制冷及新风。但是考虑到风管机室内回风参与循环,易使卧室空气和客厅空气混合,造成卧室空气污染。经过多次讨论采用方案三:一层2个外卫和棋牌室:采用单流向负压型(自平衡)一台;二层客厅、主卧和次卧:充分利用三层的阁楼空间,安装ITREES全热交换新风机一台 ;二层主卫和次卫:分别安装单流向负压型各一台。

风管机的方案被淘汰掉
(1)住宅新风系统设计图


方案三的优点:
1) 室内风管管路短,基本不用过梁;
2) 室内风管管径都是100和75的,过梁比较容易。
(2)住宅新风系统施工。

中央新风主机进出风口必须用软管连接。


新风主机下方预留检修口,应注意不同机型预留检修口的位置不同,主机上贴有防伪码,可供用户查询真伪。
六、中央除尘系统:
(1)除尘设计应注意的问题:
1. 除尘管道要低于阀口,灰尘不易在管道内堆积。
2. 除尘管道与地暖管及地新风管道不宜交叉,除尘管道沿墙边走;为了满足上面两点,二层除尘管道走一层天花内。


(2)中央除尘施工图:

中央除尘施工应注意:采用专业的切管工具,必须清理管道毛刺。

除尘管道与地暖管不宜交叉,除尘管道沿墙边走,除尘管道口径φ50.8mm。

右边为吸尘阀口,阀口距地面40cm。
七、被动式冷热水循环系统 :

(1)被动式冷热水循环系统的特点:
1)冷热水都采取环路供水的方式,主管路无死角,支管(从三通到出水点的管路)尽量短细,以减少死角存水量。
2)热水采用环路供水的方式,具有类似于热水循环的功能,环路中的任何一个水点用水,都会将热水带至各热水点三通之前。每天早晨的第一个用热水的人需要放水等待,其他人在比较集中的时间段内任何一个热水点用水,都可以达到即开即热。
(2)冷热水施工图:

冷热水管剔槽安装,吊顶内的冷热水管都做外保温,减少热量散失。
八、智能家居
采用ELESTA家居智能系统,集成了地暖、空调、新风、电动窗帘、外遮阳、家庭影音、灯光、安防、背景音乐、监控等,通过手机APP实现远程控制。
一层智能开关布置图:

二层智能开关布置图:

九、设计总结:
1. 采暖系统可多样化,应根据热源情况、户型、用户使用情况量身定制。
2. 重视方案设计,好的设计是系统节能的前提。
3. 因地制宜,适合的才是最好的。
来源:曼瑞德集团


