保利五月花 新房装修
今天开工啦~~
卓意设计 匠心工艺
我们美丽的户主大人和小宝贝
敲响了开工的第一锤~
项目介绍
项目地点:保利五月花
项目类型:新房装修
设计风格:简约欧式
设计团队:卓意装饰
设计总监:郭建
主案设计师:李成林
设计助理:甘俊涛
项目说明
本案业主希望通过对新家的精心设计和装修,给家庭带来一个完美的开端。
户主喜欢欧式设计豪华大气又惬意而浪漫的感觉,所以本案设计的设计师通过设计中完美的典线,精益求精的细节处理,希望能给户主带来不尽的舒服触感,致力于达到欧式风格的最高境界——和谐。设计师的设计通过从简单到繁杂、从整体到局部,精雕细琢,镶花刻金都给人一丝不苟的印象。一方面保留了材质、色彩的大致风格,让人感受到传统的历史痕迹与浑厚的文化底蕴,同时又摒弃了过于复杂的肌理和装饰,简化了线条。将怀古的浪漫情怀与户主对生活的需求相结合,兼容华贵典雅与时尚现代,反映出设计师个性化的美学观点和文化品位。
卓意装饰有幸负责了朱先生家的新房装修。在此,我们将为您连续介绍此次设计的全过程。
场地情况
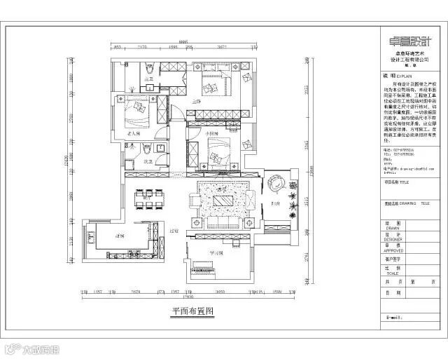
本项目位于武汉市的一个住宅小区,保利五月花。设计场地面积约为150 ㎡,四室两厅两卫。
设计要求
让人感受到优雅与品质
精致、有品位
满足需要的所有功能,并使空间的格局合理
效果图展示
客厅
主卧室
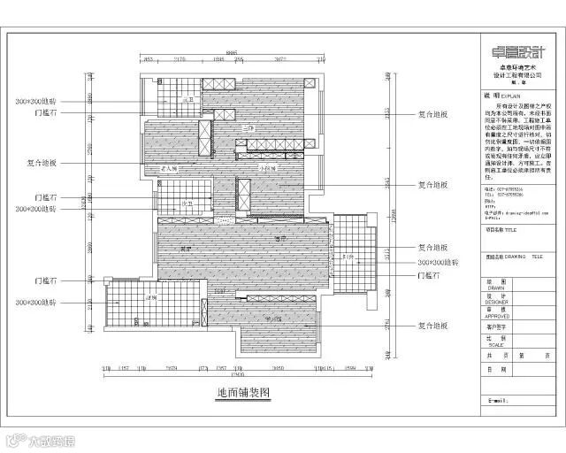
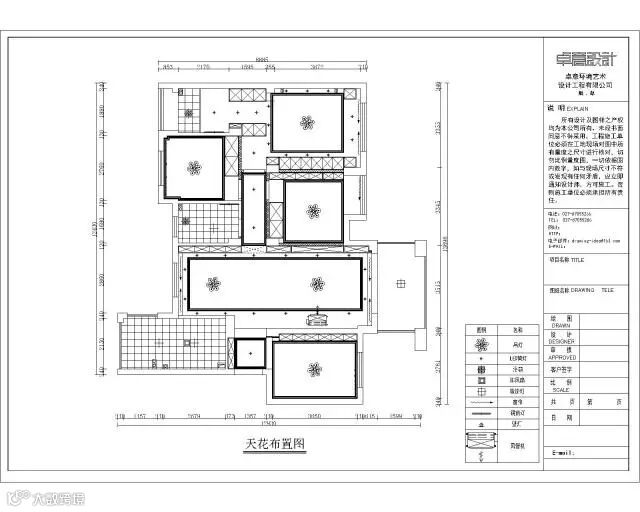
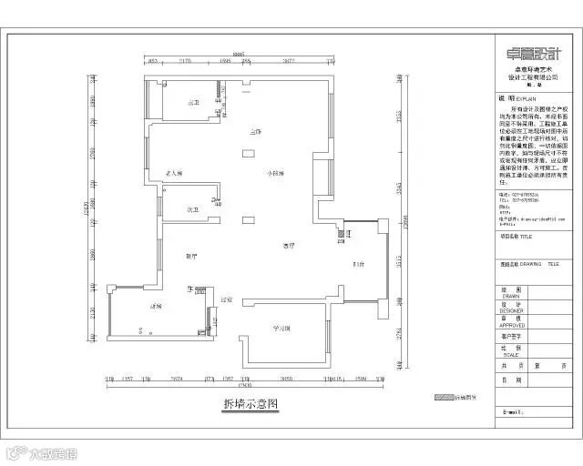
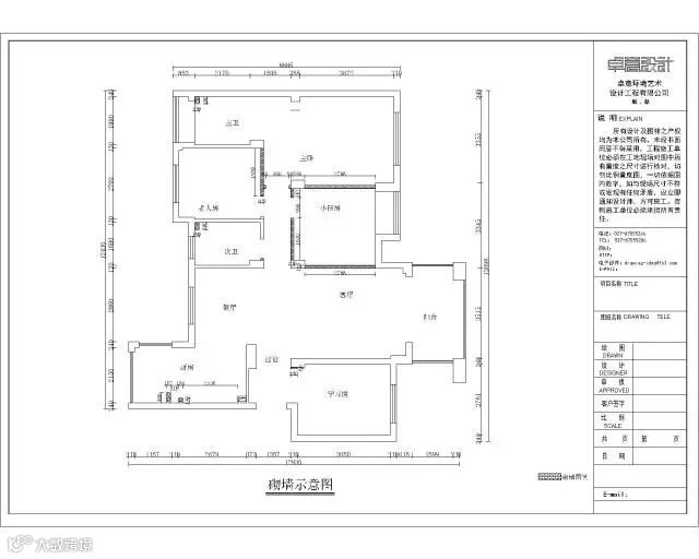
平面图展示
如果你也想拥有这样一间温馨而舒适的家
请联系我们
武汉卓意环境艺术设计工程有限公司是是一家
以室内设计与装修为主,同时涉及景观设计的公司,
我们致力于将专业的设计理念和客户的需求相融合,
将时尚的设计风格与文化的交融
广泛的体现在设计作品之中。
人性化的功能设计是卓意设计的基础,
个性与专业性是卓意设计的灵魂,
诚信与务实是卓意设计服务的宗旨。
联系电话 Tel:18186458823(王总监)
固定电话:027-87666658
咨询QQ:16888826
详细地址:湖北武汉市光谷 鲁巷珞瑜路646号 华乐大厦二楼整层

