★ 住宅室内空间精细化设计指引--厨房
目录:
一、厨房空间储藏量及内容构成
二、厨房空间储藏要点及操作流程
三、厨房内家具人体功效学
四、厨房储物位置分配范例及详解
五、厨房内储藏实例分析
一、厨房空间储藏量及内容构成

二、厨房空间储藏要点及操作流程
厨房储藏要点:

厨房操作流程示意图:

三、卫生间内储柜人体工效学
(一)、人体活动范围与柜体、柜门的关系


(二)、储藏空间的基本尺度
厨房储藏空间的各组成部分的尺寸应根据人体尺度、活动范围及相关的设备的尺寸要求来确定


(三)、中部柜的有效利用
错误示例:
①吊柜底面标高较小时易造成操作时的碰头和视线遮挡

②上部吊柜柜门宽度过大或为玻璃门时,容易忽略,造成开启时碰头

正确范例:
①台面进深为700mm时中部柜底面标高可降低,以增大储藏量:

②台面进深为600mm时中部柜底面标高需升高,以防视线遮挡和碰头:

③厨房内径较小时的单列厨房布置:

④厨房内径有富裕时可增加窄台面:

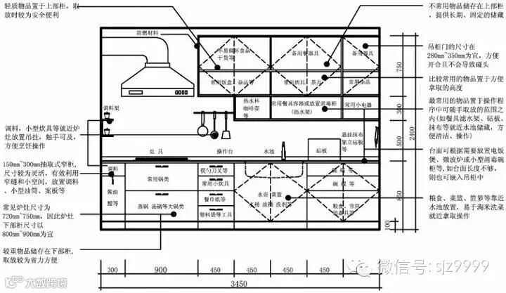
四、厨房储物位置分配范例及详解
厨房储物位置分配范例:



范例详解--各部位设计要求综述:

调料柜、中部柜:


抽屉、中部墙面区:


吊柜及大型抽屉:


水池下部柜:


日本橱柜(上部柜和电器储藏)储藏案例(松下电工)
上部柜(可自由组合):



家电的储藏:

日本厨柜(壁柜)储藏案例(松下电工)




★ 住宅室内空间精细化设计指引--卫生间
目录:
一、卫生间内可利用的储藏空间位置
二、卫生间内储藏物品的分类
三、卫生间内储柜人体工效学
四、卫生间储柜储藏功能分区
五、卫生间储柜类型分类
(1)、储藏要求
卫生间是住宅中重要的功能空间,随着社会的发展,人们对卫生间的功能需求已经不仅仅只是如厕这么简单,同时还需要具备洗澡、更衣、洗衣等功能,这就需要一定的储藏空间来辅助完成这些要求。
但卫生间内的空间一般都比较狭小,能利用的空间非常有限,这就需要我们细致的考虑到人们的各项需求,充分的利用各种储藏空间来设计卫生间内的储藏。
卫生间内可以利用的基本储藏位置有:
1、洗手池台面空间
2、洗手池上方空间
3、洗手池下方空间
4、座便器水箱上方空间
5、门后空间等区域
6、其他一部分细碎的边角
空间也可以为我们所用,例如管井中的夹缝位置和下部柜中的踢脚线位置等区域。
下图分析标识了六种典型卫生间布置形式下的储藏空间位置形式。
(2)、典型卫生间储藏位置图示

二、卫生间内储藏物品的分类
分类1、

分类2、

三、卫生间内储柜人体工效学
●人活动高度的分区
根据人体动作行为和使用舒适性及方便性,把柜体高度划分三个区域
第一区域高度为650-1850mm
是以人肩为轴,上肢半径活动的范围,是存取物品最方便,使用频率最高,也是人视线最易看到的视域,因此一般存放较常用的物品,例如洗漱用品、护肤品、化妆用品、梳子等物品。
第二区域高度为650mm以下
是地面至人体手臂下垂指尖的垂直距离,存取不便,必须蹲下操作,因此一般存放水桶、大瓶洗涤剂等物品。
第三区域高度为1850mm以上
是人视域范围之外的位置,观察和存取不便,需要登高取物,并且由于1850mm以上的空间较大,因此此处一般设计为较大的单层储柜,一般可放置轻型的大型物品,例如整包的备用手纸等物品。



四、卫生间储柜储藏功能分区

五、卫生间储柜类型
卫生间内储柜形式根据储藏位置的不同可以分为侧边柜、洗手池下方储柜、镜箱、洗手池旁边台面下的抽屉等几种不同形式。根据人机工效学中的要求和使用舒适度的考虑,在此将不同形式的储柜做了较为详细的物品储藏分配图。

侧边柜:

洗手池下方储柜:
①柜式和下空式
柜式:



下空式:



②抽屉式:



镜箱:

在中小户型的卫生间中,使用镜箱既可以起到使用方便、增大空间感的效果,又可以更加有效的增加储藏量。在卫生间内设置镜箱时应根据不同的卫生间面积来设计采用不同的镜箱形式,例如,当卫生间面宽较小时,就只能做一面镜形式的镜箱,当面宽稍大时就则可做两面镜形式的镜箱,当卫生间空间较充裕,面宽较大时则可做成三面镜的镜箱形式。
洗手池旁的台下抽屉:

洗手池旁的台下抽屉的设计形式,根据不同的需求可以分为一层式、两层式和三层式等几种形式。
抽屉分格时应注意,上中下三层抽屉高度的设计,根据人体工效学的原理,应是由浅到深的顺序来排列的。
第一层最浅,用于放置剪刀、指甲刀、眉夹等常用的小物品;
第二层较深,可以将备用毛巾或其它物品放置在此;
第三层抽屉最深,一般用来放置洗衣粉、大瓶洗衣液、消毒液等物品。
转自搜建筑
欢迎加入“中国家装行业创新群英会”交流平台,免费获取家装行业创新资讯及行业资源。QQ群:313495253

长按二维码识别关注

