气溶胶自动灭火系统
系统原理及结构

图1 气溶胶灭火系统工作原理图
系统灭火机理

燃煤火力机组电缆夹层改造技术措施
S型热气溶胶灭火装置


图2 S型热气溶胶灭火装置结构示意图
电缆夹层火灾防护区改造方案

图3 电缆夹层火灾防护区改造接线方案

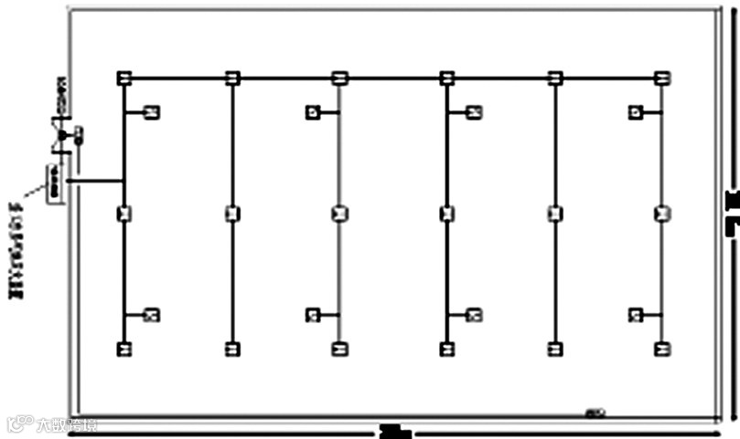
图4 1号机组电缆夹层控制系统平面布置图
现场试验

图6 气体灭火控制器


雷纳安全气溶胶自动灭火系统
系统原理及结构

图1 气溶胶灭火系统工作原理图
系统灭火机理

燃煤火力机组电缆夹层改造技术措施
S型热气溶胶灭火装置


图2 S型热气溶胶灭火装置结构示意图
电缆夹层火灾防护区改造方案

图3 电缆夹层火灾防护区改造接线方案

图4 1号机组电缆夹层控制系统平面布置图
现场试验

图6 气体灭火控制器

