

现代简约
CONTRACTED HOME




以简洁的表现形式
来满足人们对空间环境的
情感、本能和理性的需求



餐厅▲
餐厅与客厅隔而不断,圆桌的设计可以腾出更多空间,边柜设计除了摆放装饰品装饰空间,还可以做到储物功能,高挑空间给人更宽敞的视觉感。

厨房▲

书房▲

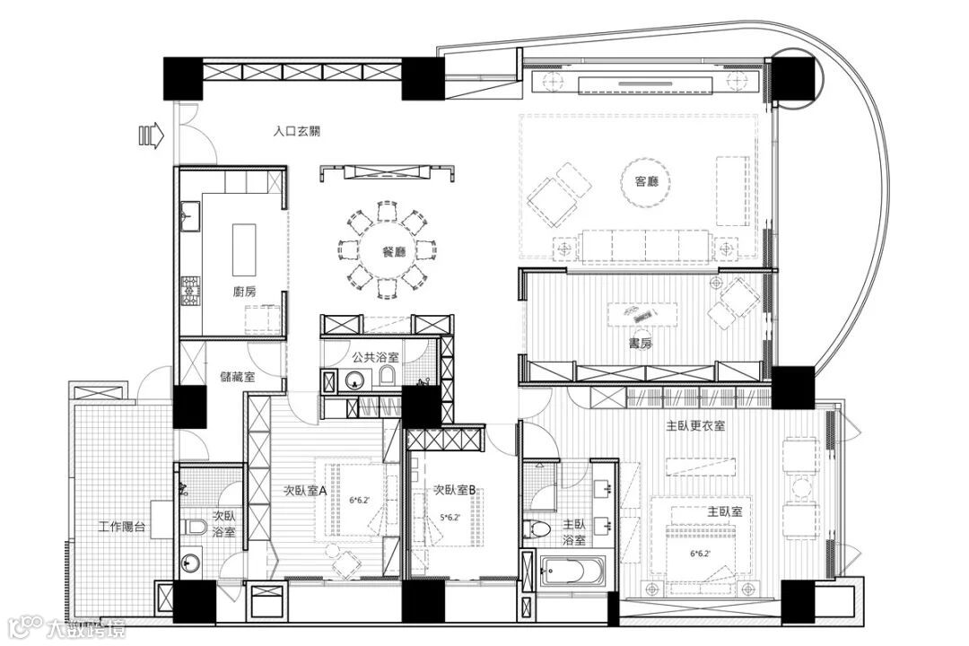
平面图▲
往期推荐
—— 全案高端定制 · 智享健康生活 ——

新居缘集团总部

现代简约
CONTRACTED HOME




以简洁的表现形式
来满足人们对空间环境的
情感、本能和理性的需求



餐厅▲
餐厅与客厅隔而不断,圆桌的设计可以腾出更多空间,边柜设计除了摆放装饰品装饰空间,还可以做到储物功能,高挑空间给人更宽敞的视觉感。

厨房▲

书房▲

平面图▲
往期推荐
—— 全案高端定制 · 智享健康生活 ——
