业主要求非常高,但因为工作较忙不想在装修上操太多心,需要找一家能真正让他让放心的家装公司,很看重设计师的专业水平,在了解新居缘装饰后对各方面都很认可,业主在与总设计师陈炳旭经过一番交谈后特别满意,后期也就很顺利地达成了设计上初步的认可。
陈炳旭
项目总设计师
奢华,是每一处细节都追求极致
高贵,是从里而外的自然流露...
本案奢华欧式设计,将宏伟生动热情奔放和纤巧华丽都融入家居空间,把雍容优雅,带进人们的生活。奢华的软装、精致的雕花线条、硕大的水晶吊灯,整个风格豪华、富丽,充满强烈的动感效果,奢华欧式享受品质生活。
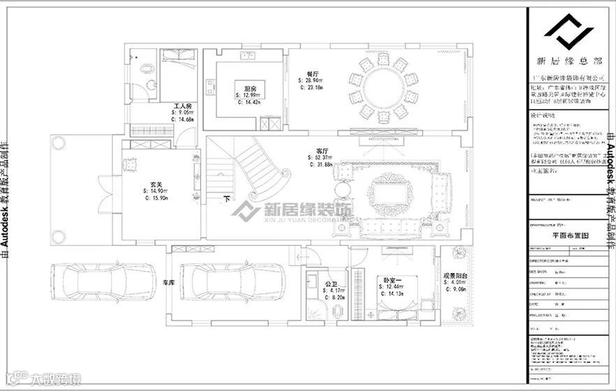
一层平面
效果图




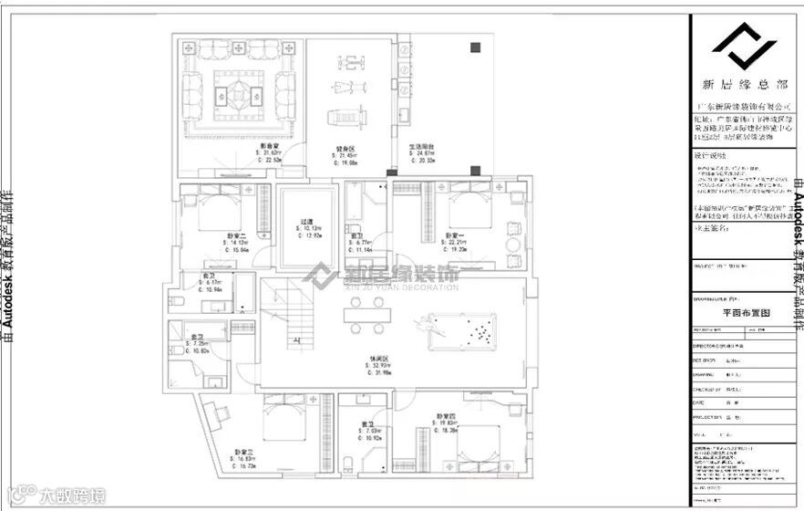
二层平面


负一层平面

▲负一层影音室

▲负一层休闲区

项目总设计师
陈炳旭 / 总设计师
专注别墅设计: 13年
毕业院校: 广东工业大学 环境工程设计 理学士
进修院校: 广州美术学院
设计理念: 为客户设计一个心灵渴望的空间和一种更好的生活状态
擅长风格: 轻奢、中式、现代、新中式、欧式、美式、北欧...
擅长领域: 大型豪宅、商业空间、别墅空间整体规划
主要案例: 保利紫山别墅、南海碧桂园别墅、顺德碧桂园别墅 、山水庄园别墅、南国桃园别墅、依云曦城别墅、雍景湾别墅、千叶花园别墅、丽日天鹅湖别墅、保利云上别墅、碧桂园翡翠山别墅、大沥3200方传世府邸、里水9800方家族庄园
所获荣誉:
ICAD注册高级室内设计师
新居缘装饰集团设计总工
中国区优秀设计青年,环球鼎立集团
新居缘装饰集团 十大明星设计师
2012年广东省“岭南杯”室内设计职业技能大赛 住宅类十佳青年设计师
2014年设计--私享家 星河第三空间第四届室内设计精英赛样板房落地奖
2016年第四届亚洲室内设计竞赛 最佳人性化奖
2017年大金空调室内智能化控制系统设计 3D方案类银奖
2018年浪鲸杯室内设计大赛 年度金牌设计师
2018年广东国际设计周 红棉中国设计奖

—— 全案高端定制 · 智享健康生活 ——

