
旧房翻新,业主选的是半包,所有的材料全是环保的。因为业主和她老公都从医,所以对安全卫生的要求很高。风格自然也是要清新的,师傅们手艺都不错,成品特别漂亮。
DATA
【业主】李女士
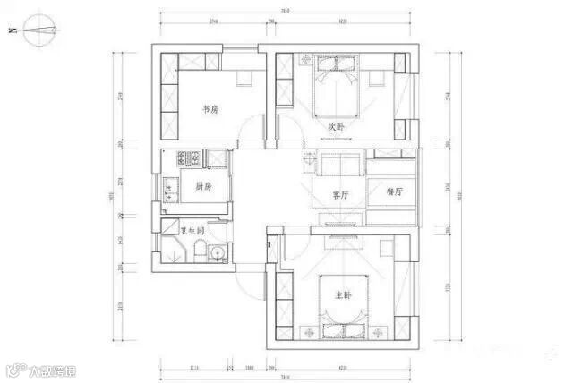
【房型】二室一厅【面积】80㎡
【工程】旧房翻新,打造美式田园风【费用】5万(半包/硬装)

房子本身面积不大,划分出两个卧室、一个书房,客厅自然没有多少面积。将餐厅、客厅一体设计,增加开阔感。顺应主人的要求,将原先的晾晒阳台去除,做成绿色的卡座,成为家中完全聊天晒太阳喝茶的休闲场所。


用玻璃推拉门将厨房与客厅隔开,老人在家烹饪煎炸,油烟都不会影响到其它区域,同时通透的玻璃使得小厨房有了开放式的视野。米白色整体橱柜,搭配酱红色瓷砖,尽显美式田园风情,设计师挑选的微波炉架子是不是也美到爆?


厨房隔壁便是浴室,用大玻璃淋浴房做成干湿分离的模式,原型的台盆现代感十足,上方的梳妆镜其实暗含收纳功能喔(门是可以打开的)。


主卧没有粉刷涂料,而是挑选了业主心仪的墙纸,搭配黑色原木床具,绿色窗帘、白色窗帘,是不是超级文艺?最喜爱的还是将阳台做成飘窗的形式,可以懒懒的窝着晒太阳。飘窗下面设了隐形的收纳柜,同时连带做了一个梳妆台。


业主女儿的小房间,当然要布置得美美的。同样做了飘窗的设计,沿着墙角的白色整体收纳柜,可以摆放很多东西。同时做了一组书柜,左侧靠墙是一张书桌,宝贝放学回家可以在自己的小房间学习、看书、休息。



因为业主夫妻两的工作,家中必须有个书房。于是顺应要求做了简约的设计,白色的长条形书桌,业主和老公两人各自办公,互不打扰。靠墙的整体衣橱,相当于家里的一个小小衣帽间,收纳性很强。






微信ID:鸿邦漆
长按左侧二维码关注