
1
2今年,联发臻境的合院出来之后,我身边的朋友都产生了刷卡的冲动,这里就不再废笔墨,有兴趣的盆友可以查看往期推文(猛戳了解)。
我以为联发臻境之后兴宁东再也没有这样的合院了,没想到,又一位选手跑步入场——北投荷院,说实话,我从没想过,国企也会这么拼。
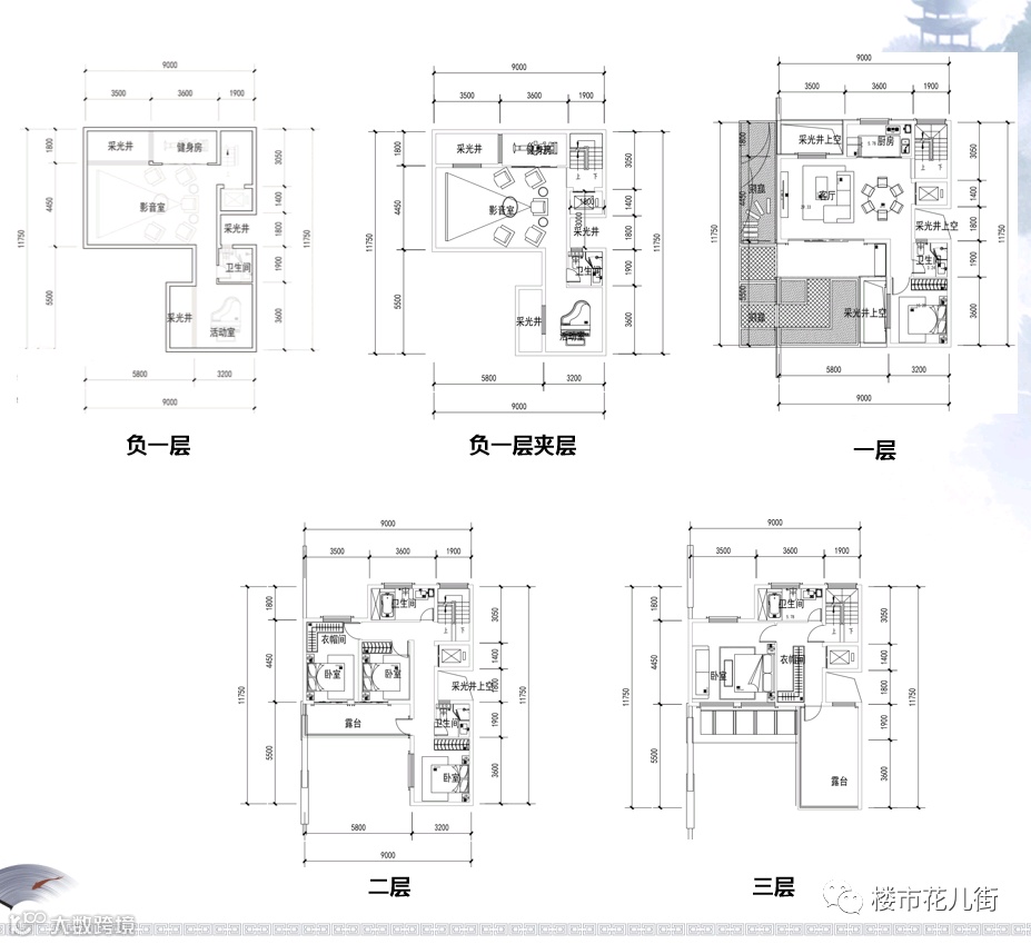
甩一张非官方提供的合院户型图,你们感受一下↓
北投这次用了中式屋顶,但是户型的炸裂已经让你忽视了它的颜值。看北投合院的这个院子,据说赠送率达到300%左右。目测又是一款十分有竞争力的合院产品。
此外,北投荷院88-143㎡小高层也很惊艳,做到了板式结构设计,两梯两户,N+1户型格局,户户南北通透、多阳台。
兴宁激烈的市场,除了让我们看到了联发和北投经典的院子,更让万科把有专利的洋房产品都带到了兴宁东。万科第五园,可以说是万科最花心思去研究和打磨的产品。
看看万科第五园的洋房,你见过137的户型,何时有过这样夸张的尺度和阳台?

比如国庆前,联发臻境推出的一款位于6层洋房的顶层产品,107㎡的顶复,朝南8.65米宽的超大阳台,面积是全赠送的。

然后,surprise在不上人的屋顶,当然这张图是非官方的。我曾经带着朋友去看过,如果交房后,屋顶的空间可以用上,将拥有一个总面积达到79㎡,进深3.7米,面宽达到14.2米的大阳台。

朋友圈流出的非官方装修图
月初,花儿姐在嘉和城踩盘,即便嘉和城的大平层和芳华里已经看过几次,又经历过兴宁东长达大半年的产品迭代和冲击,嘉和城的产品依然很能打。在南宁今年改善市场大爆发的时候,也很有竞争力。

(175平方米四房)
嘉和城,广西现象级“神盘”,连续多年广西销冠,曾经的销售量代表广西冲向全国,它本可以在这样的光环下继续卖,但它不想这样“平平无奇”:2019年又推出了嘉和城芳华里退休乐活社区,主打“退休”概念,主要为55-65岁之间 的退休老人,提供健康的、多彩的退休生活。这在南宁是首家也是目前为止的唯一一家。
3
花儿 · 说
实际上,你会发现,今年的兴宁东,产品种类齐全,各种独栋、联排别墅,洋房合院顶底复,高拓面积的高层产品,琳琅满目,应有尽有。
写到这里,花儿姐突然意识到,我竟然用了形容超市货品丰富的词语。
但不得不承认,单从产品上来讲,现在的兴宁东,简直就是南宁楼市的“产品超市”和“产品研发中心”。
在这里,市场竞争在这里白热化,每一个开发商都求生欲满满,但是从一个自媒体人的角度看,我似乎感受到了百花齐放、百家争鸣的向上力量。
所以,如果今年要买房的盆友,可以考虑把兴宁东放进购物车,如果你到兴宁东看看,我想你一定被产品惊艳到从而产生有清空购物车的冲动,因为不管是产品还是价格,兴宁东都有超级Surprise!
除此之外,兴宁另一个惊喜,来自于年底即将通车的合坡路。这条路的通车,让兴宁东和凤岭北的距离将大大缩短。有产品、有价格,有交通支撑的兴宁东,会不会迎来新一轮的价值爆发?拭目以待吧!

▼
在花儿街,你将获取更有价值的信息、更合理的购房建议

声明
1.本微信公众号发布的内容,是本公众号运营者的个人观点、分析与判断,花儿街务求客观真实,但无法涵盖所有信息,所述内容仅供参考,不作为买卖指导。
2.内容如有侵权或失实的表述,请联系我们,将会依法核实并处理。
3.如仍有疑问,欢迎后台留言单独咨询。
4.部分文章的部分图片来源于网络,如有侵权,请联系我们。
5.花儿街原创内容,转载请注明出处

