
设计师呼应屋主需求,为他们创造充满光线、宽敞的公共空间,家人有更多时间在这里互动,而非一回家各自待在卧室,失去家所应有的温度,原来透过格局改造,也能加深情感连结。
一般家庭都希望家中室内坪数越大越好,
居住在木栅的屋主却反其道而行,
将客餐厅的地坪退缩,让出一块地成为阳台,
光看数字会觉得活动区域变小,
实际上透过开放式规划,
运用全开式折门,阳台也能是室内一部分,
进而创造连结性,同时因为有了阳台,
老屋本身的采光和通风也一并被改善。

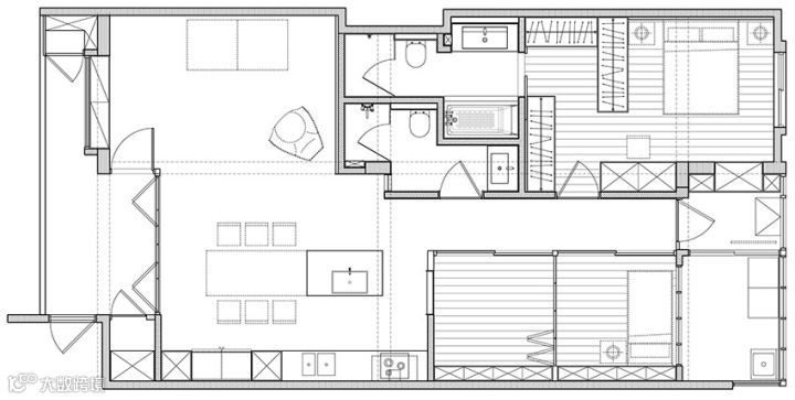
房屋基本资料
坐标:台北木栅
屋龄:30-40 年
室内坪数:31 坪
格局:3 房 2 厅 2 卫
居住人数: 2 大 2 小

△户型图
屋主需求
公共空间能规划成较大的开放式场域
创造良好采光与空气流通
为小朋友预留弹性利用的卧室空间
购置心怡的电器产品与家具
1. 客厅设计
跳脱传统沙发座椅思维,采用吊床、皮革单椅与两人座沙发的组合,客厅不再单调死板,而且因为内缩室内地坪,创造阳台面积,采光与通风都更好,即使一整天都待在客厅也不会觉得无趣,光是吊床就能让孩子欢乐一整天。


2. 餐厅设计
使用活动式木头餐桌,增加灵活弹性使用,平日可以坐 4 人,若是有朋友拜访,只要换个方向,便能成为 6 人桌,比起把餐桌固定更加便利!

3. 厨房设计
不锈钢中岛搭配一字型人造石料理台的组合是最方便的厨房规划!可以在中岛准备一些咖啡、三明治简易的料理工作,后方则是实际烹调料理区,再加上烤箱、微波炉等家电,机能规划完善,不用是大厨也能出好菜。


4. 主卧房设计
不希望家人一回家便直奔卧室,因此保留公共空间的宽敞维度,主卧室仅有睡眠或是睡前阅读功能,加入床架、小边桌与照明灯,特别让墙面大面积留白,营造舒适毫无负担的睡眠环境。

5. 小孩房设计
规划新家时只有一位小朋友,另外一位则还在妈妈肚子里,考虑到短期内不会有两位孩子单独使用卧室的状态,于是串连两间小型卧室,中间以不锈钢折门为界线,随时可收起形成宽敞开放式空间,降低卧室狭隘感。另外设计师以不锈钢小冰柱玻璃取代实体墙壁,产生透光不透影效果,依旧保有隐私性,让卧室采光更好。

6. 浴室设计
呼应整体居家简约质感规划,两坪浴室和客厅地面一样使用卡多泥材质,因为本身不防水,多加了一道防水手续,地板则是选择木纹砖,在一片灰色的彩度中营造出温暖氛围。


7. 阳台设计
这间快要 40 年的老屋原本没有阳台,为了增加采光以及改善室内公共区域视觉感受,因此决定创造类似斧头形状的阳台,让原本地坪退缩约 1 米 8(最宽的地方),透过空间改变,接触到的不再只有墙壁,而是更多与户外连结的阳光、绿景,同时也能创造良好通风环境,而且进出阳台的通道,采用可以全部打开的折门,随时能放大家中客厅区域。


8. 收纳规划
从阳台进入至公共区域,很难看到收纳踪跡,设计师主要利用樑下或隐密的藏于墙面,譬如说玄关入口便有木作收纳柜,除了鞋子还能摆入屋主的露营用具,小孩房也有整面墙的收纳柜。此外位于走道底部,特意增设独立衣物间,如同欧美居家,可以在小空间里整理刚洗好衣物、烫衣服,甚至收纳较为大型的电器。

9. 建材挑选
为了展示空间质朴效果与家的温度,选择低反光建材,能把阳光抓住进而变得柔和,樑柱维持本身水泥质感,阳台、客厅地板以及浴室壁面材质使用卡多泥,呈现无缝隙质感,类似盘多摩,不过硬度较硬,家具摆放在地面不容易有凹陷与刮痕产生,价格也稍稍便宜,但就是色彩选择仅有灰色系与白色。

10. 家具配置
主要生活的客厅、餐厅与厨房连结而成为开放式区域,巧妙将收纳隐藏起来,家具变成灰色区域里明亮的主题,特别是台湾屋主少用的吊床,满足孩子与大人童心未泯的状态。也因为有了吊床,客厅只需要再多放一张两人座沙发与皮革设计单椅,增加不少活动地坪。

11. 色彩搭配
简单舒适的生活空间,其实颜色如何呈现很重要,为了让视觉回归宁静感受,大量运用质朴建材,展示材质本身的原色调,也因此空间中的天地壁,绝大部分都为灰或白等低彩度色系,适时加上家具与木作收纳柜的色彩点缀配置。

(声明:以上内容来源网络)

强大,只因我们一直在行动!
推荐阅读
2.“整装·家+”战略起航 PINGO国际持续领跑2017整装市场
美星装饰,PINGO国际集团旗下品牌成员企业,创立于2000年,集设计、施工服务于一体,致力于满足轻熟精英人群对于高品质、潮流风尚的家装需求,提供全屋一站式整体家装设计装修服务,同时涉及别墅、办公楼、商铺、酒店等多个领域的装修服务。
PINGO国际官网:
http://www.pgdec.com
拼狗在线商城:
http://www.pgdiy.com
天猫官方旗舰店:
https://pingo.tmall.com
美星装饰官网
http://www.gzmxdec.com
咨询热线:4008922009



