
项目地|Project location : 贵州(黔)
设计方|Designer: 喜得旺装饰
项目面积|Project area:1200㎡
制图公司|Drawing unit: 光影(合肥)装饰设计有限公司




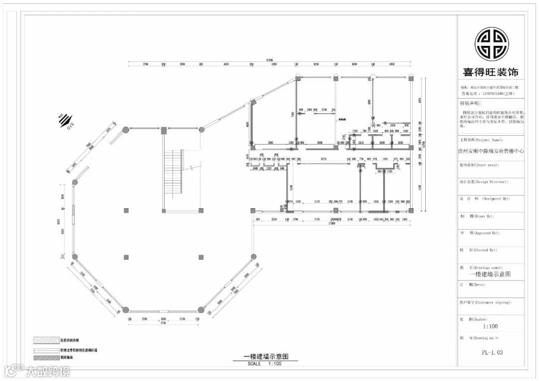
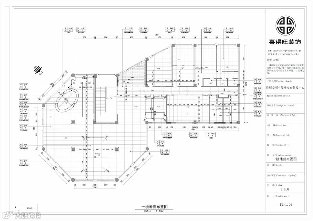
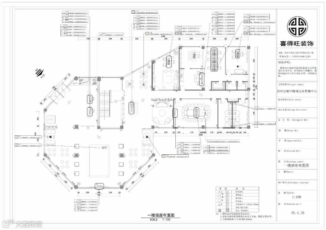
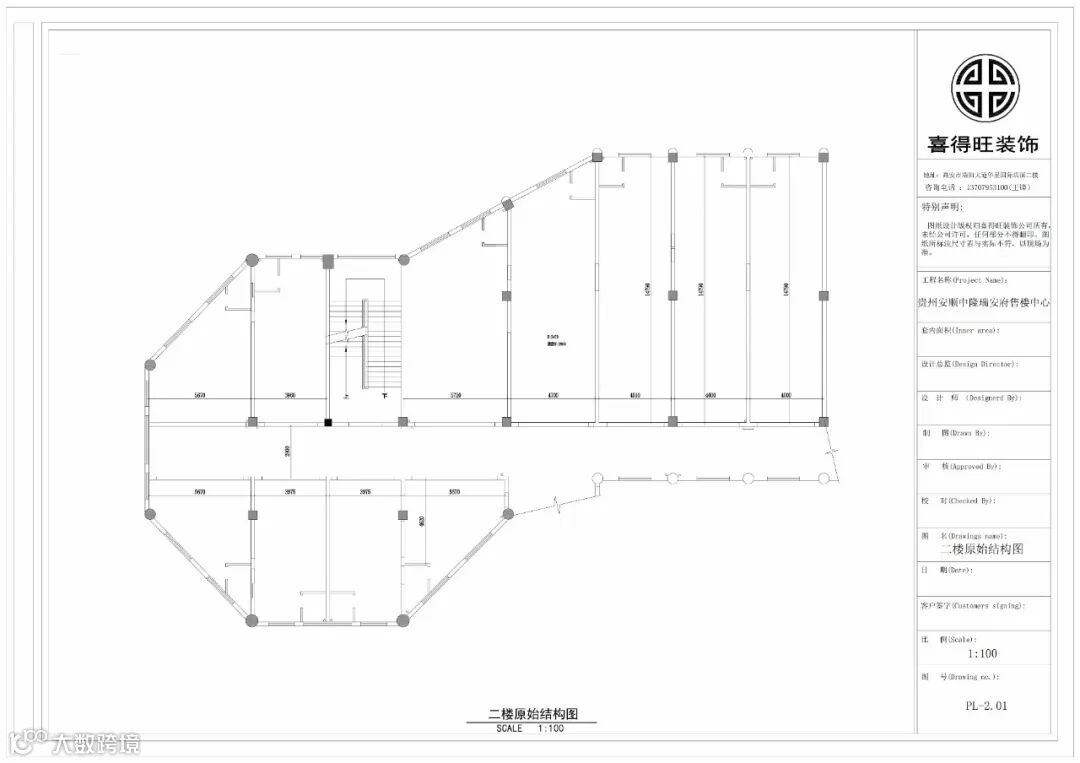
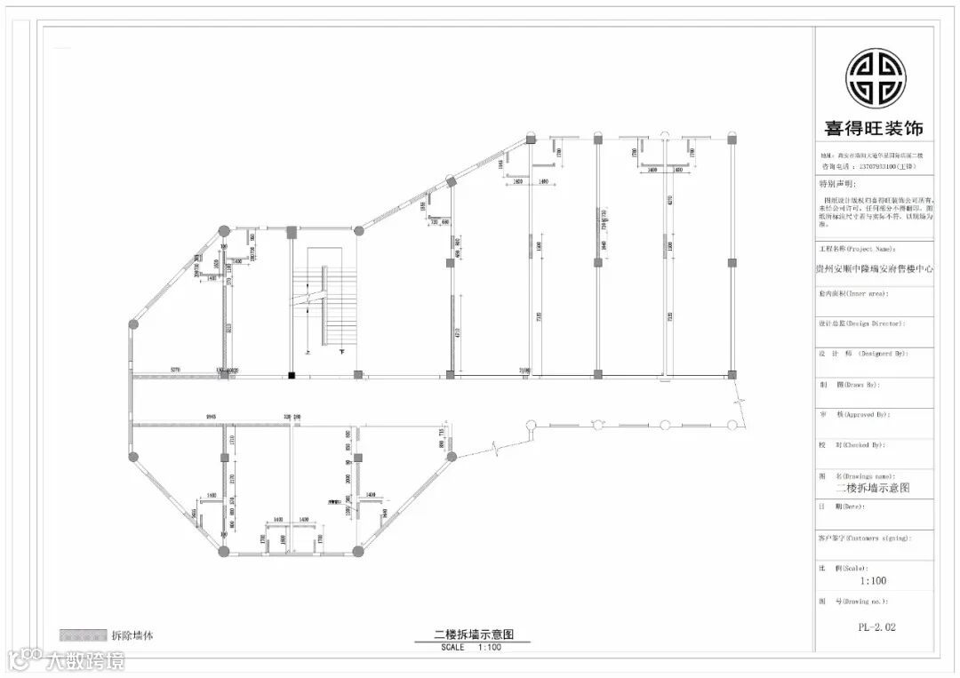
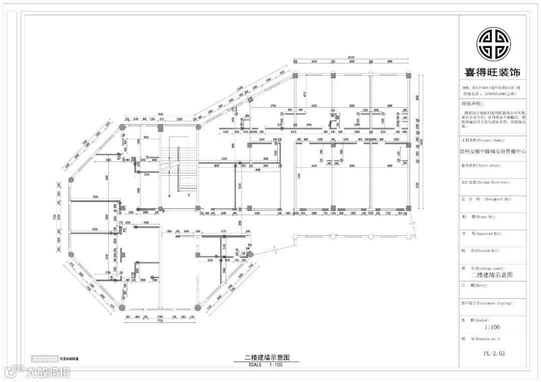
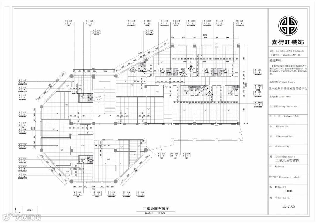
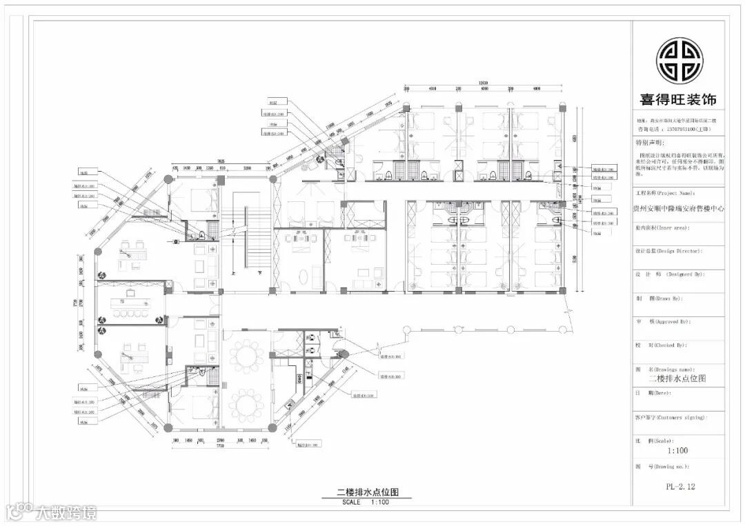
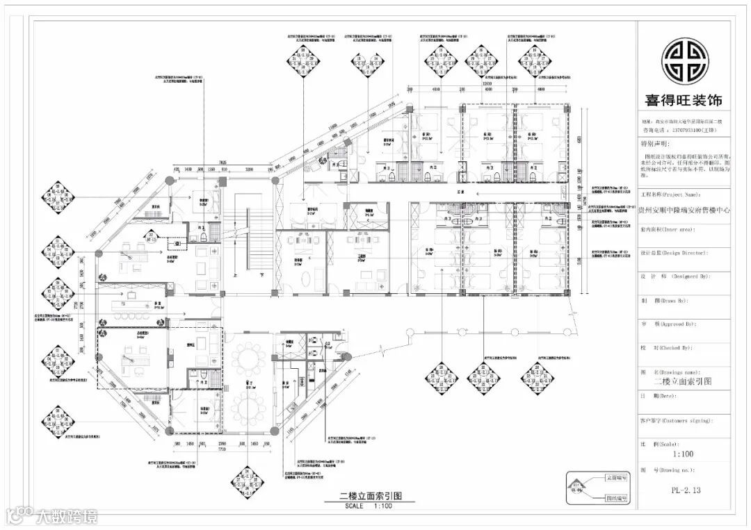
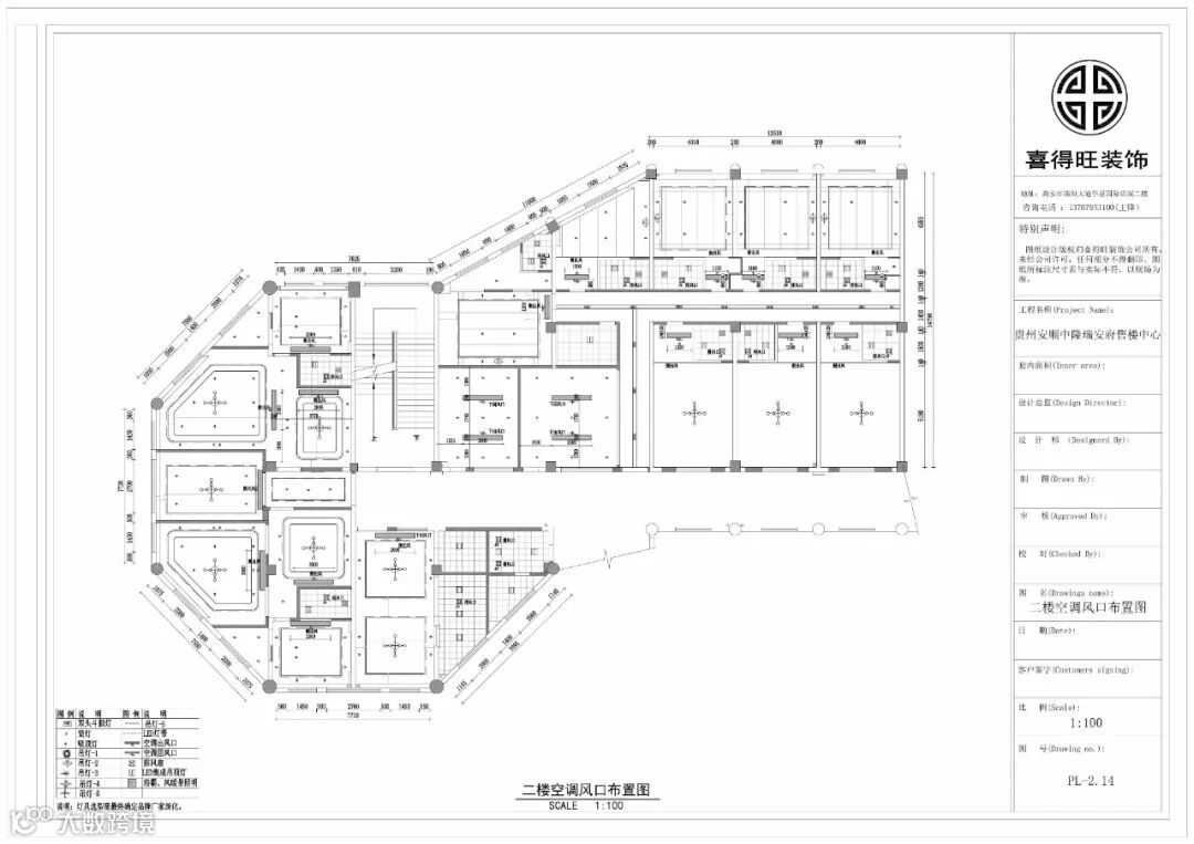
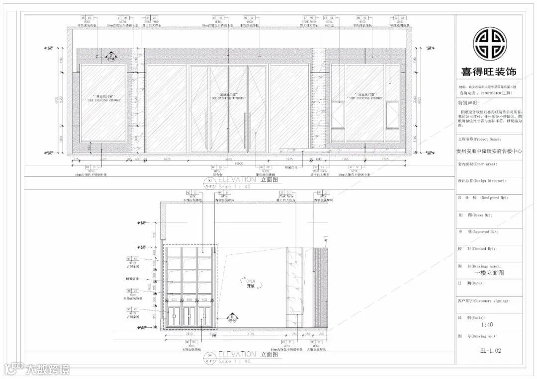
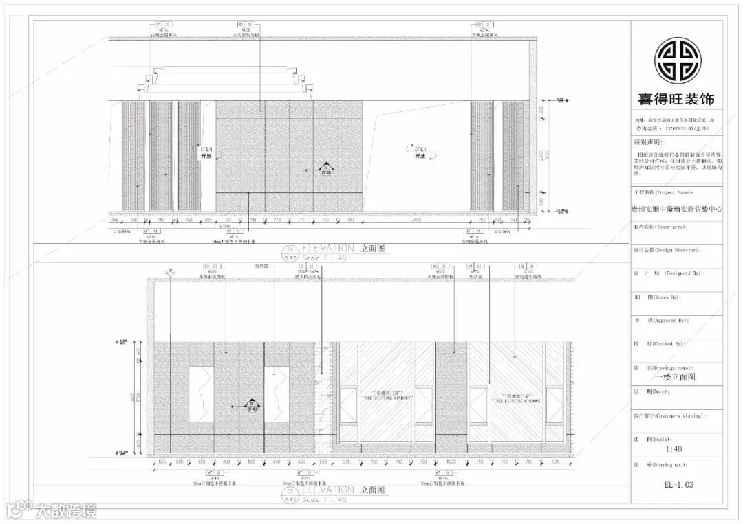
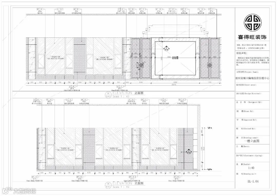
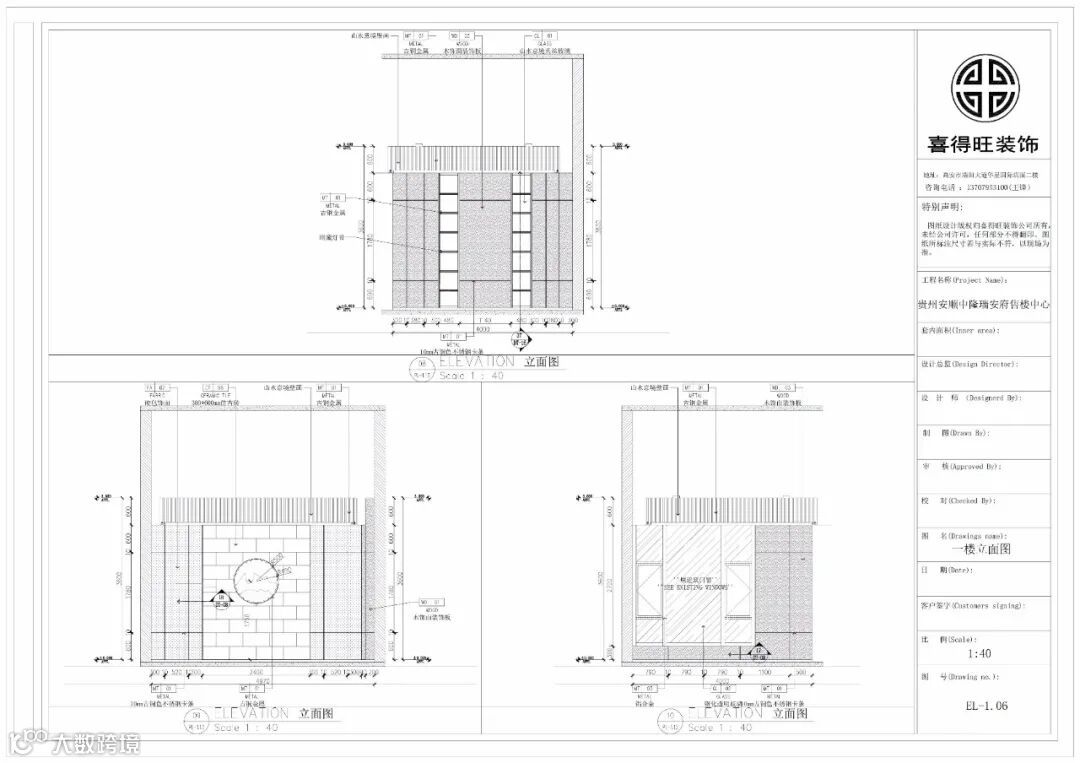
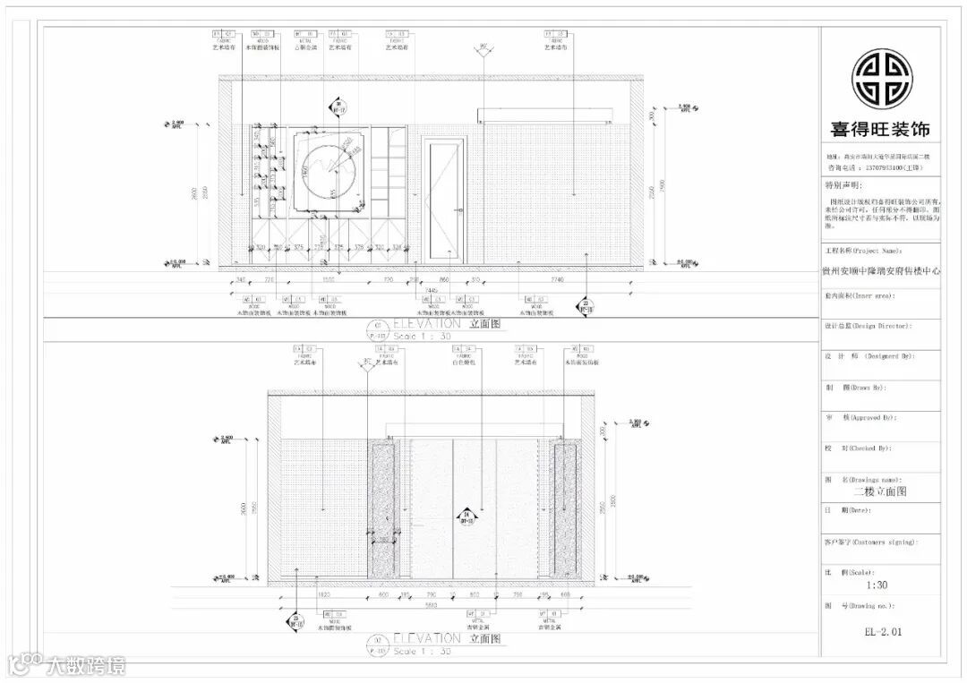
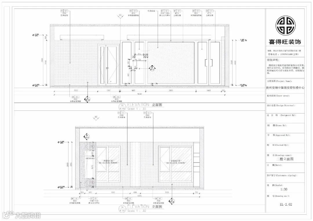
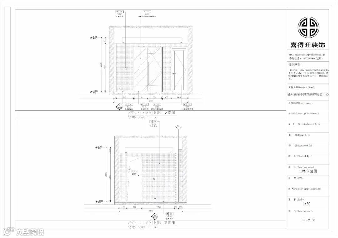
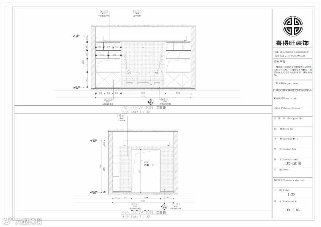
[平面PLANE]




























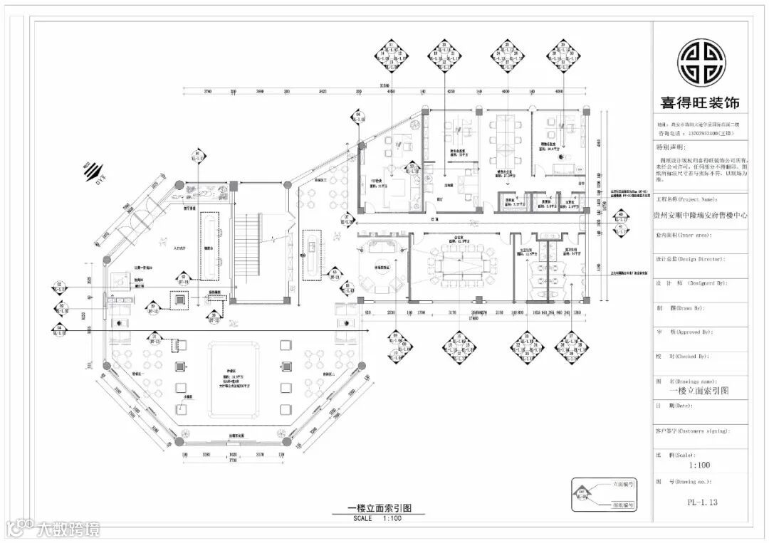
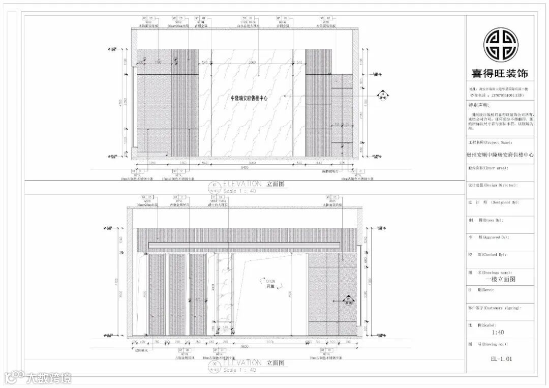
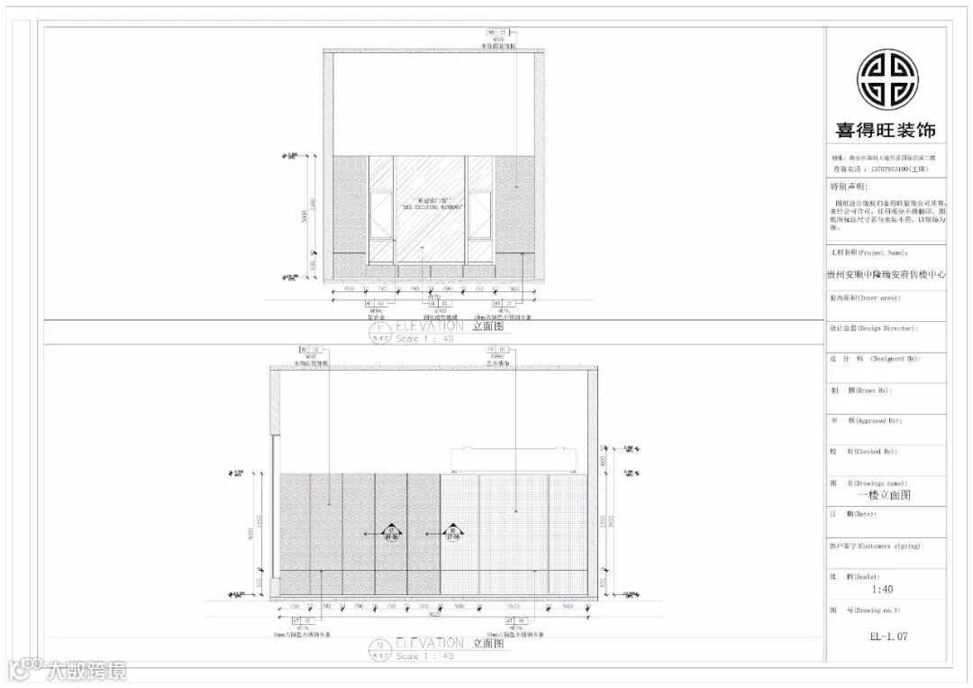
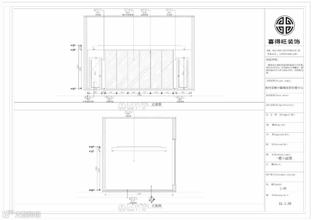
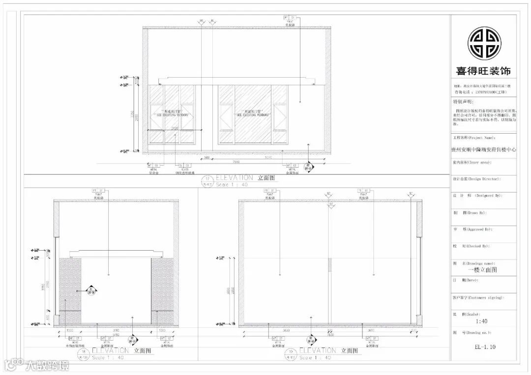
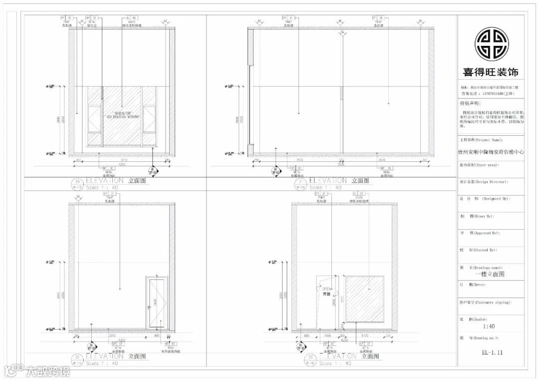
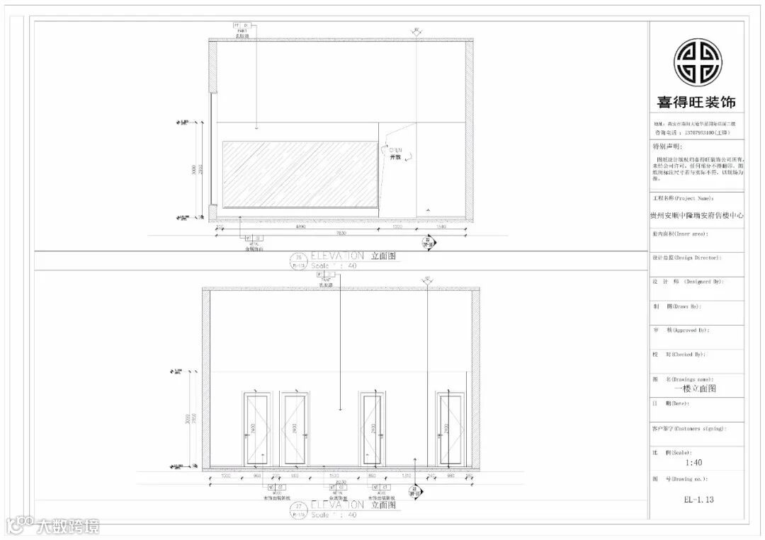
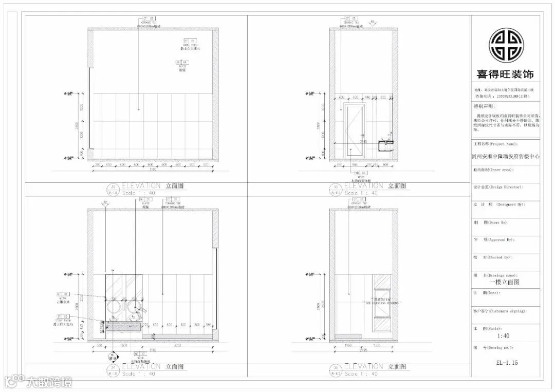
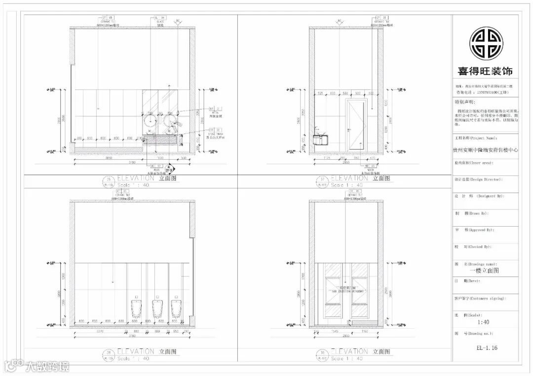
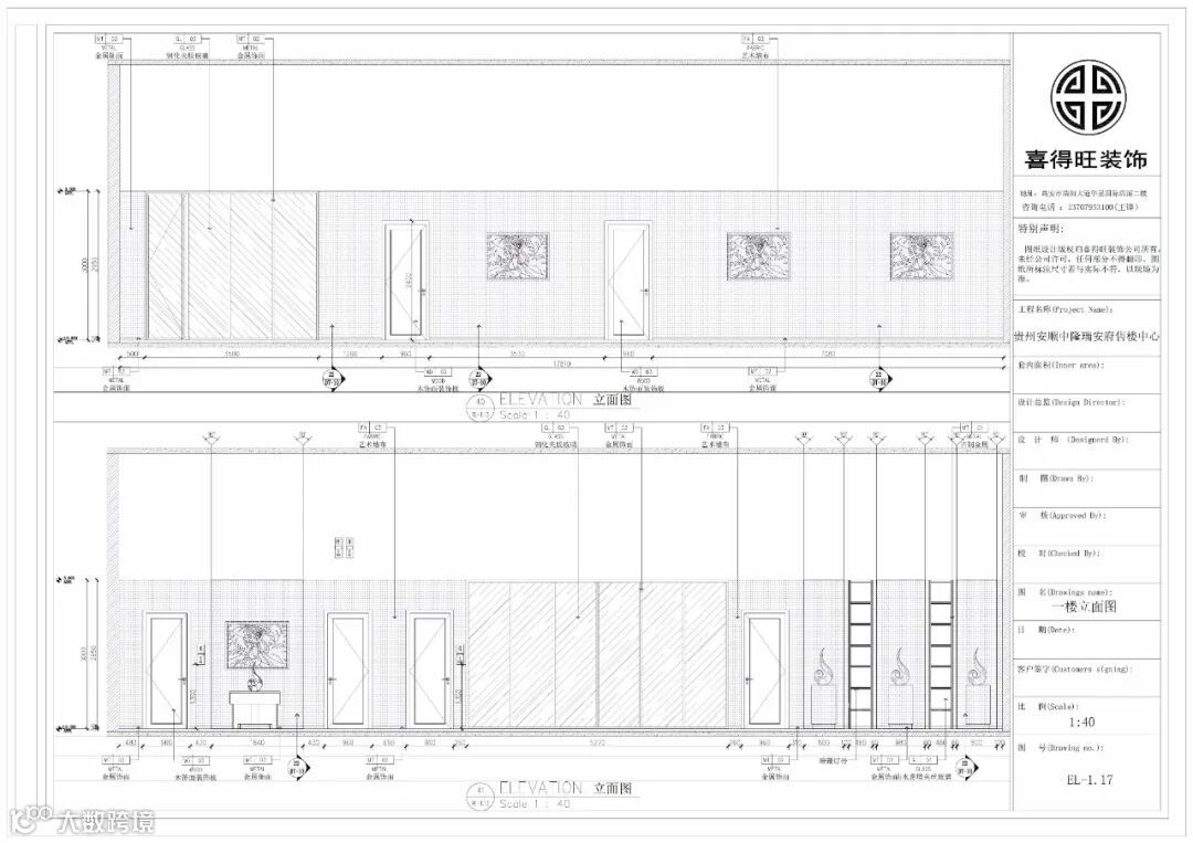
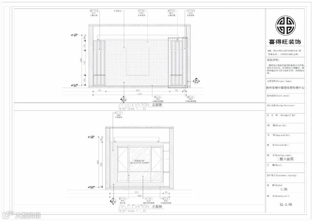
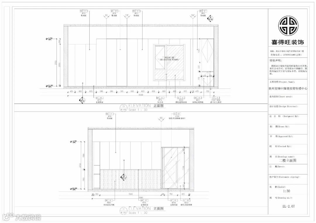
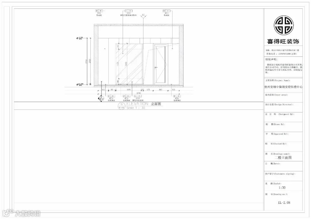
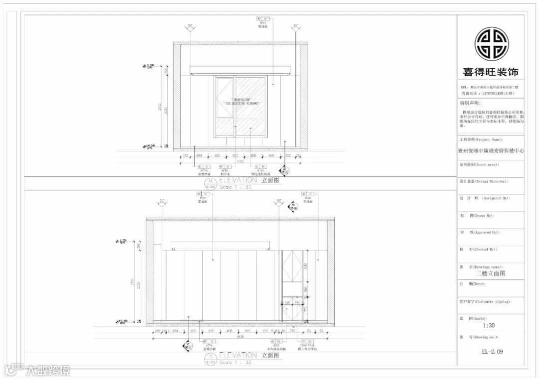
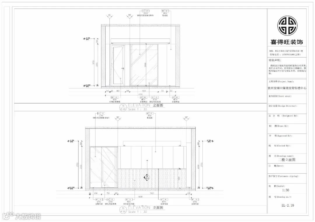
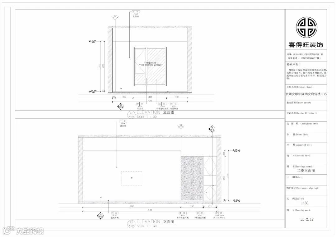
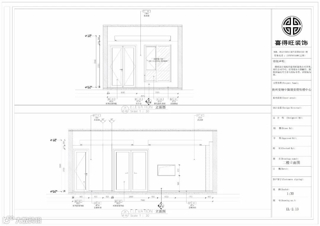
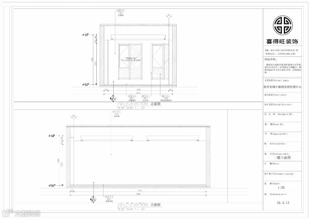
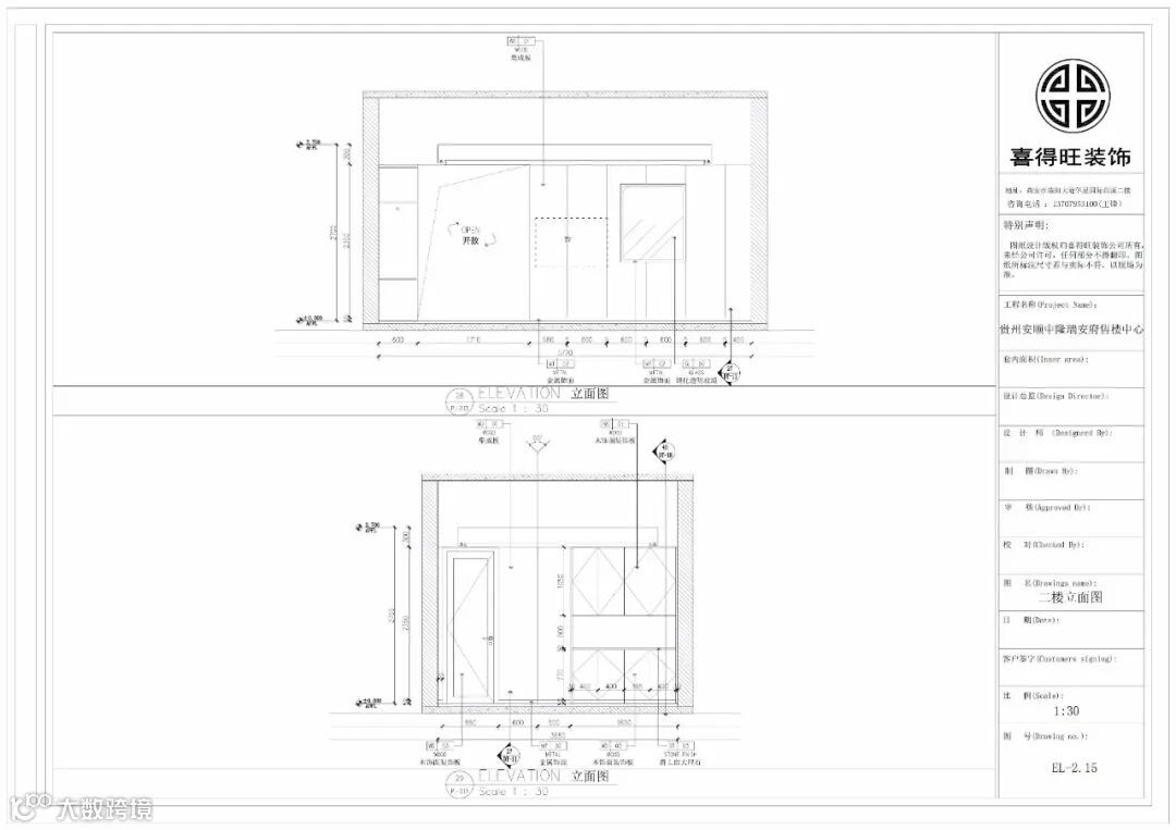
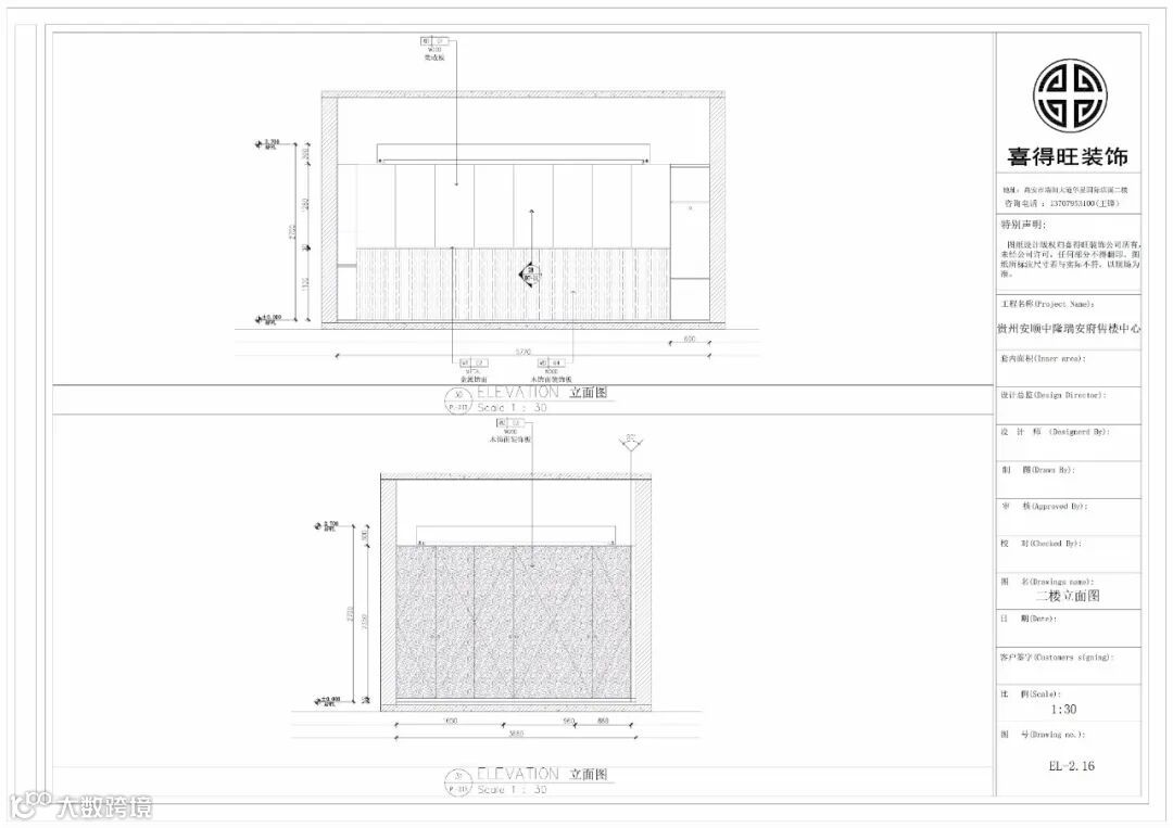
[立面FACADE]

































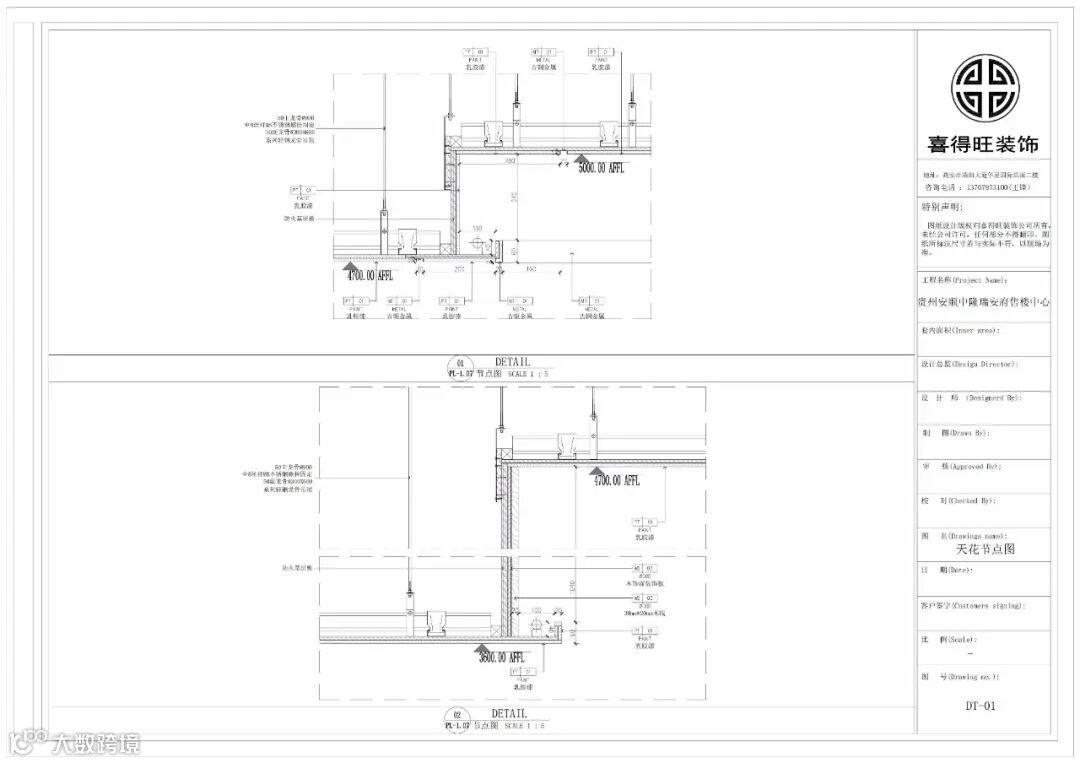
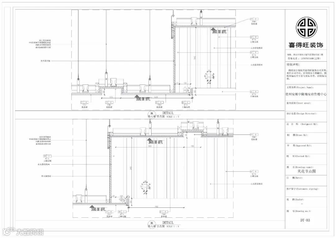
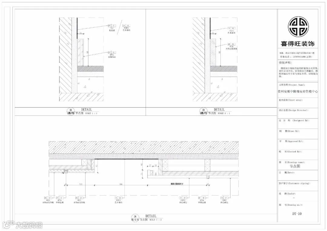
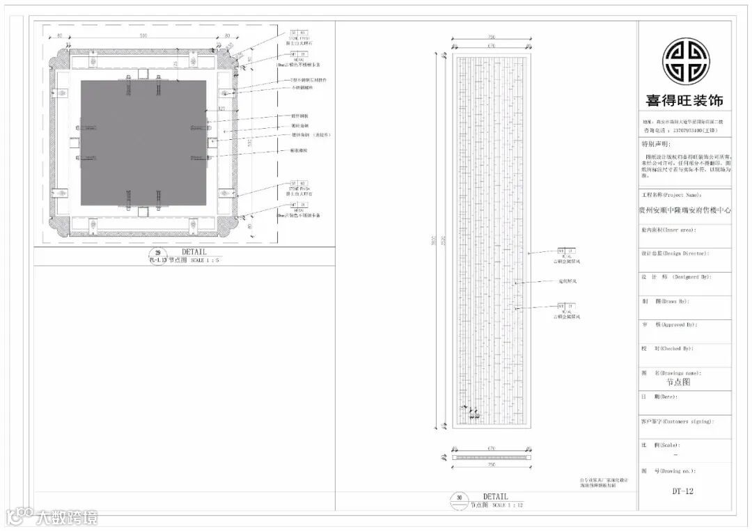
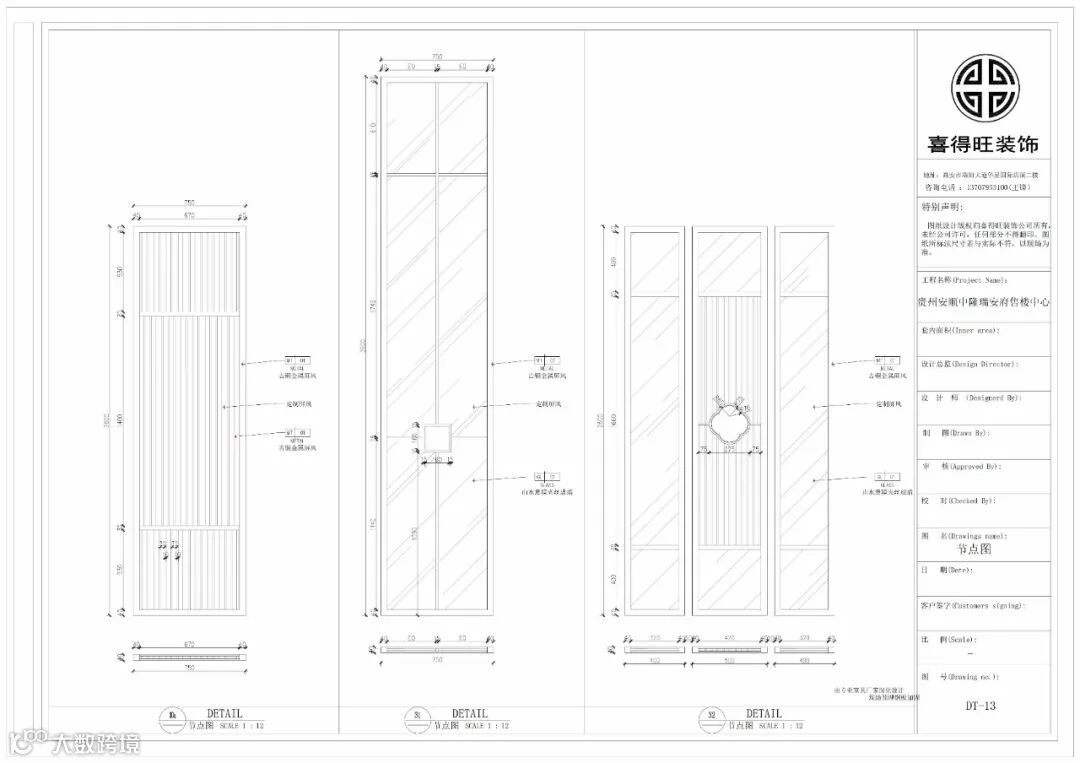
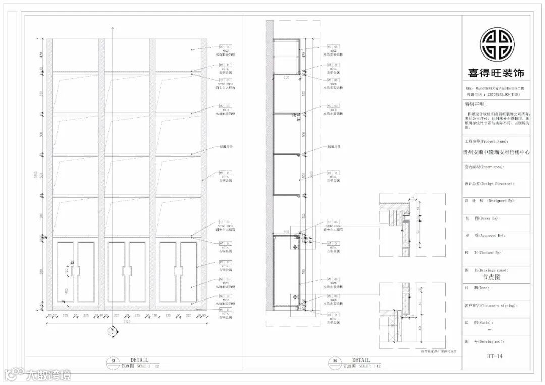
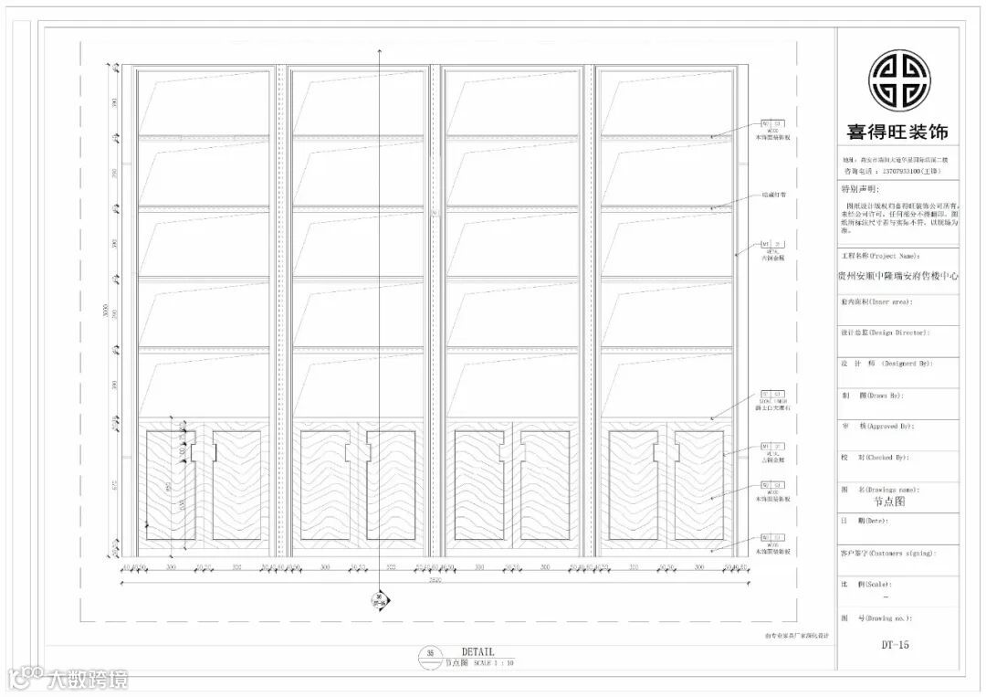
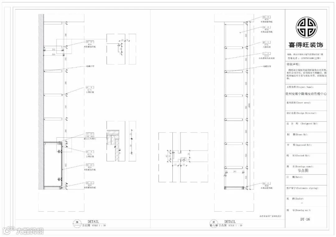
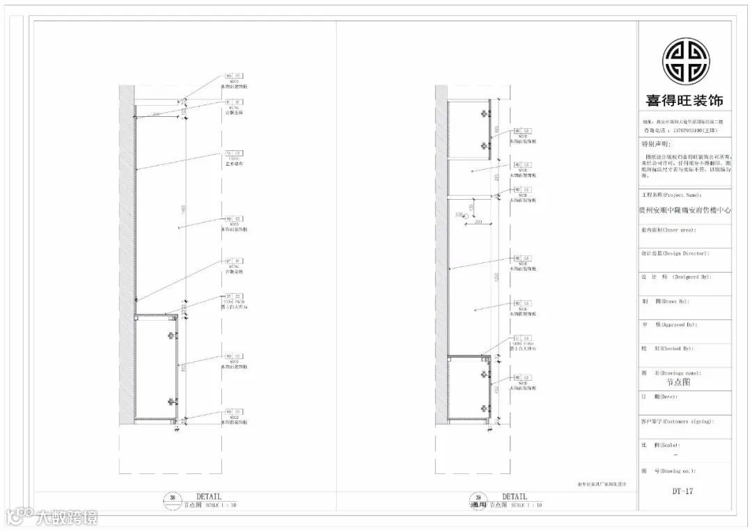
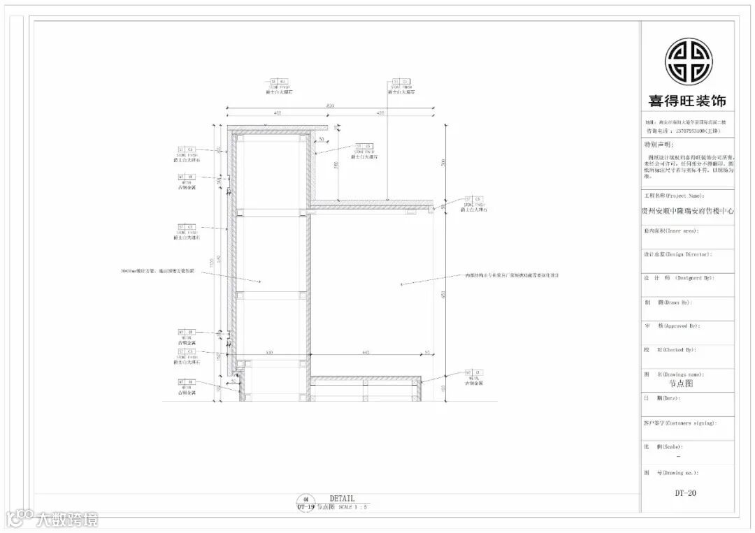
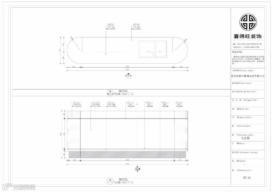
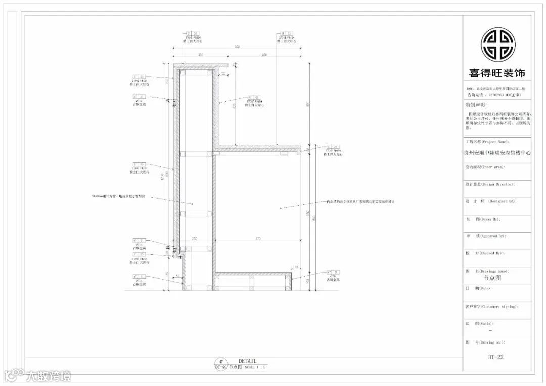
[节点NODE]






















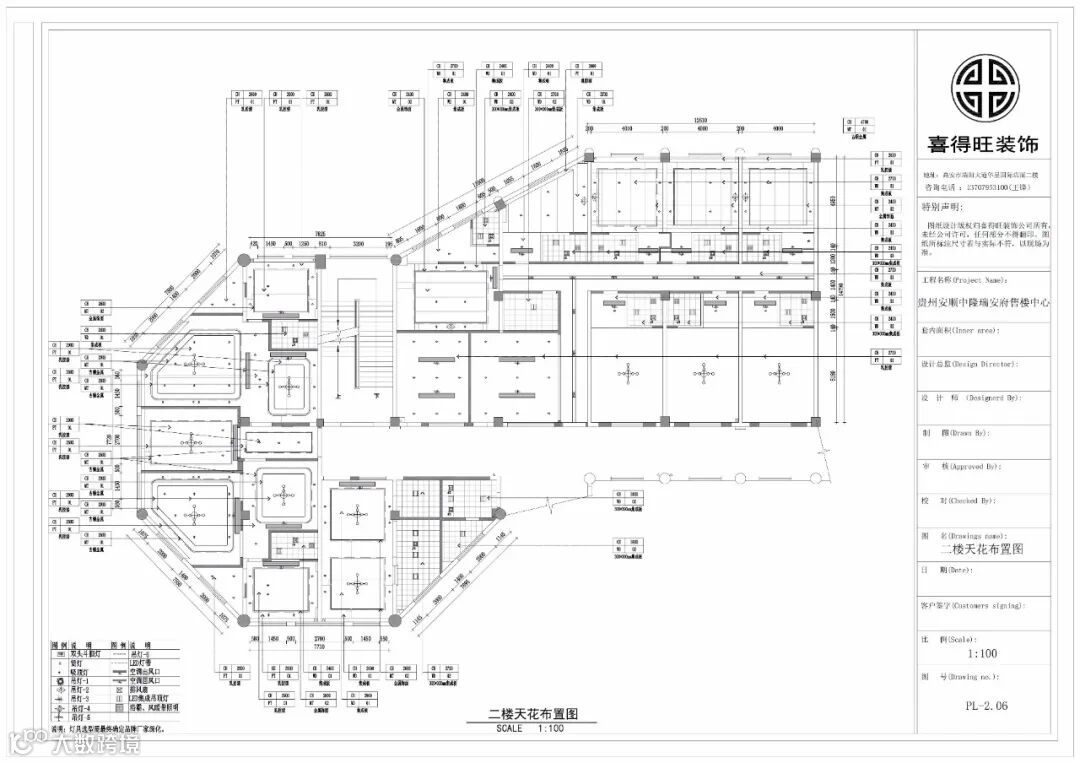
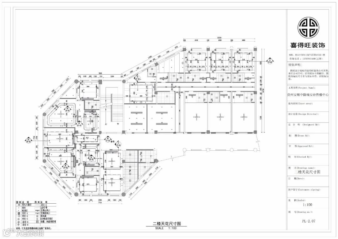
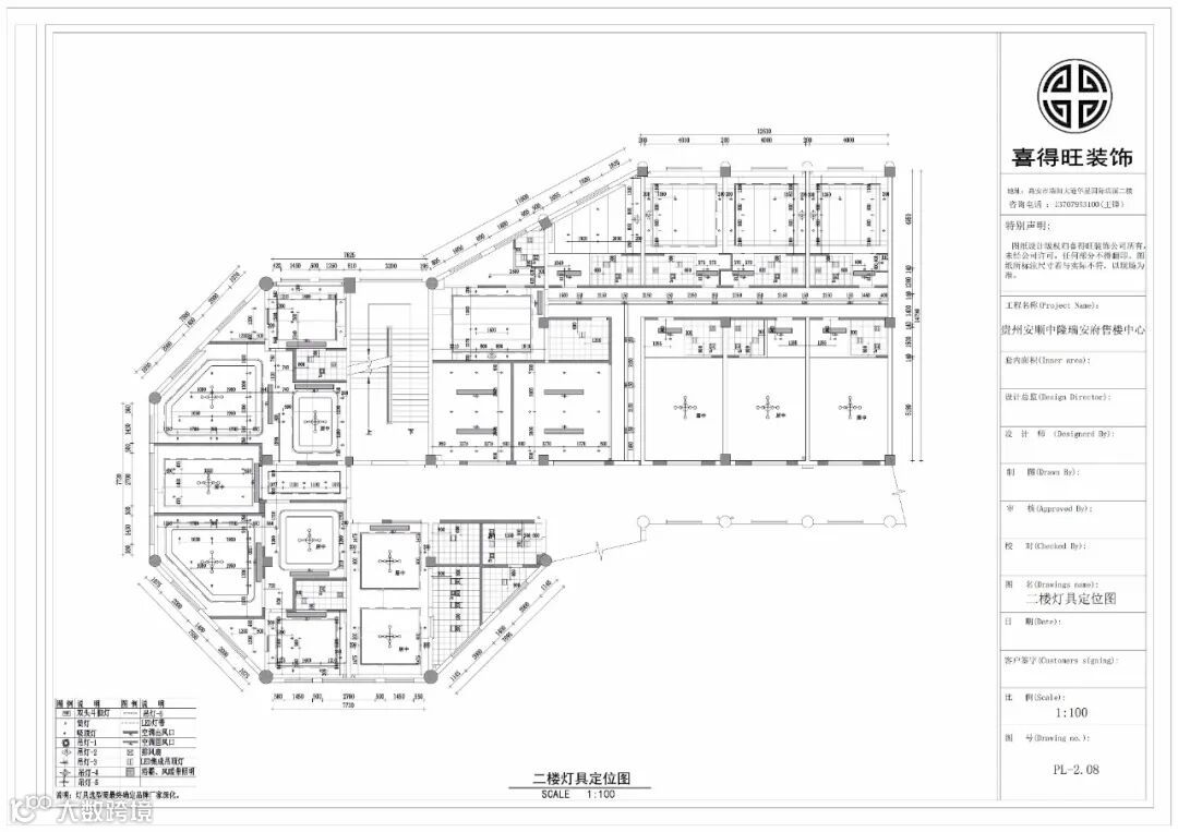
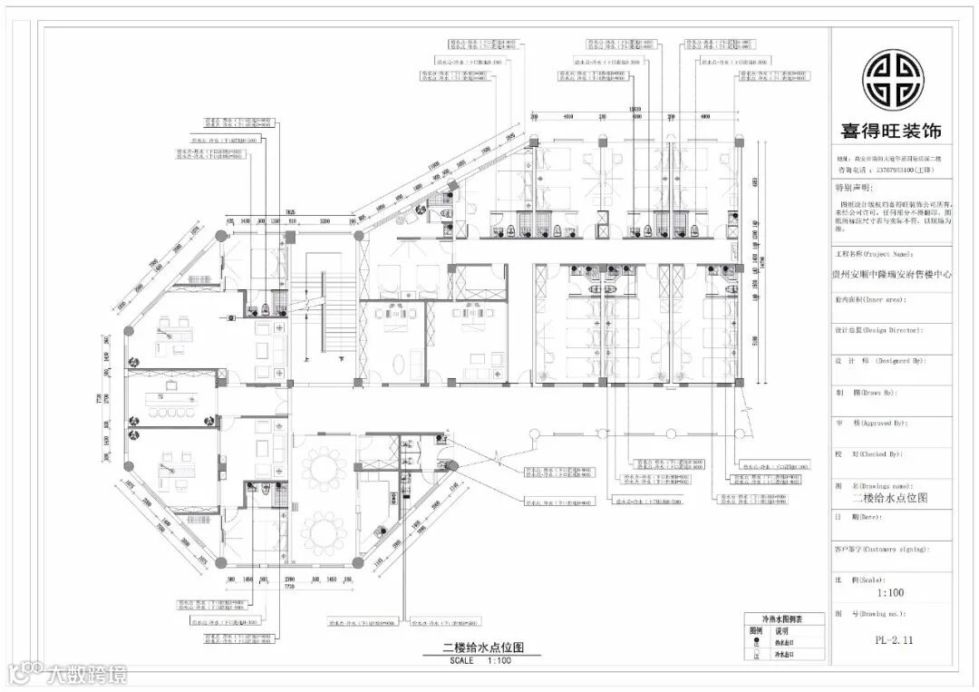
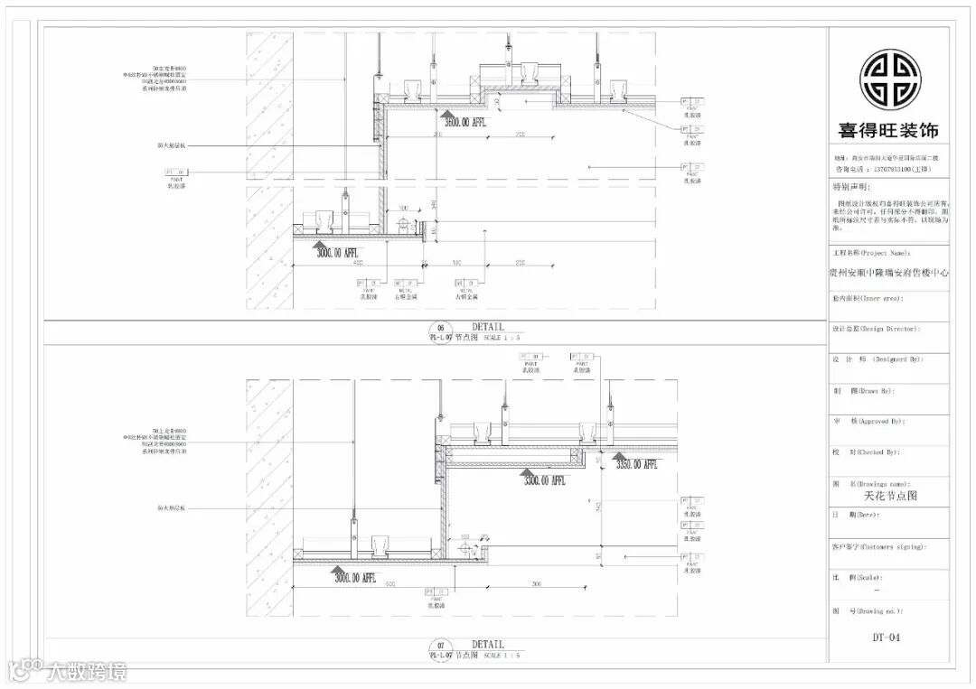
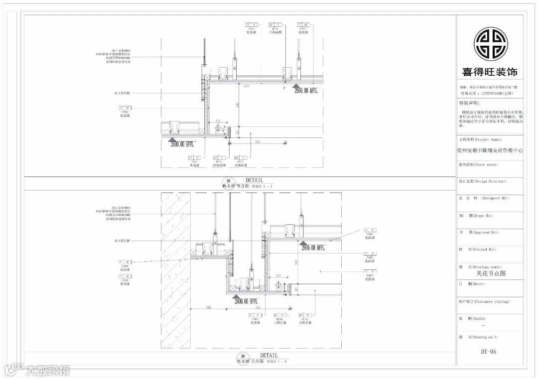
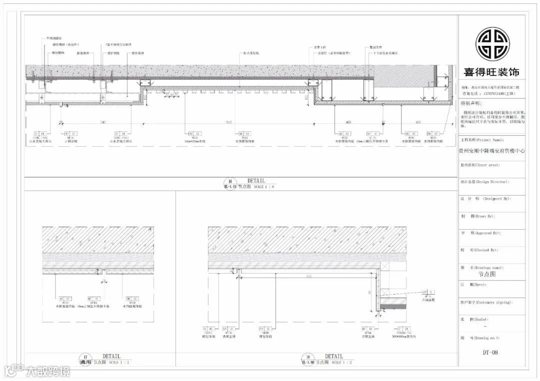
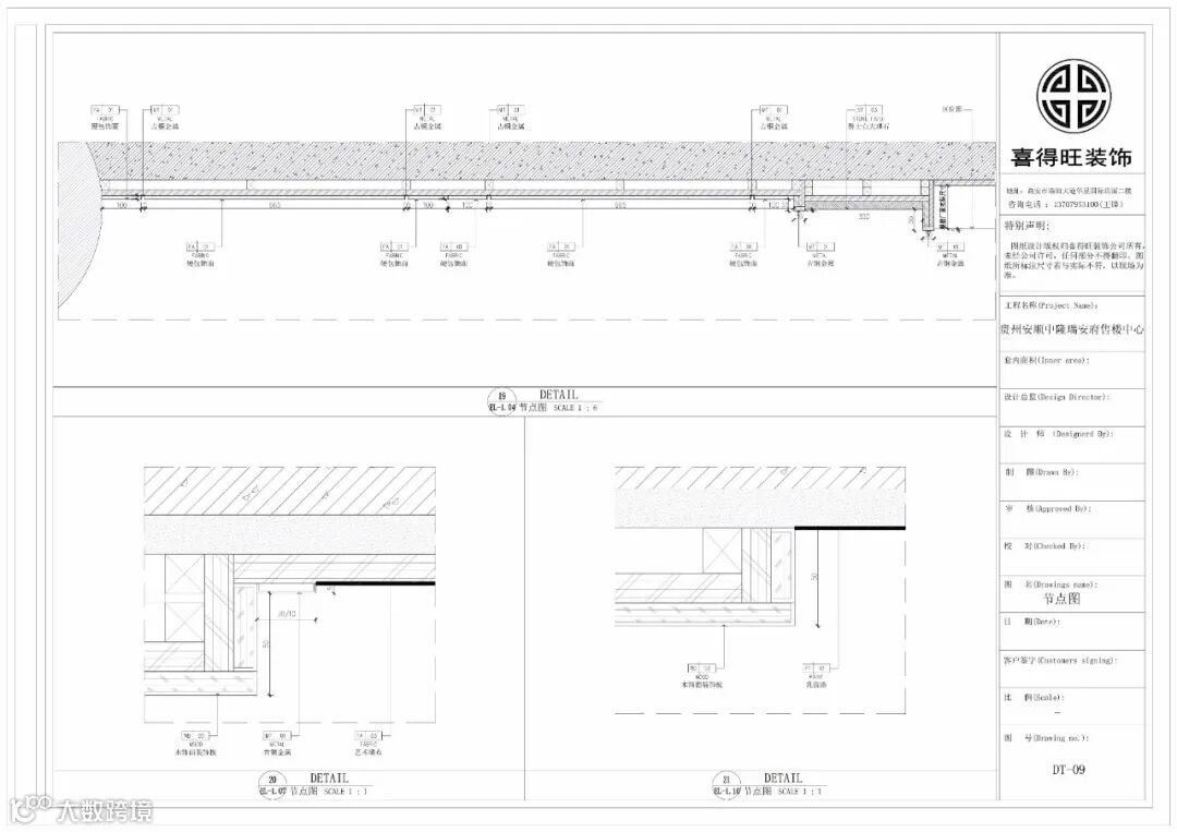
图纸优势:精细的平面系统,从原始结构、拆砌墙到空调出风口布置都一一呈现;立面表达更为凸显全面,每个造型都有表达到位;节点的细化让施工更加流畅,时间效率更高。
客户评价: 细节表达到位、图纸完整度高。
合肥光影装饰设计有限公司地址:
安徽省合肥市包河区金中环广场B座12楼
售后电话:18055145252
业务范围:
效果表现|施工图绘制与深化|全案设计|室外景观表现|建筑外立面|建筑动画|水电|消防|暖通|盖章
涉及领域:
家装|办公|餐饮|清吧|酒店|别墅|商场|服装|公共空间|娱乐空间

