
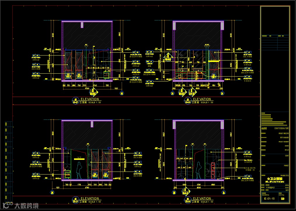
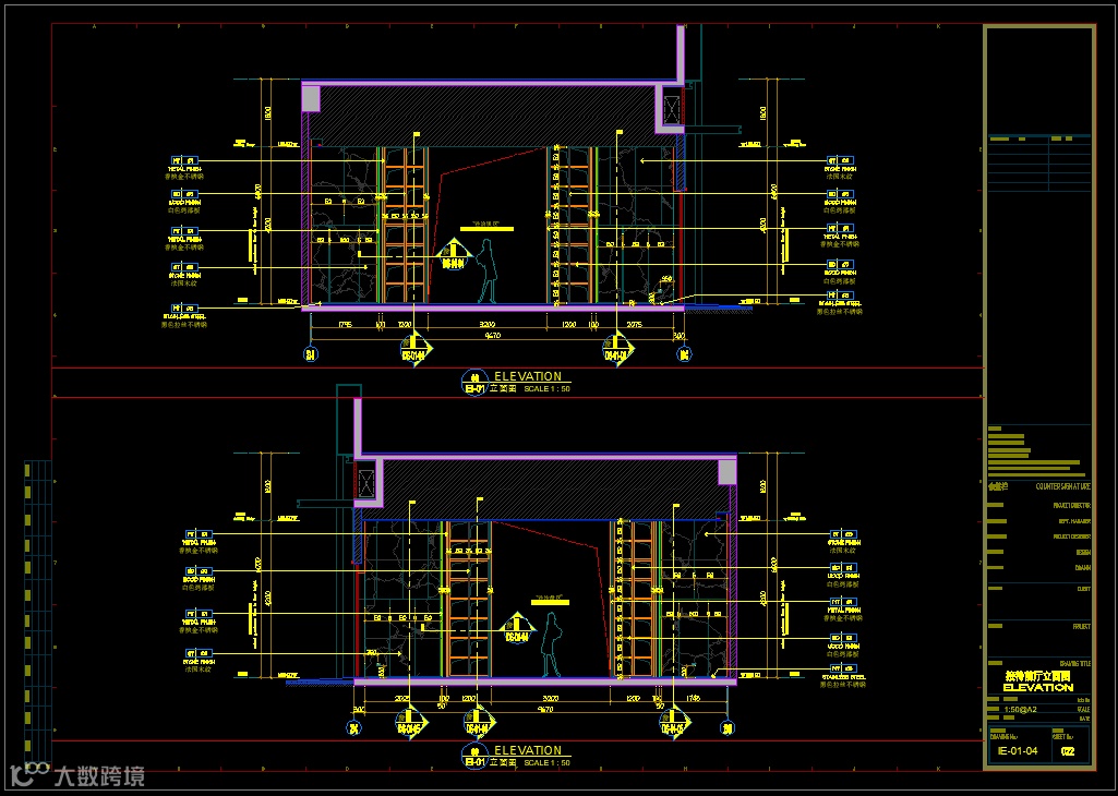
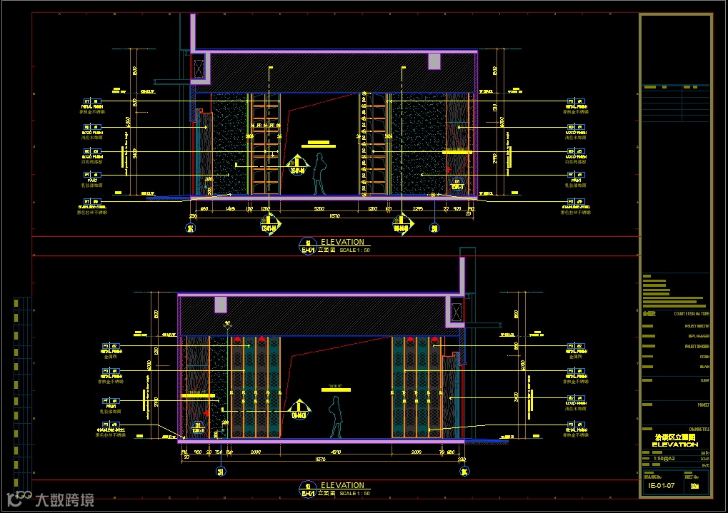
售楼部施工图深化
服务内容:深化设计、施工图深化
服务时间:2021年
项目面积:700平
图纸深度:深化标准
深化公司介绍:专注于办公+餐饮+娱乐及各类家、工装空间图纸深化领域。
*光影施工图深化公司致力于成为您身边高效、贴心、靠谱的施工图深化团队。
*以下项目资料为部分资料,未经许可,不得转载,转者必究!*

分割线
合肥光影装饰设计有限公司地址:
安徽省合肥市包河区金中环广场B座12楼
售后电话:18055145252;18756952060;18956067920;18756951839;13395657577。
业务范围:
效果表现|施工图绘制与深化|全案设计|室外景观表现|建筑外立面|建筑动画|水电|消防|暖通|盖章
涉及领域:
家装|办公|餐饮|清吧|酒店|别墅|商场|服装|公共空间|娱乐空间

往期回顾▼
小伙伴们都在偷偷看这些▼

更多优质效果图案例请关注抖音号
▼

保存图片 - 打开抖音
更多效果图/施工图案例
请点击www.hfgysj.cn登陆我们的官网查看



