大数跨境

【项目】650平 | 足浴店施工图 | 光影施工图深化设计公司经典案例

【项目】650平 | 足浴店施工图 | 光影施工图深化设计公司经典案例 合肥光影设计
2025-11-01
0
导读:服务内容:深化设计、施工图深化 | 项目面积:650平

足浴店施工图深化
服务内容:深化设计、施工图深化
服务时间:2023年
项目总面积:650平
图纸深度:普通标准
深化公司介绍:专注于办公+餐饮+娱乐各类家、工装空间图纸深化领域。
*光影施工图深化公司致力于成为您身边高效、贴心、靠谱的施工图深化团队

*以下项目资料为部分资料,未经许可,不得转载,转者必究!*

▼01-目录材料表施工说明


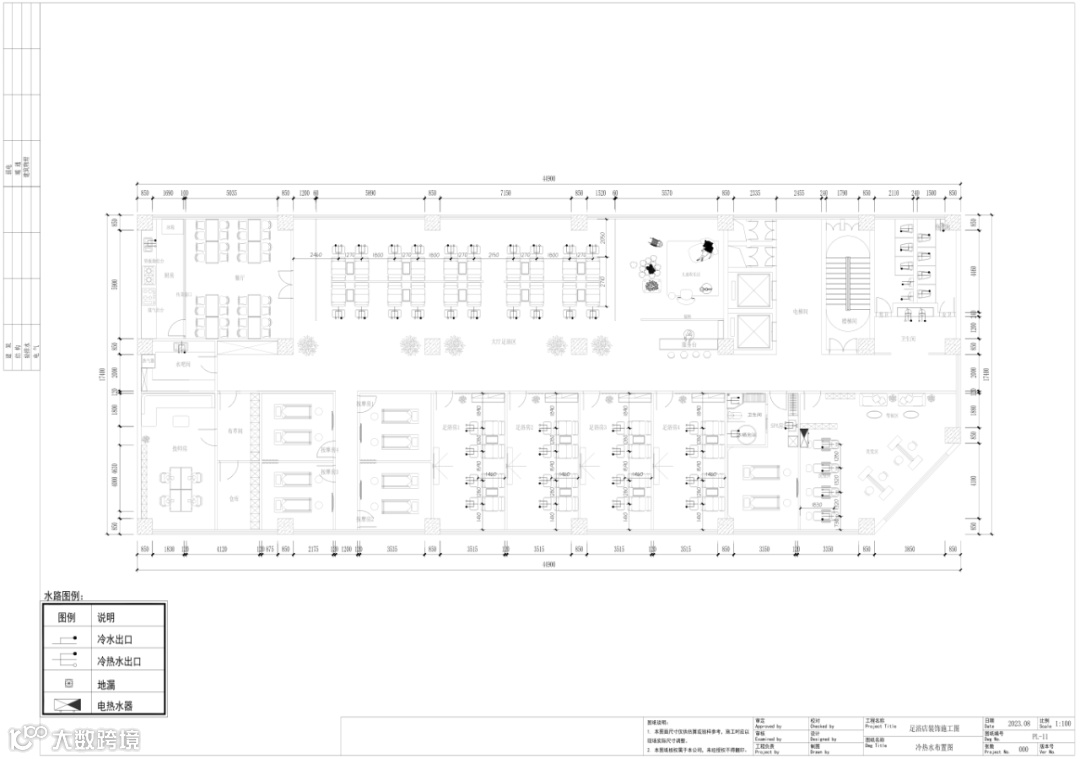
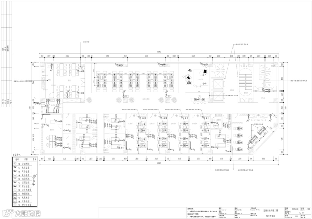
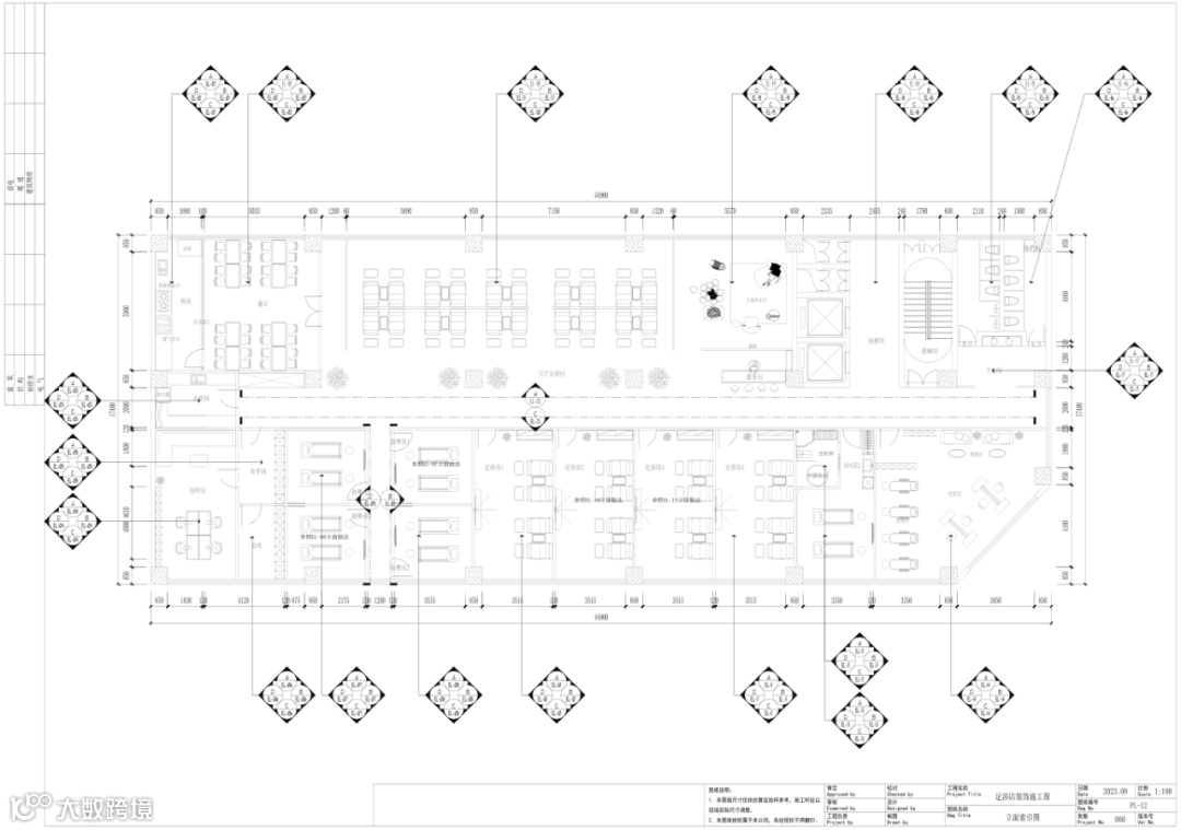
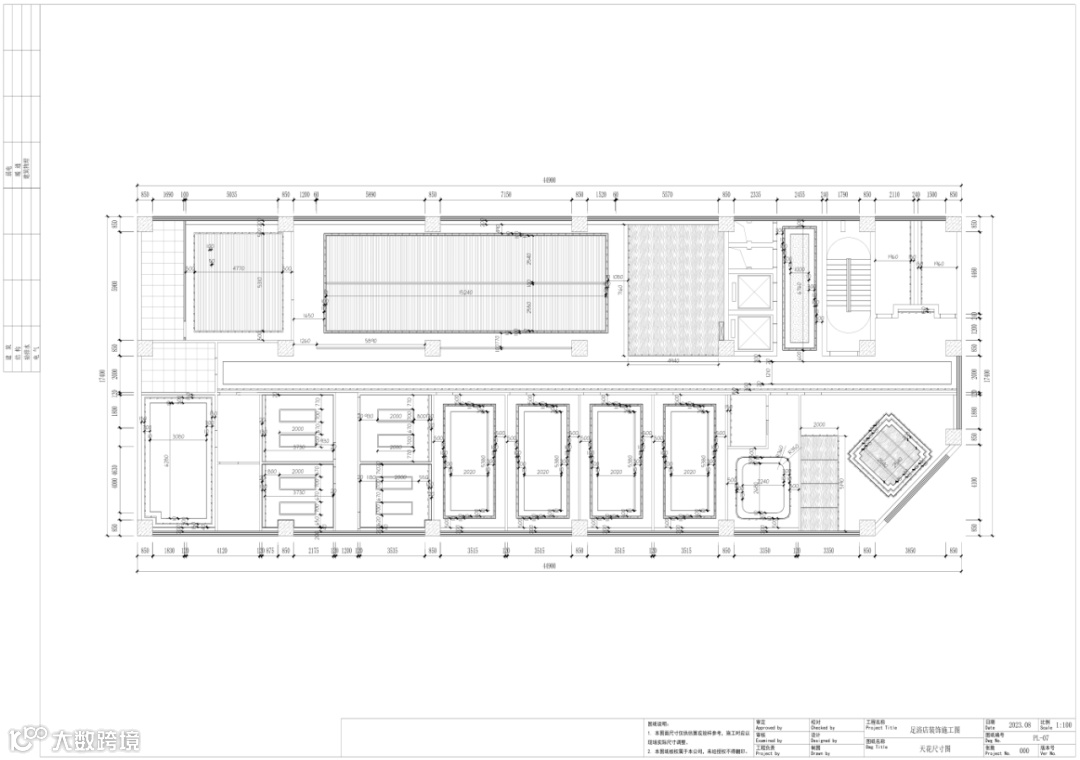
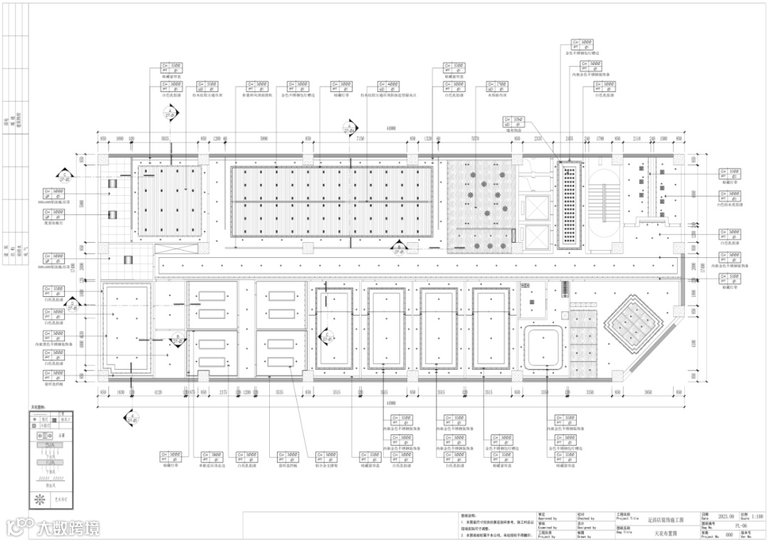
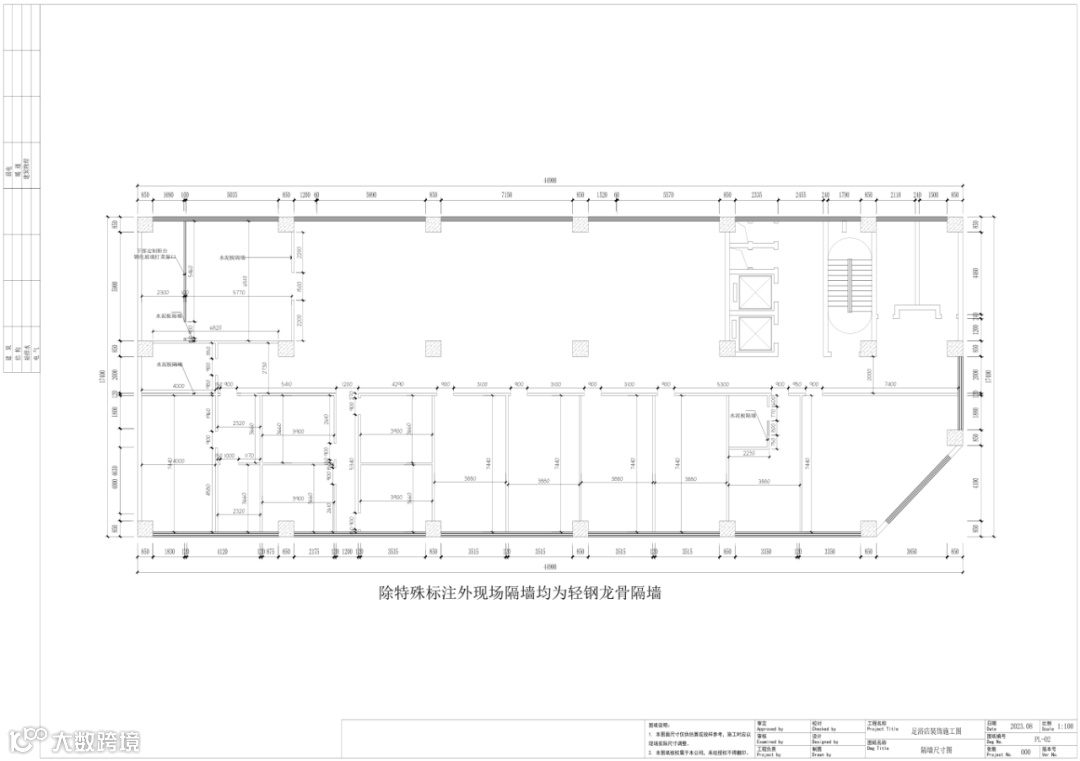
▼02-平面




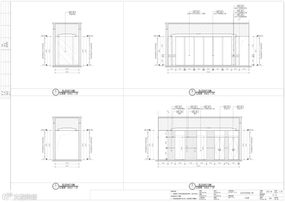
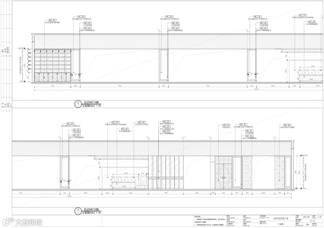
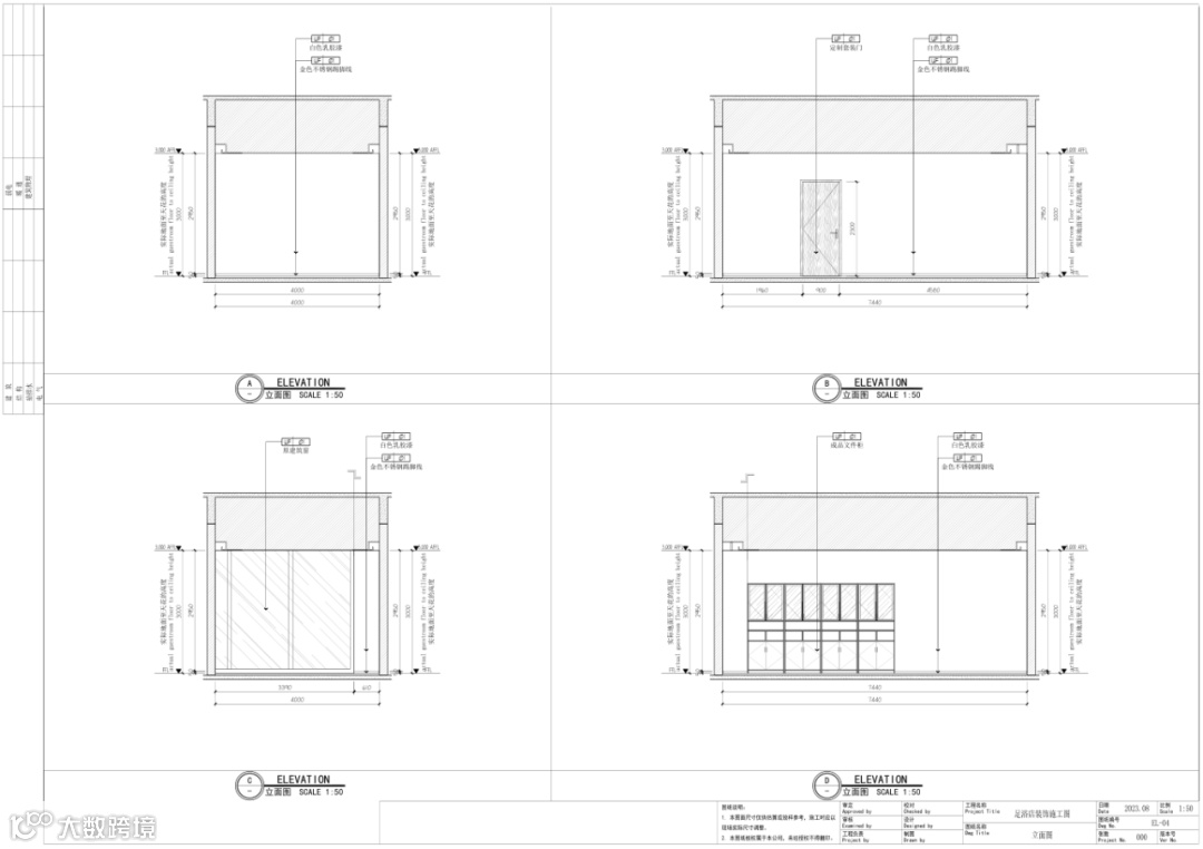
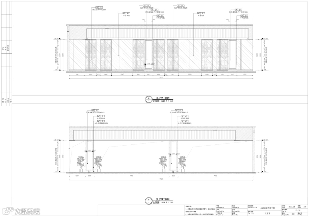
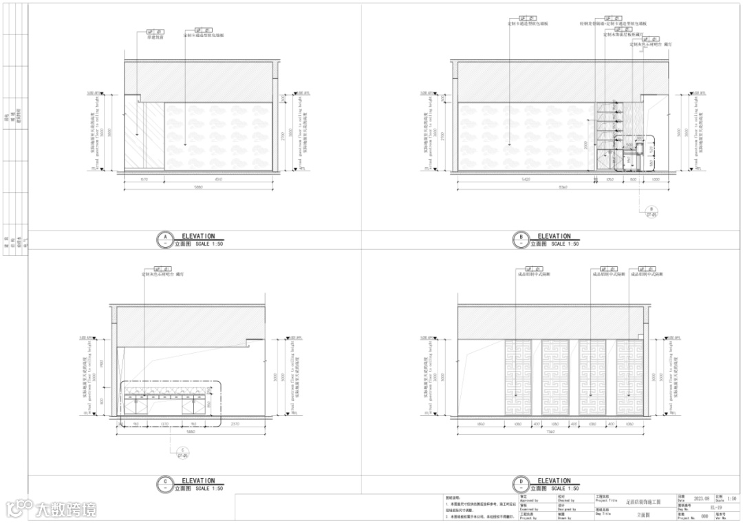
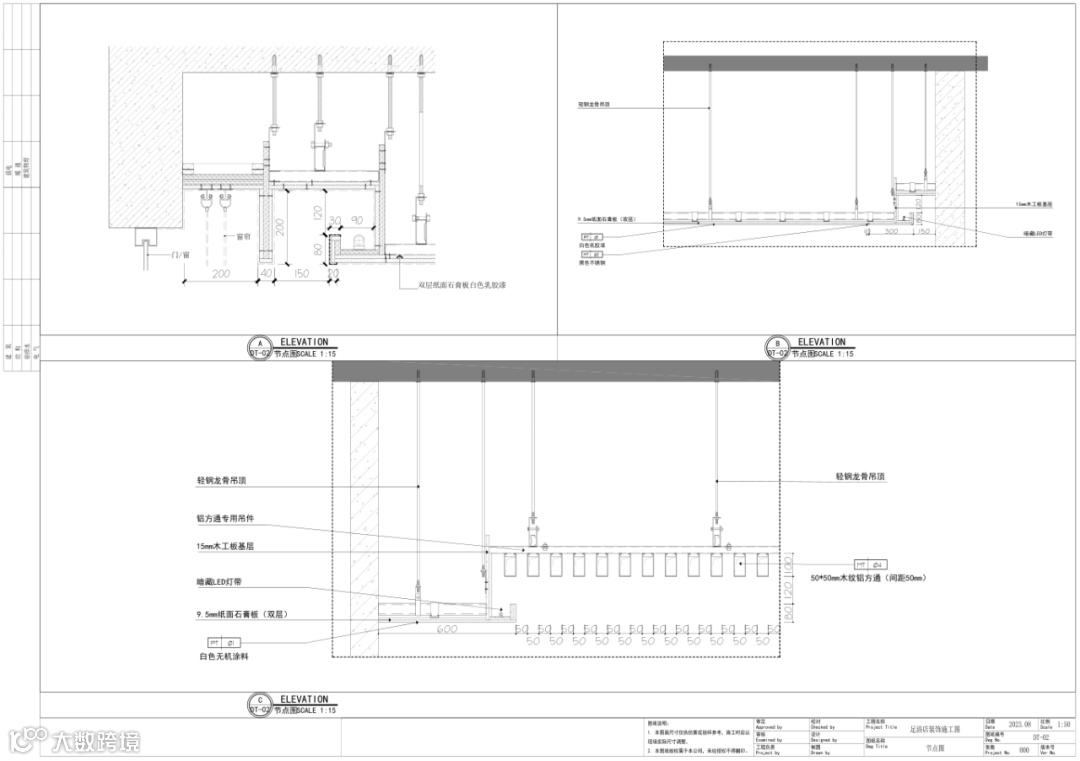
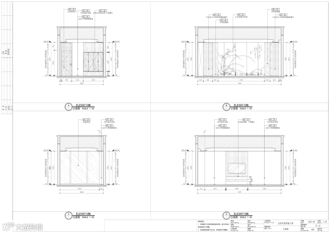
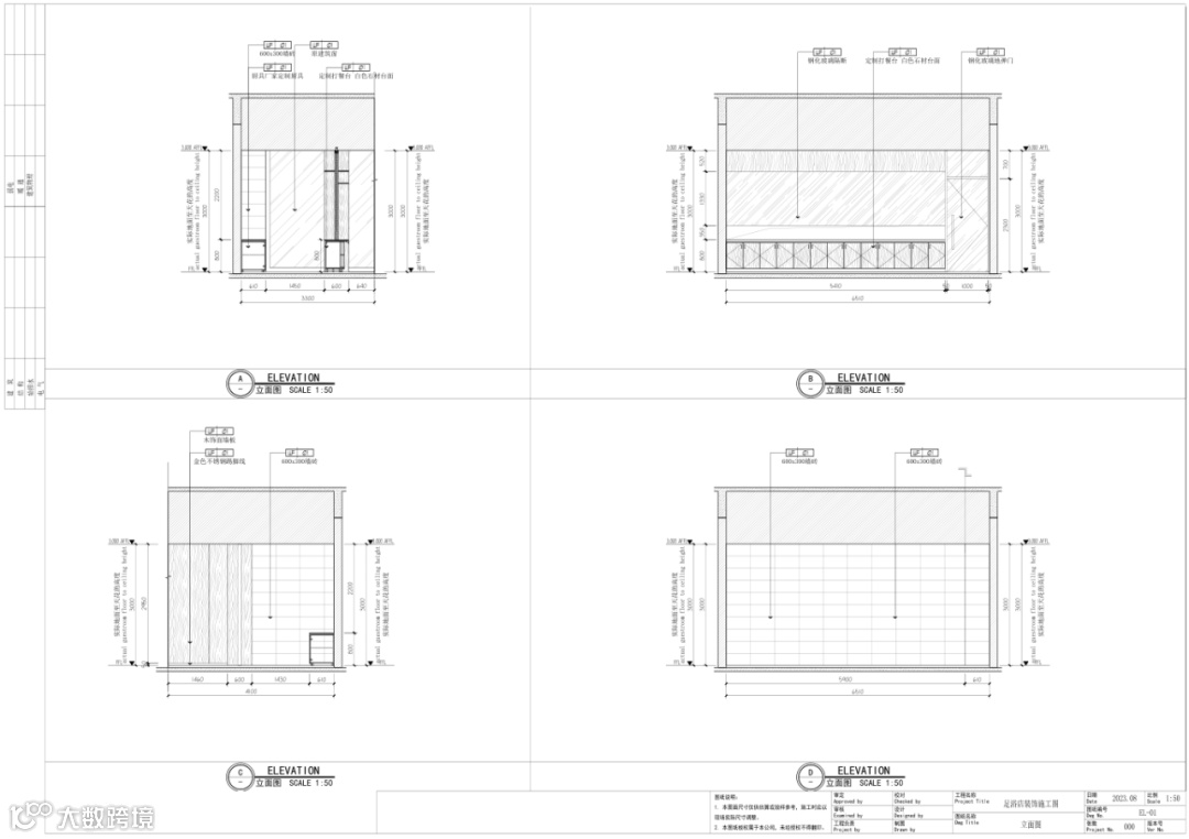
▼03-立面



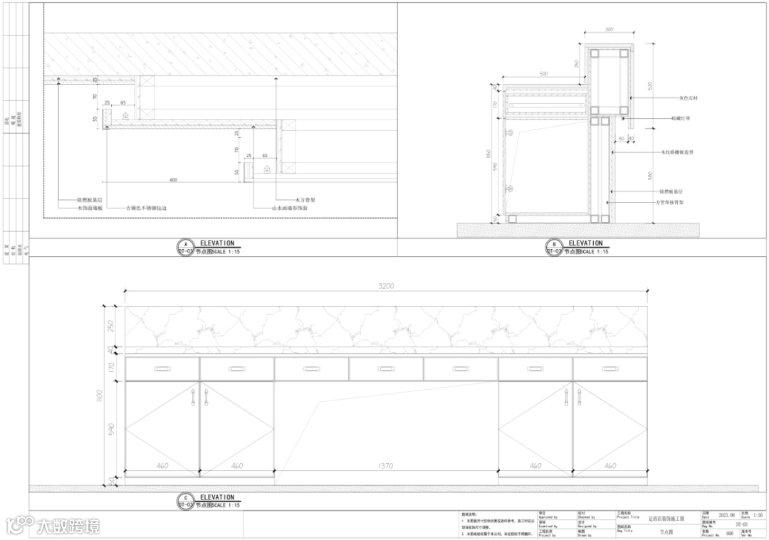
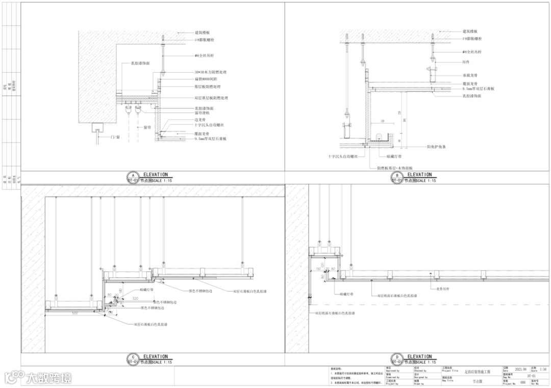
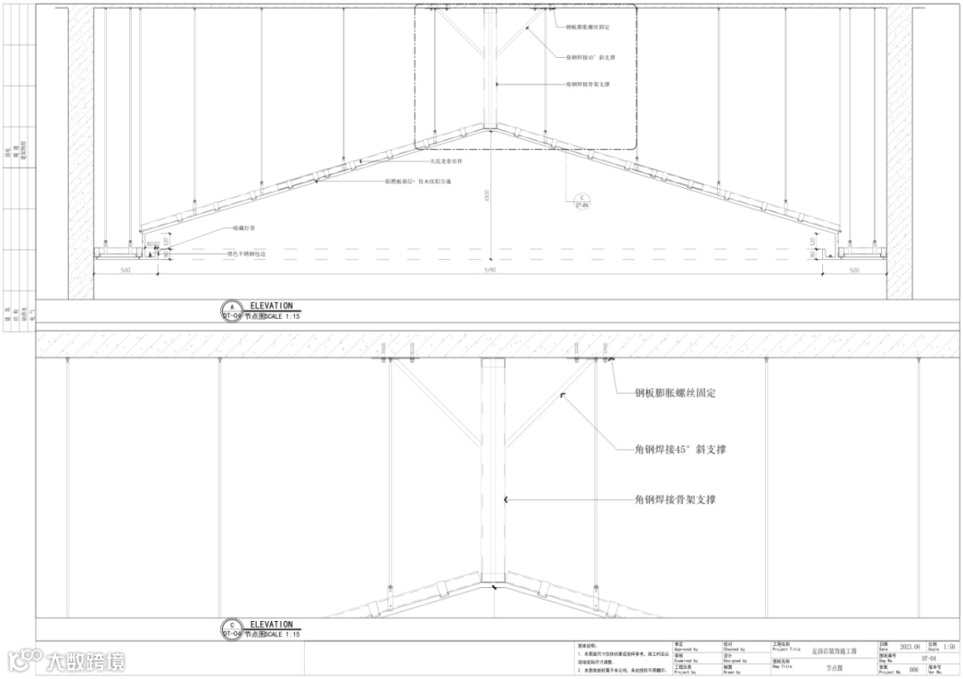
▼04-大样图





线


合肥光影装饰设计有限公司地址:

安徽省合肥市包河区金中环广场B座12楼

售后电话:18055145252;18756952060;18956067920;18756951839;13395657577。

业务范围:

效果表现|施工图绘制与深化|全案设计|室外景观表现|漫游动画|水电|消防|暖通|盖章

涉及领域:

家装|办公|餐饮|清吧|酒店|民宿|别墅|商场|服装|学校|医院|银行|党政机构|指挥中心|展厅|会所|网咖|足浴|KTV|售楼部|健身房|超市|宴会厅|演播室


往期回顾



小伙伴们都在偷偷看这些





 



更多优质效果图案例请关注抖音号

保存图片 - 打开抖音


更多效果图/施工图案例

请点击www.hfgysj.cn登陆我们的官网查看

【声明】内容源于网络
0
0
合肥光影设计
光影设计成立于2007年,总部位于合肥,是国内装饰视觉设计效果图行业的领军企业。主营室内外效果图、360全景、施工图等,专业服务于全国装饰装潢公司、设计公司、设计院等范围的设计师群体。效果图100元即可制作。官网:www.hfgysj.cn
内容 536
粉丝 0
合肥光影设计 光影设计成立于2007年,总部位于合肥,是国内装饰视觉设计效果图行业的领军企业。主营室内外效果图、360全景、施工图等,专业服务于全国装饰装潢公司、设计公司、设计院等范围的设计师群体。效果图100元即可制作。官网:www.hfgysj.cn
总阅读5
粉丝0
内容536