大数跨境

韩国这家闹中取静的服装店,把混凝土玩出了高级感

韩国这家闹中取静的服装店,把混凝土玩出了高级感 Teamplus天柏思
2020-05-31
3
导读:韩国这家闹中取静的服装店,把混凝土玩出了高级感项目位于韩国首都首尔,在江南区一条蜿蜒的小路上,比邻很多独特的




韩国这家闹中取静的服装店,把混凝土玩出了高级感

项目位于韩国首都首尔,在江南区一条蜿蜒的小路上,比邻很多独特的品牌店铺。在这样一个闹中取静的地带,我们为Acne Studios设计了一家同时售卖男装女装的旗舰店。

The narrow, winding side streets of Gangnam house some of the most exclusive shops in the South Korean capital. It is in this setting – a haven of peace in a fast-moving city – that we have built a new store for Acne Studios: a flagship store, in which they will sell both their men’s and women’s collections.

▲入口

首尔是个非常与众不同的亚洲城市。大量的有品牌特色的西方品牌进驻这里,似乎很容易削弱首尔的独特性;然而在这里并不是问题。作为一个游客,我反而认为西方品牌和韩国城市文化在这里互相补充,进而共同产生一些有意思的效果。

Seoul has a highly distinctive character. The large number of western brands to which it is home – powerful brands, with strong identities – could very easily have undermined its individuality; but this doesn’t seem to have happened. As a visitor, my impression is that western brands and Korean urban culture have given something to one another; that they have cross-fertilised to exciting effect.

▲一层空间

瑞典文化宣扬质朴稳重和谨慎。相反,作为一个瑞典品牌,Acne Studios的设计是有力和态度鲜明的。我们的设计也是意在反应这种对比。从外面看,这个建筑是个简练的优雅的半透明盒子,总之就是简单、质朴和谨慎。这里的外观是让人迷惑的。一旦进入到店里面,你会发现这不仅仅是一个半透明盒子,而是一个藏有厚重又幽怨的混凝土结构的盒子,有力和态度鲜明。

Swedish culture prizes modesty and discretion. By contrast, Acne Studios’ designs are forceful and exude attitude. Our building reflects this contrast. Viewed from the outside, it is a restrained, rather elegant lightbox: translucent and ghostly but, in essence, plain and simple. Appearances, though, can be deceptive; and so they are, in this case. As soon as you enter, you realise that while it may only be a box, it is a box concealing a heavy, brooding, concrete monster.

▲悬浮的楼梯

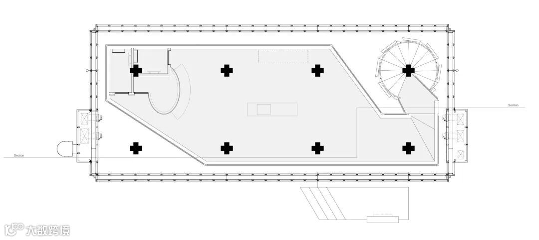
这家店是一个两层楼的长方形混凝土建筑,每层楼有4个混凝土承重支柱,其中一个支柱旁边是一个悬浮式的混凝土楼梯。

This is the structure of the building. It is a rectangular building on two floors, both of rough concrete, with four pairs of concrete columns holding up the roof and the upper floor. Around one of these columns winds a floating concrete staircase.

▲二层空间

上到二楼,当顾客向下和向周围看的时候会发现,这些粗糙的破落的混凝土结构是与半透明的外立面完全分开独立存在的;这样,整个建筑就像是在一个精美的展示盒中的艺术品一样呈现。

Once upstairs, you realise that there is something else about this building that is a little bit strange. As you look down and about, you notice that the rough, lumpen, concrete structure is entirely separate from the translucent walls that enclose it; that it sits inside its elegant box as if in a display case.

▲没有多余装饰的室内

店里没有多余的装饰。混凝土外壁采用粗糙的木质模板,这些模板,大多用在去斯德哥尔摩群岛的沙滩的木板路上,这样,一方面形成了明确的肌理,一方面又延续了品牌的特色。并且这里没有任何一个传统的装饰纹路和质感。店里的衣服是在开放的空间单独进行陈列,背靠柔光反射的金属墙。

There is no decoration. The concrete bears the imprint of rough timber such as that used to make boardwalks to the beach in the Stockholm archipelago; and Acne Studios’ clothing is shown against softly reflective metal walls, freestanding in the open space; but there is not a single decorative finish of a traditional kind.

▲空间局部

瑞典是一个充满阳光和空气的国度,那里生机勃勃的阳光和干净清爽充沛的空气可以引起极度开心和超脱的感觉。同样,这家店的感觉也是超脱的。顾客会和首尔的景象隔离开,被PC墙过滤后透进来柔和的日光包围,并且头顶上的日光灯的光线也被金属格子给漫射开,增强了一种仙境的感觉。我们同时也配合音乐的选择让整个空间更加的有世外桃源的感觉。

Sweden is a land of light and air: vibrant light and clean, fresh, invigorating air that can induce feelings of euphoria and otherworldliness. The shop’s atmosphere is otherworldly. You are cut off from views of Seoul; you are enveloped in soft daylight, filtering through the polycarbonate walls, and light from bare fluorescents overhead, diffused by metal grids; and we have played tricks with the music to increase the sense of other worldliness.

▲外立面

▲屋顶俯视

这家店也是原始的。看上去没有任何突出的机械设备或者管道能够打破这种超脱的氛围。让人迷惑的事实是,这些设备都被堆在了房顶。最后,一个有趣的小细节是:这个建筑下种了来自瑞典群岛典型的野生植物,当然,包括野草莓。

The store is also pristine. No equipment – no ducts or pipes; no entrails or vital organs; no obtrusive mechanical realities – are allowed to disturb the atmosphere within. Instead, they are piled up on the roof. One last detail: the building sits on vegetation typical of that found in the Swedish archipelagos: wild plants of every description, including, of course, wild strawberries.

▲首层平面图

▲二层平面图

▲屋顶平面图

▲剖面图

▲混凝土楼梯

项目信息——
项目名称:Acne Studios
设计: Sophie Hicks Architects
面积: 230㎡
项目年份: 2015
地址:韩国首尔江南古镇汉城路27-2号清坝路162号
摄影师: Annabel Elston, Noblesse Magazine


| 案例精选 |


只有48㎡的快闪店,究竟用什么征服了年轻人?

青山周平操刀设计,网红咖啡品牌%Arabica再开新店

这或许是兰州最前卫的理发店了吧!

鲜鱼口又多了一家精品咖啡店,仅30㎡

“宇宙中心”的非典型商店

带试衣间的自助“快递代收点”你见过吗?

【声明】内容源于网络
0
0
Teamplus天柏思
Teamplus(天柏思)全国连锁展览工厂投资管理机构,旗下直营展览工厂专业服务于:公关公司、广告公司、线下活动公司、营销策划公司、展览公司!为客户提供一站式线下活动、会议、美陈、展厅、展览、展具制作搭建执行服务;
内容 272
粉丝 0
Teamplus天柏思 Teamplus(天柏思)全国连锁展览工厂投资管理机构,旗下直营展览工厂专业服务于:公关公司、广告公司、线下活动公司、营销策划公司、展览公司!为客户提供一站式线下活动、会议、美陈、展厅、展览、展具制作搭建执行服务;
总阅读0
粉丝0
内容272