
随着房价物价的迅速攀升,很多在外面打工的朋友感觉在城里买一套房子变得越来越艰难了,而且城市里住房面积小,空气质量越来越差;乡下就不一样了,乡下环境好,空气清新,手头有个二三十万就可以建一栋好点的房,再买辆车,生活也可以过得很潇洒。

但目前绝大多数农村建房的师傅没有专业的施工图纸,建起来的房子千篇一律,感觉很土气,没有创新!下面我给大家介绍几款新农村户型图,先展示效果图和首层的平面图,需要完整的图纸请联系别墅图纸超市。
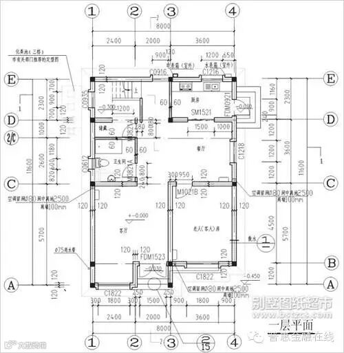
一、新农村住宅户型
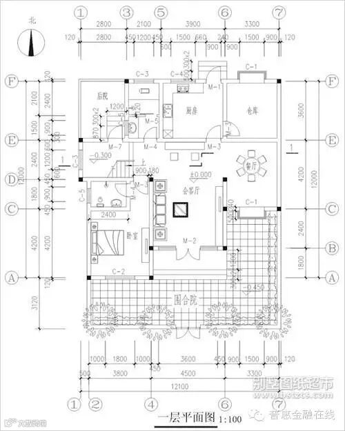
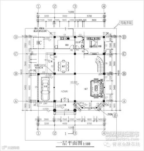
户型一:
地基:12m×12m
占地面积:116平米,总建筑面积:213.53平米;


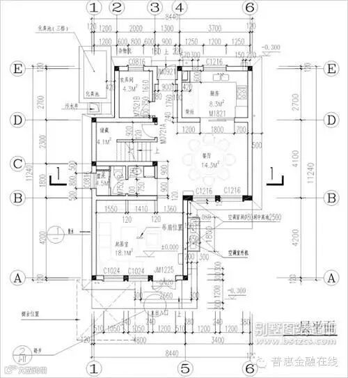
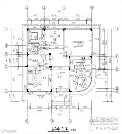
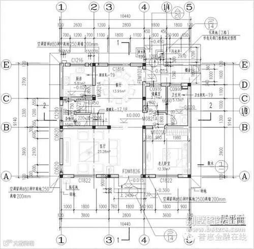
户型二
地基:9m×13m
占地面积:76.60平米,总建筑面积:185.11平米;
三大材料用量估算:水泥44.64吨,钢筋6.932吨,多孔砖85.643立方米;


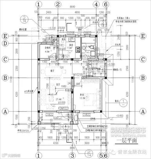
户型三
地基:9m×12m
占地面积:75.1平米,总建筑面积:119.7平米;
三大材料用量估算:水泥32.28吨,钢筋4.753吨,多孔砖74.179立方米;


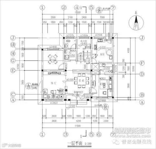
户型四:
地基:12m×10m
占地面积:109.68平米,总建筑面积:287.82平米;


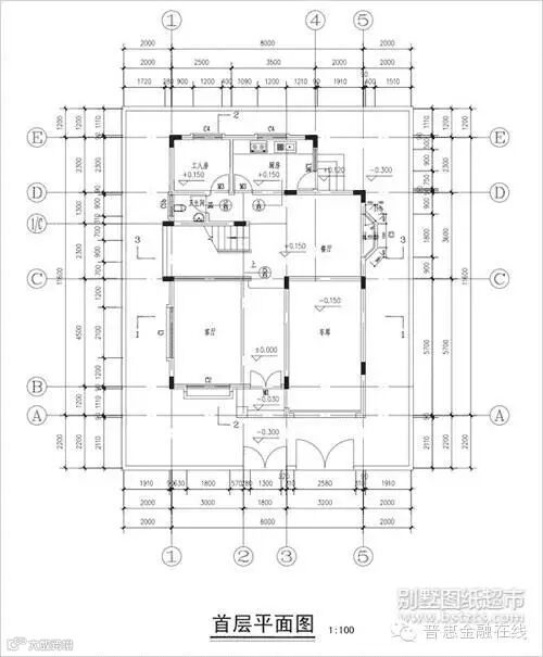
二、双拼户型
家里有两兄弟需要建房的可以考虑双拼的,一来兄弟间能有个照应,二来可以节省建筑成本。
户型一
地基:24m×10m
占地面积:178.46平米,总建筑面积:284.2平米;


户型二
地基:19m×12m
占地面积:123平米,总建筑面积:213.2平米;


三、独栋别墅户型
独栋别墅即独门独院,上有独立空间,下有私家花园领地,是私密性很强的独立式住宅,表现为上下左右前后都属于独立空间,一般房屋周围都有面积不等的绿 地、院落。这一类型是别墅历史最悠久的一种,也是别墅建筑的终极形式。在城市里花50万买一百平米,在农村却可以建这样的别墅:
户型一:
地基:14m×15m
占地面积:147.7平米,总建筑面积:366.4平米;


户型二:
地基:13m×16m
占地面积:130平方米,总建筑面积:310平方米;


户型三:
地基:14m×13m
占地面积:170.38平米,总建筑面积:412.72平米;


户型四:
地基:8m×12m
占地面积:88.7平米,总建筑面积:220.9平米;


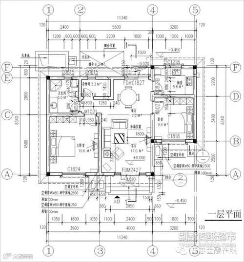
四、精选小成本户型
如果感觉以上房屋建筑成本太高,手头又没有足够的资金,可以考虑以下户型:
户型一:
地基:12m×9m
占地面积:80.3平米,总建筑面积:80.3平米;
三大材料用量估算:水泥22.85吨,钢筋2.77吨,多孔砖57.702立方米;

户型二:
地基:11m×9m
占地面积:89.96平米,总建筑面积:185.92平米;
三大材料用量估算:水泥44.07吨,钢筋6.544吨,多孔砖90.525立方米;


户型三:
地基:11m×10m
占地面积:89.66平米,总建筑面积:174.61平米;
三大材料用量估算:水泥40.61吨,钢筋5.929吨,多孔砖88.851立方米;


户型四:
地基:8m×12m
占地面积:75.1平米,总建筑面积:119.7平米;
三大材料用量估算:水泥49.47吨,钢筋7.771吨,多孔砖86.371立方米;


户型五:
地基:8m×10m
占地面积:80平米,总建筑面积:160平米;


扫一扫,关注普惠金融在线


