

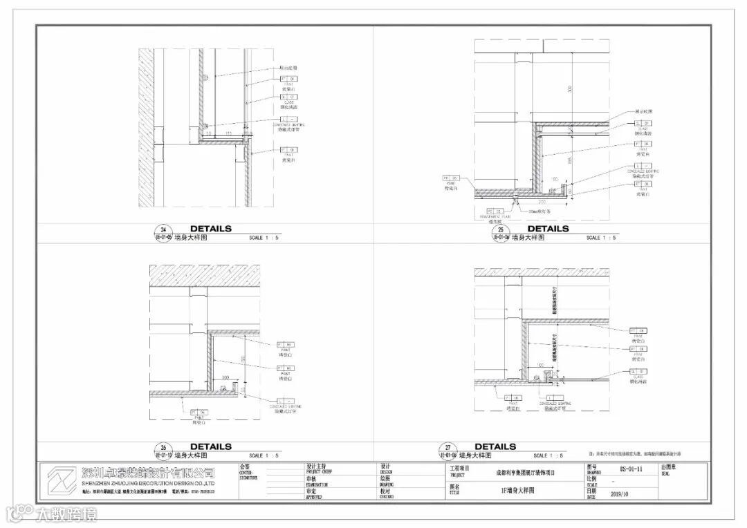
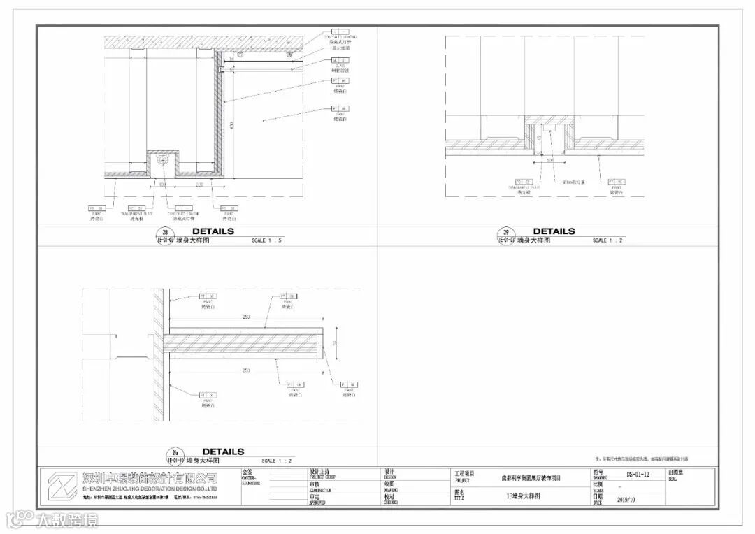
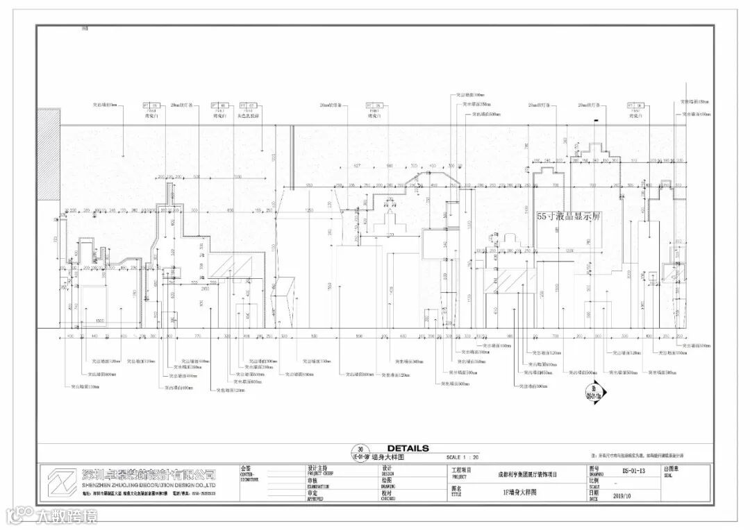
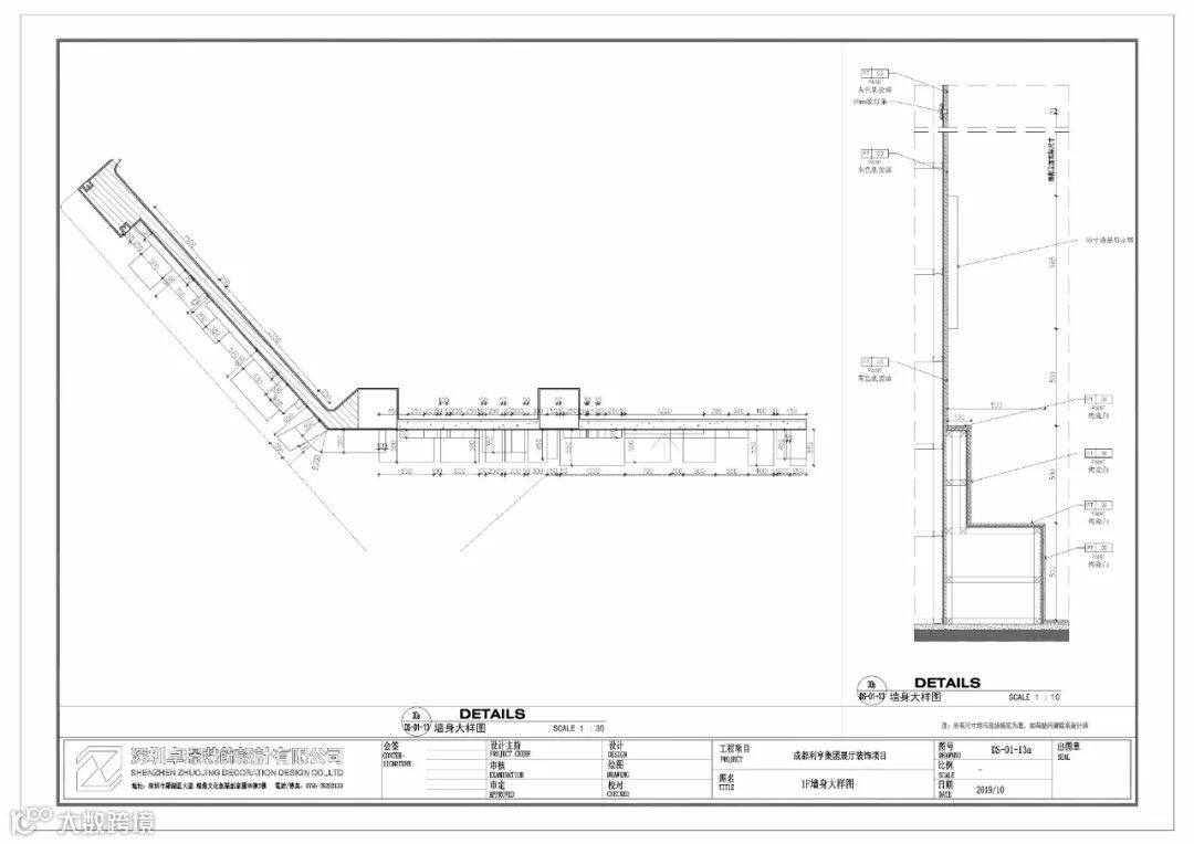
1.项目地|Project location :成都
2.设计方|Designer:深圳卓璟装饰设计有限公司
3.项目面积|Project area:2000㎡
4.制图公司|Drawing unit:光影(合肥)装饰设计有限公司



















































































































合肥光影装饰设计有限公司地址:
安徽省合肥市包河区金中环广场B座12楼
售后电话:18055145252
业务范围:
效果表现|施工图绘制与深化|全案设计|室外景观表现|建筑外立面|建筑动画|水电|消防|暖通|盖章
涉及领域:
家装|办公|餐饮|清吧|酒店|别墅|商场|服装|公共空间|娱乐空间

