01
莫妮卡

我们希望在设计每一个空间时,不仅要让空间本身充满想像,同时营造出的氛围能感染周围的每一个人。本案作品将复古与摩登两种元素结合,不仅表现在硬装,更多是通过软装的造型及色彩来表达对精致生活的态度。

为了整体的统一性,主背景我们选用了浅灰色作为底色,局部的蓝、粉点缀搭配复古黄铜吊灯,使空间散发静谧与优雅的气息,家具的选择也非常特别,强化布料与主题色的运用。圆形脚凳有着笨笨的身躯,像两只企鹅,给空间带来了乐趣,阳光透过窗帘洒在身上,温柔的抚摸着空间的每个角落。

将阳台纳入客厅,不仅加强客厅纵深感,而且作为休闲区也是冬日里读书、沐浴阳光的好地方。黑白相间的单椅,在加入几何元素之后,更加出挑,给空间带来了不一样的时尚感。

丝绒质感的沙发,低调简约不失奢华感,与空间风格完美融合,宛如蓝宝石般夺目。

轻纱般的阳光穿过硕大的落地窗洒入屋内时,斑驳的光影,充满灵动与恬静,同时又像精致的滤镜,使家具与艺术品显得更加出彩。

黄铜弧形落地灯,柔美的弧线。

最幸福的事情莫过于忙碌了一天,和家人坐在一起幸福的用餐、聊天。餐厅与客厅相连,在色调和材料的使用上,保持了空间的连贯性,橡皮粉的餐椅搭配镶嵌黄铜边的大理石餐桌,充满精致感,加上复古黄铜吊灯的运用,使氛围更加摩登与舒心。

真正的奢华隐藏于细节的雕刻中,雕花工艺底座宛如一朵紫金花,让生活更添艺术色彩。

简洁造型的餐边柜兼具收纳功能的同时,也与主色调相近的餐桌椅协调了立面视觉的美感,另一侧是壁炉,摆上喜欢的装饰品和烛台,营造了一种对艺术充满热爱的生活环境。

主卧背景选用两种颜色做了拼色,用明亮的色彩对比,带来双面风情,黄金比例分割,突出个性而有趣的氛围,黄铜色植物形状的吊灯,给空间带来了复古高贵的气息。

为了让艺术在空间中得到更好的诠释,我们还将艺术的元素放在了墙面及顶面的处理上。

惬意地躺在飘窗上,看温煦阳光懒懒爬进窗子,开启美好的一天。

酒红色窗帘搭配蓝色单椅,知性而冷静,造型别致的吊灯充满柔和静谧的气息,为空间增添了几分柔美感。

黑色与黄铜色的巧妙搭配,在光源的衬托下更有氛围感,复古的丝绒窗帘和素净的薄纱在深与浅的碰撞中造就一个诗意的存在。

简约的黄铜书架,表现出独特的艺术骨感,没有过多的装饰,将轻奢发挥的淋漓尽致,山水画的运用让书房更显灵气。

跳跃而欢愉的色彩搭配,是这个空间最大的特点,抹茶绿与粉色的完美搭配,清新而又梦幻,大小不一的比例形式,有度地填充于墙面的几个部位,呈现出立体多维度的艺术美感。

设计师将阳台内扩做成了飘窗的设计,空间整体面积变大,柜子的设计,满足了平时的收纳,大大提升了整个空间的利用率,不同色块的铺贴使空间更加趣味性。


橘粉色床靠背搭配白色床头柜,营造出安静清新的氛围。

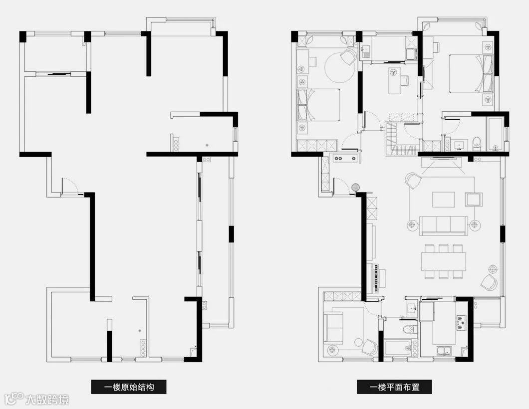
平面设计图


今天的案例欣赏结束了,你们要的彩蛋来啦
关注我们的公众号“光影效果图”
添加小编微信
享受免费试听+200元培训现金券
一般人可不告诉他

程珊珊
CAD施工图、3D效果图
TEL:18756952182 QQ:1745002070




