
▼01-封面目录材料表施工说明

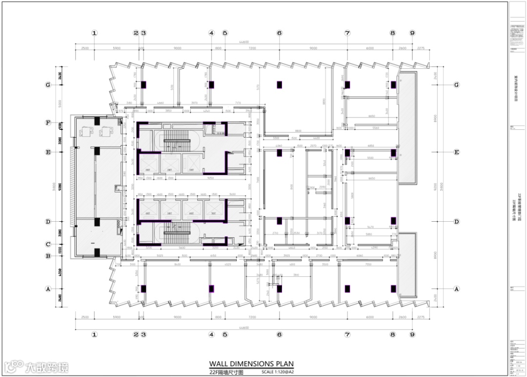
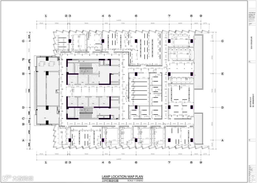
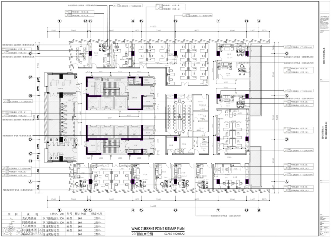
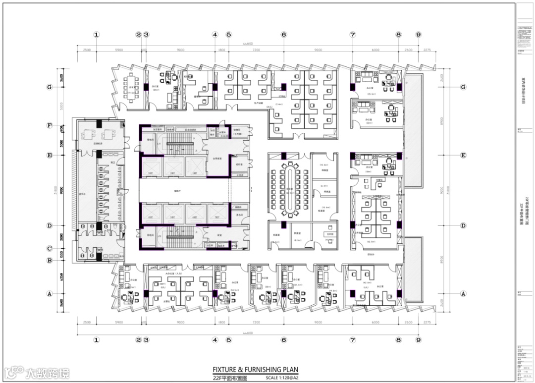
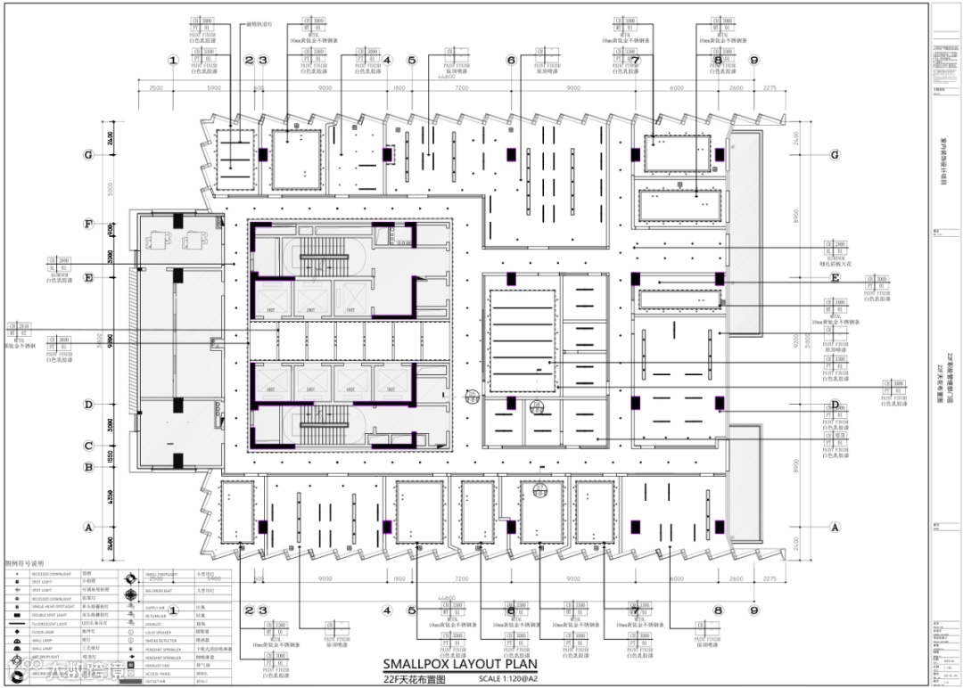
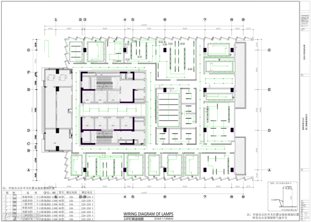
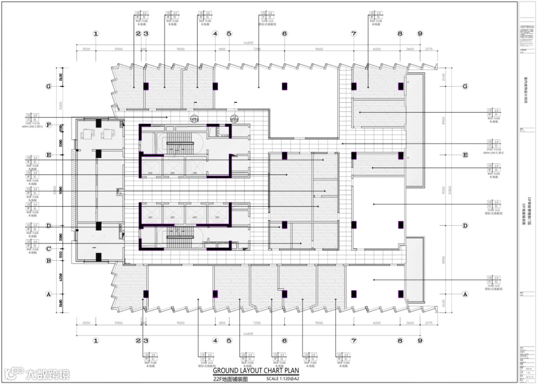
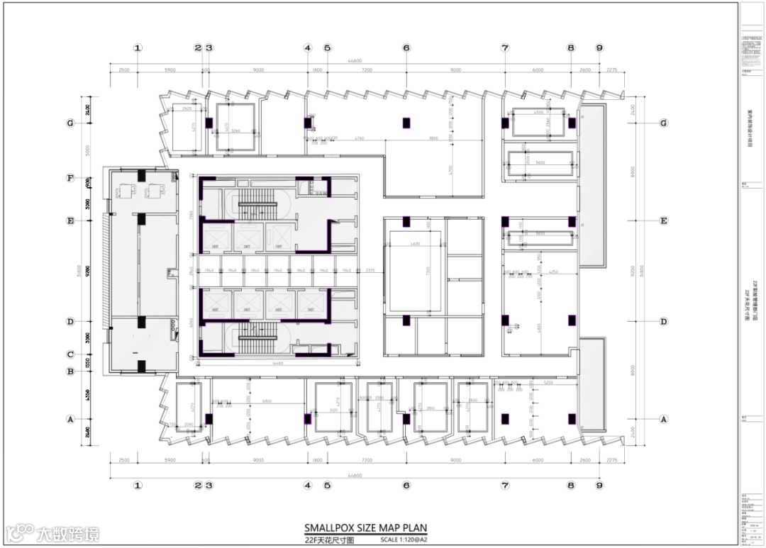
▼02-平面

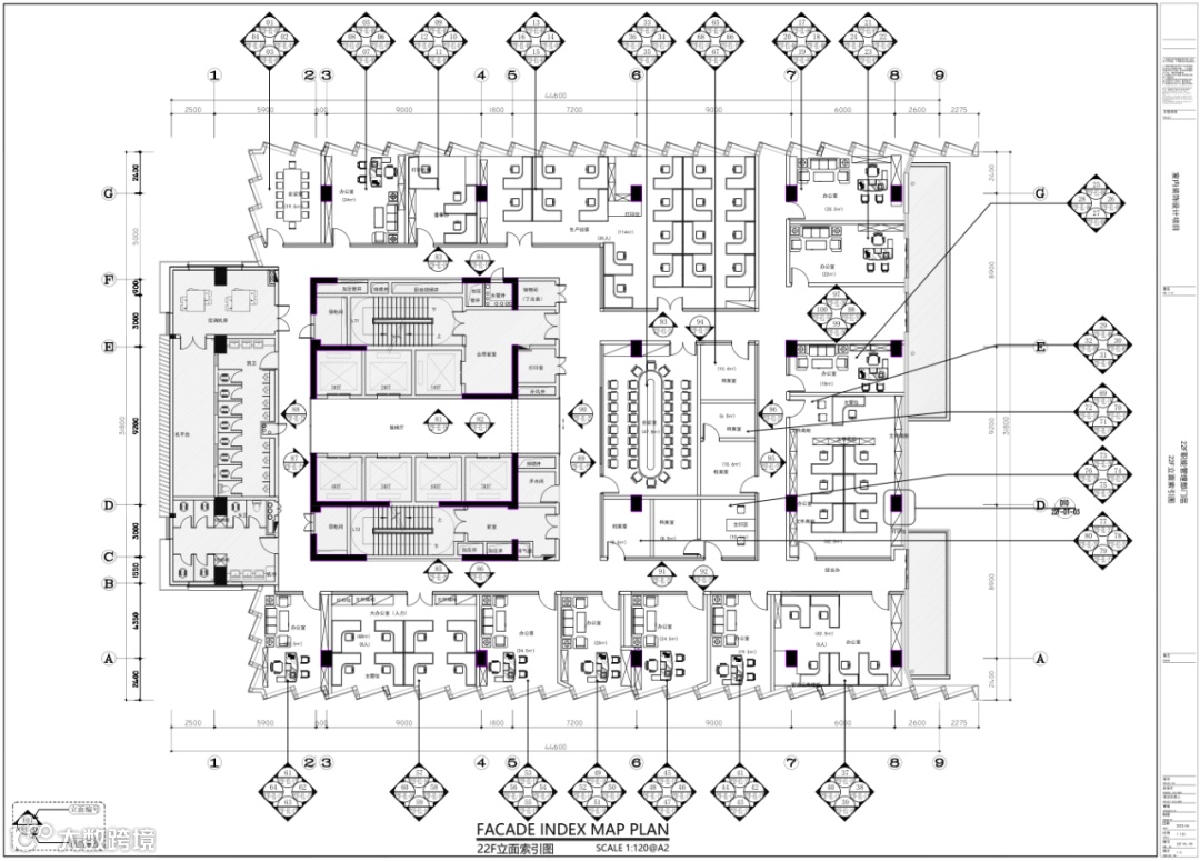
▼03-立面




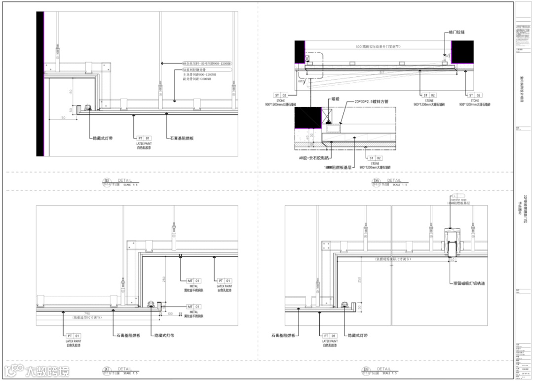
▼04-节点
分割线
合肥光影装饰设计有限公司地址:
安徽省合肥市包河区金中环广场B座12楼
售后电话:18055145252;18756952060;18956067920;18756951839;13395657577。
业务范围:
效果表现|施工图绘制与深化|全案设计|室外景观表现|漫游动画|水电|消防|暖通|盖章
涉及领域:
家装|办公|餐饮|清吧|酒店|民宿|别墅|商场|服装|学校|医院|银行|党政机构|指挥中心|展厅|会所|网咖|足浴|KTV|售楼部|健身房|超市|宴会厅|演播室

往期回顾▼
小伙伴们都在偷偷看这些▼

更多优质效果图案例请关注抖音号
▼

保存图片 - 打开抖音
更多效果图/施工图案例
请点击www.hfgysj.cn登陆我们的官网查看



