做为设计师,每天给客户设计不同风格的房子,自己的房子设计成什么样子,我思考良久。
在互联网时代设计师普遍焦躁,比较少静下心来思考方案,我自己的家希望做到“简洁”“身安”“心安”,但这种感觉很难描绘,所以引用了明·陈继儒《太平清话》比较贴近我的想法。《太平清话》东方文化中的通灵时间:凡焚香、试茶、洗砚、鼓琴、校书、侯月、听雨、浇花、对画、礼佛、偿酒、看山、临帖、刻竹、喂鹤……以现代中式的风格展示现代士大夫阶层的闲逸生活场景。
引-张九龄《羡鹤》
云间有数鹤,抚翼意无违。
晓日东田去,烟霄北渚归。
欢呼良自适,罗列好相依。
远集长江静,高翔众鸟稀。

这是宋徽宗《六鹤图》,收藏在日本
在中国古代文学和绘画中有个人画鹤最有名,那就是赵佶,即宋徽宗,宋朝第八位皇帝。赵佶在位26年,赵佶善书画。他自创一种书法字体被后人称之为“瘦金体”,热爱画花鸟画自成“院体”。这是他的"瑞鹤图"

历史评价宋徽宗是失败的皇帝,被后世评为“宋徽宗诸事皆能,独不能为君耳!但在他位时侧重文学出了很多书画家,给中国留下不少艺术财富,如《清明上河图》等。

[喂鹤]
鹤行走时,细腿高抬,挺胸昂首,迈着“矩步”,从不萎萎缩缩,徐缓而高雅,有一种“绅士”风度,透着阳刚之气。

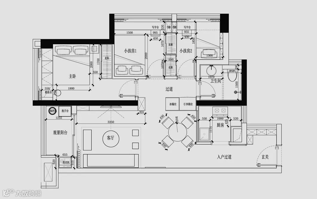
[客厅]
一开始也没想做太中式,希望现代一点,但又要把我想要的韵味表现出来,所以做了新中式。
客厅间距太窄,本不应做太多的柜子,但我有两个小孩,单玩具就好几箱,还是做柜子把它收起来,要不客厅一地都是玩具,所以把电视背景墙做了满墙的柜子,柜子中间留出够挂电视机就行,这样视点距离不变,多了好多储藏空间,餐厅与走道之间有一堵墙,把墙打掉,利用墙厚空间加上餐厅一点空间,做了一个650MM的柜子,侧面放冰箱,靠走道面放行李箱,好都设计师给别人家设计的时候会忽视掉,等搬进来住的时候行李箱没地方放。

墙面想做出这样的效果,很多时候都是用硬包,这里我尝试了用不锈钢条,墙上挖槽把不锈钢埋进一半,墙上再刮灰刷涂料,效果还不错,简单大方还环保。

餐桌也是按我设计的尺寸定制,桌面大理石其实是很厚的,我磨斜边让它看起来很薄,其实很结实。

客厅的两个小黄方櫈,灵感来源于以前家里的小胶圆櫈,用起来很方便,比如在客厅泡茶,这个高度坐起来比较舒服,现在这两个小方櫈也是我女儿最喜欢的,我女儿刚刚学走路,整天在这上面爬来爬去的。

餐厅和厨房之间的墙我开了个洞,加了一块玻璃,玻璃没有全部固定封死,一是厨房的窗户太小了,加一点采光面,二是让厨房通风更顺畅。

客厅地毯定制了水墨地毯,想在现代的基础上加点中式元素,墙上的挂画我也加了点水墨纹理,画的是荷叶,想做肌理效果,沟通几次画师还是搞不出来,就简单做仿旧效果。

客厅的沙发也是定制的,主沙发2700mmx650mm,这个尺寸也是电梯刚好能拿上来,由于客厅的间距不是太宽,所以沙发的进深做650,不过也符合中式文化里坐有坐像,站有站像。

这个沙发也和传统的沙发不一样,我要求像军队里叠的被子一样,像个豆腐块

中式风格配色,除了黑白灰,还有帝王金黄色和中国红了,餐厅这幅画定制前为了能和餐桌上的花有呼应,加了少许黄色。

[浇花]
溪花与禅意,相对亦忘言。【唐】刘长卿
诗人看见了“溪花”,却浮起“禅意”,从幽溪深涧的陶冶中得到超悟,从摇曳的野花静静的观照中,领略到恬静的清趣,溶化于心灵深处是一种体察宁静,荡涤心胸的内省喜悦,自在恬然的心境与清幽静谧的物象交融为一。
况且禅宗本来就有拈花微笑的故事,这都溶入默契不言的妙悟中,而领会出“禅意”,因用“与”,把物象和情感联结起来。禅宗的妙悟和道家的得意忘言,有内在相通之处。佛道都喜占山林,幽径寻真,荡入冥思,于此佛道互融,而进入“相对亦忘言”的精神境界。

[校书]
半亩方塘一鉴开,天光云影共徘徊。


在过道边上设计了一排书架,放少许书本让空间有少许书香味。


[洗砚]
过去的书画家常说,人磨墨,墨磨人。就是把燥急的性子一点一点地磨下去,心性澄明笔端自有烟云。
《小窗幽记》提醒“清闲之人不可惰其四肢,又须以闲人做闲事”,其中一项便是“洗砚宿墨”,地毯选用水墨纹,把中式元素引进。

[试茶]
与赵莒茶宴【唐】钱起
竹下忘言对紫茶,全胜羽客醉流霞。
尘心洗尽兴难尽,一树蝉声片影斜。

[焚香]
焚香,是一件雅致的事情,非雅者不能体会其中妙处。上至帝王之家,下到山野夫子,有品位之人,都对焚香痴迷之极。书画之家,净手焚香,饱蘸浓墨,笔走龙蛇,一气呵成。
《梦梁录》云:“焚香点茶、挂画插花,四般闲事,不适累家。”整日奔波于尘世旅途,不免太过于无趣,在清闲时候,沏茶细品,焚香闻道,挂画插花,虽然都是些简单之事,却充满美感。


卧室床背景做了硬包背景,布料用了深灰色,和墙面的浅灰色呼应,窗帘的用色和靠枕用色一样,挂画用色和枕头呼应,用一黄色为跳色,这样整个空间不会太冷。
窗台做了梳妆台,梳妆柜,柜门打开就是精装。

[礼佛]

小孩房空间比较小,建筑墙体还不平,所以做了个阁物架,在落地窗前做一个写字台,这样写作业的问题就解决了,因为空间小,床我也是现场做的,靠墙放。

走道侧面做了行李箱柜,柜子吊脚,这样行李箱就可以直接推进去,两个小孩房天花没有吊顶,所以空调装在走道往房间出风,房门下面做了回风。

卫生间做了壁挂马桶,台面用大理石与洗手台齐平,有足够台面放东西,洗手台柜也做悬空设计,害怕柜子受潮,女儿还小,现在都是用盆两个人帮忙给她冲凉,所以淋浴用软帘,这样空间会大一点。


