
1.项目类别|Project category :新中式复式
2.设计需求|Designer:符合施工需求
3.项目类型|Project type:家装
4.制图公司|Drawing unit:光影(合肥)装饰设计有限公司
▼01-封面目录说明材料表






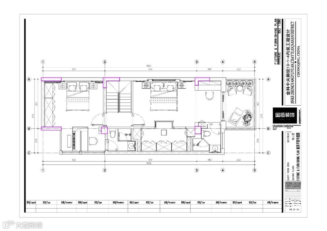
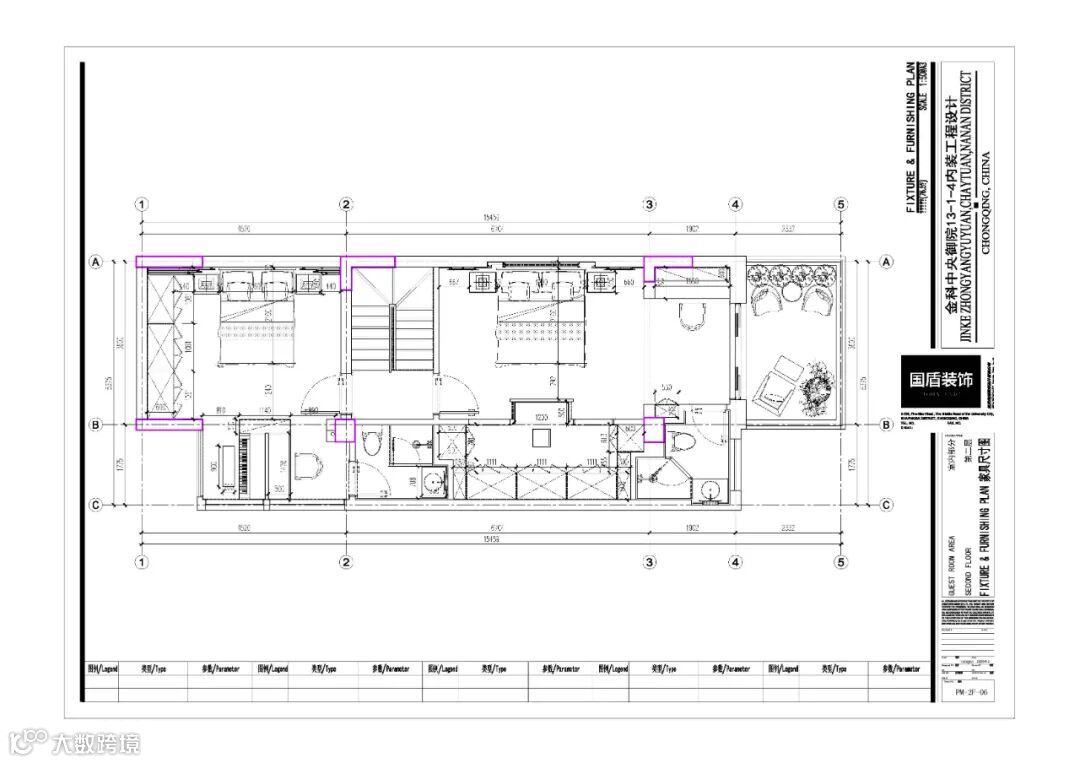
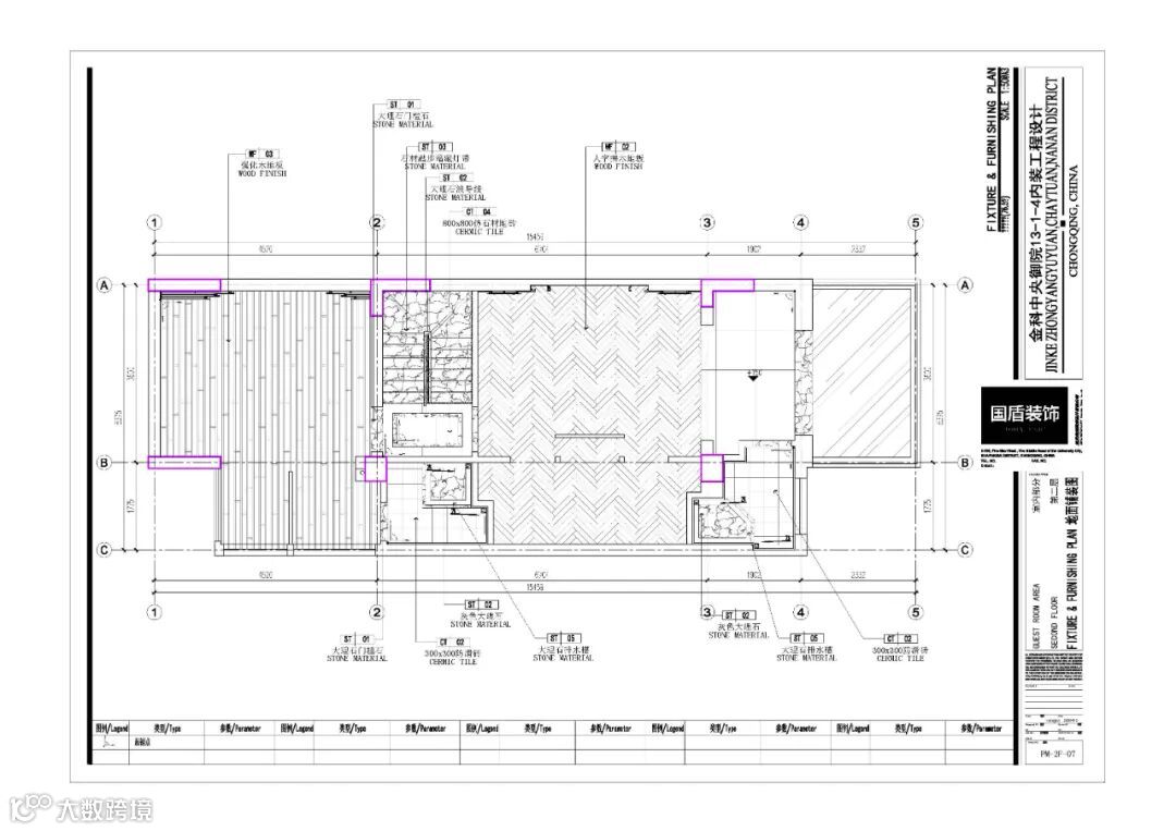
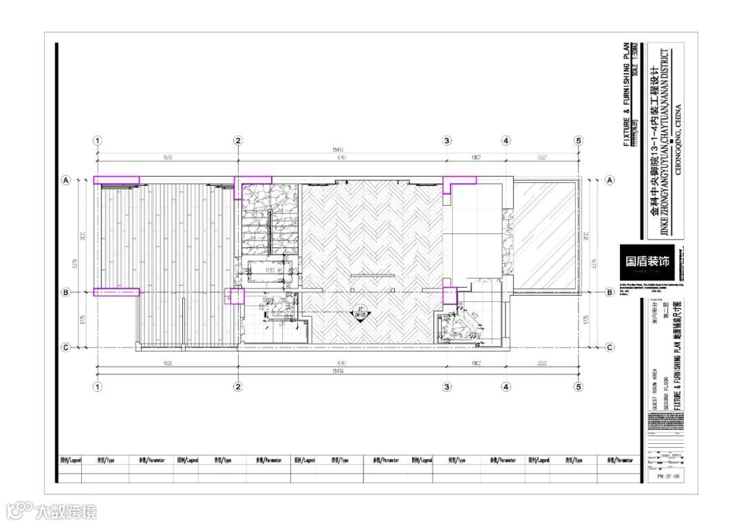
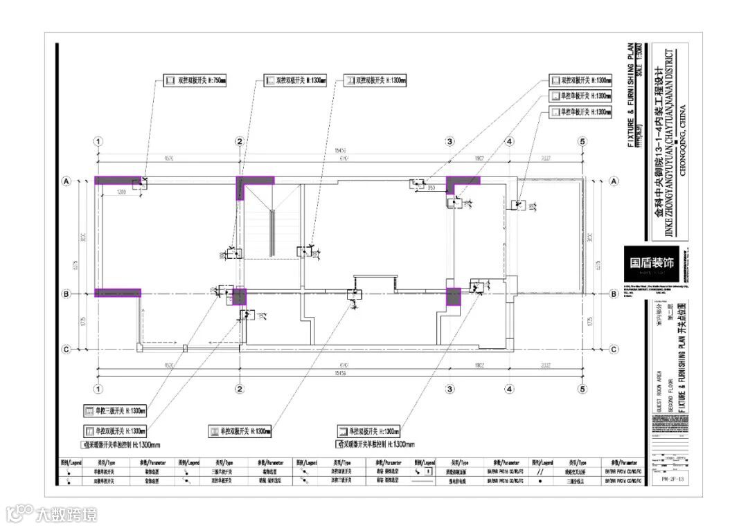
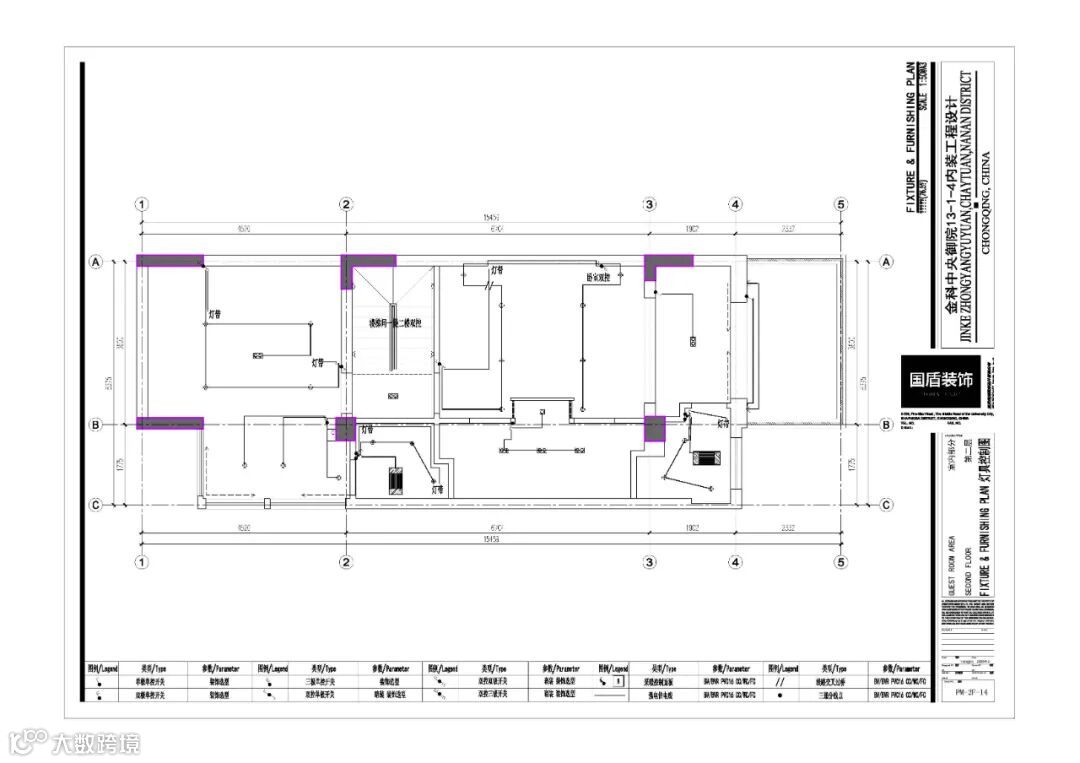
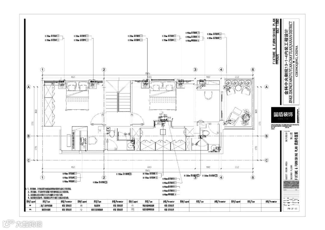
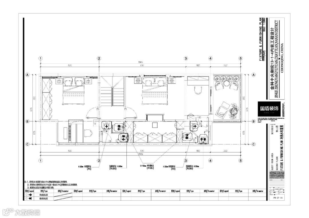
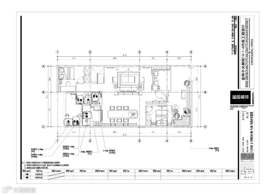
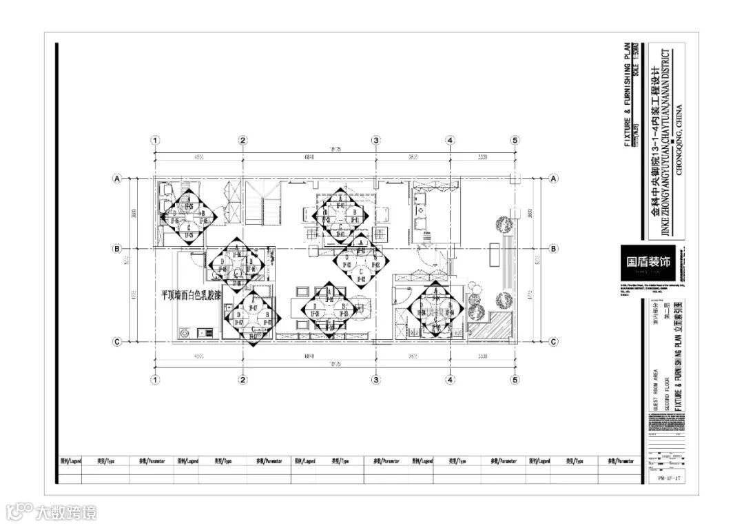
▼ 02-平面图


































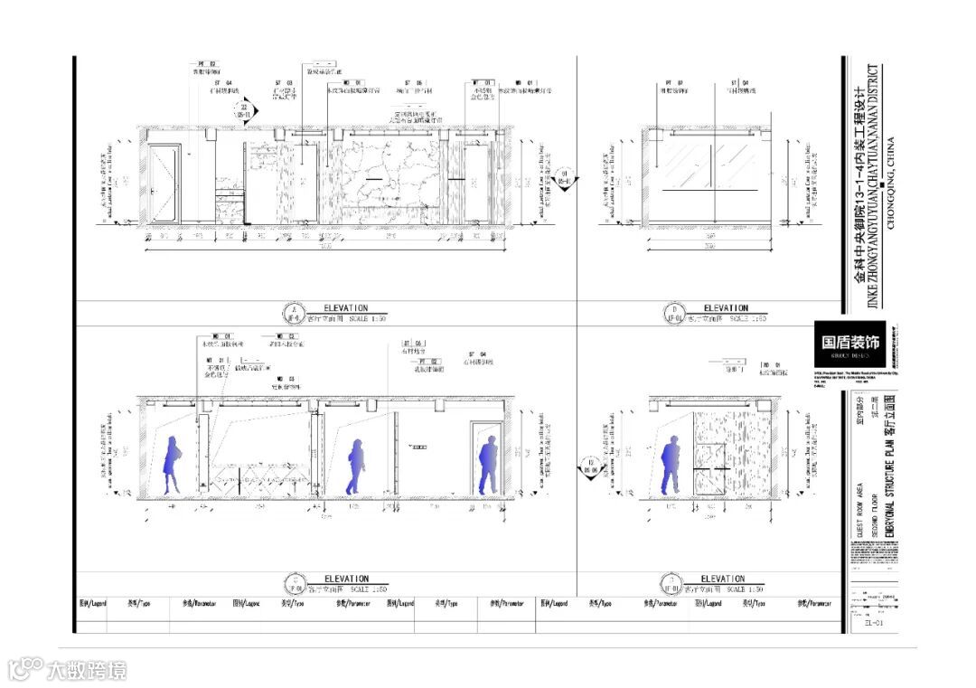
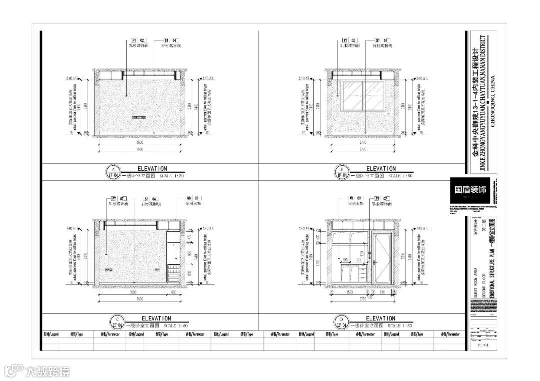
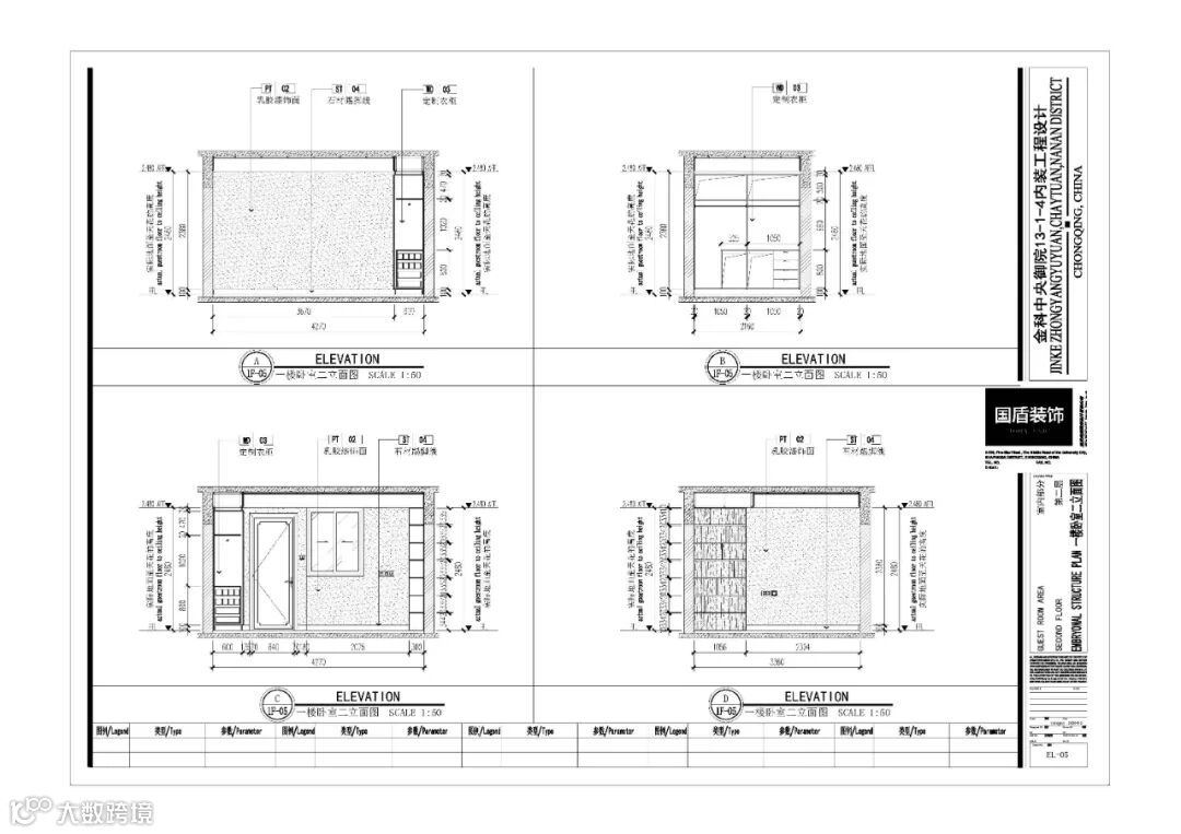
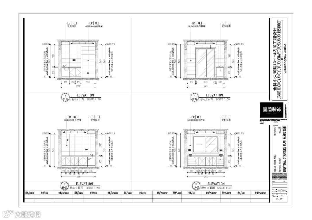
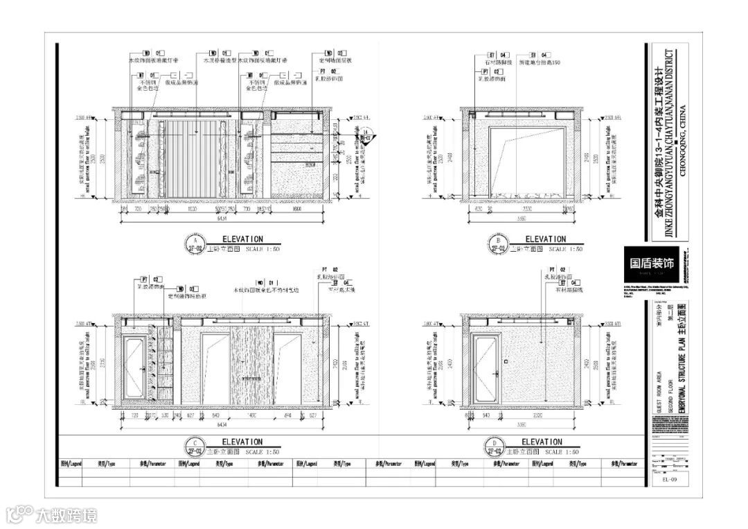
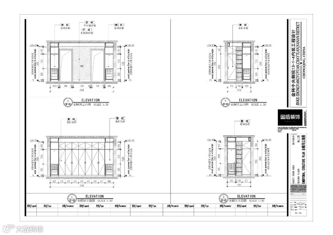
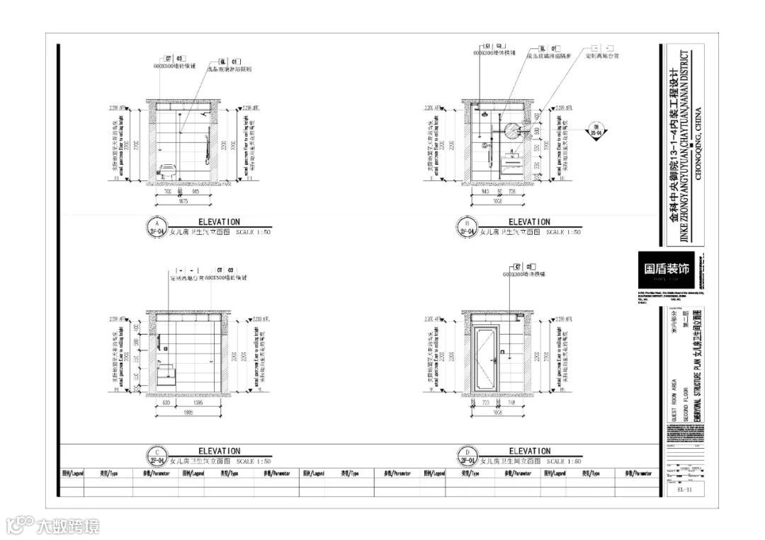
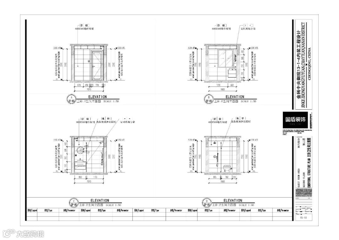
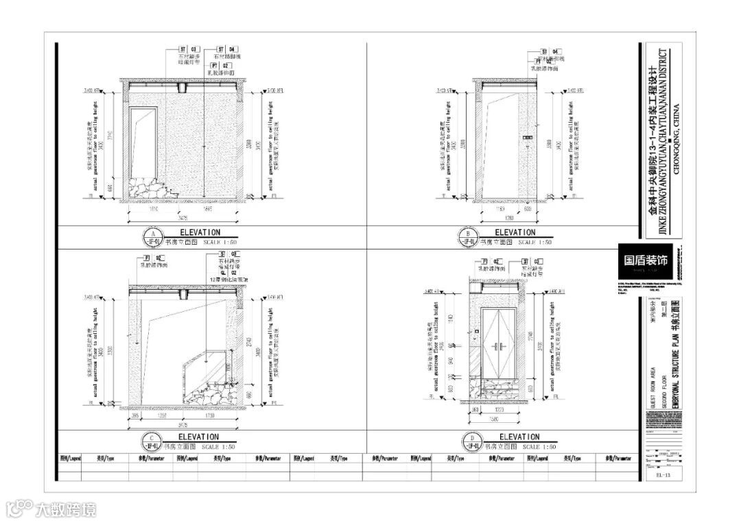
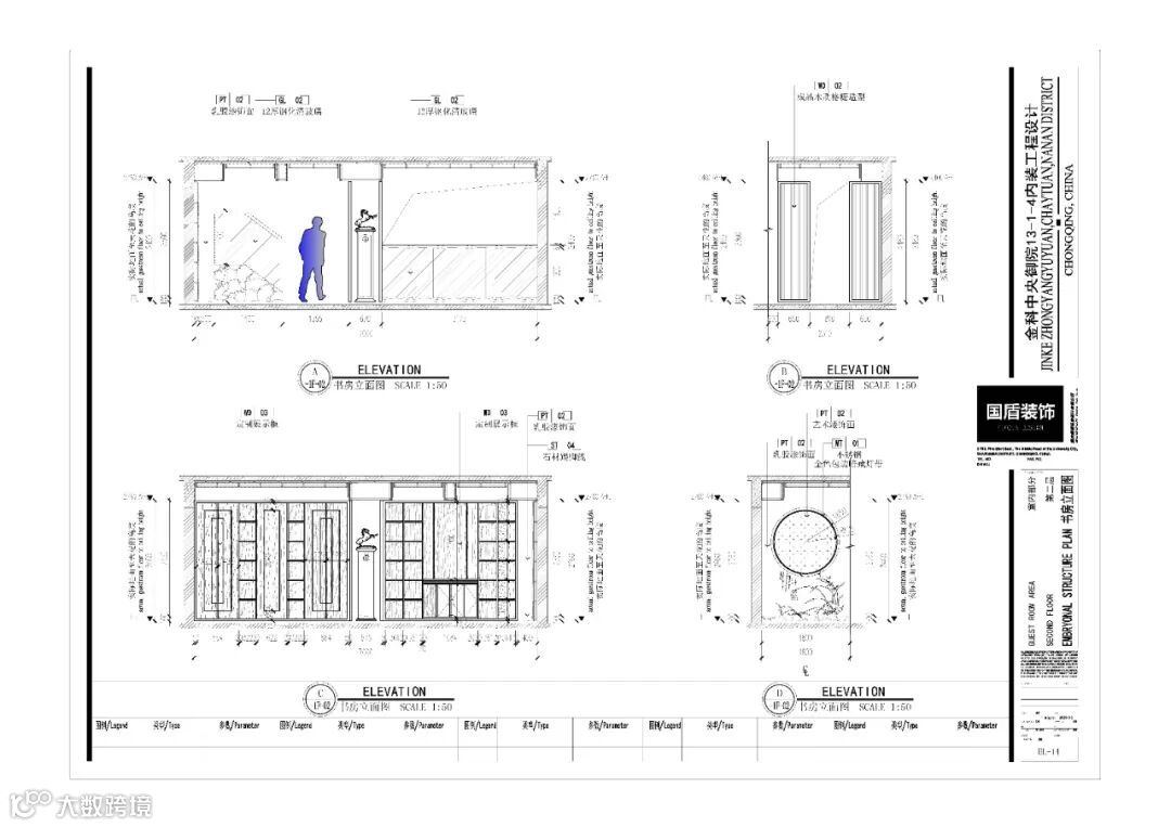
▼ 03-立面图















▼ 04-节点图













合肥光影装饰设计有限公司地址:
安徽省合肥市包河区金中环广场B座12楼
售后电话:18055145252;18756952060;18956067920;18756951839;13395695557。
业务范围:
效果表现|施工图绘制与深化|全案设计|室外景观表现|建筑外立面|建筑动画|水电|消防|暖通|盖章
涉及领域:
家装|办公|餐饮|清吧|酒店|别墅|商场|服装|公共空间|娱乐空间
往期回顾:
好看的效果图都在这里↓↓↓
更多全景案例请关注抖音号
▼

保存图片 - 打开抖音
觉得好看,点击这里⬇⬇





