
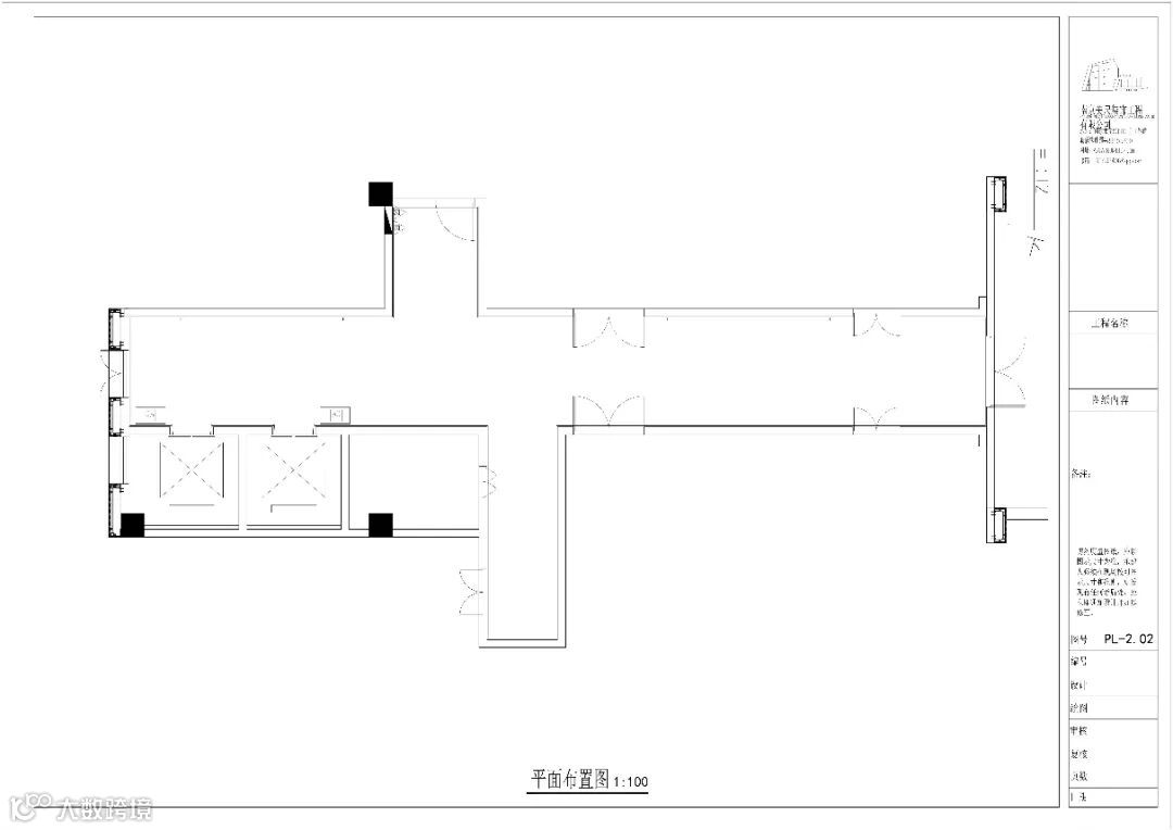
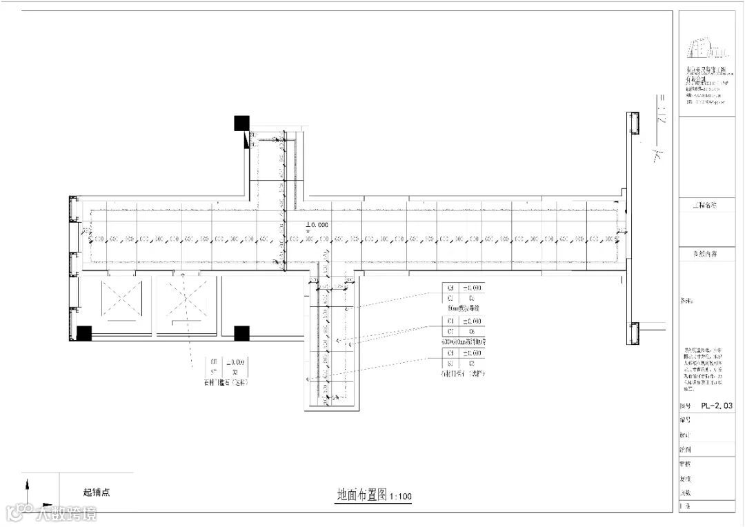
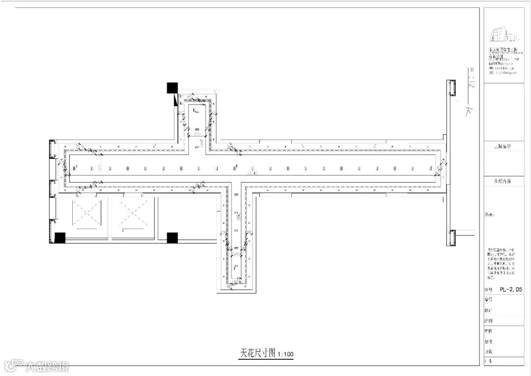
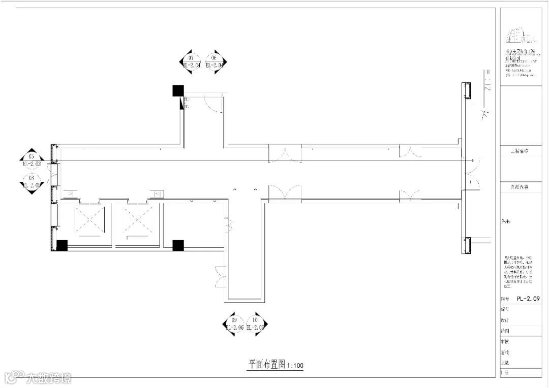
1.项目类别|Project category :园区电梯厅
2.设计需求|Designer:符合公司文化
3.项目类型|Project type:工装
4.制图公司|Drawing unit:光影(合肥)装饰设计有限公司




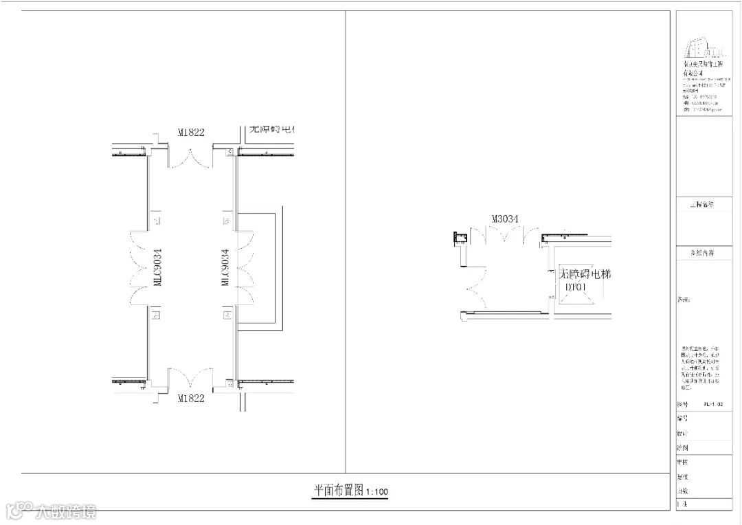
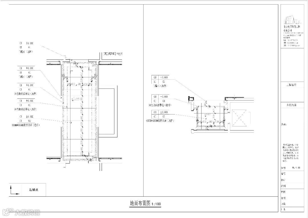
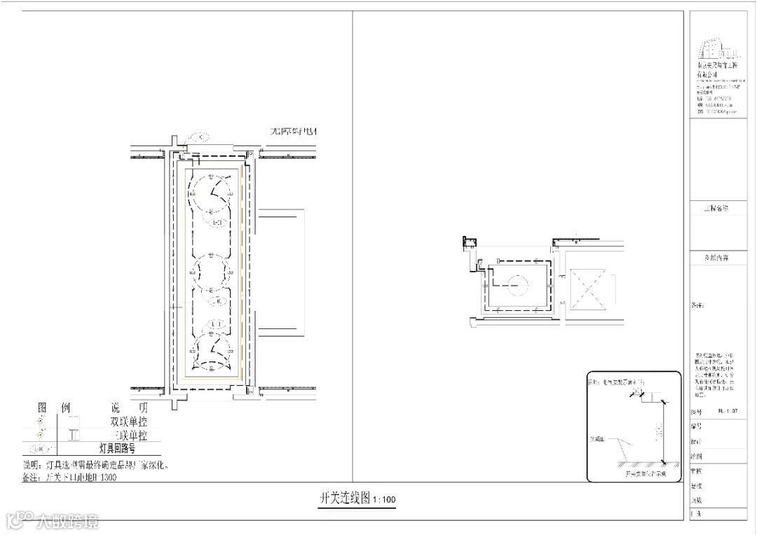
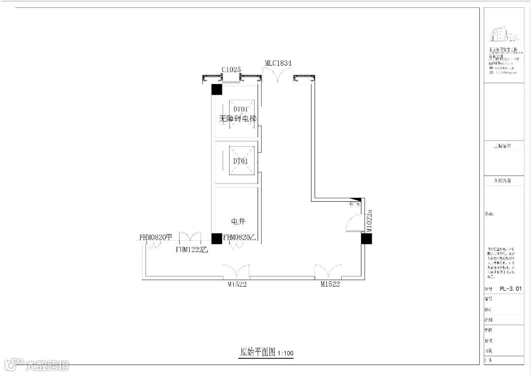
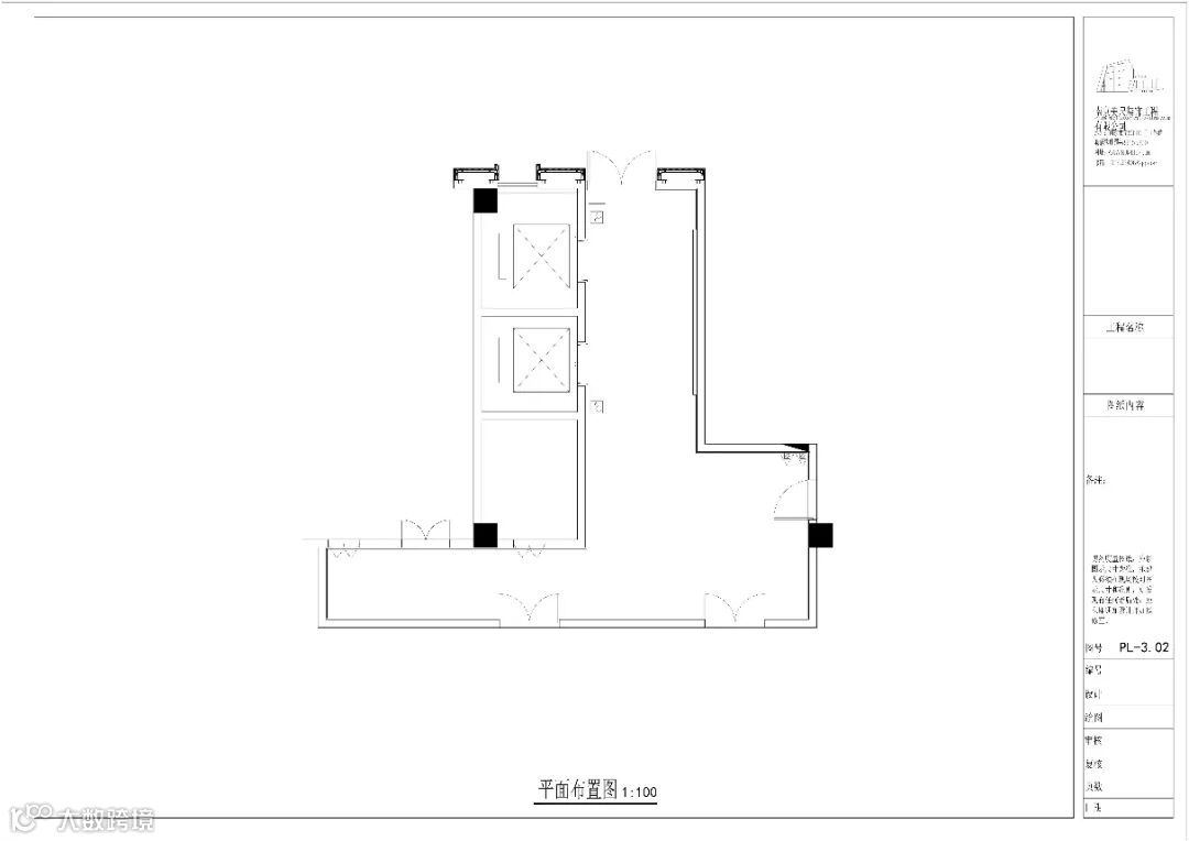
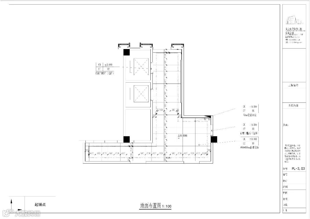
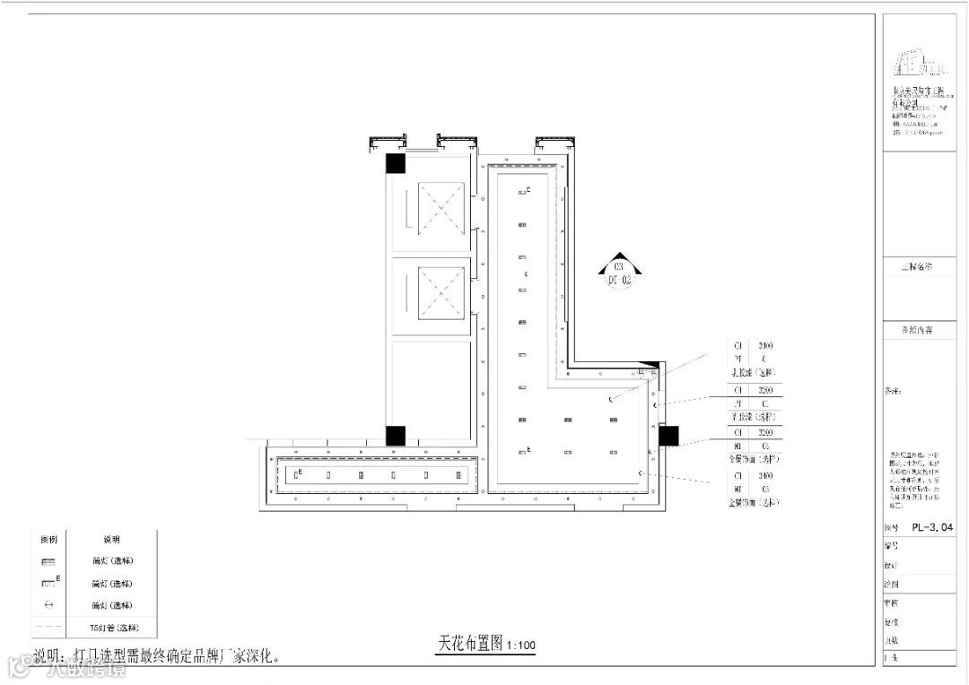
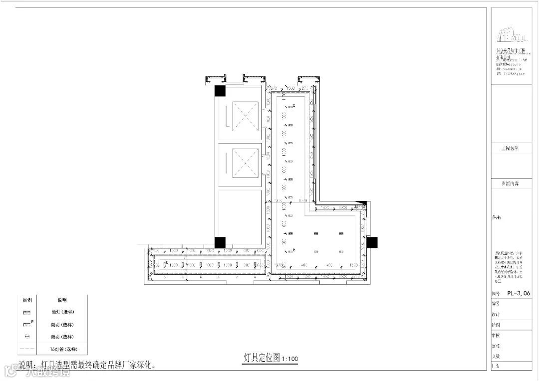
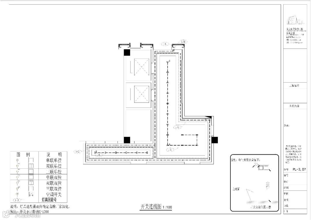
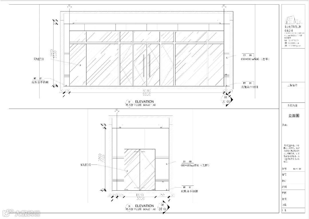
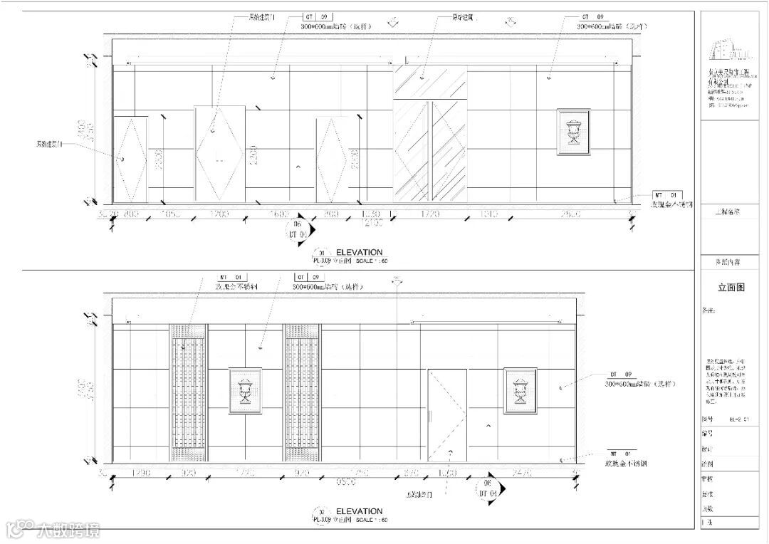
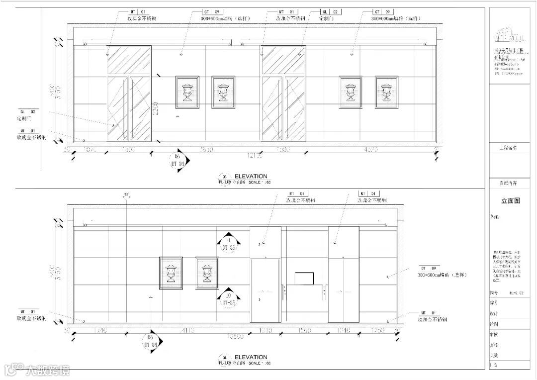
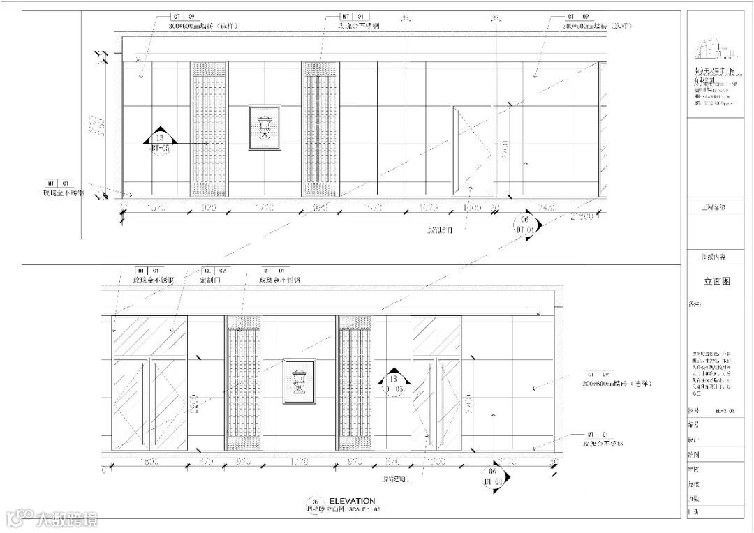
▼ 平面



























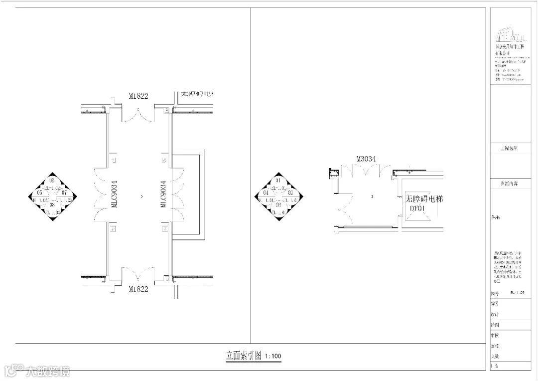
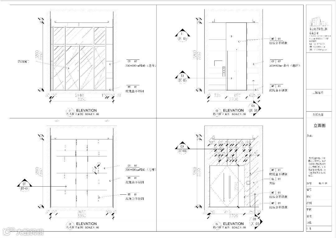
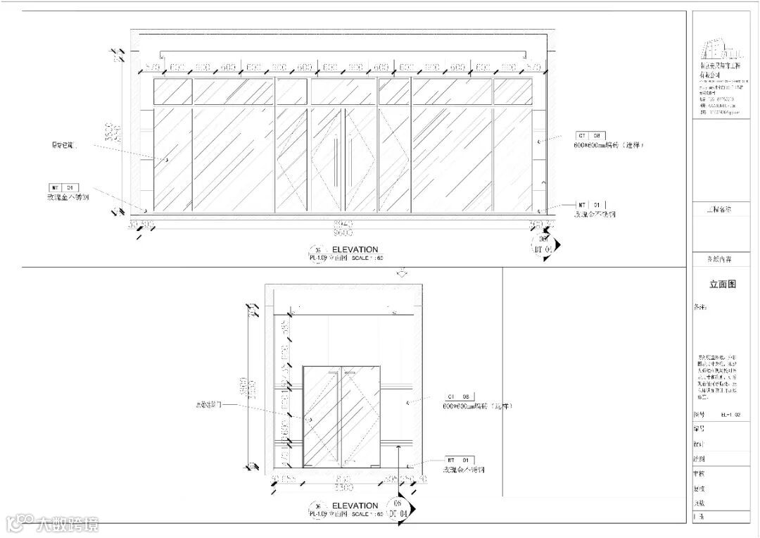
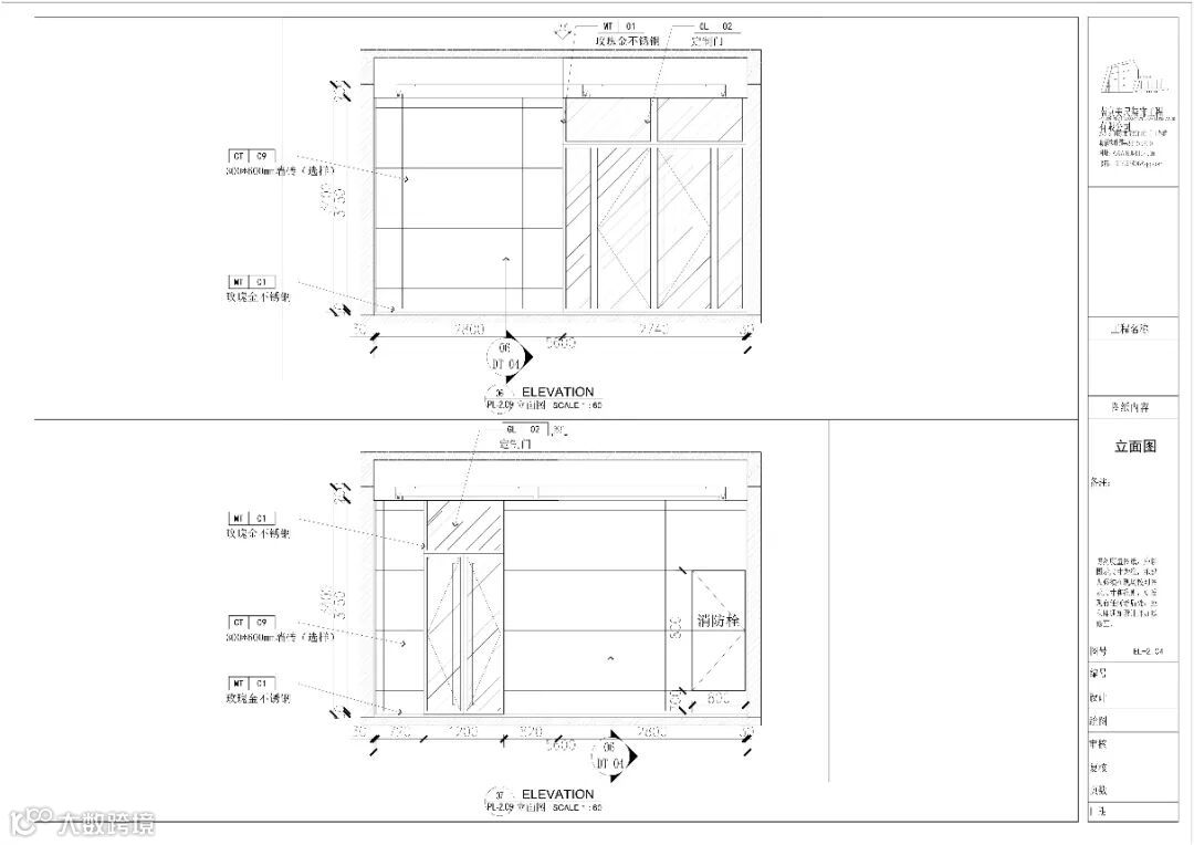
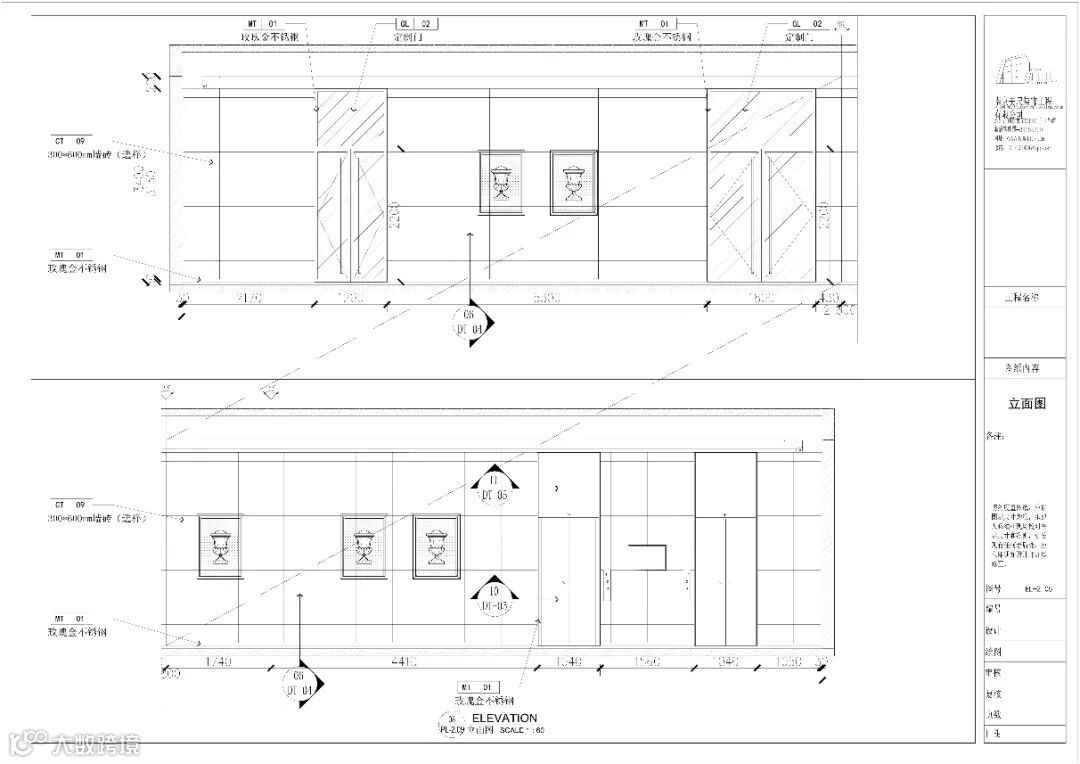
▼ 立面









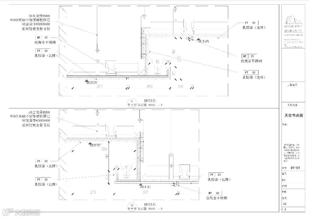
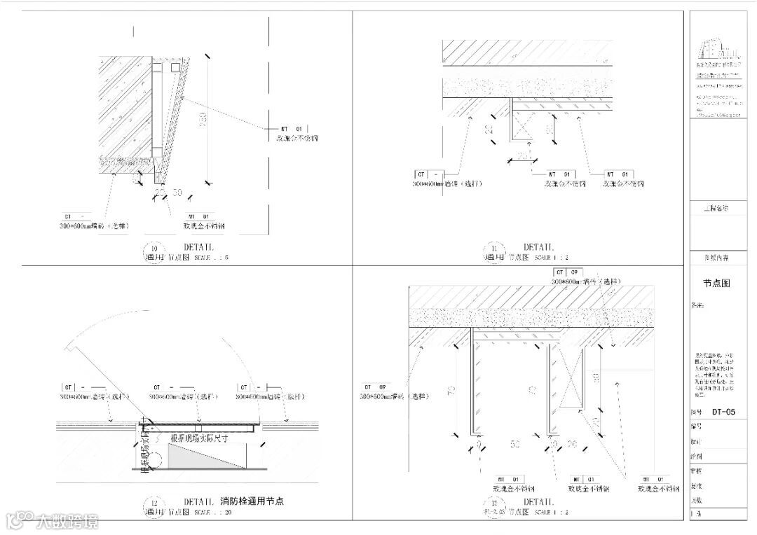
▼ 节点





合肥光影装饰设计有限公司地址:
安徽省合肥市包河区金中环广场B座12楼
售后电话:18055145252;18756952060;18956067920;18756951839;13395695557
业务范围:
效果表现|施工图绘制与深化|全案设计|室外景观表现|建筑外立面|建筑动画|水电|消防|暖通|盖章
涉及领域:
家装|办公|餐饮|清吧|酒店|别墅|商场|服装|公共空间|娱乐空间
往期回顾:
小伙伴们都在偷偷看这个:
更多全景案例请关注抖音号
▼

保存图片 - 打开抖音





