
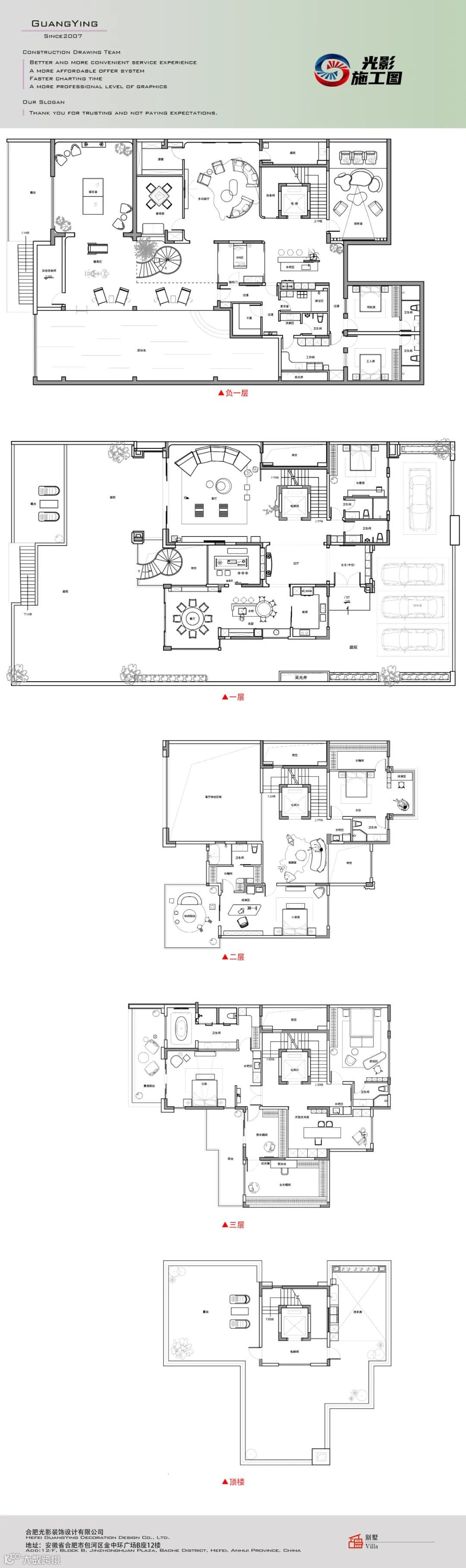
【平面】四层别墅
合肥光影设计2024-03-23
0
导读:四层别墅
【声明】内容源于网络
0
0
合肥光影设计
光影设计成立于2007年,总部位于合肥,是国内装饰视觉设计效果图行业的领军企业。主营室内外效果图、360全景、施工图等,专业服务于全国装饰装潢公司、设计公司、设计院等范围的设计师群体。效果图100元即可制作。官网:www.hfgysj.cn
内容 536
粉丝 0
总阅读5
粉丝0
内容536

