大数跨境

【项目】2000平 | 接待大厅施工图 | 光影施工图深化设计公司经典案例

【项目】2000平 | 接待大厅施工图 | 光影施工图深化设计公司经典案例 合肥光影设计
2026-03-21
0
导读:服务内容:深化设计、施工图深化 | 项目面积:2000平

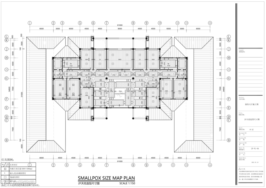
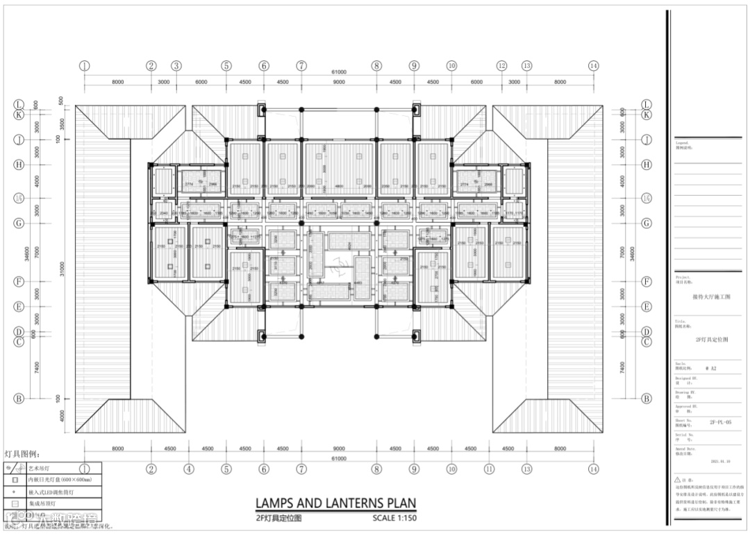
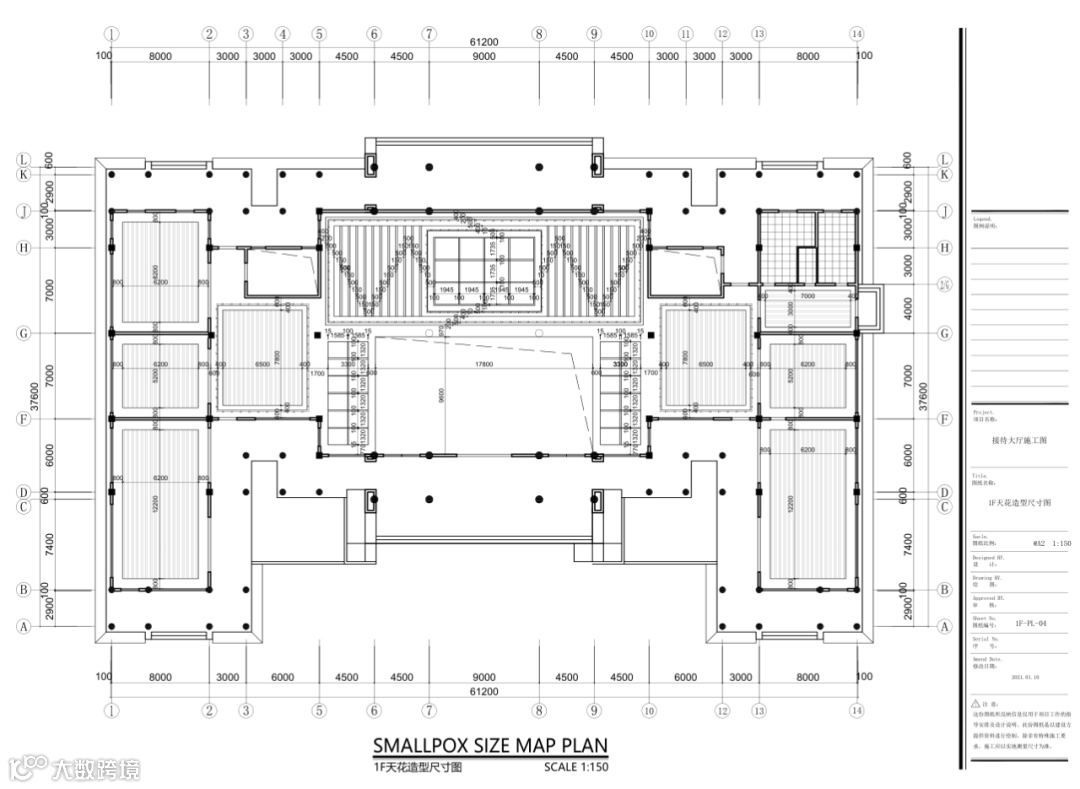
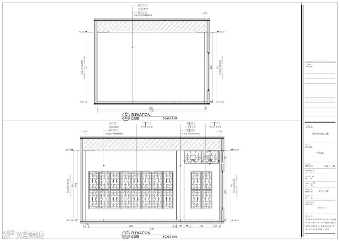
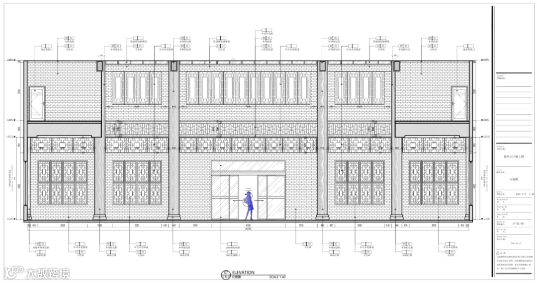
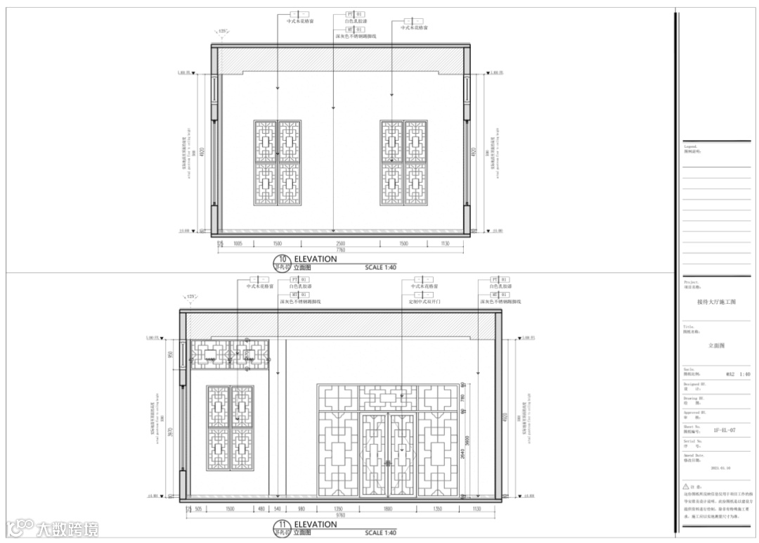
接待大厅施工图深化
服务内容:深化设计、施工图深化
服务时间:2021年
项目总面积:2000平
图纸深度:普通标准
深化公司介绍:专注于办公+餐饮+娱乐各类家、工装空间图纸深化领域。
*光影施工图深化公司致力于成为您身边高效、贴心、靠谱的施工图深化团队

*以下项目资料为部分资料,未经许可,不得转载,转者必究!*

▼01-封面目录材料表施工说明



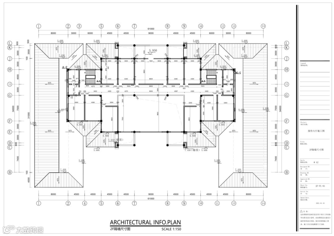
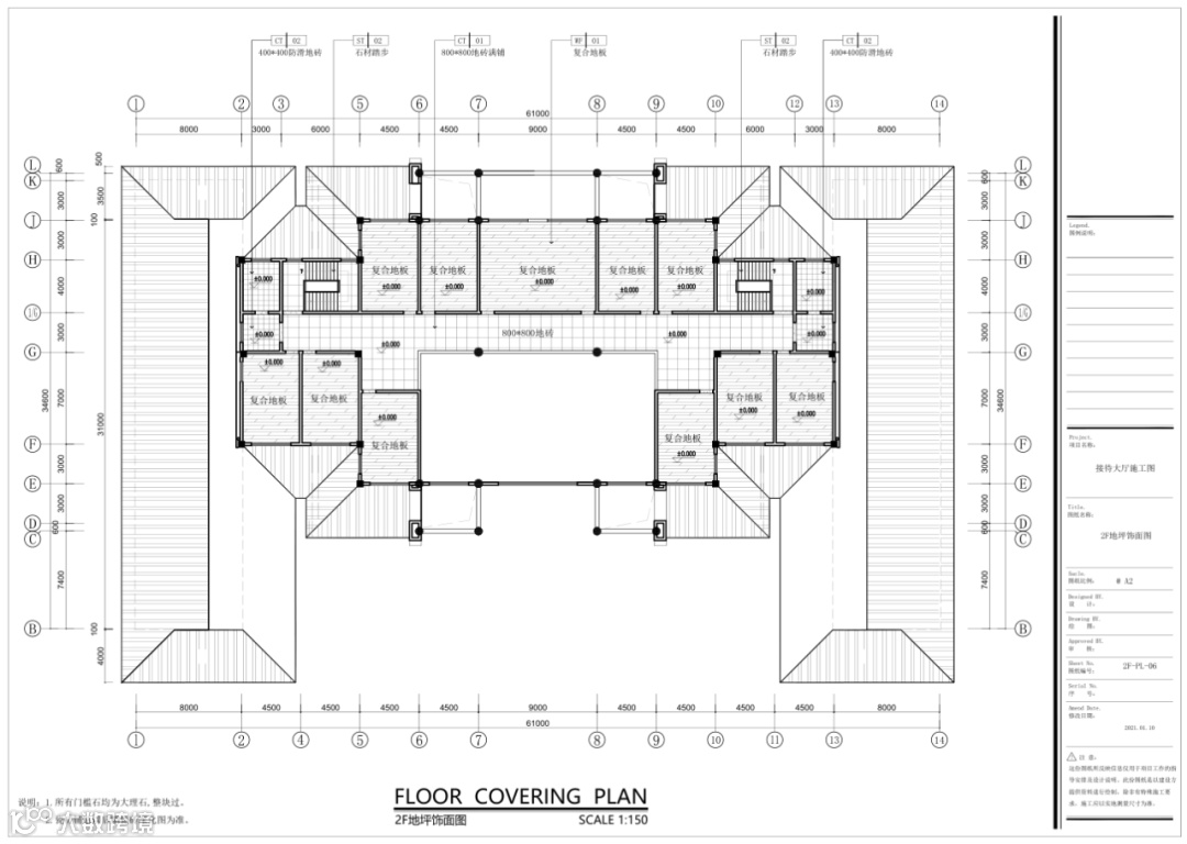
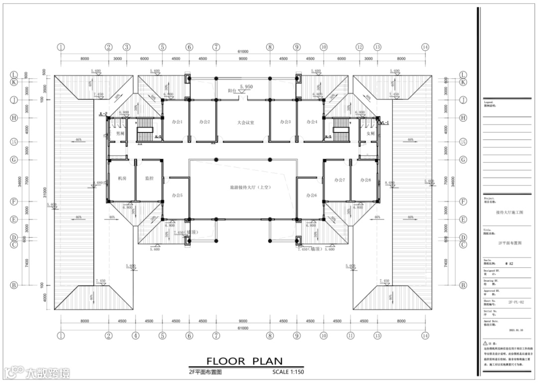
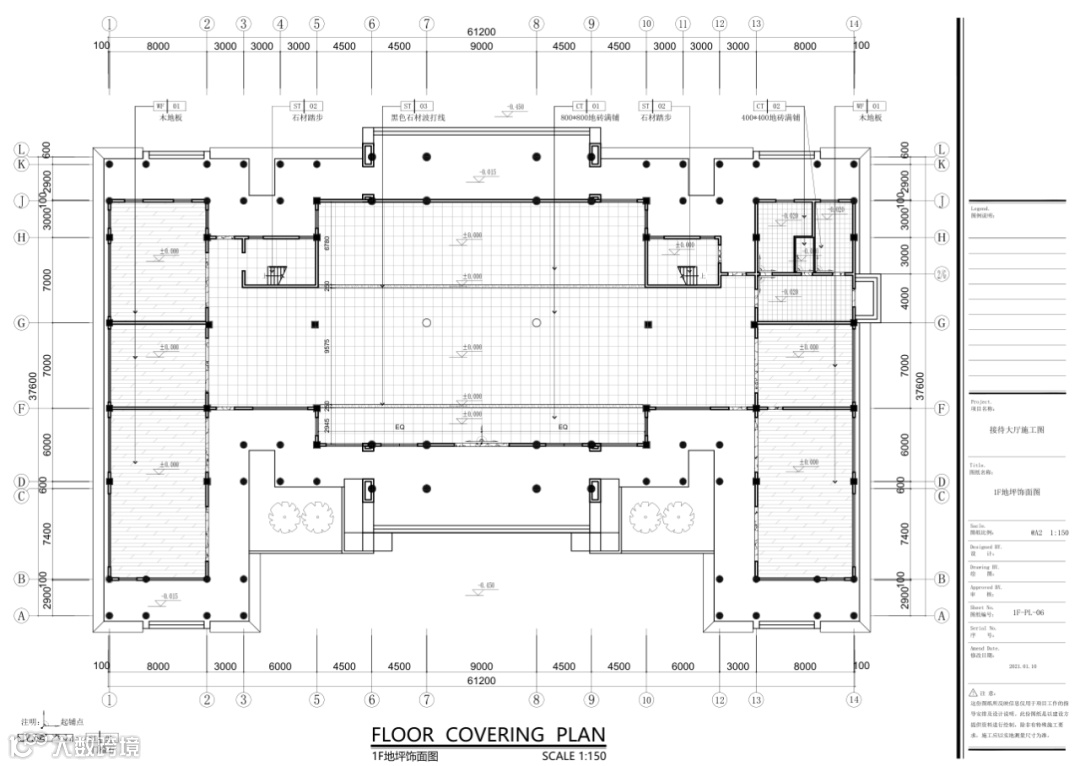
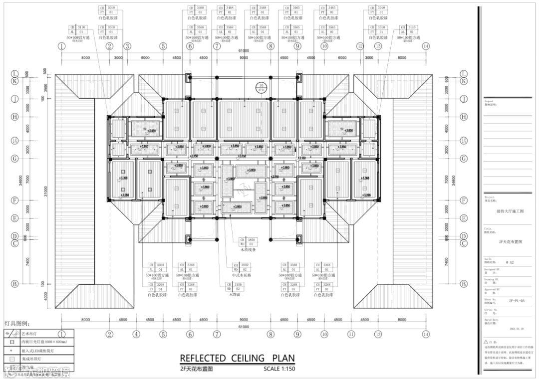
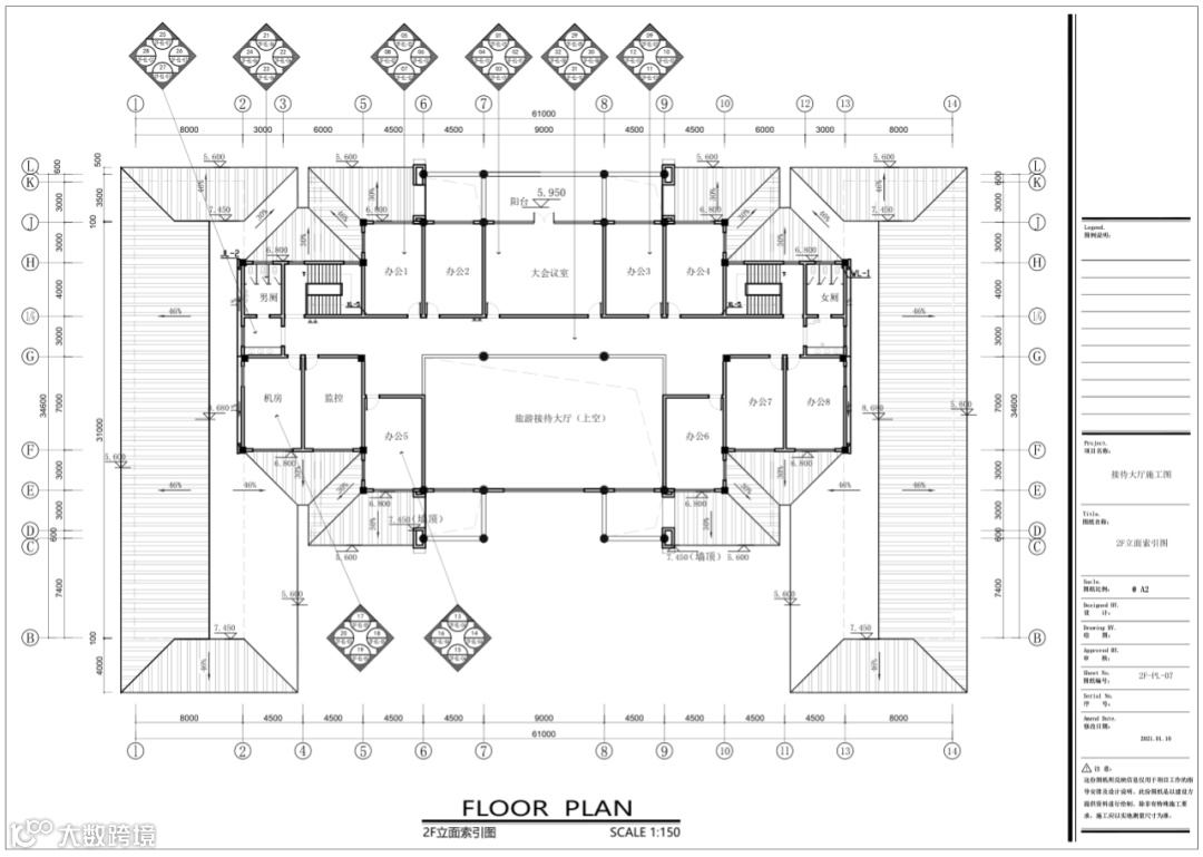
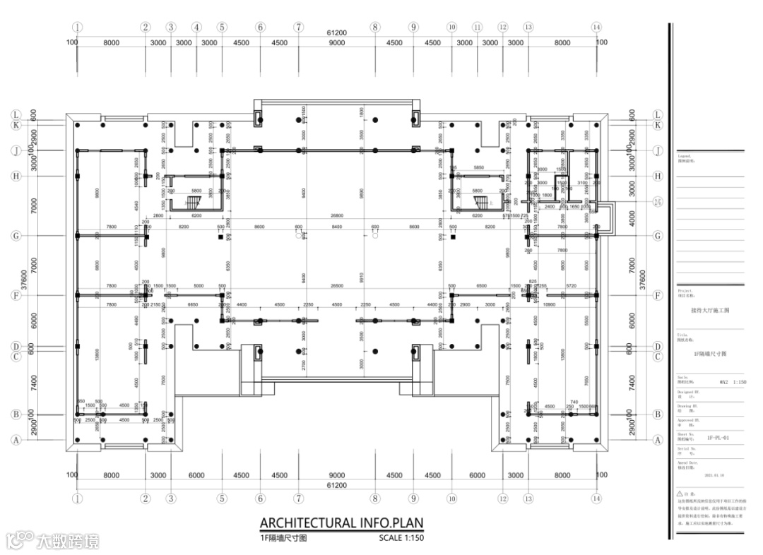
▼02-平面




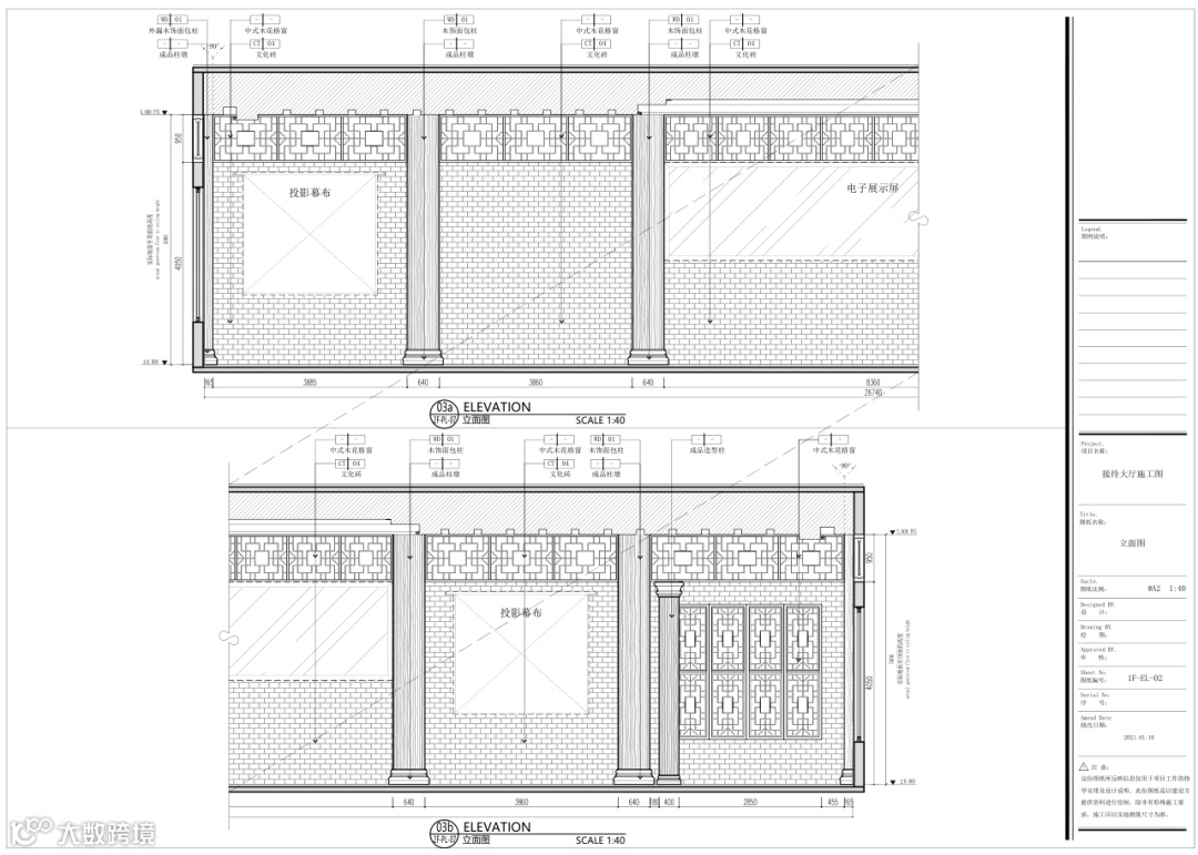
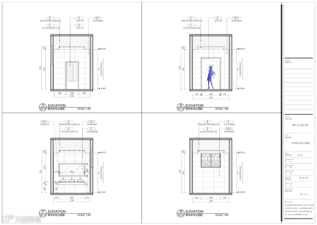
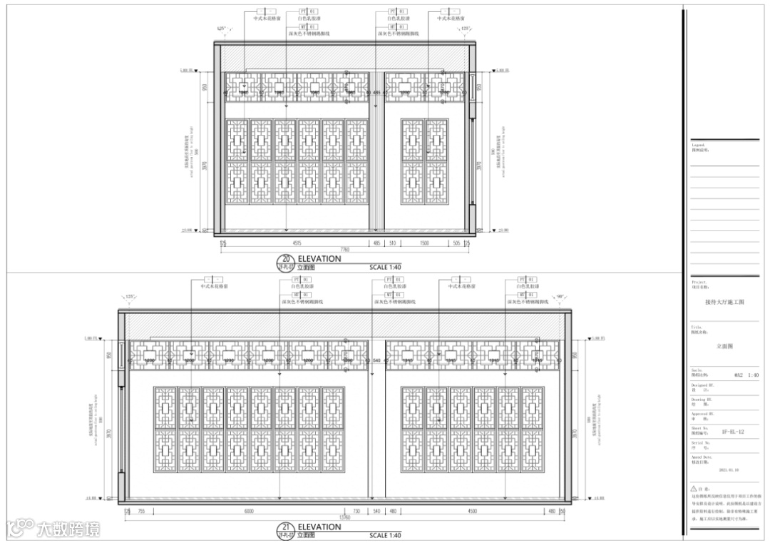
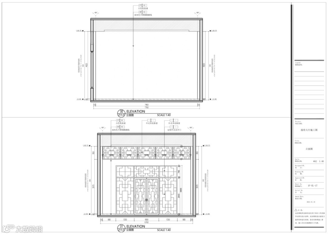
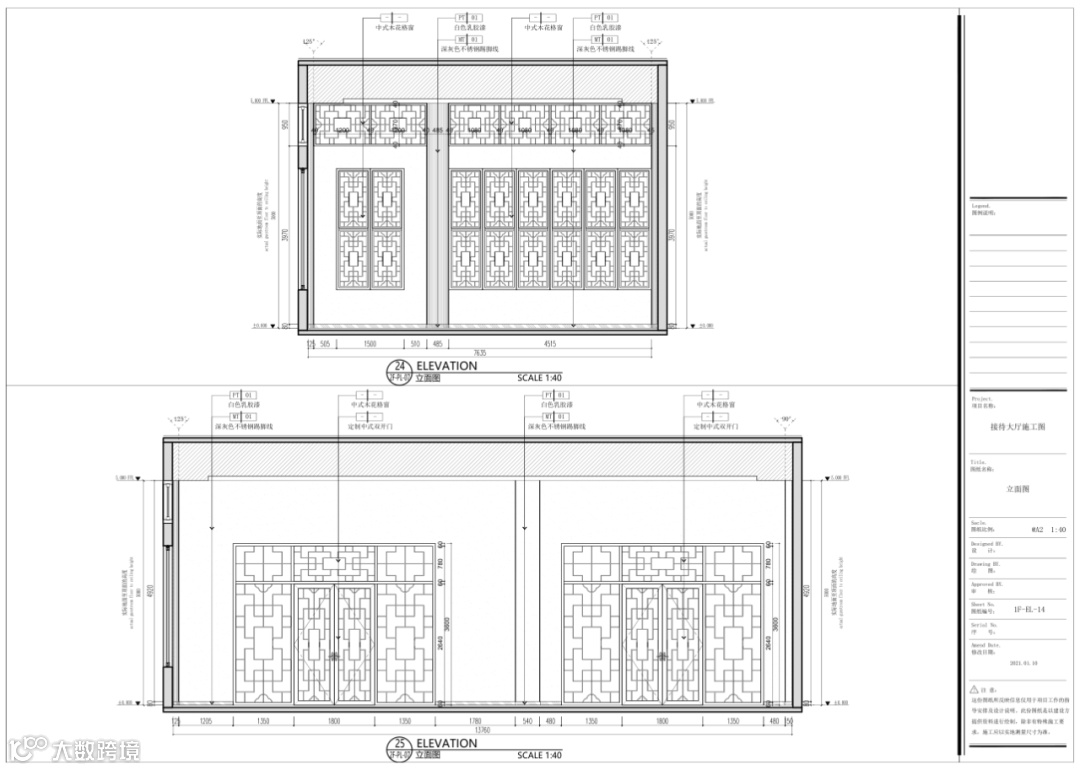
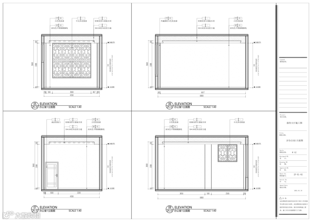
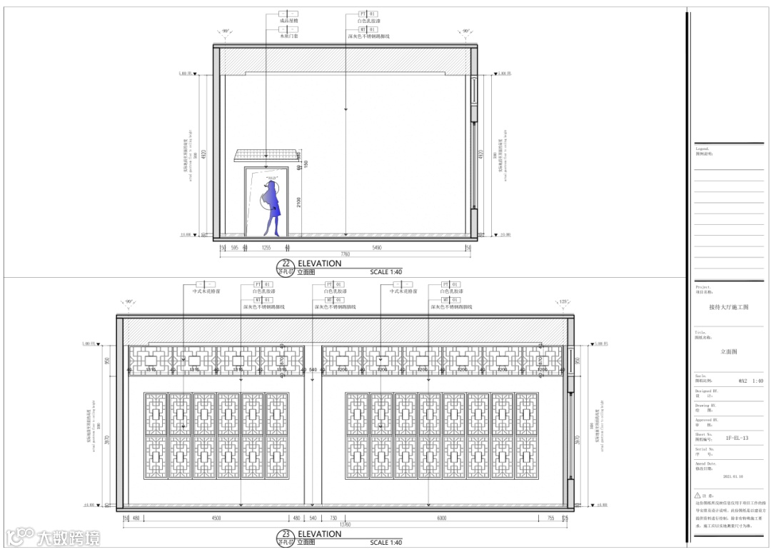
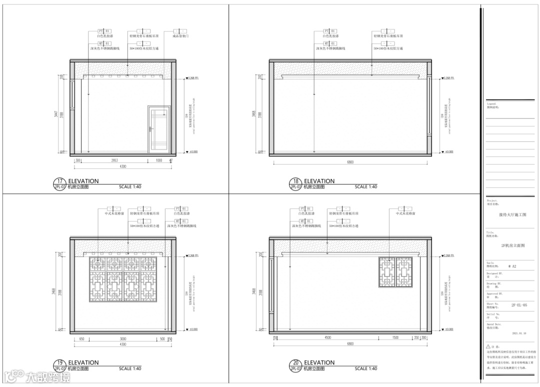
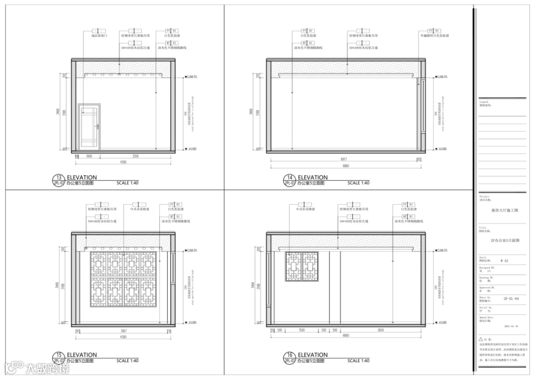
▼03-立面



▼04-节点



线


合肥光影装饰设计有限公司地址:
安徽省合肥市包河区金中环广场B座12楼
售后电话:18055145252;18756952060;18956067920;18756951839;13395657577。

业务范围:

效果表现|施工图绘制与深化|全案设计|室外景观表现|建筑外立面|建筑动画|水电|消防|暖通|盖章

涉及领域:

家装|办公|餐饮|清吧|酒店|别墅|商场|服装|公共空间|娱乐空间


往期回顾




小伙伴们都在偷偷看这些




 



更多优质效果图案例请关注抖音号

保存图片 - 打开抖音


更多效果图/施工图案例

请点击www.hfgysj.cn登陆我们的官网查看

【声明】内容源于网络
0
0
合肥光影设计
光影设计成立于2007年,总部位于合肥,是国内装饰视觉设计效果图行业的领军企业。主营室内外效果图、360全景、施工图等,专业服务于全国装饰装潢公司、设计公司、设计院等范围的设计师群体。效果图100元即可制作。官网:www.hfgysj.cn
内容 536
粉丝 0
合肥光影设计 光影设计成立于2007年,总部位于合肥,是国内装饰视觉设计效果图行业的领军企业。主营室内外效果图、360全景、施工图等,专业服务于全国装饰装潢公司、设计公司、设计院等范围的设计师群体。效果图100元即可制作。官网:www.hfgysj.cn
总阅读5
粉丝0
内容536