ERIC TAI DESIGN AND
RESEARCH OFFICE
戴勇设计研究室
Vol.19

溪声山色取自苏轼《赠东林总长老》里的“溪声便是广长舌,山色岂非清净身”,寓意气定神闲,不惹尘埃清新脱俗的境界。提炼“山”元素进行创作,延续建筑典雅礼制的风格,在传统的基础上进行必要的演化和抽象化,营造平和含蓄的东方意韵。
项目名称:江山筑营销中心
客户名称:坤达集团
项目类型:地产\营销中心
项目地址:河南郑州
设计时间:2018年7月
完工时间:2019年8月
项目面积:1300㎡
室内设计:戴勇设计
陈设设计:戴勇设计
空间摄影:彦铭摄影
Design elements
寄情山水·抒意兴怀


坤达·江山筑,择址南龙湖,占地3000亩,构筑生活与自然完美融合的低密度公园大城。古老的仪式感从入门开始,双重门以递进关系营造“出则繁华,入则静谧”的空间格局。空间规划遵循中轴对称的格局,承袭传统建筑精髓。


Modern east
溪声山色·东方意蕴
接待大堂背景宛如巍峨高耸的山体,高山仰止,壮气夺人,寓意寄情山水的写意生活。由石材、铜帘打造的山体造型主墙下部,水池及山石纵横山脚,一湾溪水潺潺流淌,古意即刻有了当代表达。


古铜色金属板材质的前台呈现出厚重的历史感,背景墙细腻的山水纹铜编织网在灯光照射下熠熠生辉,产生丰富的质感对比。另一侧,中国园林的月洞门被设计师引入室内,并运用现代金属材料加以修饰,稳重大方不失韵致,传递推陈出新的设计精神。苍郁的古松树从月洞门后探出曼妙的身姿,加入接待空间的视觉盛宴。





茶艺区,客人可以体悟茶道的仪式感,设计师运用景墙、枯山水、瓦片、屏风及盆景等元素,勾勒出朴实自然的空间调性,细腻入微地刻画时光的温润与澄静,疏影叠山,且饮且谈。

沙盘区作为整个销售会所的中心区域,挑高的空间带来震撼的视觉感受,方正圆融的设计回应“大同和合”的中原核心文化。沙盘区空间的顶部由细密的木条覆盖了整个坡顶天花,体现出传统的东方建筑风格。暖灰调的石材、深啡色的木作和青铜材质形成丰富的色彩和质感。顶部垂落的装饰灯片,仿若夏花般绚烂,让气氛变得精彩、热烈。


总规划沙盘展示区旁分别连接着分期沙盘展示区、洽谈区、茶艺区和工法展示区等各功能区域。阵列的宋代山水画屏和黄铜色雕刻屏风不仅让仪式感更加饱满,而且间隔出私密的洽谈空间,安静雅致,古意盎然。戴勇设计团队用现代设计语言演绎传统,使环境和心灵都达到灵与静的唯美境界。


Gentle and elegant
精雕细琢·温和典雅







设计师在处理空间和细节时,将多种传统艺术手法交织在一起,留白与浓墨,写意与工笔,从而营造出不同的感官体验。建筑与空间是彼此渗透的整体。设计师提炼中国元素,运用化繁为简的设计手法贯穿始终,传递推陈出新的设计精神。平和雅致的室内气氛与传统元素的运用,使空间在表达中国传统精粹的同时,更让现代人在东方意韵中找寻内心的归宿。
Landscape
山水之境·内外呼应









景观以现代中式风格为基调,配以自然、大气的空间营造,对古典美学的简洁、写意进行了重新定义。不同景观分区里飘逸自然的景观语汇融入了中国古代数千年来悠然隐归的含蓄蕴意,打造出游走于山水云间之境,放歌城市之间的景观感受。
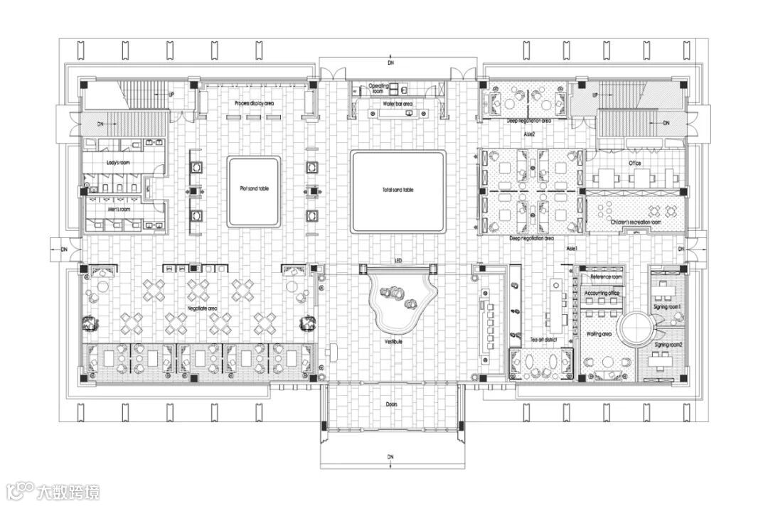
Layout plan
平面图

-感谢阅读-
ERIC TAI DESIGN AND
RESEARCH OFFICE
戴勇设计研究室
500+项目设计经验,专业成就作品品质,为客户创造价值。出版《雅致东方》、《优雅新中式》、《融会》等多本作品集。戴勇先生亦获选为中国十大设计师,入选室内设计奥斯卡英国Andrew Martin安德·马丁奖年鉴全球百名室内设计师,并多次担任清华大学美术学院高研班外聘教师。
办公地址 Add.
地址:深圳市福田区京基滨河时代大厦2701
设计合作 Tel.
18194054674(微信同号)
0755-82913509

