PROJECT 作品
STUDY 设计考察
PHOTOGRAPHY 日常摄影
Vol.110

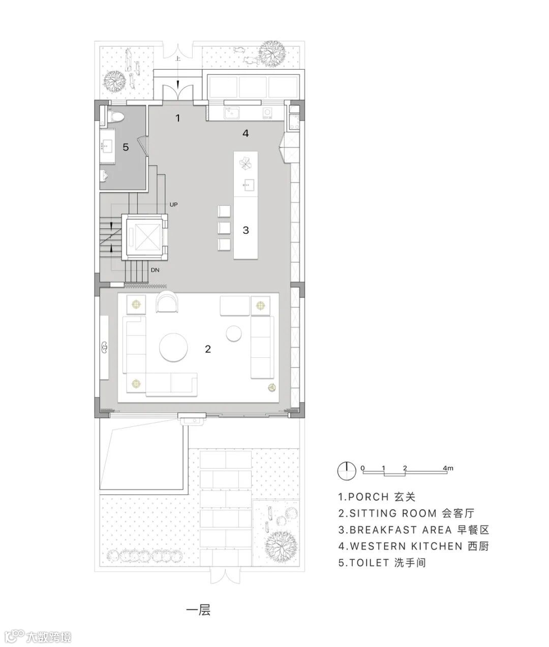
荣和 · 观江墅是荣和集团在广西南宁开发的别墅项目,致力于打造新亚洲别墅标杆作品,成就层峯理想居所。戴勇室内设计团队以雅致东方风格为主导,打造尊贵雅致、体现东方人文内涵的空间。使用功能的重新定义是室内设计的关键,设计师将别墅规划为西厨岛台区及会客厅,这里既是日常起居及休闲区域,也可以满足主人社交会客的需求。


横向打开的格局,通透宽敞的落地窗,简洁明了的线条,勾勒出沉稳优雅又不失时尚轻盈的东方空间,使居住者于此,心中疏朗宏大。古铜色金属屏风、中性色系的色彩搭配与中式摆件,呈现东方文化之中写意与精致的特质。


山水纹石材、金属艺术屏风、写意的画作,东方意境塑造出独特的美学体验。化繁为简,演绎现代东方风尚。空间光影艺术之美与当代东方陈设之美,充满律动,带来优雅舒适的感官体验。









别墅的三层为主人的卧室空间,主卧视野开阔,设计师用中性色调,呈现出空间沉稳雅致的氛围;广泛采用木质材料作为基础,在工艺上注重精雕细琢。













READ MORE
了解更多!
戴勇室内设计及软装100+作品合集
CONTACT US 联系我们

