边听音乐边阅读,提升设计灵感

平面图优化思路 | Plan optimization
室内面积:128㎡
居住人员:5人
方案优化:殷永贵「壹墨DESIGN」
这个户型虽然面积足够大,但是每个空间都没有完整的分割出独立的区域来,导致空间看起来比较散乱。而且这个户型需要居住一家五口人,三代同堂,所以在设计上就要考虑不同用户的使用需求和生活习惯,因此业主希望新家能忠实地呈现他们的生活形态与需求,而非着墨于所谓的风格。

△
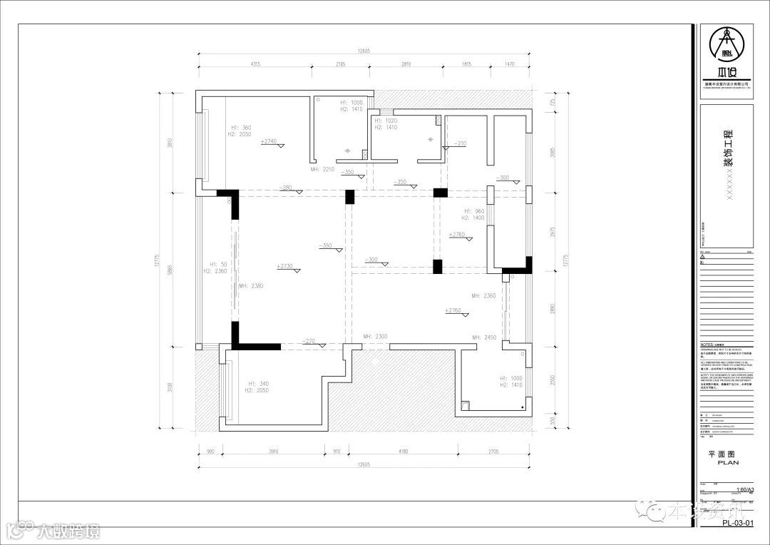
原始户型图

△
问题一:隔墙太多,不仅影响采光,也让室内空气不流通,而且空间也无法合理的利用。
P.01

△
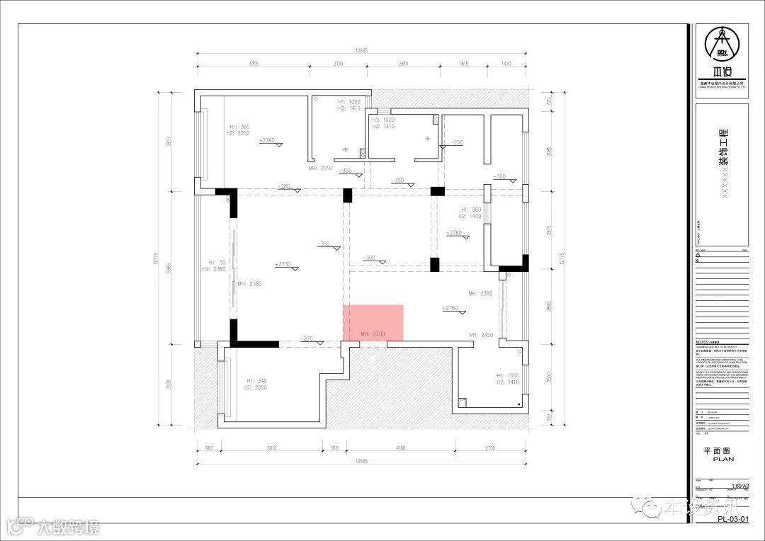
问题二:公共区域虽然比较开阔,但格局不当,反而让空间难以利用,造成浪费。
P.02

△
问题三:入户区域一览无余,缺乏玄关,没有收纳空间,无法满足用户使用需求。
P.03

△
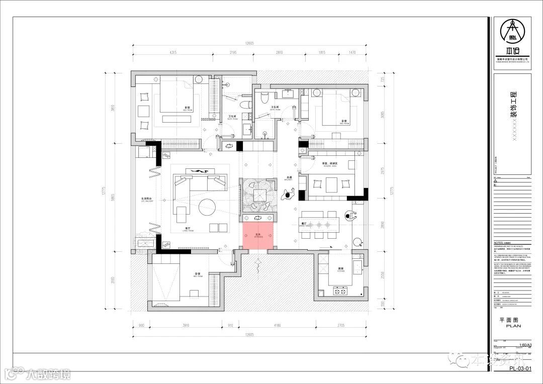
破解一:新建隔墙,创造玄关收纳空间◄在正对入户的区域新建一个墙体,分割出一个玄关的区域,既能满足收纳需求又能起到装饰效果,也能提升空间整体的品质感。
P.04

△
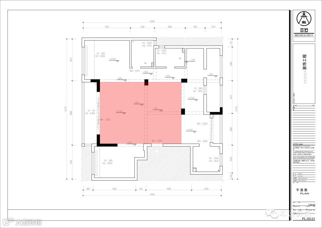
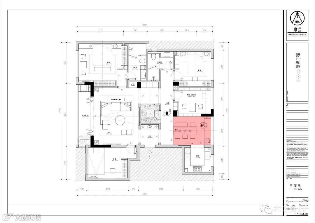
破解二:拆除墙体,改善采光通风◄拆除原有的生活阳台,增加一个西厨操作区,强化功能,提升生活整体的品质感,同时也改善了空间的采光及通风,餐厅变的更加通透、舒适。
P.05

△
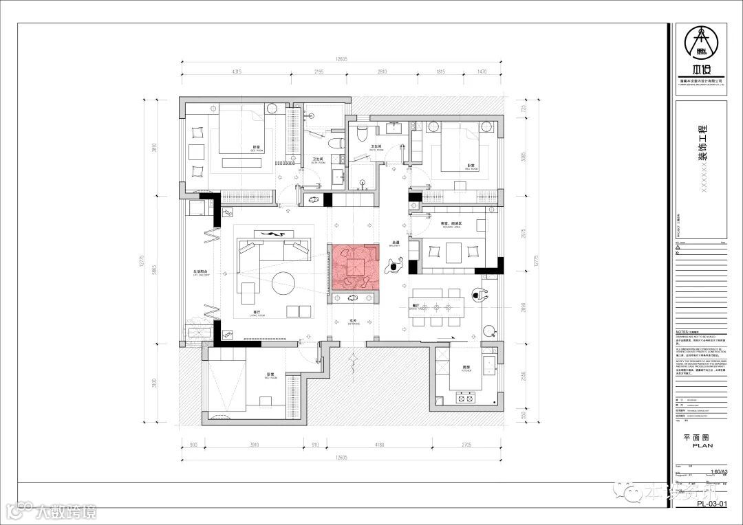
破解三:洄游动线,创造舒适生活◄利用玄关墙及电视背景墙,刚好围合一个空间,里面放置绿植,所有的功能在围绕着展开,形成一个洄游动线,同时中心区域也营造出“美国曼哈顿中央公园”的整体美感。
P.06

△
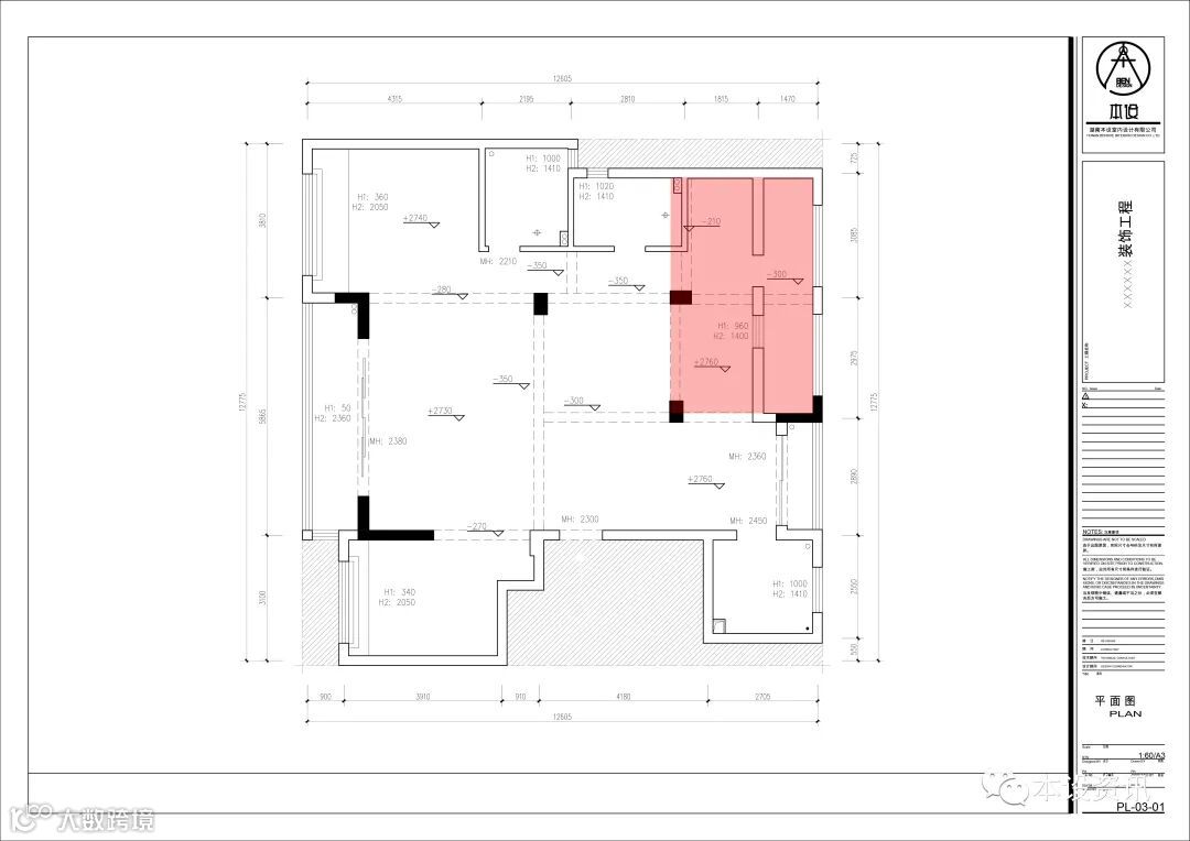
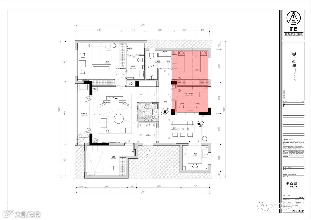
破解四:调整墙体,满足格局与功能◄将原有的墙体拆除,重新规划出新的墙体,分割出一个卧室及阅读区,除了满足业主的功能需求之外,无形中也创造出舒适格局与动线。
P.07


△
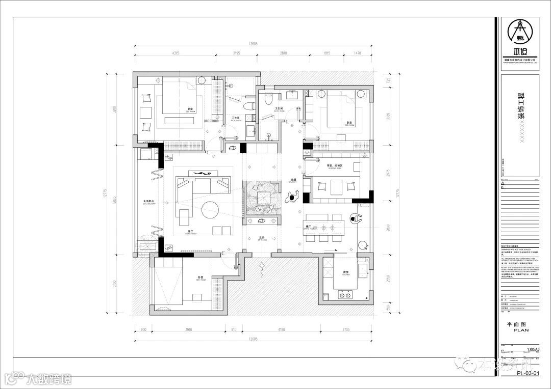
改造后的平面方案
想要提升自身的平面方案优化能力
请扫描下方二维码免费获取试听课程
让自己不要错过每一节精彩内容





