
“户型优化知识小课堂”
分享老师:尼古拉斯·【三】
课程知识
人多房子小的“得房率”改造
▼
中间有视频讲解

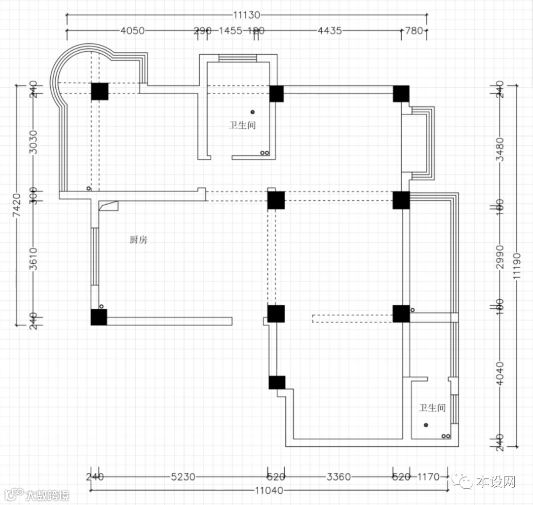
▲
原始户型图
设计要求
面积:101㎡
1、夫妻两人,有两个儿子,一个女儿
2、大儿子上大四,小儿子上初中,女儿已经毕业
3、尽量保留两个卫生间

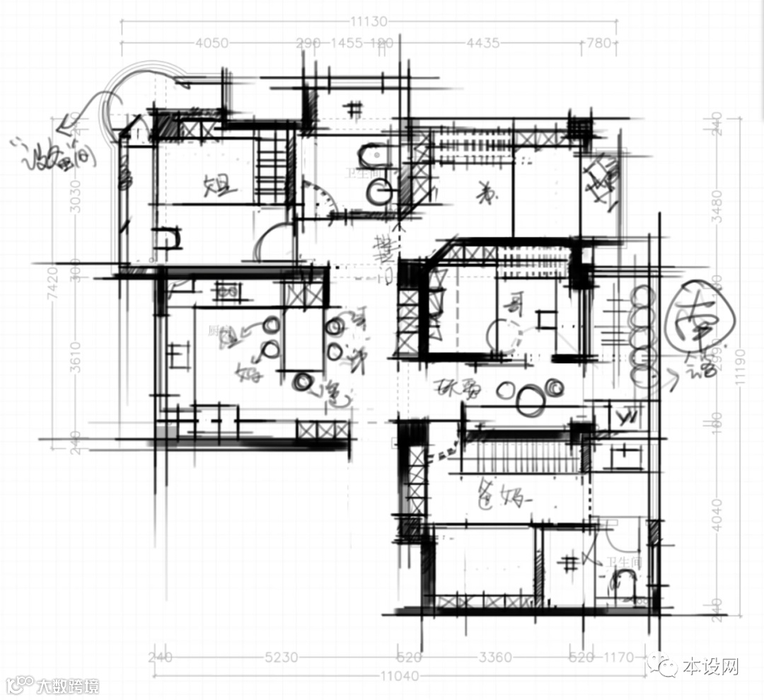
▲
优化后的手绘方案
▼
视频讲解
室内户型优化课程介绍
扫码预约课程
可领取课程优惠券

▲
扫码免费预约直播课




本设网
“户型优化知识小课堂”
分享老师:尼古拉斯·【三】
课程知识
人多房子小的“得房率”改造
▼
中间有视频讲解

▲
原始户型图
设计要求
面积:101㎡
1、夫妻两人,有两个儿子,一个女儿
2、大儿子上大四,小儿子上初中,女儿已经毕业
3、尽量保留两个卫生间

▲
优化后的手绘方案
▼
视频讲解
室内户型优化课程介绍
扫码预约课程
可领取课程优惠券

▲
扫码免费预约直播课



