
“户型优化知识小课堂”
分享老师:尼古拉斯·【三】
课程知识
自建房平面布局分区
▼
中间有视频讲解

▲
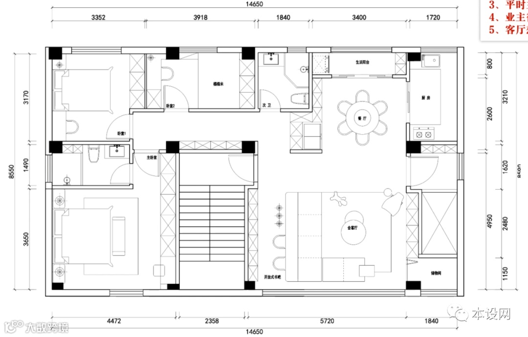
原始户型图
设计要求
面积:128㎡
1、客厅贴墙砖,电梯口做入户门
2、楼梯口再做一个入户门
3、平时主要儿子儿媳住
4、业主很少来,保留三房两厅一厨两卫
5、客厅想做落地窗,设计晾晒区域

▲
优化后的手绘方案
▼
视频讲解
室内户型优化课程介绍
扫码预约课程
可领取课程优惠券

▲
扫码免费预约直播课




本设网
“户型优化知识小课堂”
分享老师:尼古拉斯·【三】
课程知识
自建房平面布局分区
▼
中间有视频讲解

▲
原始户型图
设计要求
面积:128㎡
1、客厅贴墙砖,电梯口做入户门
2、楼梯口再做一个入户门
3、平时主要儿子儿媳住
4、业主很少来,保留三房两厅一厨两卫
5、客厅想做落地窗,设计晾晒区域

▲
优化后的手绘方案
▼
视频讲解
室内户型优化课程介绍
扫码预约课程
可领取课程优惠券

▲
扫码免费预约直播课



