
「在山涯的洞穴中,有我最珍惜的人。」
阜居空間創意設計 在提案給屋主前,聽了這家人故事,於是以這句話作為設計發想核心。屋主是一對姐妹,跟父母共住,空間以父母需求為優先,再來才是她們。
家人感情好到姊姊之前赴日工作時,全家一起搬到日本住,感情如此濃郁,讓設計師在提案時以「厝」為主題,用古字來拆解「厝」字,「ㄏ」代表山涯下的石穴,「厝」指屋子裡住很多人,而這些人都是生活中最珍惜珍貴的家人。

大膽拼配的橘藍色彩,象徵姐妹兩人截然不同的個性。姊姊喜好橘色,妹妹喜好藍色,在色彩提案時,以富足暖橘配上永恆礦藍做搭配,穿插運用在客廳的牆面和天花板,讓空間產生視覺活力,也隱喻著一家人永遠幸福生活在一起。

Q:設計此案時,最讓你印象深刻的地方?
老實說,這對姊妹對父母的盡心照顧讓人感動。設計上以父母需求為優先,比如父親喜好泡茶,廚房中島做了一個茶盤讓父母可以用對座方式一起品茗。

像這樣事事以父母為主,讓我在設計過程中忍不住反思自己,也在規劃時盡力滿足家人需求,希望居住在空間中的長輩,可以舒適生活。

Q:如何讓截然不同的色系平衡搭配?
每一種色彩,在色調呈現千變萬化,光是一種顏色就有許多選擇。此案顏色搭配鮮明搶眼,我們以姊妹兩個人喜好為主,再以色彩涵意來做搭配。暖橘色象徵富足的幸福快樂,礦藍色象徵永恆,兩種配色合在一起就是「永恆的富足,且快樂地生活著」。

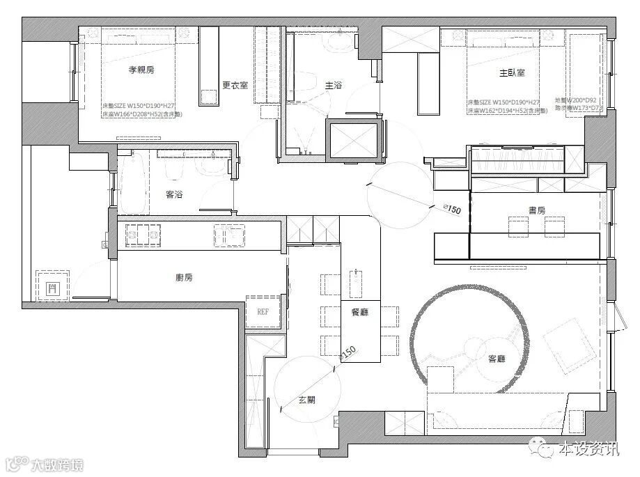
個案基本資料
板橋 / 新成屋 / 電梯大樓 / 室內 29 坪 / 格局2+1房1廳1衛 / 居住人數 4 大

< 屋主需求 >
* 希望空間融入喜歡色彩
* 可以從書房看到客廳,方便照顧父母
* 中島要有泡茶的茶盤規劃
< 各別空間 >
1. 客廳設計:
延續「山涯中的洞穴」設計理念,客廳天花板以「ㄏ 」狀木作包覆,同時作為樑柱延伸,淡化樑柱的視覺龐大感。

因父母年紀稍長,母親不能吹到風且怕冷,在沙發左側座位用木作做一個凹陷平台,下方可放置暖氣機,凹陷的檯面可擺放毯子或暖手小物件,隨時方便拿取。


右側是父親的位置,沙發背牆利用「ㄏ」狀天花板延伸下來的空間做了側邊櫃體,可收納物品,比如泡茶器具。

電視牆以乾淨利落為設計手法,和書房銜接牆面上半部以玻璃做隔間,視覺有穿透感,保留整體清爽面容。

配色上結合姊妹各自喜好的橘色和礦藍色,沿著「ㄏ」狀天花板一路蔓延至壁面,搭配可視喜好調整光線的百頁窗,白色窗體,配上橘藍配色,帶動客廳活潑視覺。

2. 餐廳設計:
沿用建商提供的廚房設備,餐廳部分另外設置中島檯面結合餐桌,延伸廚房使用機能。

父親熱愛泡茶,過去習慣用水管接茶盤水,水桶滿了必須倒掉才能繼續使用,設計師則在中島規劃不銹鋼製可瀝水茶盤,下方直接排水。

並在茶盤上方裝設泡茶專用的瞬間加熱器,可一鍵出水,省去燒水時間,讓泡茶變得方便。

中島檯面延續洞穴石壁概念,以岩石切割作為立面造型,下方另外有儲物空間,可擺放碗盤雜物。後方則是廚房入口,以鐵件玻璃作為拉門,讓光線和視野得以延續。

3. 主臥設計:
姊妹的房間,門口處延續洞穴概念,用木作做出岩石切面造型,強化視覺效果,也讓立體凹凸面取代把手。


床頭處利用柔軟繃布作為呵護頭部的設計,並摻入姐妹倆喜愛的橘藍配色當設計一部分,延伸到壁面時,切換成淺棕色和白色穿插,宛如光線灑落的線條感為壁面裝飾,緩和橘藍搭配的活潑調性。

因坪數不夠規劃更衣室,以玻璃拉門搭配櫃內打光方式呈現,玻璃拉門讓衣櫃更便利,衣物也具展示效果,以類似更衣室設計概念讓衣櫃多些變化。


靠窗處是可調光百頁窗,一側擺放跑步機,隨時可在家運動。靠近浴室位置有座五斗櫃造型收納台,下方收納衣物,檯面可當扶手,讓偶爾到主臥室沐浴的父母進出時多一個攙扶的檯面。

4. 孝親房設計:
父母的臥房,用礦藍色澤搭配金色線條作為床頭牆面視覺設計,提升細膩感。

床舖旁以一座細長櫃體當擺放雜物之處,尤其母親需要隨身擺放毯子或暖爐等隨身小物,可收納在此。

考量到長輩眼睛畏光,壁面下方以微弱光帶作為夜間照明與指引動線規劃。


5. 書房設計:
時常在家工作的兩姐妹,需要一個可阻隔聲音的安靜工作場域,但又必須隨時看照父母,於是將書房安置在客廳旁。

以玻璃為隔間,玻璃門可讓書房保持安靜,同時維持視野開闊。書桌後方的收納櫃體,可收納文件和書籍,也能作為展示櫃使用。


< 總體空間 >
6. 收納規劃:
設計師將收納安置在每個場域中,像客廳沙發兩側的收納空間;餐廳中島下方和側邊壁面收納櫃,包括臥房內衣櫃和收納櫃,具足夠收納機能。
7. 地板規劃:
從玄關、餐廳、書房到客廳的公領域地板,以斜狀設計來當場域分割的隱喻暗示,延伸到臥房內則是一般平鋪法。
8. 動線規劃:
由於是新成屋沒有大動格局,僅在客廳旁以木作搭配玻璃隔出書房,但家具和櫃體在規劃時,會盡量保留場域寬鬆感,讓行走時的動線比較舒適。

9. 建材挑選:
玻璃、鐵件、木作、油漆、特殊漆料
10. 燈光規劃:
考量到父母年紀稍長,眼睛比較畏光,室內光線盡量都安置在靠牆處,透過打在牆面反射到空間裡,光源柔和許多。
11. 色彩規劃:
橘色和藍色是主軸配色,其餘以白色為底色,緩和鮮明配色帶來的視覺衝擊。


