平面图优化思路 | Plan optimization
室内面积:67.6㎡
居住人员:3人
方案优化:殷永贵「壹墨DESIGN」
内部面积只有60多平的住宅,两室一厅的户型刚好适合一家三口的居住生活,但是业主希望还能多增一间临时客房,对于业主而言最大的困扰是:空间感觉太狭小了!因客厅的近深并不宽敞,而且整体的采光也不是很好,而且卧室的门又紧挨着客厅,所以如何在这么小的房子里拥有第三个房间是这个设计的最大挑战。

△
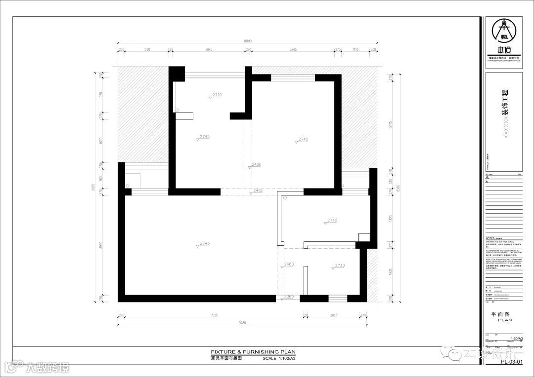
原始户型图

△
问题一:入户正对厨房门,整体视觉不好,动线也比较尴尬。
P.01

△
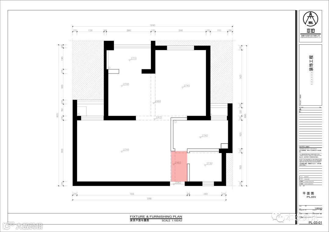
问题二:这个区域分别是窗、卧室入口、公共动线,导致这个区域无法很好的分配客厅、餐厅功能。
P.02

△
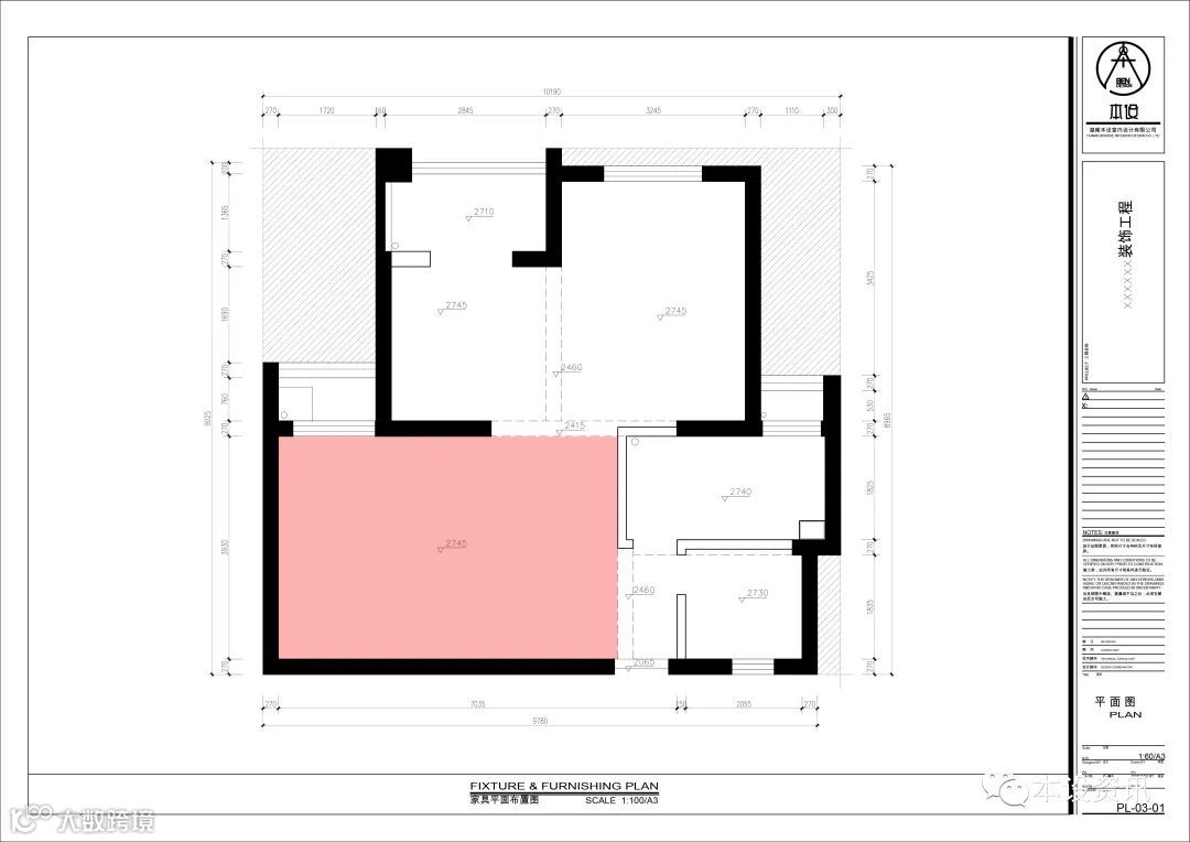
问题三:卧室门过于靠近客厅,导致客厅显得更加拥挤。
P.03

△
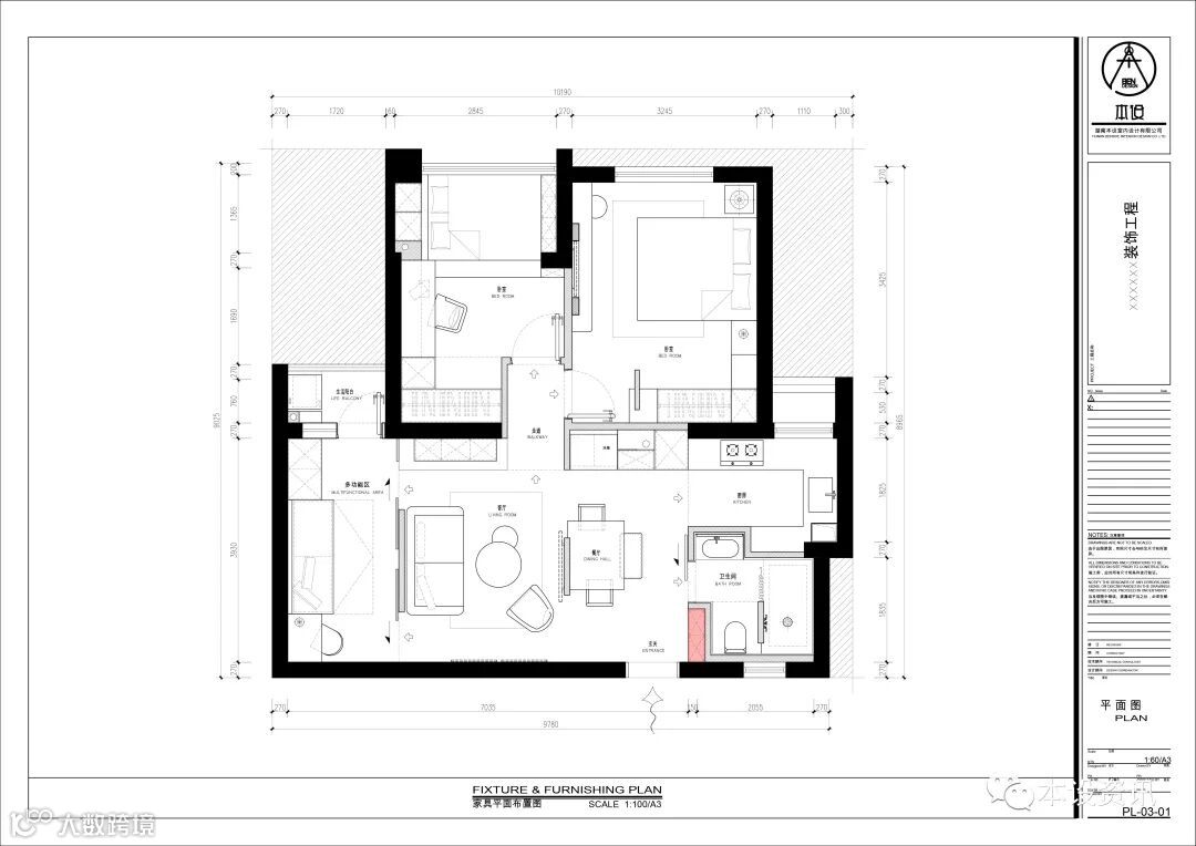
破解一:微调墙体,创造空间收纳◄原本入户的位置缺乏鞋柜,无法满足收纳,所以调整卫浴墙体,形成一个内凹空间,创造出收纳鞋柜,避免活动鞋柜破坏空间的整体感与动线关系。
P.04

△
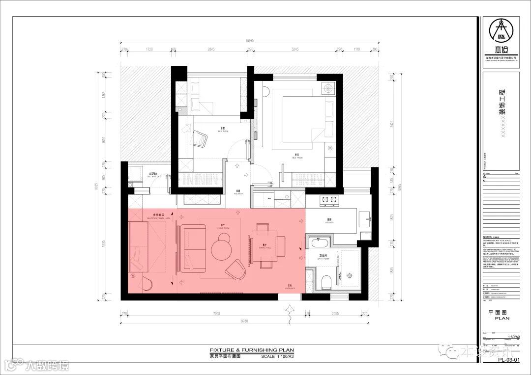
破解二:复合手法创造客厅、餐厅与起居室◄将厨房的墙体拆除一部分,让公共厅区呈现长形的开放格局,依序规划出客餐厅、起居室,并利用玻璃隔断隔开客厅与起居室,既能保证采光又能形成独立空间。
P.05

△
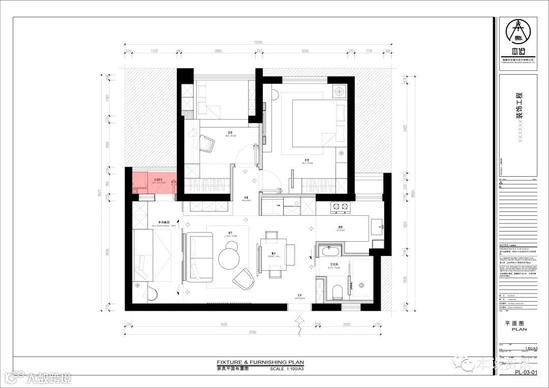
破解三:空调外机位置变身生活区◄将原本防止空调外机的地方纳入室内,增加成生活阳台,满足生活使用需求。
P.06

△
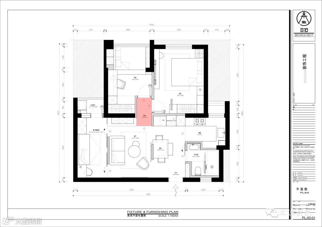
破解四:位移门洞,优化动线◄两个卧室的入口向内推,预留出过道区域,减少公共区压迫感,整体动线流畅且视觉上更宽阔。
P.07


△
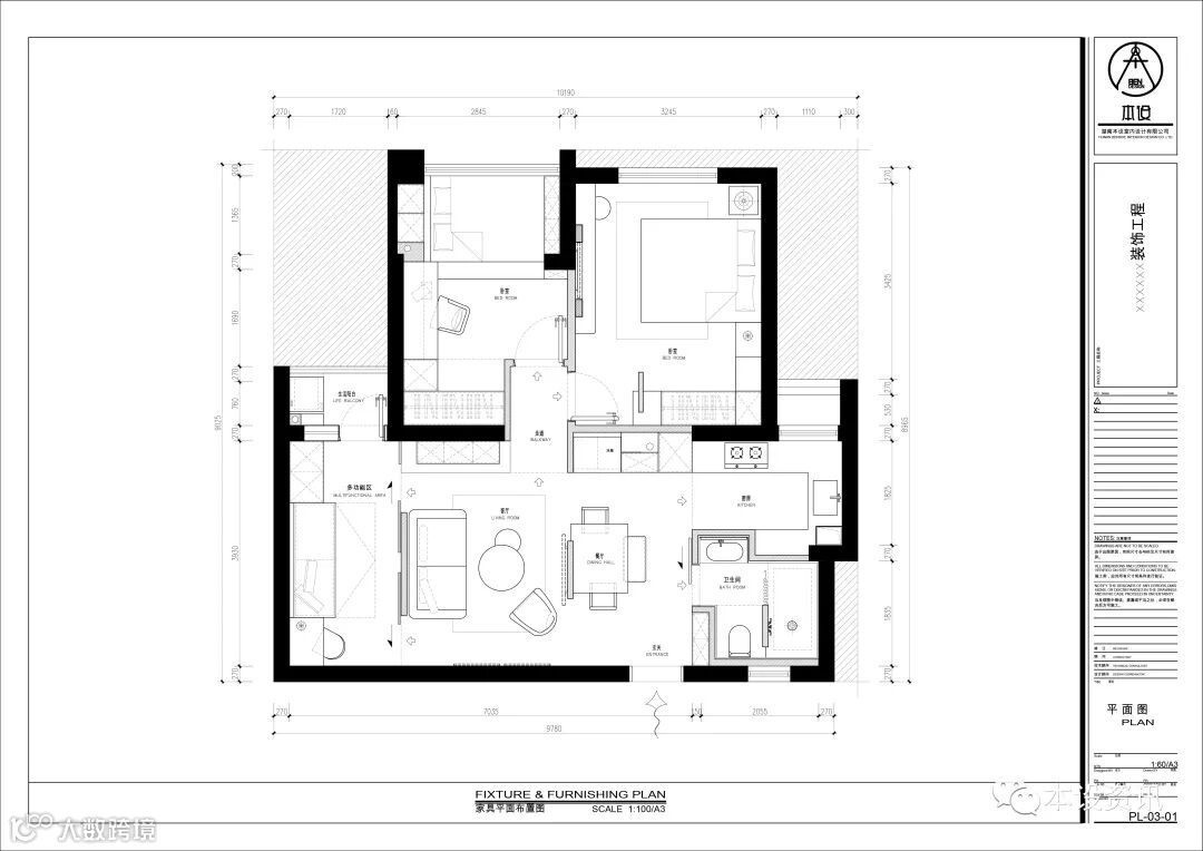
改造后的平面方案
想要提升自身的平面方案优化能力
请扫描下方二维码免费获取试听课程
让自己不要错过每一节精彩内容






