

点击“本设网”,关注设计师交流平台
添加微信号:benshe88 或者收藏网站:www.benshevip.com获取各类室内设计教学资料!
《100套平面方案改造对比参考图集》
- 免费分享 -

100套住宅平面方案优化案例
小户型|住宅|别墅|复式|大平层
JPG高清图片
不含CAD文件
【福利在文章最后】 不要错过!!!
1
简介:本套资料,『100套平面方案改造对比参考图集』可做为室内户型设计首选参考资料。
废话不多说,请接图!
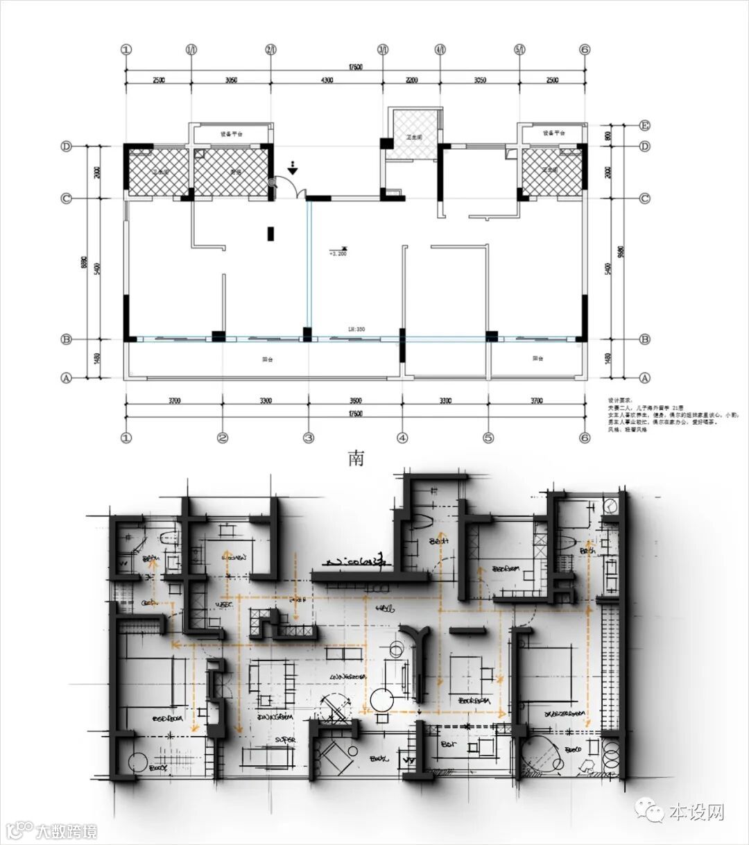
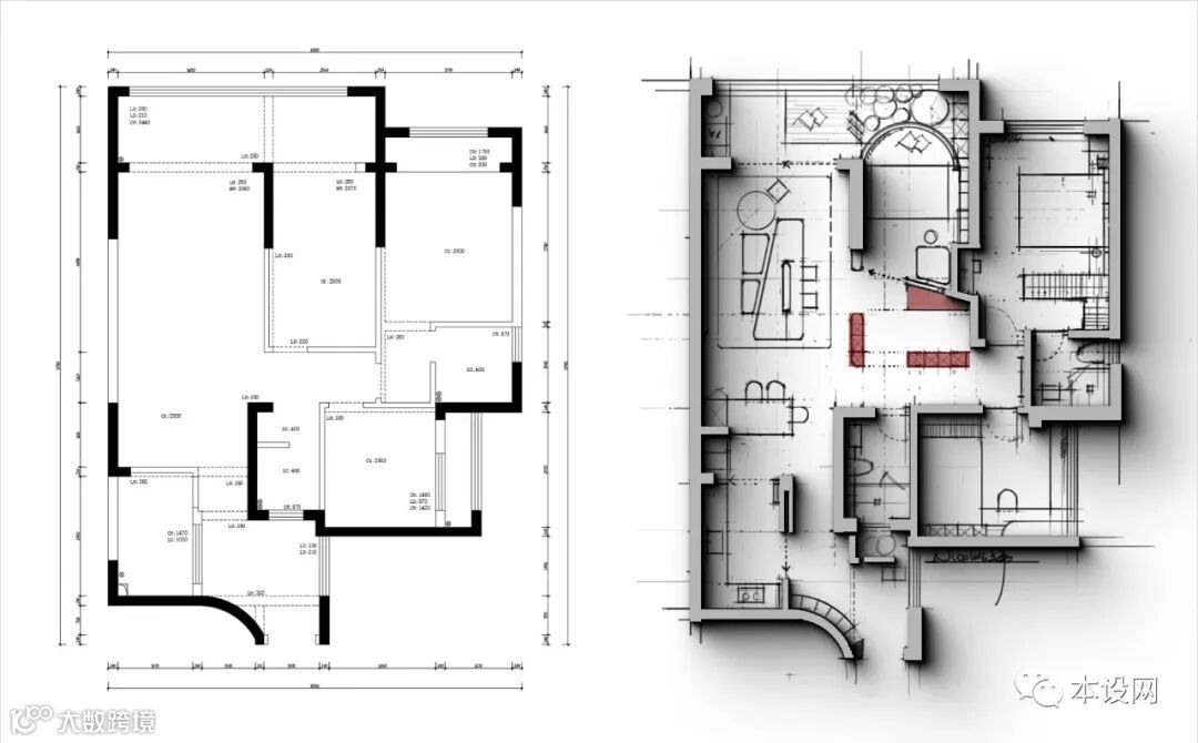
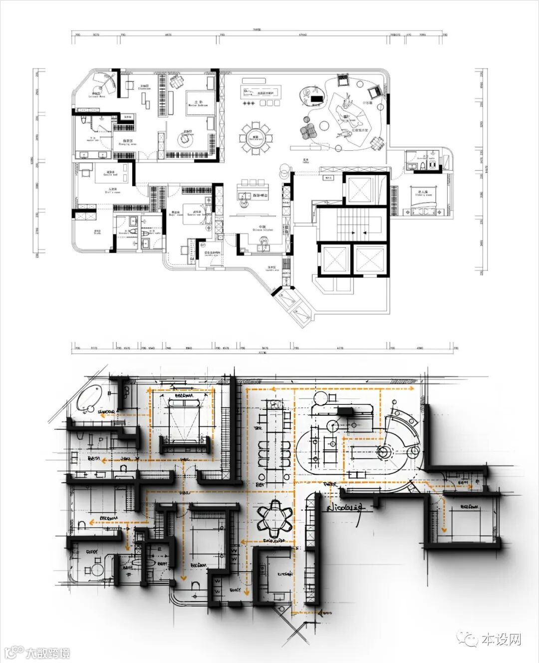
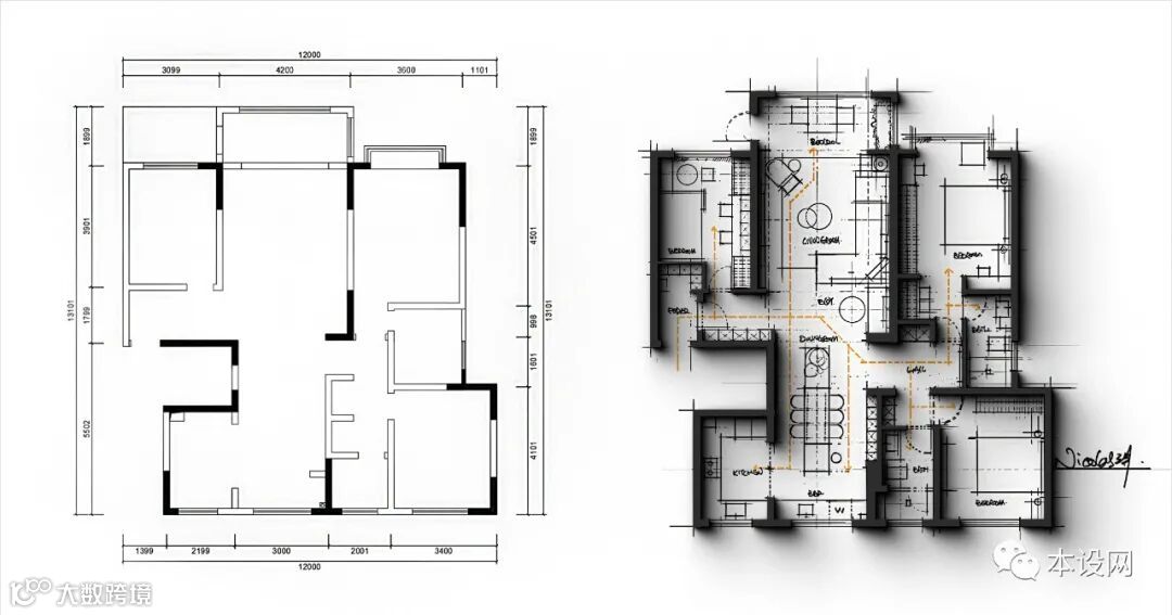
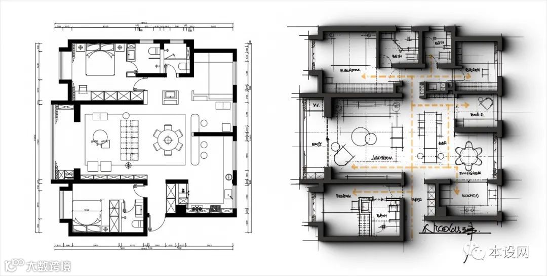
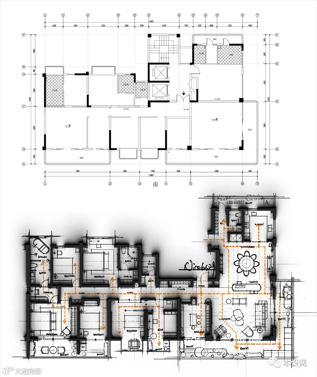
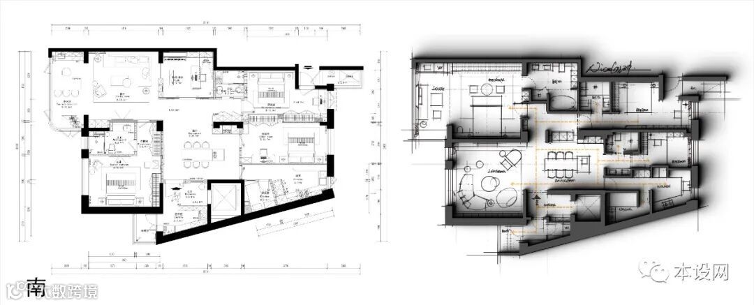
部分平面方案预览















能坚持看到这里的设计朋友,
必定是热爱设计,
对设计有追求之人,
让我们通过学习变成高富帅,迎娶白富美。
获取方式
对本套资料集感兴趣的朋友分享至朋友圈或者200人以上设计群后台截图发我(不得马上删除和屏蔽任何人)。底下是小编微信二维码,长按识别添加截图获取。
整理不易,谢谢支持!

长按二维码,添加小编微信截图获取!
—更多精品内容—









