

点击“本设网”,关注设计师交流平台
添加微信号:benshe88 或者收藏网站:www.benshevip.com获取各类室内设计教学资料!
豪宅,作为一个城市的住宅品质升华
人文的格局、舒适的比例
正品的家具、舒适的材质
精致的收口,的地理位置
具备这些条件才能当之无愧的成为豪宅设计
说到豪宅设计那就不得不提到
撑起了中国豪宅半壁江山的
豪宅-李玮珉

| 壹 |
设计中的生命哲学
李玮珉作品涵盖了都市设计、建筑设计、景观设计、展示空间设计、办公空间设计、酒店设计、医疗空间设计、剧场设计、博物馆设计、商业空间和住宅设计等多个设计领域,尤其擅长高档住宅设计,在他的设计当中,很容易读到某种抽象的生命哲学。他说过:“奢侈不是指贵的设计,而是生活中充满了想象力。”

| 贰 |
简而精致的设计理念
李玮珉通过设计分享的正是这种精简的生活哲学——简而精致:简是生活本身,精是生活态度;简而有效,有效是生活本质。在越来越大的工作压力和越来越快的科技更新面前,这也是全球的城市精英们正在寻找的一种新的生活方式。

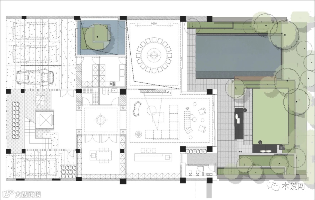
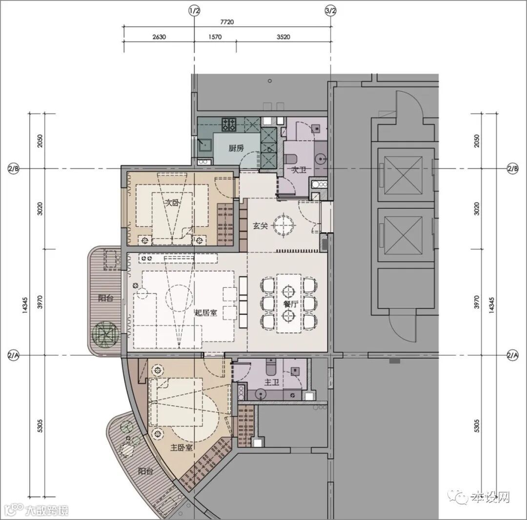
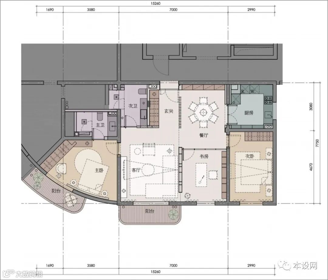
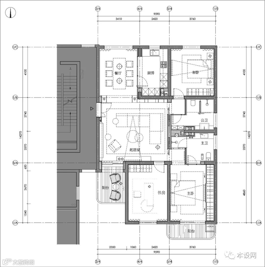
李玮珉作为豪宅专业户,常将园林中亭台的观景手法运用到室内之中,在有限的空间之中,可以看见多方位的景色,将景引入室内。

李玮珉的方案布局,流动的空间动线,相互渗透的空间视觉,使用简单的栅格隔断用作分隔空间,无处不在的窥探、穿插元素,视野更通透,获得更加丰富的视觉体验。

如果想要掌握大师的设计手法
唯有多看,多想,多学习
……
今天
小编给大家精心准备了李玮珉老师的
项目资料
《李玮珉名师作品合集》
——大师案例分享——

资料大小共28GB
包含
CAD施工图|实景图作品集|专用CAD图库
如何购买获取

扫描以上二维码即刻获取资料
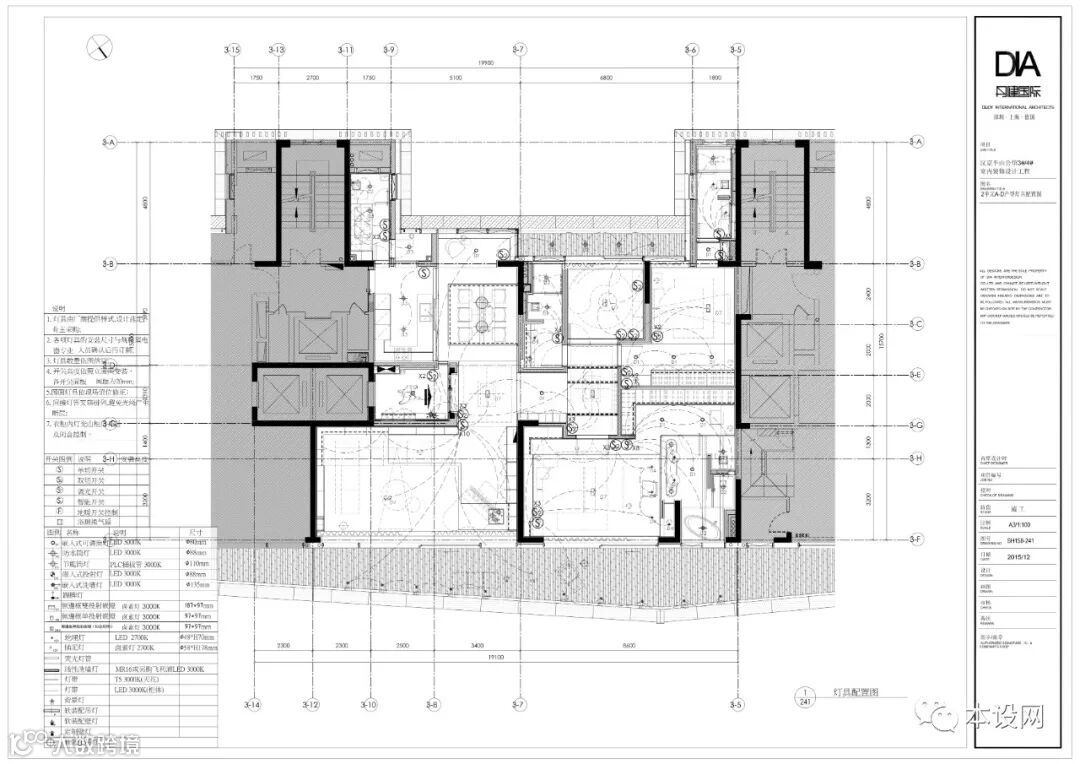
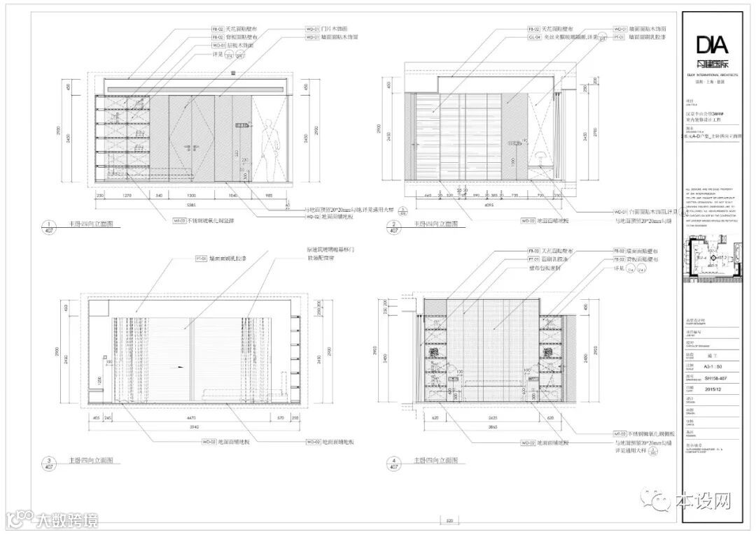
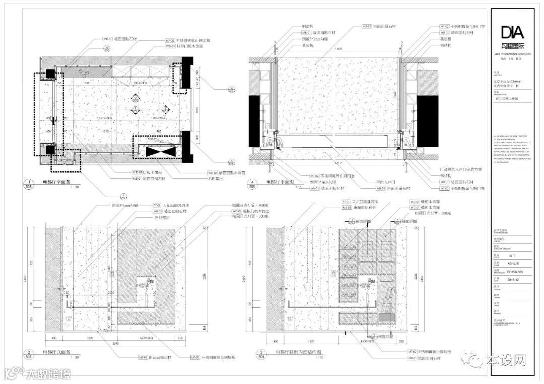
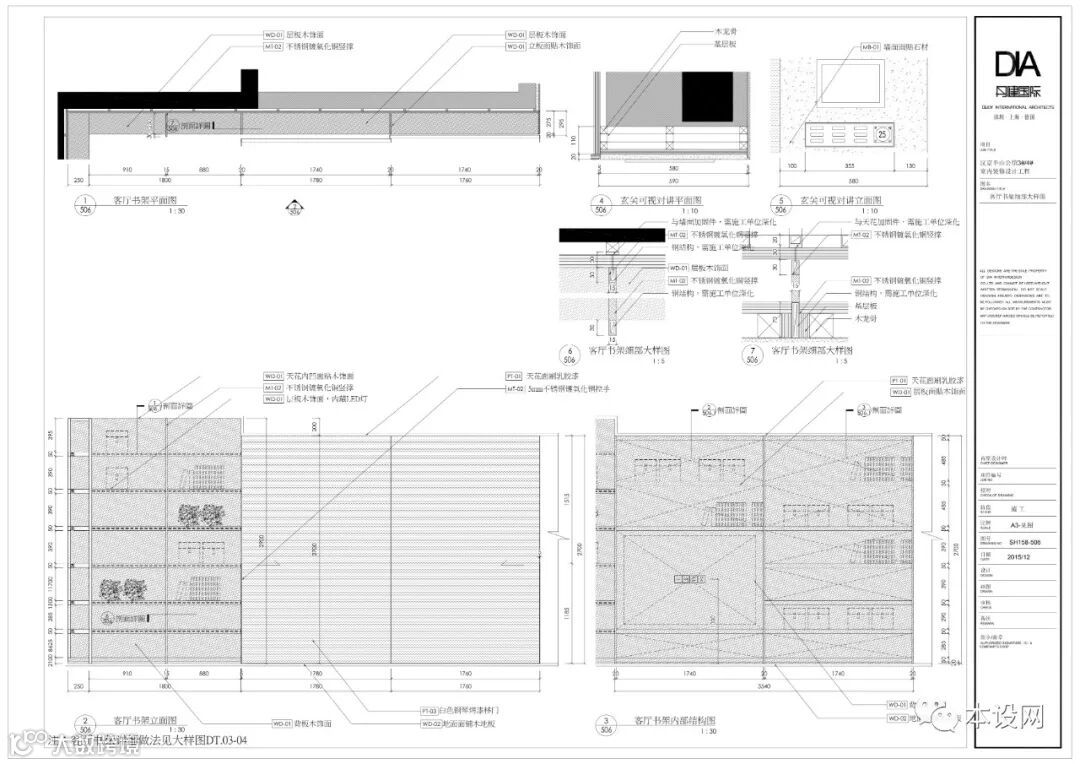
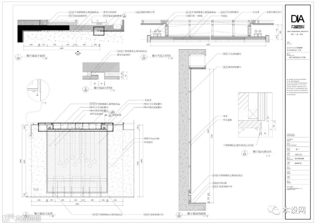
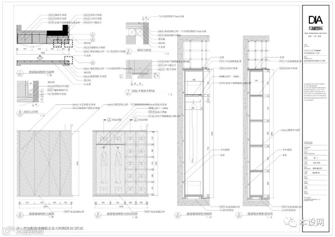
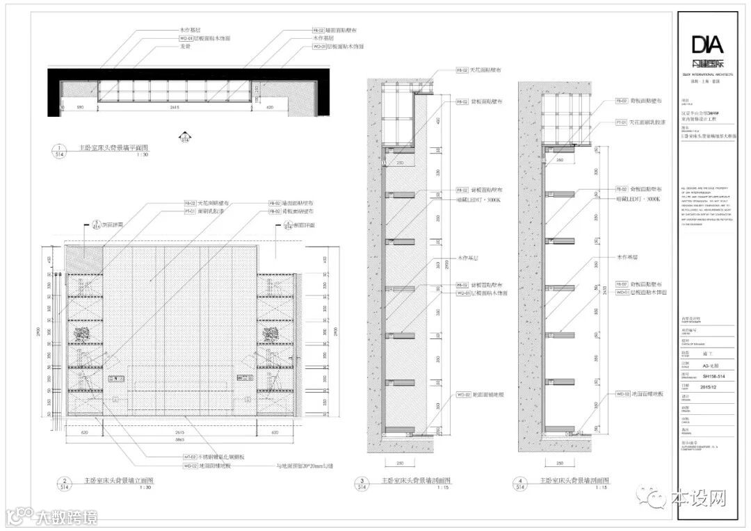
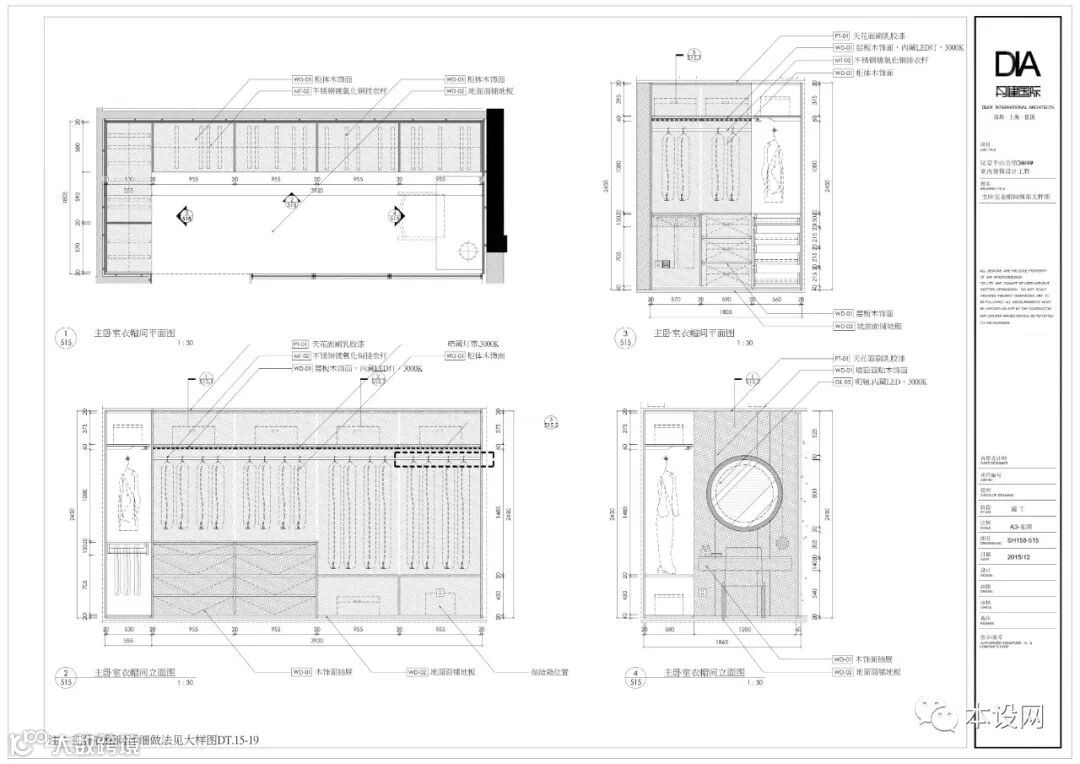
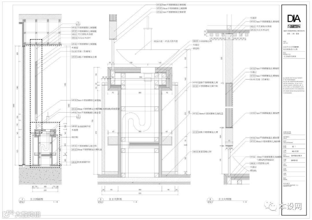
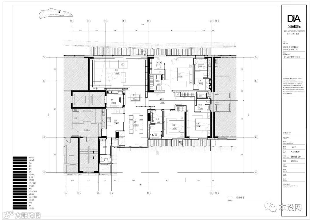
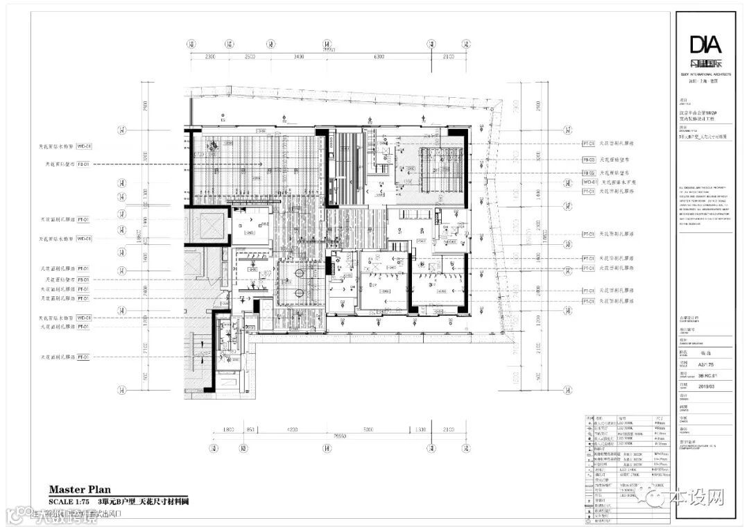
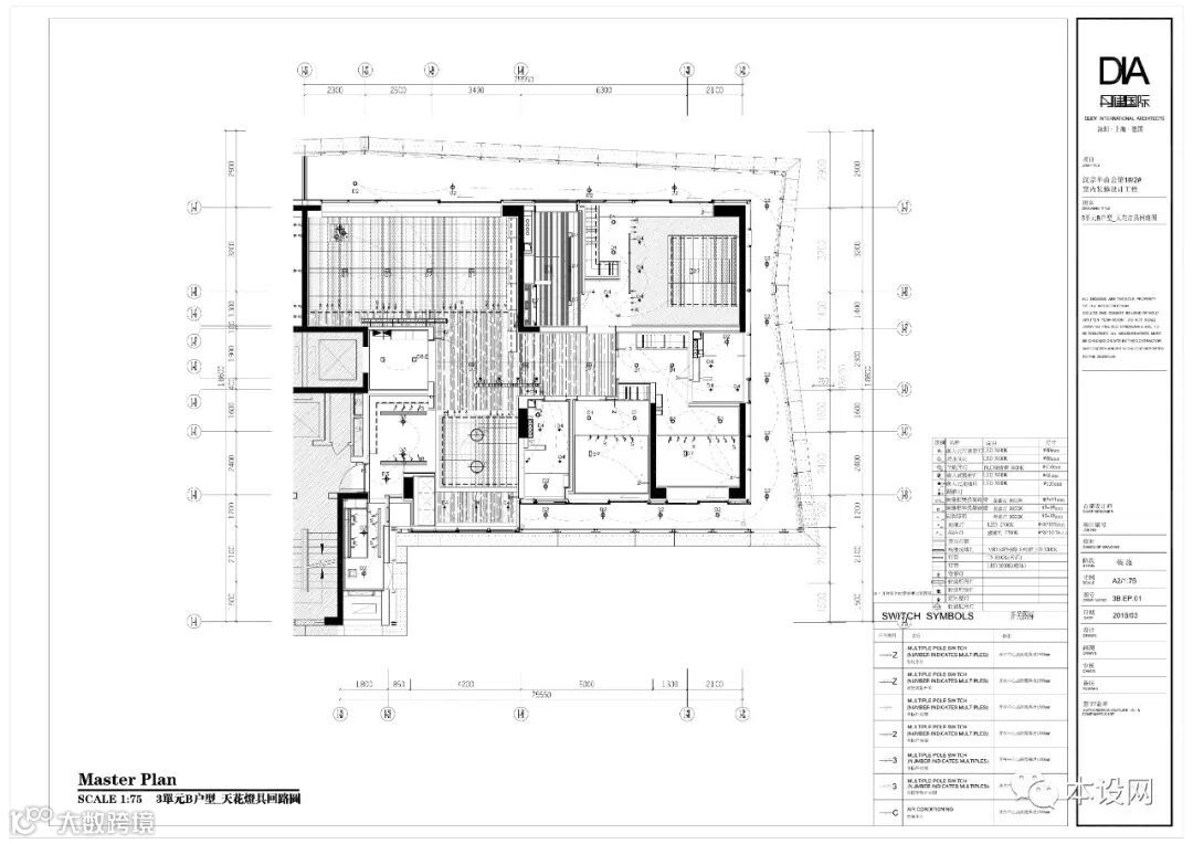
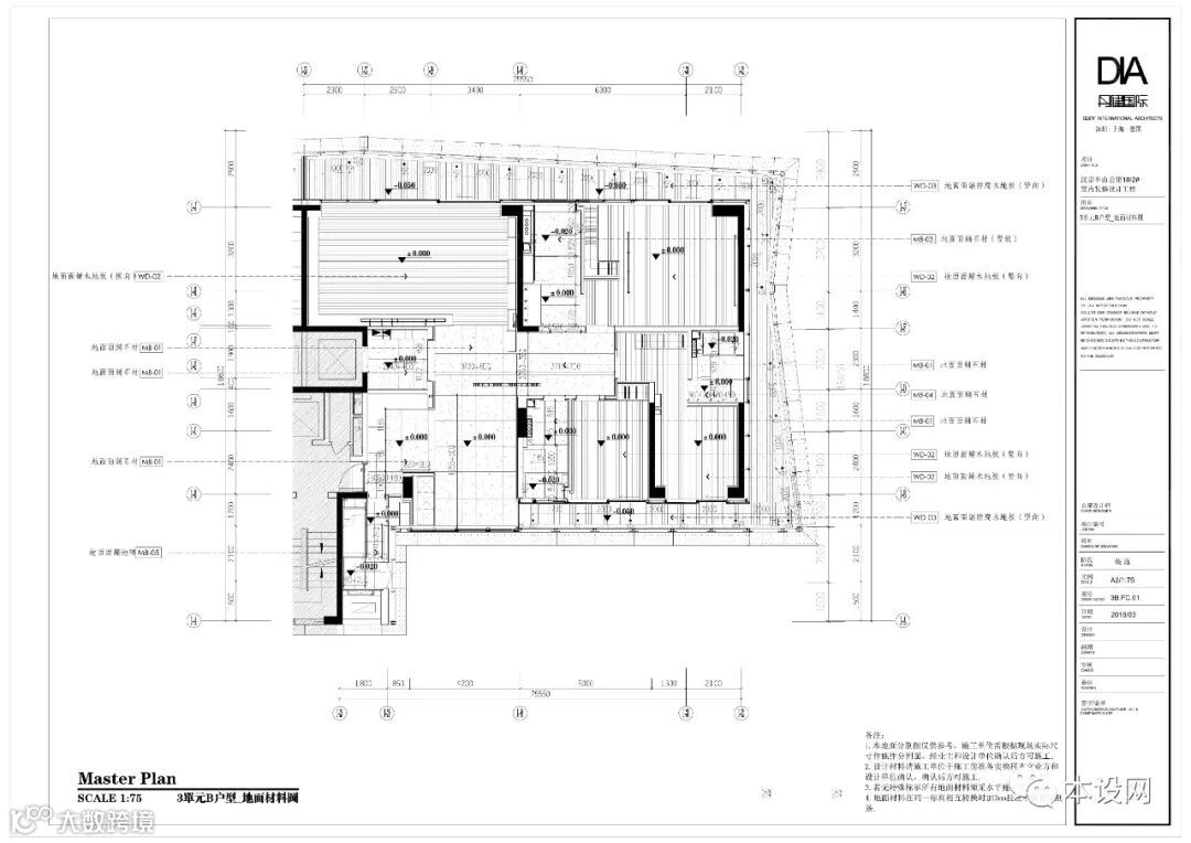
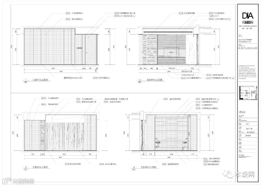
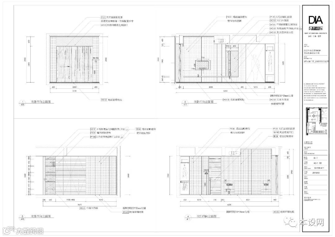
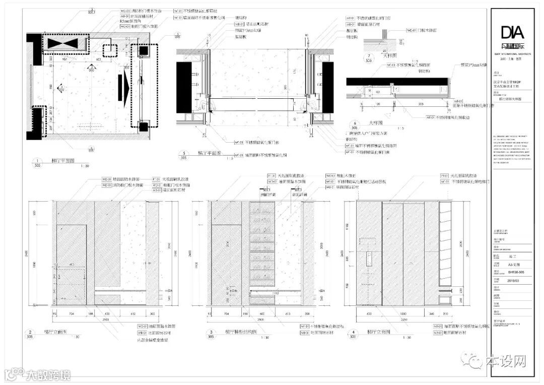
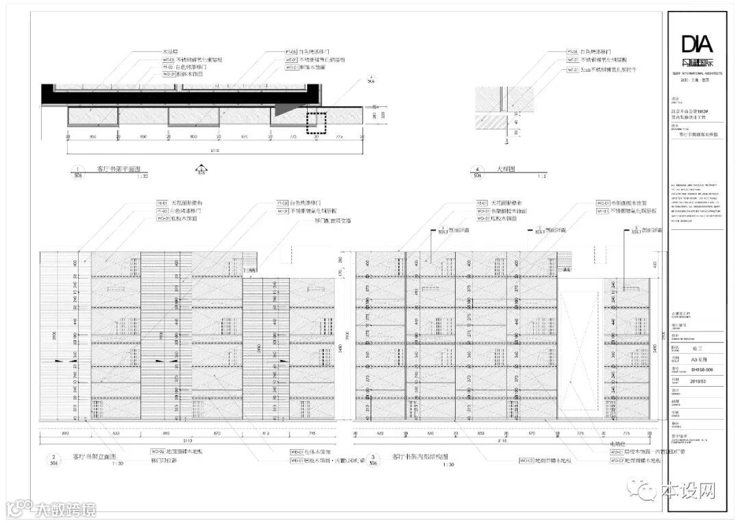
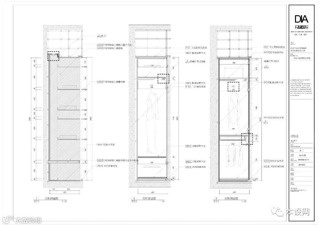
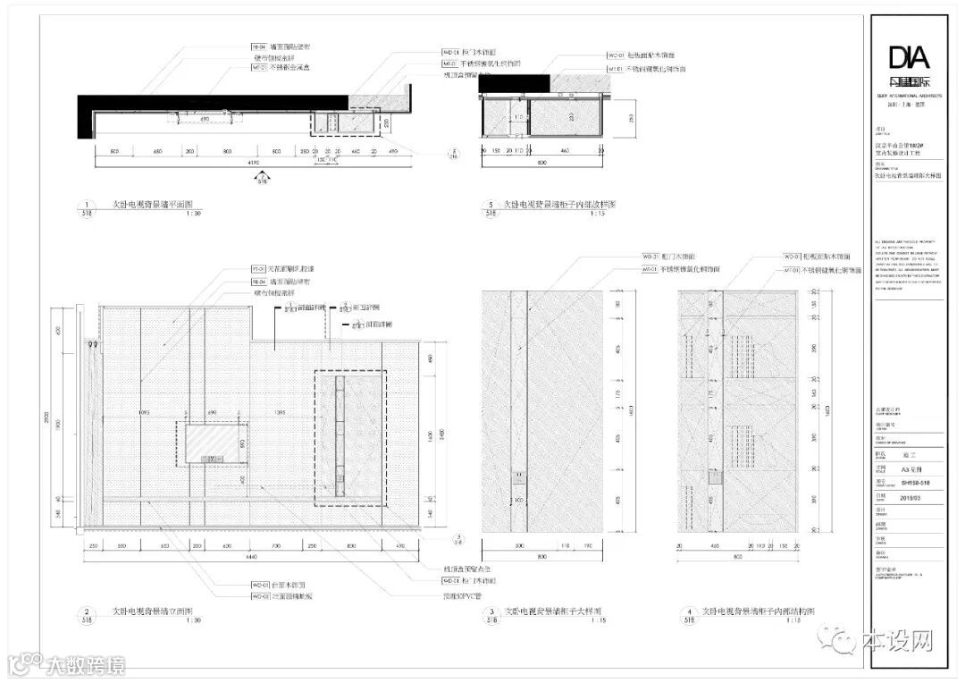
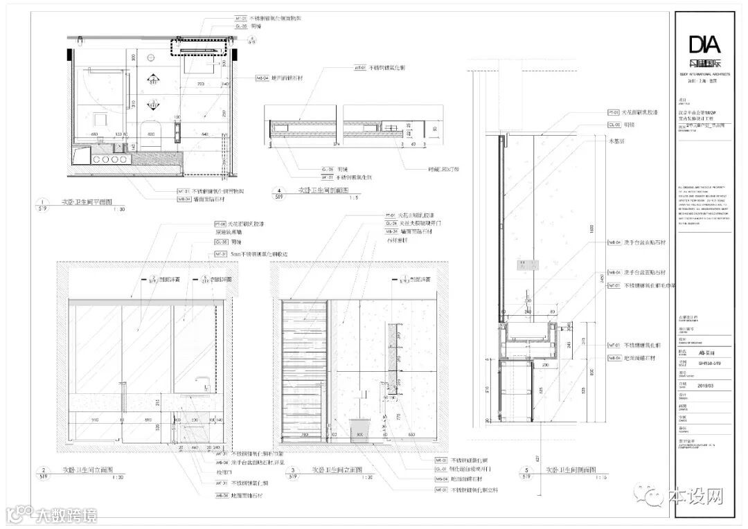
文件目录预览






























































































































如何购买获取

扫描以上二维码即刻获取资料
- 本设网 -
免责声明:
以上图片及资料内容来源于网络,由我方整理,版权归原作者及其公司所有;
本资料仅供学习研究之用,不得用作于商业用途,若此图库侵犯到您的权益,请与我们联系删除;
本文章版权归本公众号所有,未经同意不得随意转载 ,若恶意侵权将追究其法律责任。
—更多精品内容—









