越来越多的人选择“有练习的方法”,因为它是从根本上解决“眼睛会,手不会”问题的有效途径。通过每一份作业的严格要求,人们能够更好地掌握知识,提高实际操作能力。而三哥方案特训营课则是你专属的、更加专业的辅导方式,能够让你更深入地学习和掌握知识。






























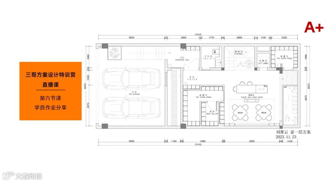
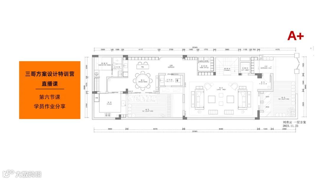
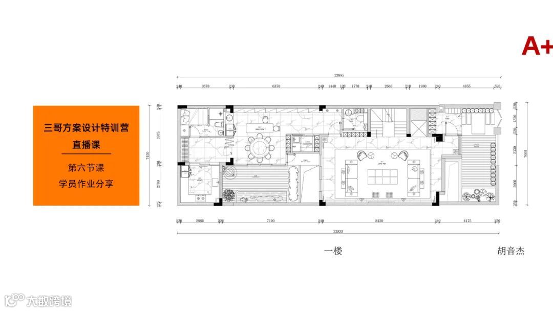
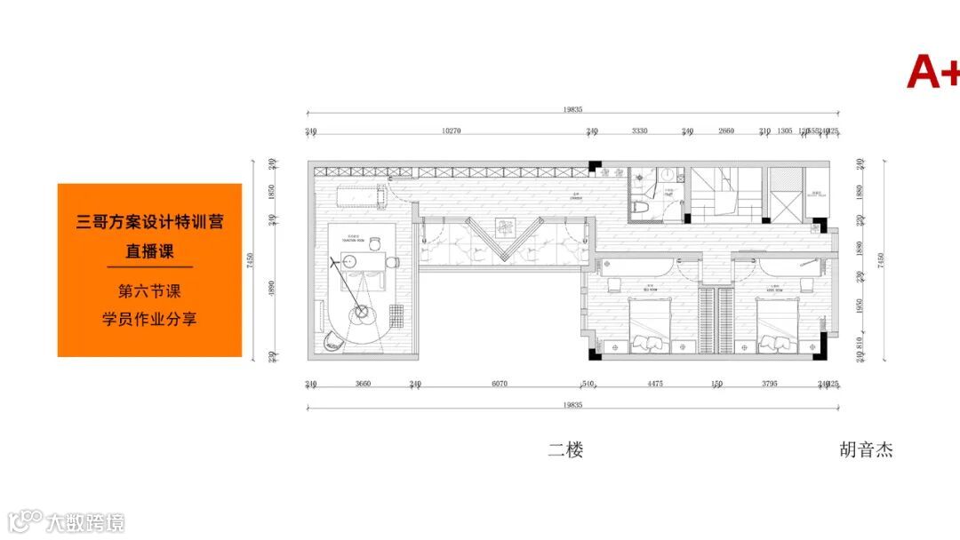
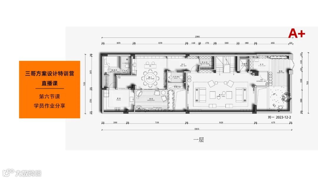
空间规范:空间规划是别墅设计的关键环节,需要合理规划空间,以提高别墅的使用功能和居住舒适度。要充分考虑居住人数、活动需求、生活习惯等因素,合理分配空间,确保别墅的实用性。
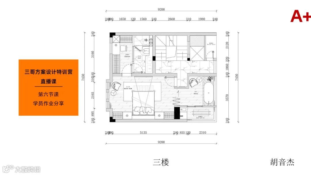
室内设计:室内设计是别墅设计的核心内容,它直接影响到居住者的生活品质和审美体验。在室内设计过程中,应遵循色彩搭配、风格搭配等原则,创造舒适、和谐的居住环境。
了解业主需求:设计师需要充分了解业主的生活方式、人口结构和生活习惯细节,以及家庭成员的工作日和节假日的消遣方式,以此来设计出更符合业主需求的别墅。
考虑建筑与庭院的关系:庭院是别墅的重要组成部分,设计师需要认真考虑建筑与庭院之间的关系,合理规划庭院的空间和布局。
机电方面:在别墅设计中,需要考虑强弱电、空调、新风、智能安防等问题,确保别墅的机电系统能够满足居住者的需求。
预算控制:设计师需要充分了解预算范围,并在设计过程中合理控制成本,确保最终的设计方案符合预算要求。
细节处理::在别墅设计中,需要注意细节处理,例如家具风格要与装修风格搭配好、大型浴缸要注意地板承重等问题。
验收标准:设计师需要明确验收标准,确保设计方案能够按照预期进行施工和验收。
通过掌握这些学习要点,可以帮助设计师更好地进行别墅设计,创造出一个舒适、实用、美观的居住环境。
这套课程不仅仅教你如何优化方案,更重要的是它会帮助你拓展思维。因此,在每堂课上,我们都会提供多种不同的思路,以确保学员真正理解方案优化的核心思维。
课程特色:我们注重培养学员的创造性和解决问题的能力。每一堂课都会以实际案例为例,演示多种设计思路和解决方案,以启发学员的创意潜力。
学员互动:课程鼓励学员积极互动,分享他们的设计思路和经验,从而推动学习氛围,加深对核心思维的理解。


