大数跨境

【户型改造】“不止于居住”亲子成长的互动生活空间

【户型改造】“不止于居住”亲子成长的互动生活空间 本设网
2026-02-11
3
导读:为什么越来越多的家庭,宁愿牺牲客厅也要这样改造?—尼古拉斯·三哥

Plane scheme optimization thinking

:138

:3人


**文章最后有:CAD源文件**


“不止于居住”亲子成长的互动生活空间

说明

新婚夫妻自住,未来计划孕育1个小孩,需保留3个独立卧室,其中1间规划为客房(老人不长期居住,也可用于亲友临时到访留宿)。男业主为老师、女业主为医生,房屋改造需兼顾两人职业特性与亲子陪伴成长需求,打造兼具度假放松感与亲子互动氛围的居住空间。空间规划上,玄关进门厅区域需重点打造充足收纳系统,满足衣物、鞋履、杂物等日常储物需求,提升空间整洁度;阳台还可全部扩建。打造开放式厨房,兼顾烹饪操作与亲子互动,方便家长在备餐时照看孩子。布局需设置独立衣帽间,满足两人衣物收纳需求;卫生间采用三分离设计,提升使用效率与舒适度。客厅摒弃传统电视布局,采用灵活自由的家具组合方式,适配轻松休憩、亲子玩耍、家庭小聚等多元场景。整体空间以亲子成长为主题,兼顾度假般的放松感,所有区域均可灵活规划空间,最大化实现亲子陪伴与舒适居住的双重需求。


/BEFPRE

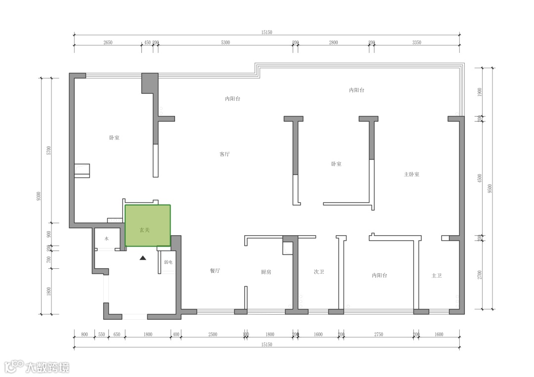
剖析1玄关尺度较窄,收纳分类不足?

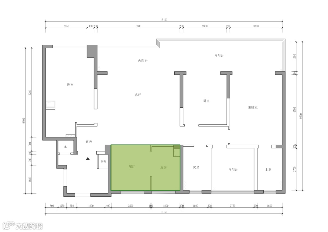
剖析2餐厅、厨房分区比例不均衡

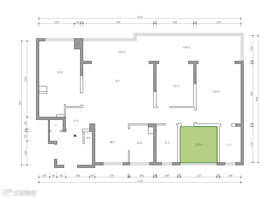
剖析3内阳台功能改造,主题不明确?


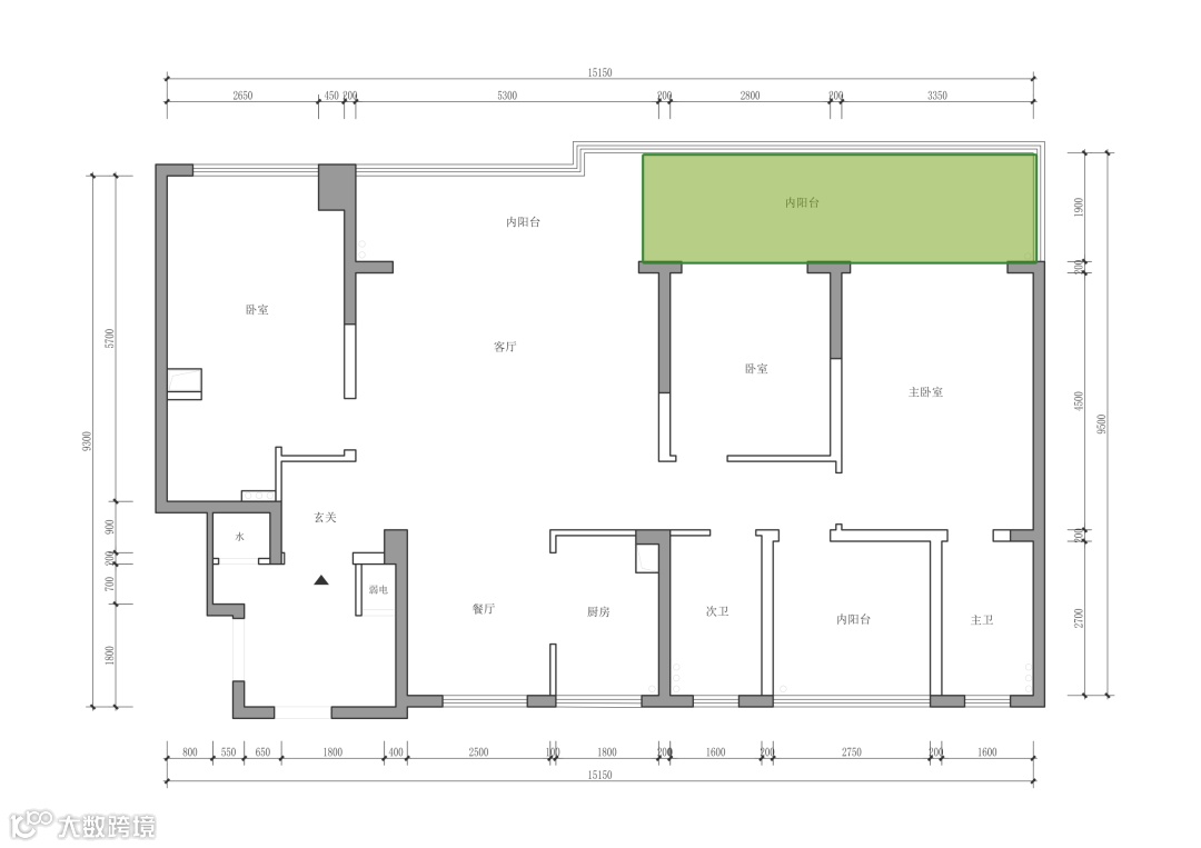
剖析4阳台扩建双卧拉通,私密性弱?
以上就是原始户型中存在的一些主要问题,需要我们在后续优化时重点关注。其实还有一些其他的问题,但我个人认为这些问题对后续方案的优化影响不大。不过,大家也可以根据自己的经验来判断,找出你认为不合理的地方。
那么这个方案该如何设计呢?



改造之后/AFTER
解析1玄关进门区域可优化改造为一体化收纳空间,按洁污分区合理规划:左侧定制收纳柜,专用于存放干净鞋物与日常杂物,分类摆放、整洁有序;右侧设置换鞋凳,兼顾临时落座与脏鞋收纳,实现洁污分离、使用便捷。门店区域充分利用每一寸空间,强化功能实用性,提升整体动线流畅度与空间利用率,兼顾美观与日常使用需求。

解析2结合现场户型条件与日常生活需求,将厨房改造为开放式格局,采用 U 型操作台面设计,洗、切、炒动线流畅合理,操作高效有序。台面延伸出一体式餐吧台,既拓展了操作空间,又打破封闭感,让厨房与公共区域自然连通,视觉更通透开阔。烹饪与用餐形成双向互动,可同时容纳两人并肩下厨,备餐、交流、小聚一气呵成,让烟火气里多了陪伴与温情,日常更有生活质感与温馨氛围。

解析3进门处这间卧室定位为多功能成长型空间,兼顾临时客房与未来儿童房双重需求。提前规划书桌与专属学习区,预留充足成长空间;针对儿童成长阶段的书本、画作及学习用品,在床尾定制整排通顶柜体,强化收纳与分类功能,实用又整洁。无孩童入住时,可作为舒适客房使用,空间灵活多变。整体设计兼顾当下使用与长远成长,动静相宜,兼具实用性与温馨感,让空间陪伴家庭一同成长。

解析4主卧打造集收纳与休憩于一体的舒适私域:设置独立衣帽间,融合女主人专属阅读角,一书一画一衣,兼顾收纳与静谧独处,功能分区清晰有序。卫生间采用三分离设计,外侧暗藏折叠式隐形妆台,不用时可收起,简洁美观又省空间。床尾区域定制整排床尾柜,最大化利用墙面,满足衣物、床品等海量收纳需求,整体动线流畅、私密实用,兼具颜值与生活质感。

【声明】内容源于网络
0
0
本设网
本设网公众号隶属于本设网络科技有限公司旗下品牌,本设网致力于打造最精品设计的资讯平台。专注建筑、景观、室内、艺术、产品等领域的品牌建设,搭建各领域之间交流及服务的设计平台。
内容 278
粉丝 0
本设网 本设网公众号隶属于本设网络科技有限公司旗下品牌,本设网致力于打造最精品设计的资讯平台。专注建筑、景观、室内、艺术、产品等领域的品牌建设,搭建各领域之间交流及服务的设计平台。
总阅读456
粉丝0
内容278