点击查看更多活动优惠信息
平面图优化思路 | Plan optimization
室内面积:67.6㎡
居住人员:3人
方案优化:殷永贵「壹墨DESIGN」
内部空间160㎡的新居,居住者仅仅为一家三口,平常喜欢喝点小酒、邀约三五好友开派对同乐。虽然原户型整体看起来分区也比较合理,公私也分明,但并不能满足用户的使用需求,空间也缺乏开阔感,因此业主希望在保留实用功能之余,还能提升空间整体通透与互动性,而且如何合理的利用两边花园也是整个空间设计的核心关键。

△
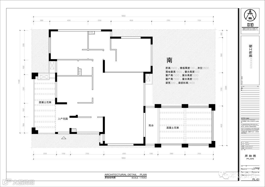
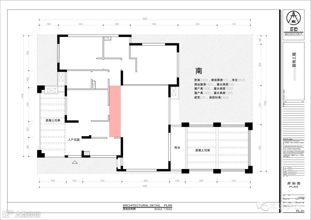
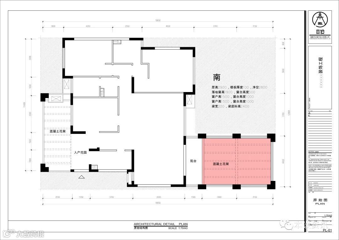
原始户型图

△
问题一:现有格局无法满足用户需求,空间因隔墙太多而且感觉封闭,功能配置和采光也相对不足。
P.01

△
问题二:客厅空间格局不完整,使区域功能划分模糊,难以使用。
P.02

△
问题三:入户花园功能单一,造成空间浪费,需要重新合理规划空间。
P.03

问题三:花园空间太浪费,缺乏应有的休闲感。
P.04

△
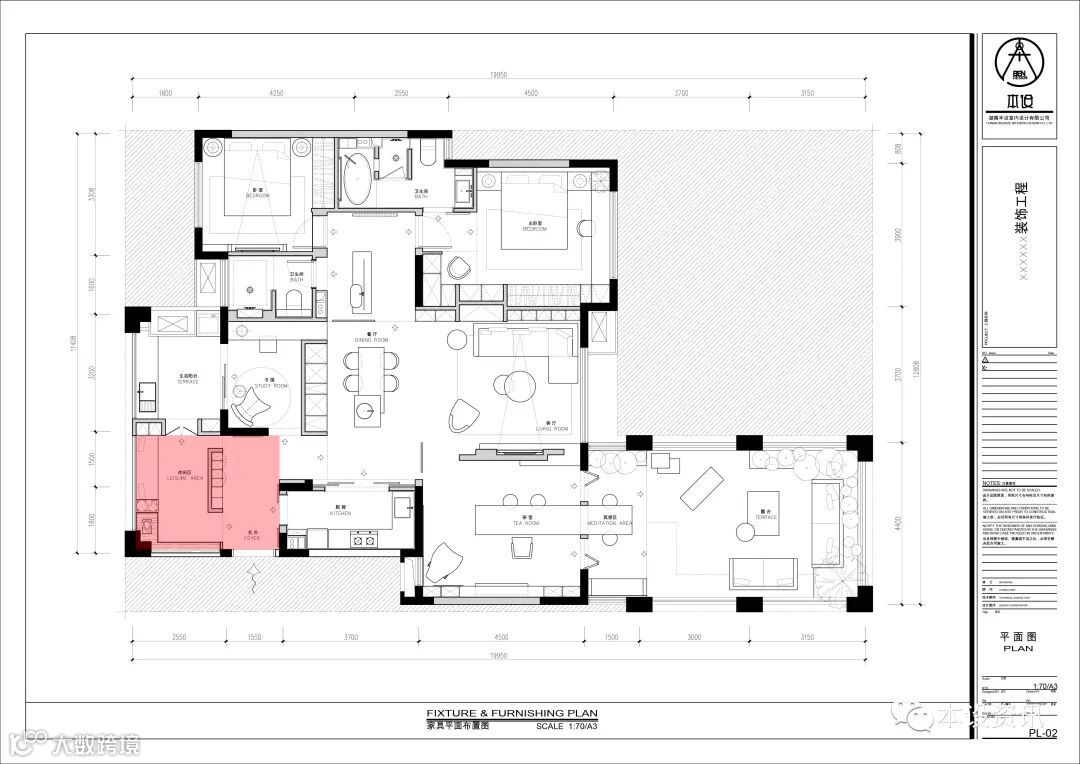
破解一:整合空间功能格局更好用◄利用鞋柜分割空间,原本过于开阔的入户区域分割出两个独立空间功能,并增加水景来营造入户玄关整体的设计与美感。
P.04

△
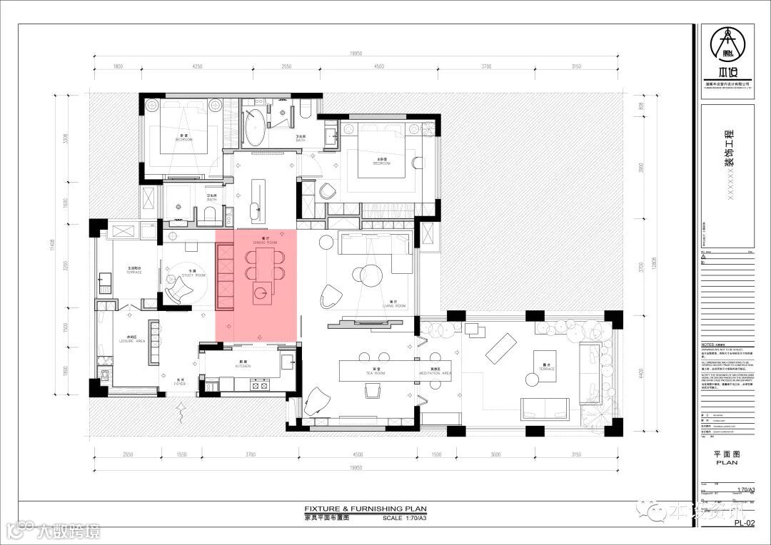
破解二:调整墙体,满足格局与功能◄将原卧室墙体后移,腾挪出餐厅的空间,同时嵌入一排柜子,除了释放空间的宽阔性,无形中也创造了许多收纳功能。
P.05

△
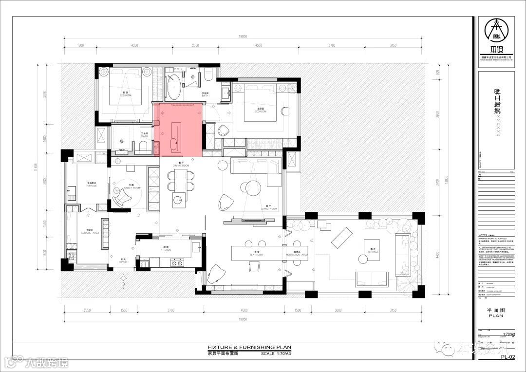
破解三:洗手台是功能也是装饰◄洗手台外移既解决了原公卫因墙体位移而功能不足的问题,相较一般的洗手台的使用功能更为多元,既保证整体的实用性,又增加空间的美感。
P.06

△
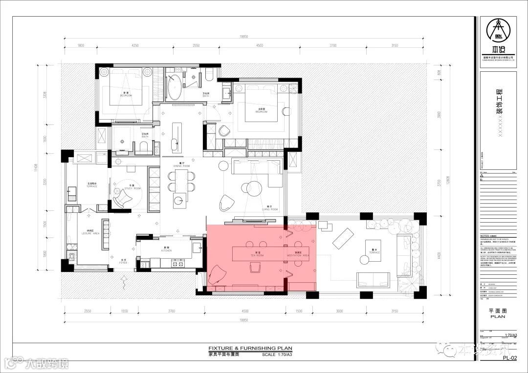
破解四:条形台面连接户外景致◄一个加长的条形台面延伸到户外,使两个空间相互融合,强化空间的互动性,既能满足业主的聚会使用需求,又赋予空间以设计感。
P.07

△
破解四:休闲庭院延揽舒适生活与美景◄将原有的露台改造成休闲庭院,作为开放式会客、娱乐空间进行设计,并以三面大开窗揽光线与自然美景入内,让山海如画的景致进入屋内。
P.08


△
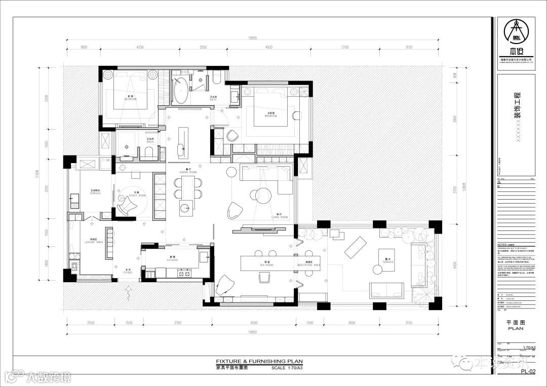
改造后的平面方案
想要提升自身的平面方案优化能力
请扫描下方二维码免费获取试听课程
让自己不要错过每一节精彩内容

△
扫码领取免费视频课





