
别墅因空间比较大
前期需要有很好的平面规划
如果规划不好,很容易造成空间的浪费
动线的不合理,功能单一,降低生活品质
在国内,高端的别墅设计
往往是非常考验设计师的水平与能力
别墅设计需要考虑的要素非常多且复杂
所以设计师做别墅的设计,通常会存在很多的痛点
面积大,楼层多,人员少,动线复杂
不知道如何合理划分功能

对于很多设计师来说
缺乏空间功能的认知,不知道如何填充过大的空间
往往很容易造成平面方案比较空
如何做好空间功能配置和空间区域的组合划分
是别墅空间设计的关键
同时别墅空间设计最核心的问题是
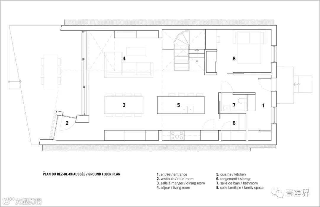
楼梯的位置
合理安排好楼梯位置,梳理好空间动线
对于后续功能与区域划分起到关键作用
同时
别墅空间除了需要满足用户的基本功能
还要考虑更多的附加功能
来提升空间及生活的品质
例如酒窖、健身房、台球室、影音室、雪茄室、红酒室等等
别墅户型空间面积大,如何把功能合理分到多个楼层
很多设计师把家具模块放到CAD平面里
往往发现空白的地方还有很多
功能之间怎么组合,怎么布置都是比较纠结的

做好动静分区
别墅室内分为私人空间和公共空间
卧室作为私人空间
要注重私密性和舒适性
公共区域作为休闲、娱乐、会客等功能空间
更多的是放松和交流
其他区域有影音室、健身房、书房、浴室、桑拿房等

采光通风问题
有的别墅由于地理位置的原因
在采光通风方面有很大的劣势
尤其是地下室空间
不仅采光通风差,也容易潮湿发霉
有的甚至楼上都会出现采光通风差的问题
如何协调功能与采光的关系?
怎么解决采光通风差的问题?

室内功能齐全
别墅不仅体现装饰品质
而且需要实现功能化
方便日常使用
空间规划功能全,空间布局合理
各个功能区域使用大小比例协调
这样才能发挥空间的实用性

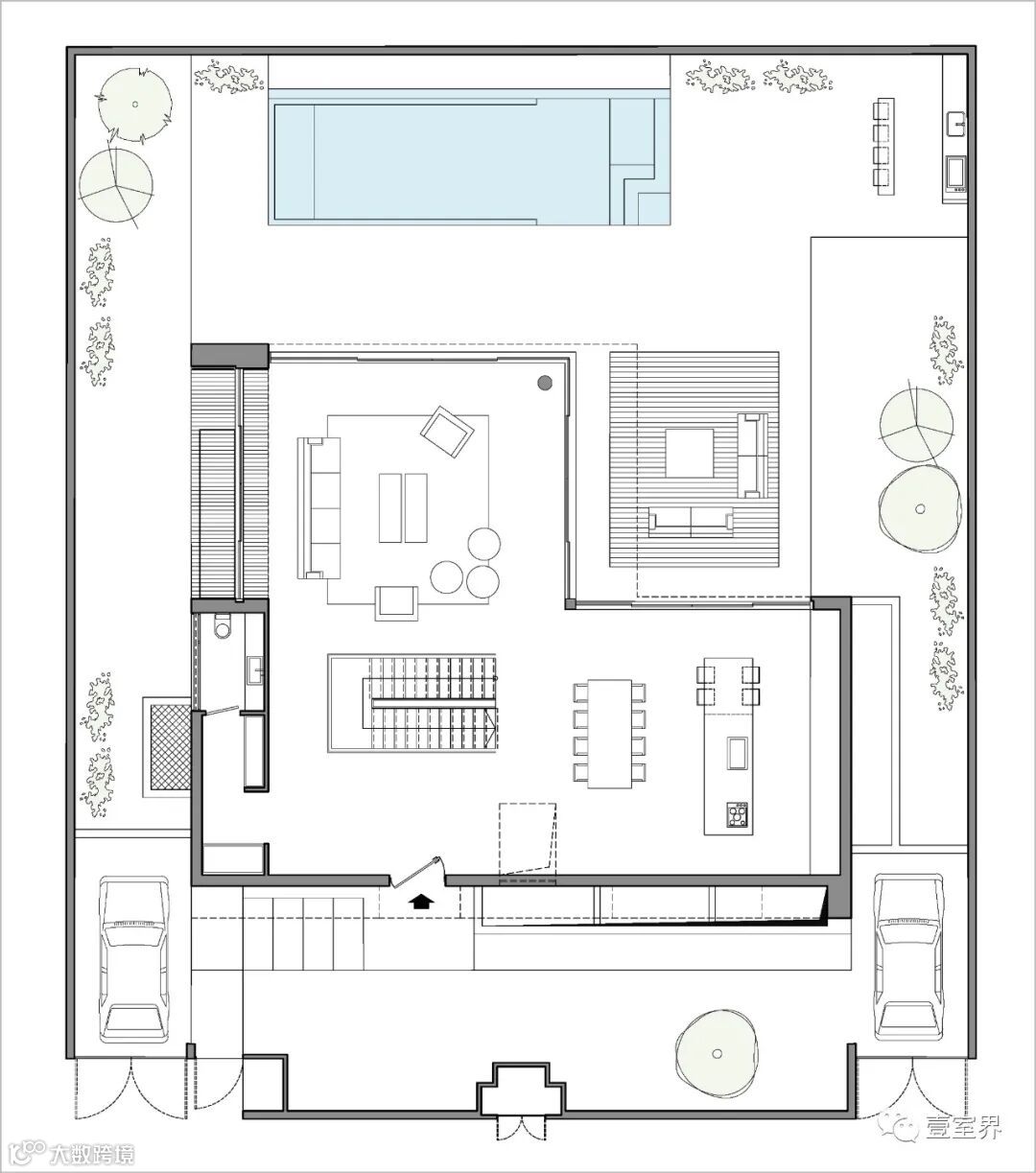
庭院纳入到室内的思考
庭院花园也是别墅的一部分
考虑方案也要将庭院花园景观
纳入到室内的体系里
怎样与室内空间的设计互相协调,产生互动?

其实别墅设计的痛点
远远不止这几点
但是想要做好别墅的设计
最好的方式就是参考借鉴优秀的别墅作品
从中找到解决问题的答案
《 全球精品住宅别墅设计案例图集》
——高清实景 立面图纸 平面方案——

资料共分为23个国家住宅别墅案例
Redgen Mathieson|墨西哥|极简|意大利|英国
荷兰|葡萄牙|法国|德国|印度尼西亚|新加坡|巴西泰国|希腊|日本
上百位全球顶级计师作品
本套资料共940个项目,文件大小33.96GB
如何购买获取

扫描以上二维码即刻获取资料









































































如何购买获取

扫描以上二维码即刻拥有



