
很多设计师明明自己也做出方案
为什么总感觉方案很空
没有细节,像只是摆图快,没有设计感
平面布置是室内设计的第一步
也是最重要的一步
一张优秀的平面方案稿不仅需要兼顾美观与实用
更需要让业主清晰布局中的深层涵义
所以在前期汇报方案的过程中
如何让业主更容易理解我们的设计
是至关重要的

前期平面方案的绘制
除了要考虑用户需求、功能布置、动线安排、空间格局
同时也需要将施工知识应用在平面中
因为施工知识包含了
材料、工艺、规范、比例、尺寸等知识
室内设计是一个综合性很强的行业
并不是我们在平面中摆几个家具就可以把设计做好
我们需要掌握很多专业的知识
尤其前期平面方案绘制的过程
但是往往很多设计师连最基本的绘图规范都不懂
导致绘制的平面方案缺乏细节
就像下面的方案一样
👇👇👇

△
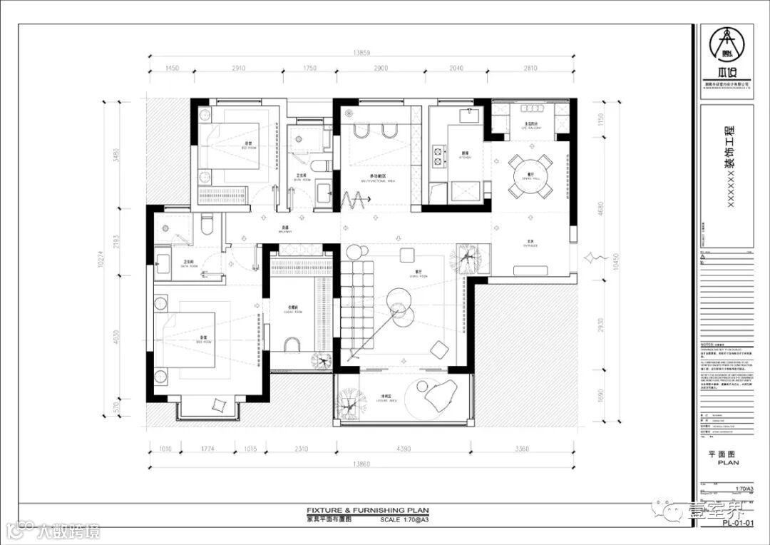
不规范的平面方案
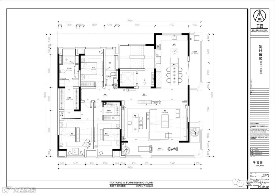
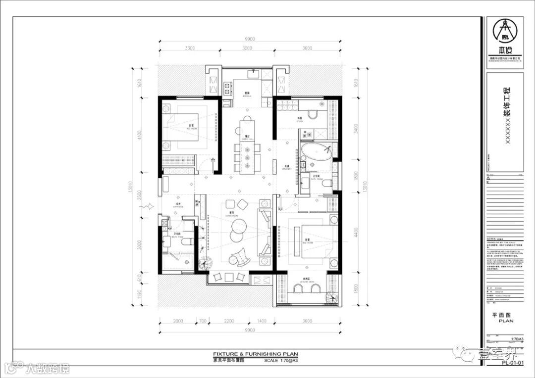
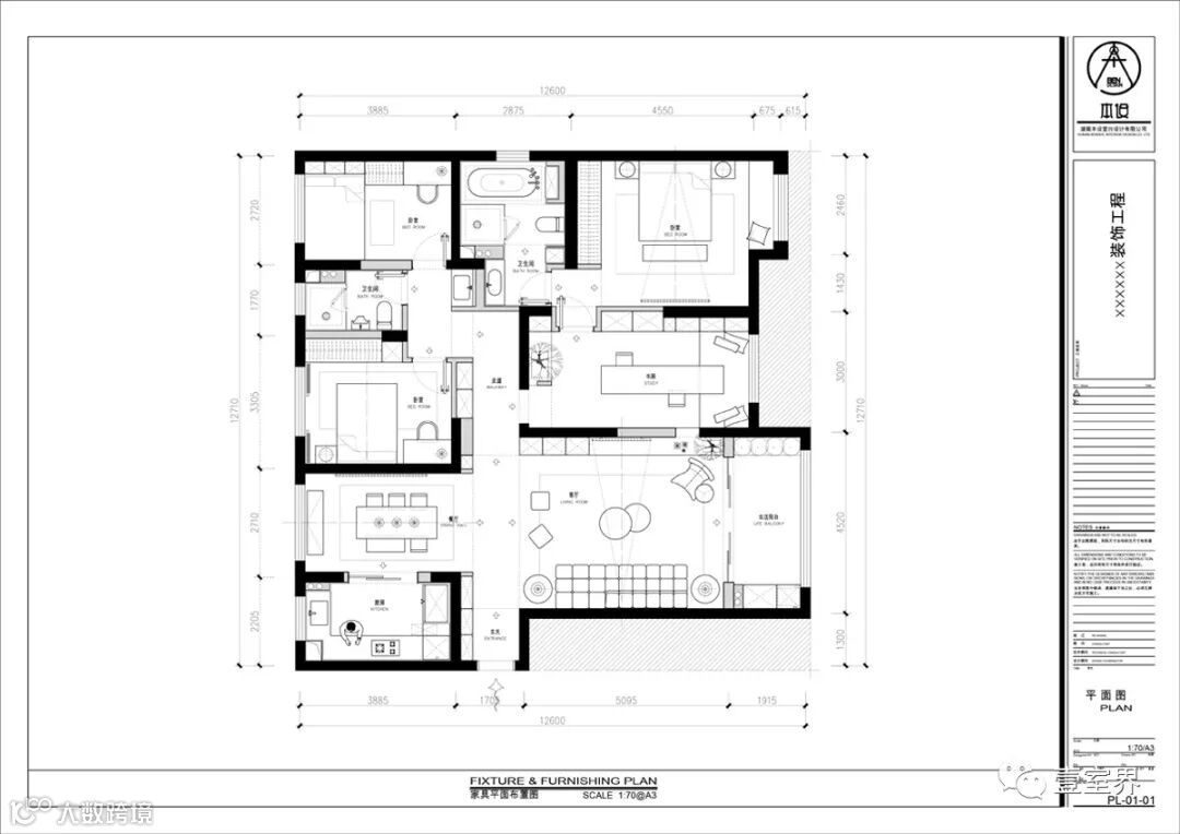
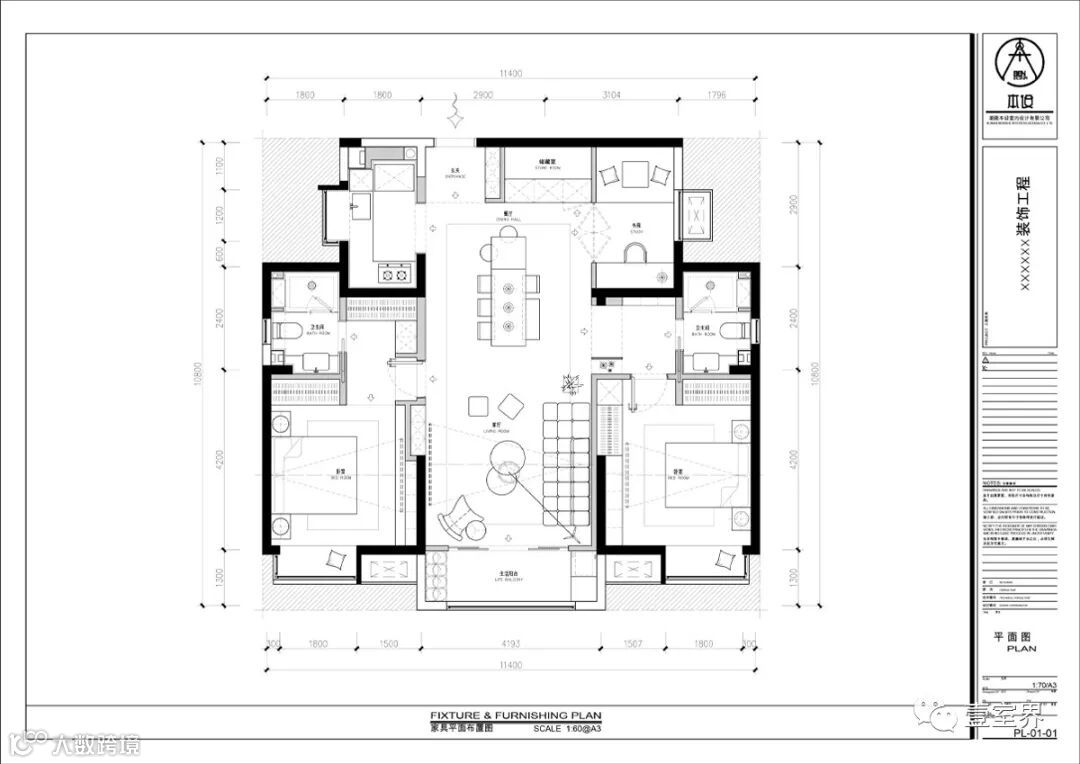
一个规范的平面方案
首先是它整体的颜色搭配
颜色这块每个公司使用的规范不同
颜色也会有很大的差异
但是颜色分类我们要知道
那么
颜色分类有哪些呢
原建筑墙体、新建墙体、固定家具、活动家具、厨卫等等
这样才能保证平面方案颜色的统一性

其次就是家具的选择
网上会有行行色色的家具图块
但是并不是所有的家具图块都是可以使用的
这个时候就不能直接调用别人的图块了
我们需要在网上找到符合我们设计的家具图块
根据空间的尺寸
选择合适大小的家具绘制出来

最后就是我们空间格局的划分
以及细节的处理
格局的划分需要结合业主的需求
和设计师的经验来进行规划
包含空间功能配置、动线梳理、视觉效果等
细节的处理
需要考虑材料的收口关系
固定家具尺寸大小

当我们了解了平面方案绘制要点
那到底该如何快速提升呢
↓ ↓ ↓ ↓
《平面方案绘制规范》
视频课程
通过一个案例详细讲解
平面方案绘制技巧

《课程内容》
课程10节|时长191分钟
包含CAD源文件
原价:399元
限时优惠价:69.9元
如何购买获取

扫描以上二维码即刻获取资料
课程内容

老师介绍

本设教育联合创始人及运营总监;本设教育施工图深化高级讲师;本设室内设计网联合创始人;从事室内设计行业10余年,曾任职于北京中建参与过项目:济南中石油办公大楼、北京电监会投标项目、北京二炮餐厅大楼投标项目、新华社投标项目、陆川工作室项目、华夏人寿投标项目等。
课程目录

案例展示






如何购买获取

扫描以上二维码即刻拥有








