搜索
首页
大数快讯
大数活动
服务超市
文章专题
出海平台
流量密码
出海蓝图
产业赛道
物流仓储
跨境支付
选品策略
实操手册
报告
跨企查
百科
导航
知识体系
工具箱
更多
找货源
跨境招聘
DeepSeek
首页
>
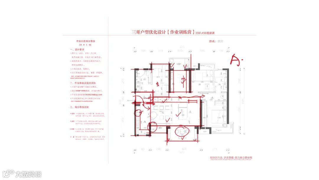
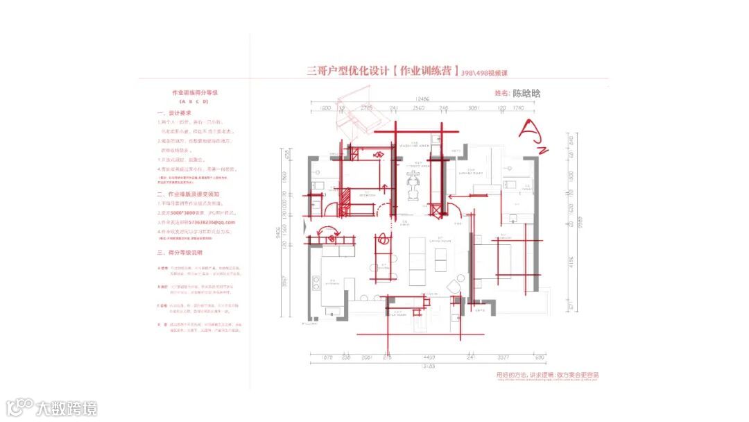
第1周【三哥户型优化·学员作业训练集一基础入门】
>
第1周【三哥户型优化·学员作业训练集一基础入门】
本设网
2024-11-20
2
【关注三哥,不迷路 -- 学习更多户型优化改造】
A.作业提交
B.作业辅导
【声明】内容源于网络
0
0
本设网
本设网公众号隶属于本设网络科技有限公司旗下品牌,本设网致力于打造最精品设计的资讯平台。专注建筑、景观、室内、艺术、产品等领域的品牌建设,搭建各领域之间交流及服务的设计平台。
内容
278
粉丝
0
关注
在线咨询
本设网
本设网公众号隶属于本设网络科技有限公司旗下品牌,本设网致力于打造最精品设计的资讯平台。专注建筑、景观、室内、艺术、产品等领域的品牌建设,搭建各领域之间交流及服务的设计平台。
总阅读
456
粉丝
0
内容
278