本课程升级内容为【方 案平 面优化】+【方 案SU 立 面 推 演】+【方 案 讲 解 汇报】全面讲解,且具体落实到学员对空间平、立面创意的原创性进行提升。
课程核心价值
历经3年迭代、沉淀2025年线上线下3000+学员训练数据,本次升级聚焦【空间原创力】与【方案说服力】双重突破。通过“空间解构-建模推演-叙事表达”全链条训练,直击设计师方案汇报“逻辑不清、表现力弱、创意同质化”三大痛点。
三大核心模块深度解析
模块二
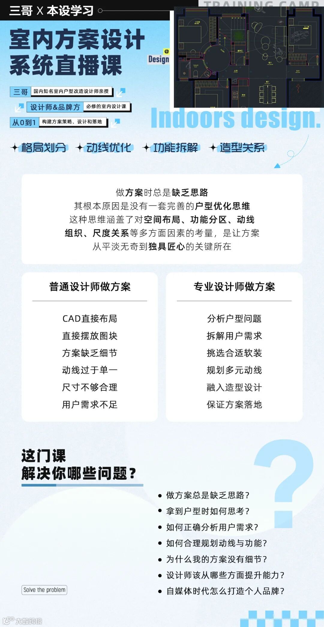
方案平面优化 | 从功能堆砌到空间叙事
2025升级要点:植入“空间思维逻辑导图”分析法
解构训练:户型缺陷诊断6大原则(采光/动线/尺度/功能/心理/成长)
创意突围:平面重构7种思维
实战检验:真实业主需求VS网红布局陷阱的平衡法则
学员成果:平面方案原创性提升,空间利用率优化达标率
模块二
SU立面推演 | 从图纸到空间的维度跃迁
2025升级要点:平面布局导空间立面工作流
立体思维:立面与平面联动推敲法(材质/光影/尺度实时反馈)
技术赋能:SU空间推演(10分钟完成立面方案解构表达)
学员成果:立面方案深化效率提升,改图返工率下降
模块三
方案讲解汇报 | 从专业表达到大单转化
2025升级要点:引入“好莱坞式故事板”教学法
逻辑构建:金字塔汇报结构(痛点锚定→价值堆叠→场景唤醒)
情绪设计:方案陈述的节奏把控与可视化道具运用
攻防演练:12类客户异议处理话术与数据佐证技巧
学员成果:方案通过率提升,大宅项目签单率提升
课程适合人群
长期遭遇创意瓶颈的设计师
方案屡遭甲方否决的深化设
计人员
渴望建立个人设计语言体系
的创业者
设计专业学生突破“学校-职
场”鸿沟
往届期学员反馈:
“从被甲方牵着走到引导客户认可我的创意,这套方法论彻底改变了我的设计人生”
——深圳某设计工作室主理人 Lina
“SU不再只是建模工具,立面推演时对材料与光影的预判能力让甲方主动找我合作”
——成都深化设计师 Mike







