平面图优化思路 | Plan optimization
室内面积:141㎡
居住人员:3人
方案优化:殷永贵「壹墨DESIGN」
这是一个老住宅,原始屋况的格局非常奇怪,整个一个狭长的格局,除了两边有一定的窗洞,其他位置没有任何的采光口,所以整个空间的采光非常差,而且空间中过多的承重墙,限制了后期的改造。原有的功能格局也是比较特别,缺少完善的客厅,厨房的位置也是比较尴尬,主卧内部的横向尺度不足难以按照常规布局来规划。

△
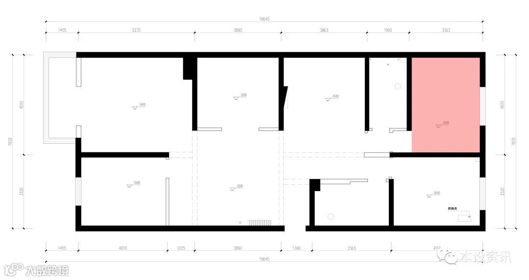
原始户型图

△
问题一:入户缺乏玄关及收纳,无法满足日后的生活需求与空间品质。
P.01

△
问题二:主卧空间横向尺寸不足,内部的功能组合难以规划。
P.02

△
问题三:缺少完整的客厅空间,家庭成员的聚会与交流得不到满足。
P.03

△
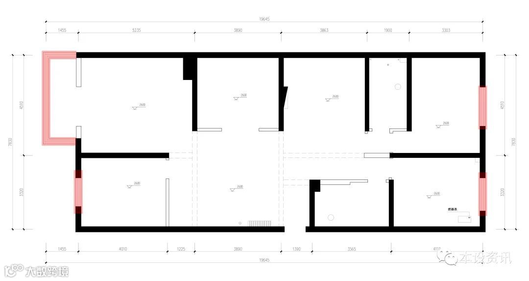
问题四:整个户型的采光性与通风比较弱,会影响使用的舒适性。
P.04

△
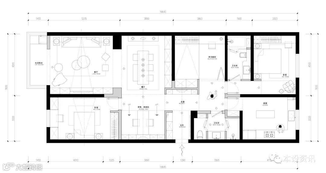
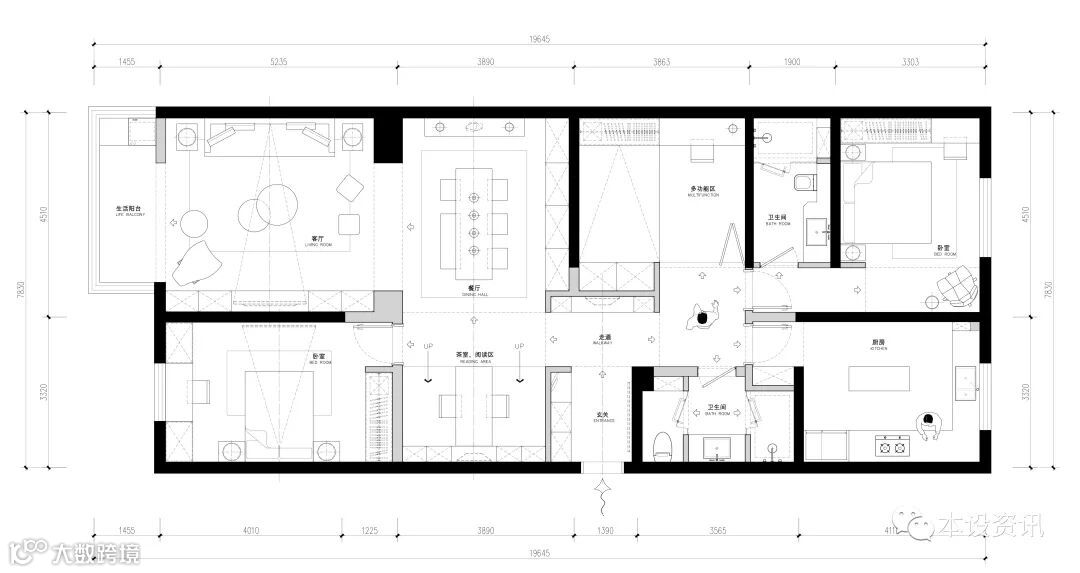
破解一:增加玄关,强化功能>给原有的入户区域增加玄关,强化入户的收纳与空间的舒适性,从而也能让进入空间有一定的仪式感,提升住宅整体的品质。
P.05

△
破解二:拆一墙享有舒适空间>将原来这个区域的墙体拆除一部分,在进行加固处理,即解决了客厅的独立性又增强了空间采光与通风,让公区享有舒适的空间。
P.06

△
破解三:调整床头,满足收纳>依照现有空间尺度将原有竖向摆放的床进行横向摆放,增加侧边的衣柜与梳妆台,满足必要的生活功能需求又不至于给人以过于压迫感。
P.07

△
破解四:调整卫浴入口,功能更合理>整合空间的同时也连带调整原公卫空间的出入口,将洗手台放置在剧中,马桶与淋浴分两边,而且都能形成独立空间,功能使用上更加舒适。
P.08


△
改造后的平面方案






