平面图优化思路 | Plan optimization
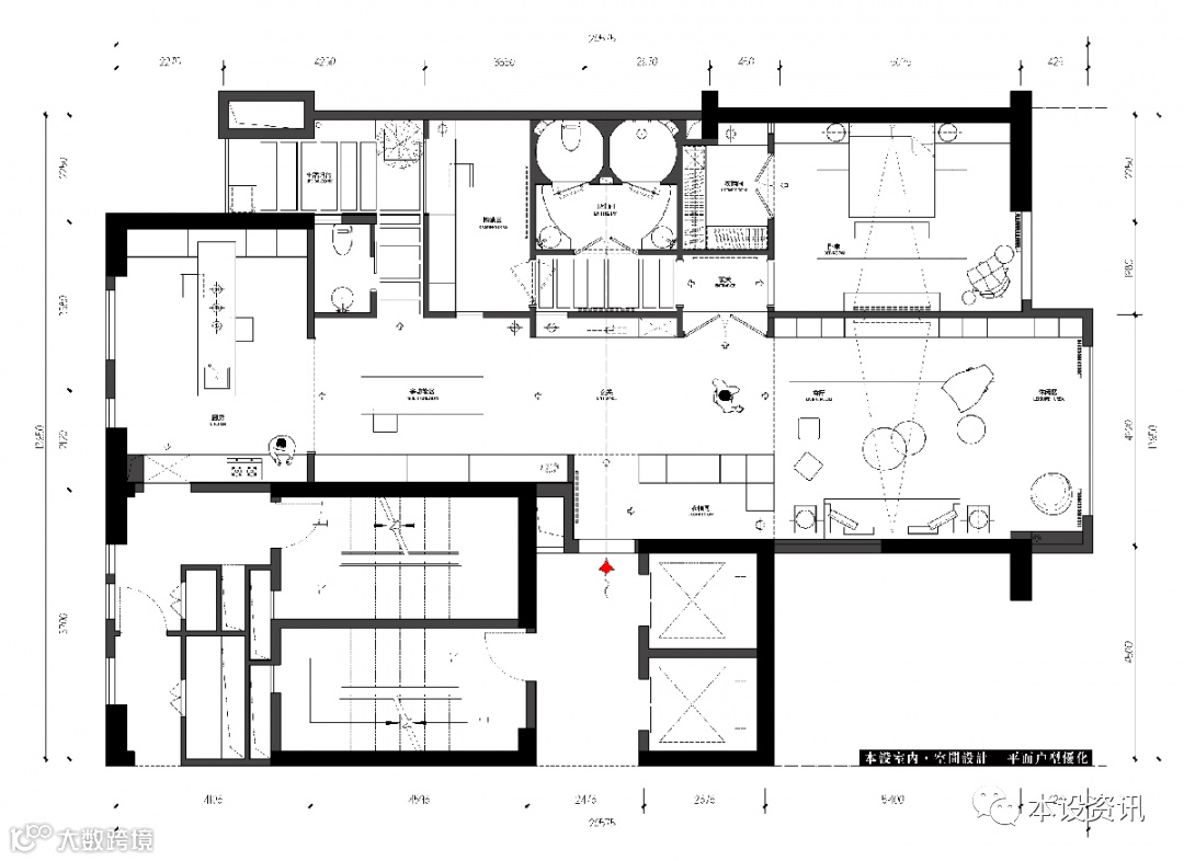
室内面积:157.3㎡
居住人员:1人
方案优化:殷永贵「壹墨DESIGN」
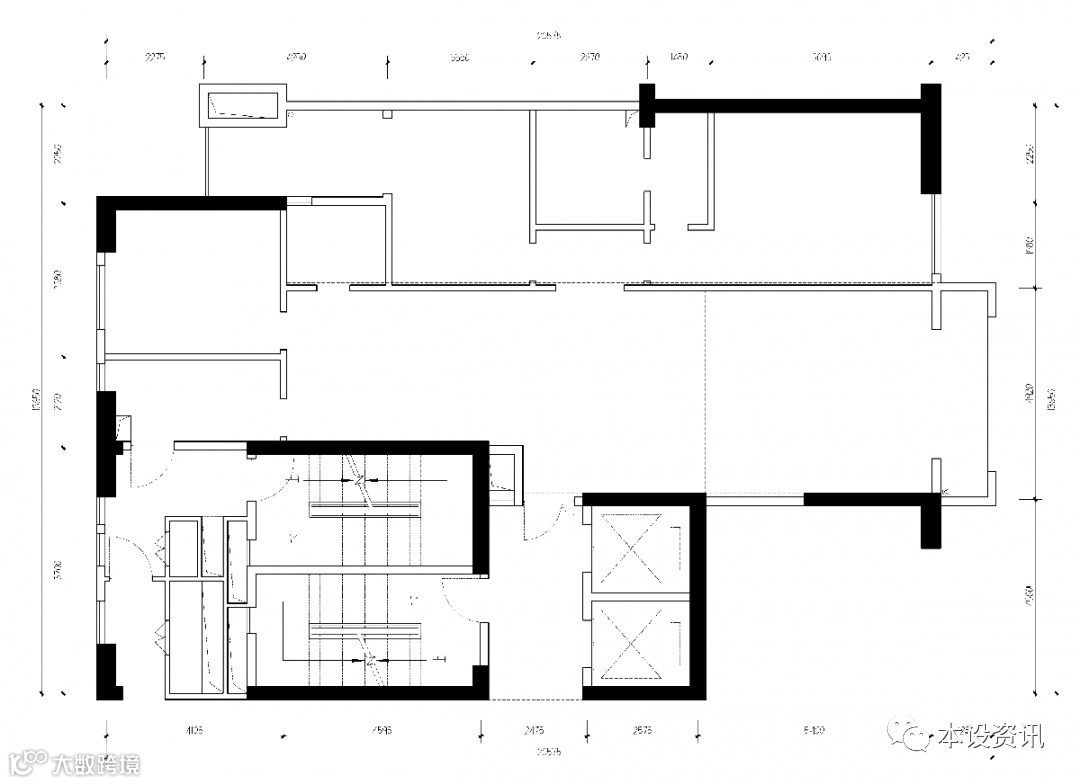
内部面积157㎡新居,居住者仅为单身年轻的女业主,平常喜欢喝点小酒、邀请三五个好友开派对同乐。虽然整个户型有足够大的面积,公私也比较分明,但是过多无用的房间却限制了空间的相互链接,更造成了空间的浪费,无法合理的使用,对于喜欢开放感的业主而言,空间内因隔墙太多而感觉封闭,功能配置和采光相对显得不足。

△
原始户型图

△
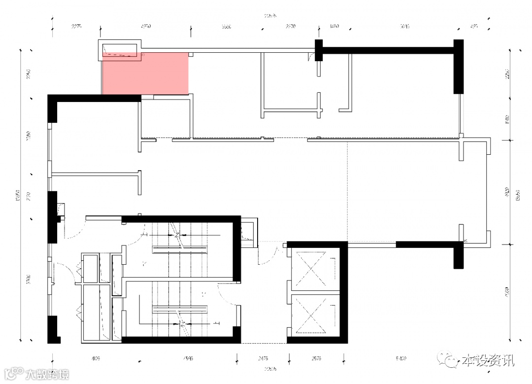
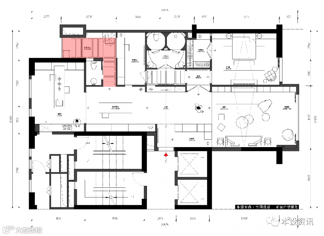
问题一:入户位置希望有个足够大的衣帽柜,满足日常使用需求。
P.01

△
问题二:入户门所对应的墙面不够完整,缺乏空间整体的美观性。
P.02

△
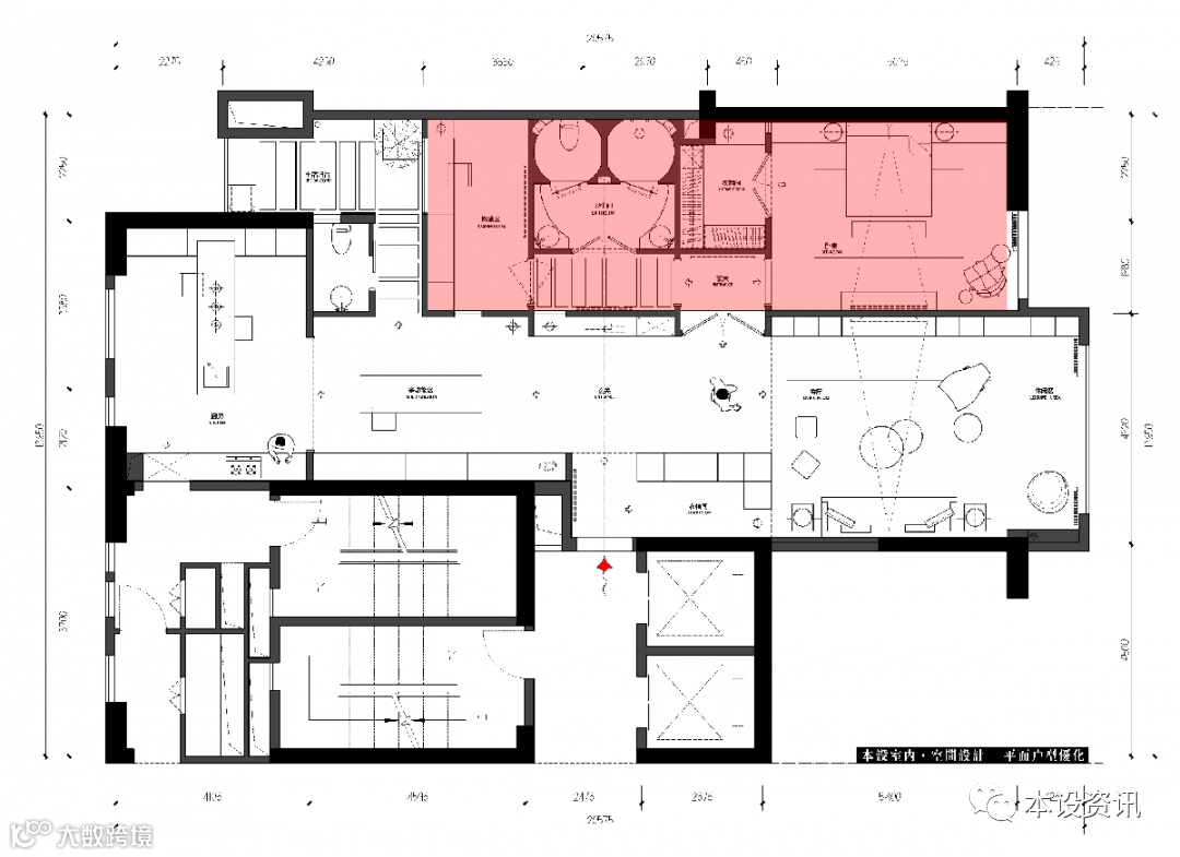
问题三:对于一个女生来说,这样的衣帽间空间怎么能满足需求。
P.03

△
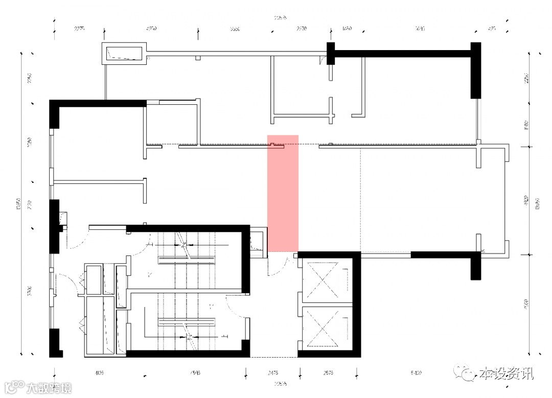
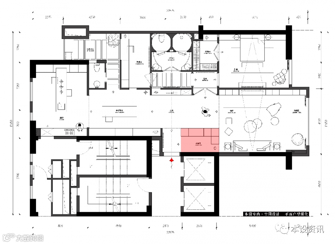
问题四:阳台要经过卧室空间,会造成动线上不流畅,影响使用。
P.04

△
破解一:利用柜体,分割出空间>在入户的位置增加一个L型柜子,与墙体留出一定距离,既满足收纳、引进光线,也让空间可弹性运用。
P.05

△
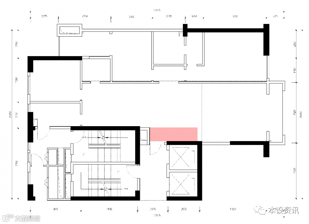
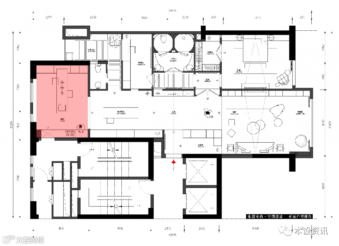
破解二:拆除墙体,放大厨房>将原有卧室与厨房合并,拓宽空间,厨房设置岛台,强化空间的实用性,家庭聚餐更方便。
P.06

△
破解三:清幽廊道,营造意境>将原来的生活阳台外置,地面铺设青石板与白色碎石,廊道的端景以一颗植物与多功能区相呼应,营造较为舒适的空间感。
P.07

△
破解四:整合空间,扩大主卧>将原来的过道纳入主卧,连接两边的卧室,形成套房,强化空间功能,提高生活的舒适度。
P.08


△
改造后的平面方案





