平面图优化思路 | Plan optimization
室内面积:99.4㎡
居住人员:1人
方案优化:殷永贵「壹墨DESIGN」
此户型空间方正围合,每个空间的尺度也都显得很合理,是一个不错的居家空间,但是如果只是一个人居住的话,这些又显得非常浪费,无法满足业主个性化的使用需求。业主本身对于这个空间有自己的规划和想法,比如独立游戏区,超大的主卧室,餐厅与厨房能够联动,在保证功能的需求的前提下,同时维持与客厅良好的互动关系。

△
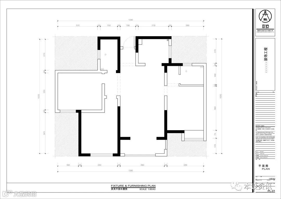
原始户型图

△
问题一:入户缺乏收纳空间规划,生活功能不足。
P.01

△
问题二:对于不怎么做饭的用户来说,原厨房的利用率不高。
P.02

△
问题三:主卧空间虽然看似合理,但是对于本案来说还是显得空间不够。
P.03

△
问题四:原空间配置较多的房间数,较不符合单身业主的使用需求。
P.04

△
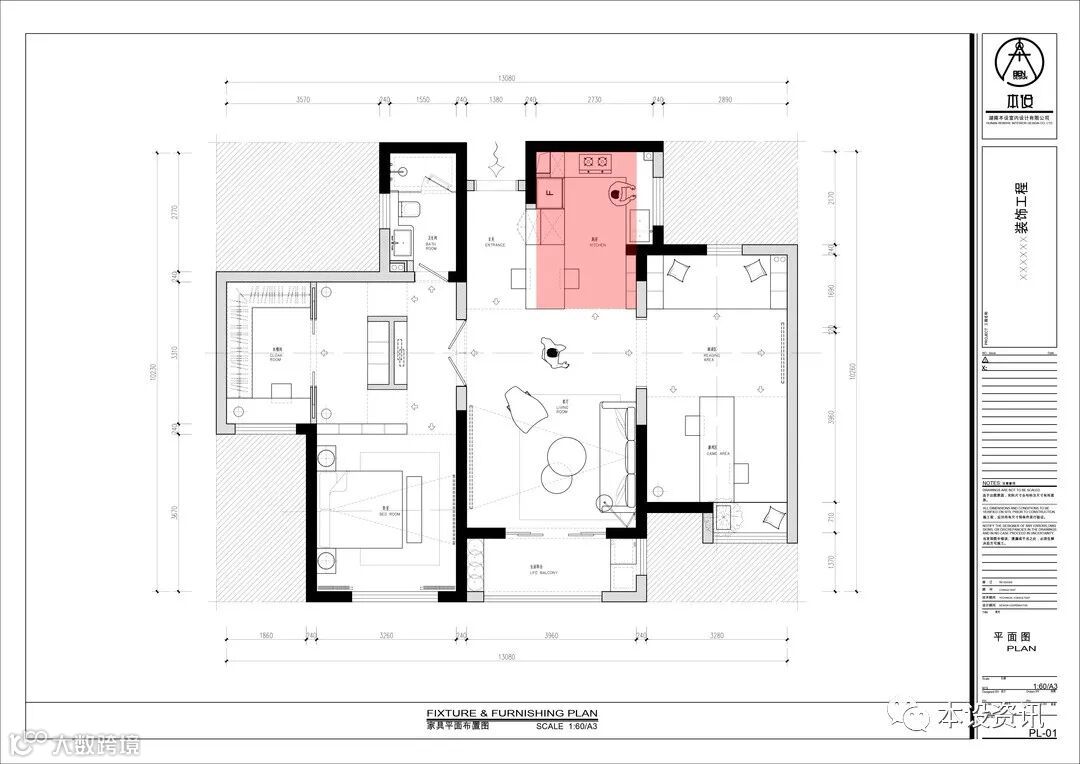
破解一:开放厨房,提升空间使用率◄将原厨房、餐厅之间的隔墙拆除,与餐厅相连,配置L型厨具,并将冰箱、电器柜置入,不仅收纳容量倍增,动线也更加顺畅,空间也显得通透,也帮客户营造更加精致的生活空间。
P.05

△
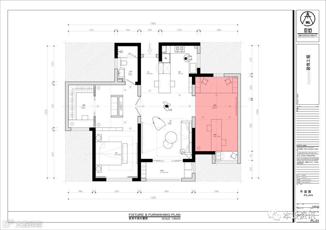
破解二:开放设计赋予开阔空间◄将原本主卫墙体拆除,使空间打通一个开阔的格局,划分出一个游戏区与休闲区,不但满足屋主的需求,也创造出居家的休闲感与开阔的视野。
P.06

△
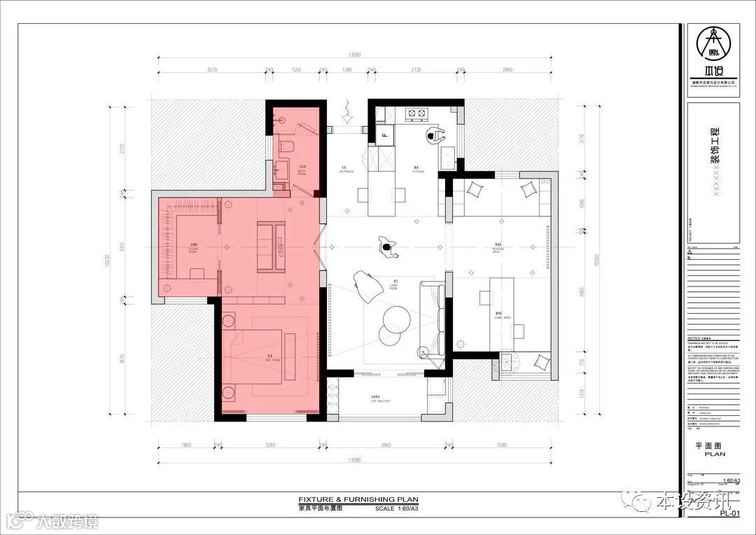
破解三:调超高效能的复合式套卧◄将过道、两个房间、公卫进行整合成一个套房,既满足空间收纳、扩大面积,也让空间形成一个高品质的寝居区域。
P.07


△
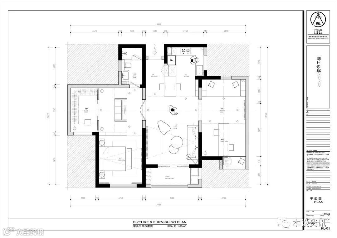
改造后的平面方案





