
▼
平面布置是室内设计的第一步
也是最重要的一步
一张优秀的平面方案稿不仅需要兼顾美观与实用
更需要让业主清晰布局中的深层涵义
所以在前期汇报方案的过程中
如何让业主更容易理解我们的设计
是至关重要的

如果我们在前期汇报方案的时候
只是拿一个CAD黑白线稿给客户看
对于一个非专业出身的客户来说
往往不知道我们所想表达的意义是什么
需要我们花费大量的时间和精力给客户解释
甚至有的设计师自己都表达不清楚
导致项目无法顺利的成交
那么如何才能快速抓住客户眼球,提升方案逼格
通常会把单调的黑白线稿平面方案做成彩平
彩色平面图是对设计方案最直观的表达
高大上的彩平可以提升设计方案的气质
根据空间的不同
我们课程详解了4种不同应用场景的彩平表现形式
虽然只有4种彩平表现
但是却涵盖了国内外新锐公司的彩平表现技法

一套高逼格的彩平图能够为你的方案加分不少
只是大多数设计师没有善于总结和归纳

↓ ↓ ↓ ↓
《方案彩平表现技法》
提升方案逼格,促进签单率
让客户更容易读懂你的设计

《课程内容》
课程12节|时长260分钟
包含CAD源文件,PSD源文件,含贴图
原价:399元
限时优惠价:129元
如何购买获取

扫描以上二维码即刻获取资料
课程内容

01
单色彩平
单色彩平是当下最流行的一种彩平表现形式
也是很多设计公司比较常用的
适用于公装及大空间设计
制作简单,色调单一,更容易体现空间设计

02
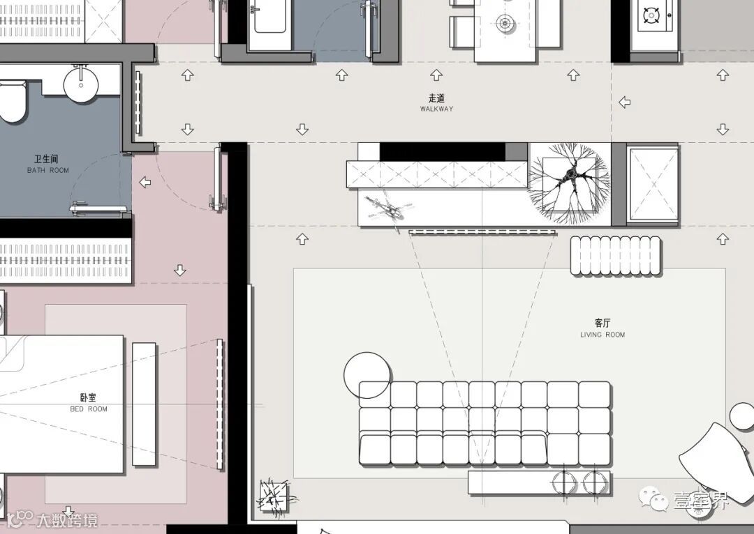
现代简约风彩平
现代简约风彩平相对于单色彩平
颜色更加丰富,可以凸显亮点
适用于公寓及小空间方案的设计表达

03
莫兰迪色彩平
莫兰迪色又叫做高级灰
利用莫兰迪色做出的彩平能够体现出
优雅内敛的高级感
是国外新锐有内涵的公司常用的表现方式

04
材质贴图彩平
这种彩平形式是家装别墅以及样板间设计的首选表现形式
能够非常好的表达空间材质感以及区域感
是梁志天,黄志达,邱德光等设计公司主流的彩平表现形式

老师介绍

本设教育联合创始人及运营总监;本设教育施工图深化高级讲师;本设室内设计网联合创始人;从事室内设计行业10余年,曾任职于北京中建参与过项目:济南中石油办公大楼、北京电监会投标项目、北京二炮餐厅大楼投标项目、新华社投标项目、陆川工作室项目、华夏人寿投标项目等。
作品展示





如何购买获取

扫描以上二维码即刻拥有








