
“户型优化知识小课堂”
分享老师:尼古拉斯·【三】
课程知识
照顾老人的一套刚需户型
▼
中间有视频讲解

▲
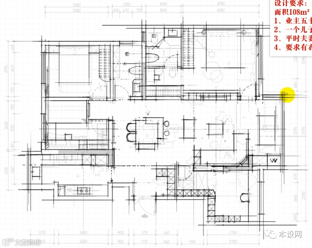
原始户型图
设计要求
主讲:尼古拉斯 • 三哥
设计要求:
面积108㎡
1、业主五十岁左右
2、一个儿子在外地上大学不常回来,
3、平时夫妻二人常住,以后可能会把小孩的奶奶接过来
4、要求有衣帽间健身区域,书房和茶室尽量也考虑到

▲
优化后的手绘方案

▼
视频讲解
室内户型优化课程介绍
扫码预约课程
可领取课程优惠券

▲
扫码免费预约直播课




本设网
“户型优化知识小课堂”
分享老师:尼古拉斯·【三】
课程知识
照顾老人的一套刚需户型
▼
中间有视频讲解

▲
原始户型图
设计要求
主讲:尼古拉斯 • 三哥
设计要求:
面积108㎡
1、业主五十岁左右
2、一个儿子在外地上大学不常回来,
3、平时夫妻二人常住,以后可能会把小孩的奶奶接过来
4、要求有衣帽间健身区域,书房和茶室尽量也考虑到

▲
优化后的手绘方案

▼
视频讲解
室内户型优化课程介绍
扫码预约课程
可领取课程优惠券

▲
扫码免费预约直播课



